Advertorial

Hotel Hirschen Spa House, Rakúsko

Novotvar v prostredí alpskej obce.

Vytvorte si kúpeľňu snov: dizajnové riešenie od značky hansgrohe

Hansgrohe - prémiová značka kúpeľňových riešení, ponúka nadčasový dizajn, technickú precíznosť a udržateľné inovácie...

Okná Internorm za minuloročné ceny + hliníkový kryt zdarma!

Využite špeciálnu akciu Internorm: okná za minuloročné ceny a hliníkový kryt úplne zadarmo. Ponuka je časovo obmedzená!

Pozvánka na 2. ročník stavebného veľtrhu BigMarket na Slovensku

Na podujatí sa predstaví až 37 vystavovateľov - popredných dodávateľov stavebných materiálov a inovácií s prezentáciou...

Moderné plynové technológie: Efektivita a inovácie pre 21. storočie

Sumarizácia najdôležitejších inovácií, ktoré redefinujúcich využitie tohto energetického zdroja.

Utesňovanie spodných stavieb pomocou hydro-aktívnej fólie AMPHIBIA.

AMPHIBIA 3000 GRIP 1.3 od spoločnosti ATRO predstavuje modernú hydroizolačnú technológiu, ktorá spája vysokú odolnosť,...

Dekarbonizácia individuálneho vykurovania domácností – Green Deal evolučne a nie revolučne

Ambiciózne plány EK narazili na ekonomické možnosti domácností v jednotlivých členských štátoch –...

Minimalistické dvere IDEA – technická precíznosť a čistota prevedenia

IDEA DOOR od spoločnosti JAP prináša do interiéru čistý minimalistický vzhľad vďaka bezrámovému riešeniu a precíznej...

Dom s výhľadom na údolie, Dlouhý Most (ČR)

Kontinuita riešenia od vonkajšieho obkladu až po kovania a kľučky.

Schell Vitus – osvedčené riešenie pre sprchy a umývadlá vo verejnom sektore s viac ako desaťročnou tradíciou

Nástenné nadomietkové armatúry Vitus sú mimoriadne vhodné pre rýchlu a efektívnu...

Kompozitné okná predstavujú súčasnosť a budúcnosť

Okenné profily z kompozitného materiálu RAU-FIPRO X od spoločnosti Rehau sú v porovnaní s tradičnými plastovými profilmi mnohonásobne...

Myotis - stoly 2025

Najnovší sortiment stolov pre zariadenie interiérov...

Priemyselné sklenené priečky Dorsis Digero: svetelné rozhranie pre moderné interiéry

Spojenie moderného dizajnu, funkčnosti a svetla do harmonického architektonického prvku.

Význam prirodzeného svetla pre moderné a flexibilné pracovné prostredie

Kancelárska budova Baumit v slovinskom Trzine prešla premenou na moderné a udržateľné pracovisko. Architekti kládli dôraz...

Konferencia Xella Dialóg predstaví novinky a trendy v stavebníctve

Mottom šiesteho ročníku on-line konferencie odborníkov Xella Dialóg je Efektívny návrh budov 2025+: zmeny a riešenia

Knižnica a školská kaplnka Ducha Svätého, Spojená katolícka škola Rajec

Profánne prostredie a spiritualita. Ako sa to podarilo?
Diela
Red 318.12.2017
12240+15
Knižnica a školská kaplnka Ducha Svätého, Spojená katolícka škola Rajec
Autori: Ing. arch. Peter Kasman, Mgr. art. Ladislava Repková, ArdD.Investor: Správca farnosti v RajciAdresa: Námestie Andreja Škrábika 36/5, Rajec, SlovenskoPublikované: 18. december 2017

Duchovný priestor. Výzva pre architekta a investora. Objekt cirkevnej školy nemal školskú kaplnku niekoľko rokov. Bohoslužby sa konali vždy v alternatívnom priestore jednej z učební. Situácia sa zmenila vyprázdnením triedy, ktorá mala navyše možnosť vstupu aj z exteriéru.

Miestnosť pôvodnej školskej učebne bola pretvorená na otvorený priestor so subtílným mobiliárom.
Miestnosť pôvodnej školskej učebne bola pretvorená na otvorený priestor so subtílným mobiliárom.Foto: Peter Kasman

Priestor kaplnky sa začal formovať už pri diskusiách architekta, dizajnéra a klienta. Klient - správca farnosti v Rajci dal zasvätiť kaplnku Duchu Svätému a práve tu sa rodia myšlienky o stvárnení priestoru v tendenciách jednoduchosti, prívetivosti, blízkej až intímnej službe prostredia človeku. Abstrakcia zasvätenia sa preniesla do svetelného spektra farieb vstupných priestorov v kontraste s čisto presvetlenou knižnicou a kaplnkou. Prírodné materiály, kombinácia dreva a skla, jednoduché, ortogonálne a subtílne formovanie interiérových prvkov vytvárajú hľadaný pokoj a transcendentálnosť. Zamýšľanie sa nad tenkou hranicou medzi pozemským a nadpozemským, medzi vnútorným a vonkajším, medzi skutočnosťou, mystickosťou a príbehom...

Dominantou priestoru je kríž a presklená stena, oddeľujúca svetský a duchovný priestor.
Dominantou priestoru je kríž a presklená stena, oddeľujúca svetský a duchovný priestor.Foto: Roman Kanich

Technické riešenie:

Časť prízemia školy - učebňa s príslušenstvom, sa po oddelení od školského priestoru dostala pod farnosť Rajec. Miestnosti boli určené pre školskú kaplnku s príležitostným využitím pre obyvateľov Rajca. V priestore boli odstránené pôvodné priečky, podlahy, výplne otvorov. V nosnom murive boli vyrezané ďalšie otvory medzi zádverím, knižnicou a priestorom kaplnky. Uzavrel sa priechod do exteriéru. Do pripravených stavebných otvorov boli vsadené dverové krídla s dreveným obkladom a presklená stena. Položila sa nová drevená dubová podlaha. Sedenie, oltár, i knižničné police spája spoločný motív "drevenej kocky".

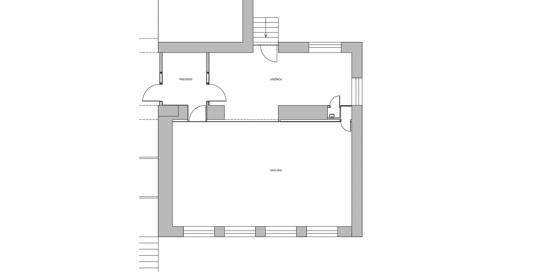
Pôdorys - pôvodný stav
Pôdorys - pôvodný stavAutor: Peter Kasman
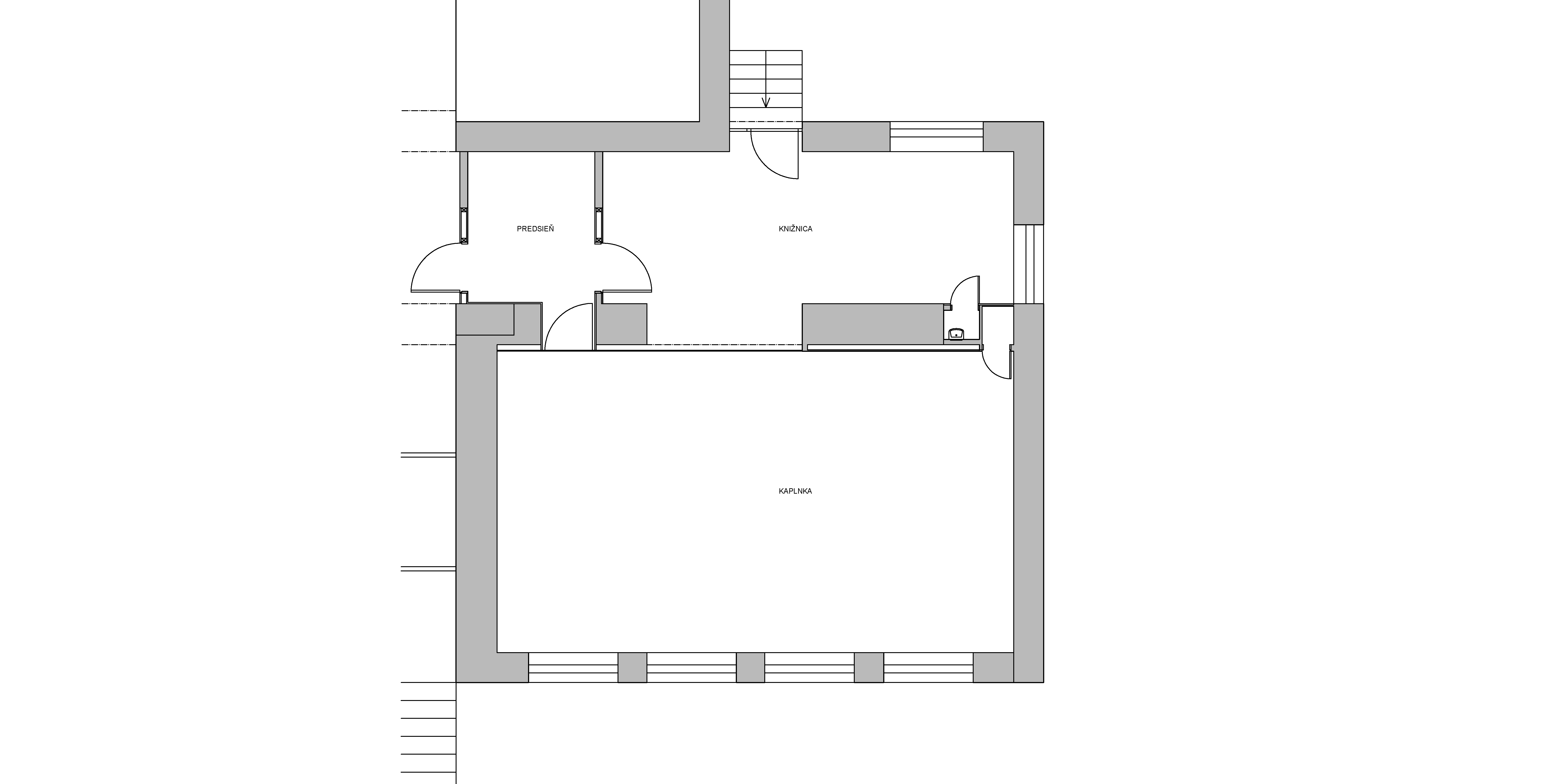
Pôdorys - návrh
Pôdorys - návrhAutor: Peter Kasman
Základna koncepcia parciálnych častí navrhovaného priestoru. Filozofia „štvorca“.
Základna koncepcia parciálnych častí navrhovaného priestoru. Filozofia „štvorca“.Autor: Peter Kasman
Sedenie v kaplnke je zostavené z modulárnych "kubusov"
Sedenie v kaplnke je zostavené z modulárnych "kubusov"Foto: Roman Kanich
Celkový pohľad do priestoru kaplnky.
Celkový pohľad do priestoru kaplnky.Foto: Roman Kanich
Detail mobiliáru zapadá do dizajnovej filozofie konceptu „štvorca“ .
Detail mobiliáru zapadá do dizajnovej filozofie konceptu „štvorca“ .Foto: Peter Kasman
Presvetlenie vstupnej predsiene. "Duch“ transcendentálneho priestoru.
Presvetlenie vstupnej predsiene. "Duch“ transcendentálneho priestoru.Foto: Peter Kasman
Pohľad do knižnice. Vpravo presklenie medzi kaplnkou a knižnicou. V budúcnosti priestor pre pulty individuálneho štúdia a počúvanie hudby.
Pohľad do knižnice. Vpravo presklenie medzi kaplnkou a knižnicou. V budúcnosti priestor pre pulty individuálneho štúdia a počúvanie hudby.Foto: Roman Kanich
Pohľad spoza pracovného stola.
Pohľad spoza pracovného stola.Foto: Roman Kanich
Prepojenie medzi knižnicou a precieňou.
Prepojenie medzi knižnicou a precieňou.Foto: Peter Kasman
Kotvenie presklenných dverí. Foto pred montážou dreveného obkladu stien.
Kotvenie presklenných dverí. Foto pred montážou dreveného obkladu stien.Foto: Peter Kasman

Podklady: Peter Kasman, treea

Poloha diela

Ing. arch. Peter Kasman
Mgr. art. Ladislava Repková, ArdD.

Súvisiace články

Vložené
11. december 2017
0
1224
Hlavný obsahHlavný obsah
Čakajte prosím