Advertorial

Pozvánka na 2. ročník stavebného veľtrhu BigMarket na Slovensku

Na podujatí sa predstaví až 37 vystavovateľov - popredných dodávateľov stavebných materiálov a inovácií s prezentáciou...

Hotel Hirschen Spa House, Rakúsko

Novotvar v prostredí alpskej obce.

Vytvorte si kúpeľňu snov: dizajnové riešenie od značky hansgrohe

Hansgrohe - prémiová značka kúpeľňových riešení, ponúka nadčasový dizajn, technickú precíznosť a udržateľné inovácie...

Okná Internorm za minuloročné ceny + hliníkový kryt zdarma!

Využite špeciálnu akciu Internorm: okná za minuloročné ceny a hliníkový kryt úplne zadarmo. Ponuka je časovo obmedzená!

Moderné plynové technológie: Efektivita a inovácie pre 21. storočie

Sumarizácia najdôležitejších inovácií, ktoré redefinujúcich využitie tohto energetického zdroja.

Utesňovanie spodných stavieb pomocou hydro-aktívnej fólie AMPHIBIA.

AMPHIBIA 3000 GRIP 1.3 od spoločnosti ATRO predstavuje modernú hydroizolačnú technológiu, ktorá spája vysokú odolnosť,...

Dekarbonizácia individuálneho vykurovania domácností – Green Deal evolučne a nie revolučne

Ambiciózne plány EK narazili na ekonomické možnosti domácností v jednotlivých členských štátoch –...

Minimalistické dvere IDEA – technická precíznosť a čistota prevedenia

IDEA DOOR od spoločnosti JAP prináša do interiéru čistý minimalistický vzhľad vďaka bezrámovému riešeniu a precíznej...

Dom s výhľadom na údolie, Dlouhý Most (ČR)

Kontinuita riešenia od vonkajšieho obkladu až po kovania a kľučky.

Schell Vitus – osvedčené riešenie pre sprchy a umývadlá vo verejnom sektore s viac ako desaťročnou tradíciou

Nástenné nadomietkové armatúry Vitus sú mimoriadne vhodné pre rýchlu a efektívnu...

Kompozitné okná predstavujú súčasnosť a budúcnosť

Okenné profily z kompozitného materiálu RAU-FIPRO X od spoločnosti Rehau sú v porovnaní s tradičnými plastovými profilmi mnohonásobne...

Myotis - stoly 2025

Najnovší sortiment stolov pre zariadenie interiérov...

Priemyselné sklenené priečky Dorsis Digero: svetelné rozhranie pre moderné interiéry

Spojenie moderného dizajnu, funkčnosti a svetla do harmonického architektonického prvku.

Význam prirodzeného svetla pre moderné a flexibilné pracovné prostredie

Kancelárska budova Baumit v slovinskom Trzine prešla premenou na moderné a udržateľné pracovisko. Architekti kládli dôraz...

Konferencia Xella Dialóg predstaví novinky a trendy v stavebníctve

Mottom šiesteho ročníku on-line konferencie odborníkov Xella Dialóg je Efektívny návrh budov 2025+: zmeny a riešenia

Revitalizácia bytu v Martine

Z trojizbového štvorizbový.
Diela
Red 303.09.2024
21060+46
Revitalizácia bytu v Martine
Autori: Ing. arch. Peter KasmanSpolupráca: David UhlárikPodlažná plocha: 70 m2Návrh: 2023 - 2023Realizácia: 2024 - 2024Adresa: Martin, SlovenskoPublikované: 3. september 2024

Projekt šitý na mieru potrebám mladej rodiny. Výraznú úpravu dispozície a výmenu inštalácií sprevádzalo zariadenie interiéru nábytkom na mieru podľa autorského návrhu.

 

Dielo bližšie predstaví sprievodný text architekta Petra Kasmana:

  1. Celková rekonštrukcia bytu s výmerou 70m²
  2. Architekt ako dizajnér, dodávateľ interiéru a stavebný dozor
  3. Zväčšenie počtu obytných miestností z 3 na 4
  4. Biodoska ako hlavný materiál rekonštrukcie
  5. Mozaika a terazzo
  6. Nové inštalácie, okná, dvere, podlahy, potery, strop

 

Lokalita
Neďaleko centra Martina, v pešej dostupnosti Fakultnej nemocnice a námestia, obytná štruktúra s nízkopodlažnými bytovými domami.

Celková rekonštrukcia bytu
Trojizbový byt na prízemí jednej z bytoviek má prejsť celkovou rekonštrukciou.

Prvé stretnutie (01/2023)
S investorom sa stretávame v zime 2023. Začíname prvé debaty o možných úpravách bytu na základe postupne definovaných priorít.

Z trojizbového štvorizbový
V máji máme odsúhlasenú štúdiu, na základe ktorej vzniká projekt interiéru pre nasledovné dodávateľské práce. Projekt okrem iného zahŕňa aj úplnu zmenu dispozície, presun kuchyne a jedálne a vytvorenie ďalšej obytnej izby (spálňa manželov).

Výber dodávateľov a projekt interiéru (08/2023)
Koncom leta sú vybraní dodávatelia a objednávajú sa prvé zabudované materiály (okná, dlažby, obklady, sanita, vstupné dvere...).

Začiatok prác (11/2023)
V novembri 2023 sa začína asanácia všetkých priečok, povrchov stien a podláh.

Nové inštalácie sietí (01/2024)
V zime 2023/2024 sa vyhotovia všetky inštalácie, nové vedenie elektriky, vodovodu, kanalizácie, vzduchotechniky, vytvorila sa nová konštrukcia sadrokartónového stropu. Vo februári sa ukončujú všetky pohľadové práce - obklady, dlažby, omietky s náterom, nivelizácia podláh, osadenie zásuviek, vypínačov.

Nábytok na mieru (03/2024)
Medzitým sa dokončuje v dielni nábytok na mieru, ktorý sa postupne s finalizáciou stavebných úprav začína montovať. V apríli sa dokončujú všetky dvere a obklady z biodosky, montáž svetlíkov, vinylovej podlahy.

Dokončenie bytu a sťahovanie (05/2024)
Po umiestnení posledných nábytkov rodinka začína v máji 2024 bývať... vlastne v úplne novom byte, novom domove, kde ma každý svoje miesto...

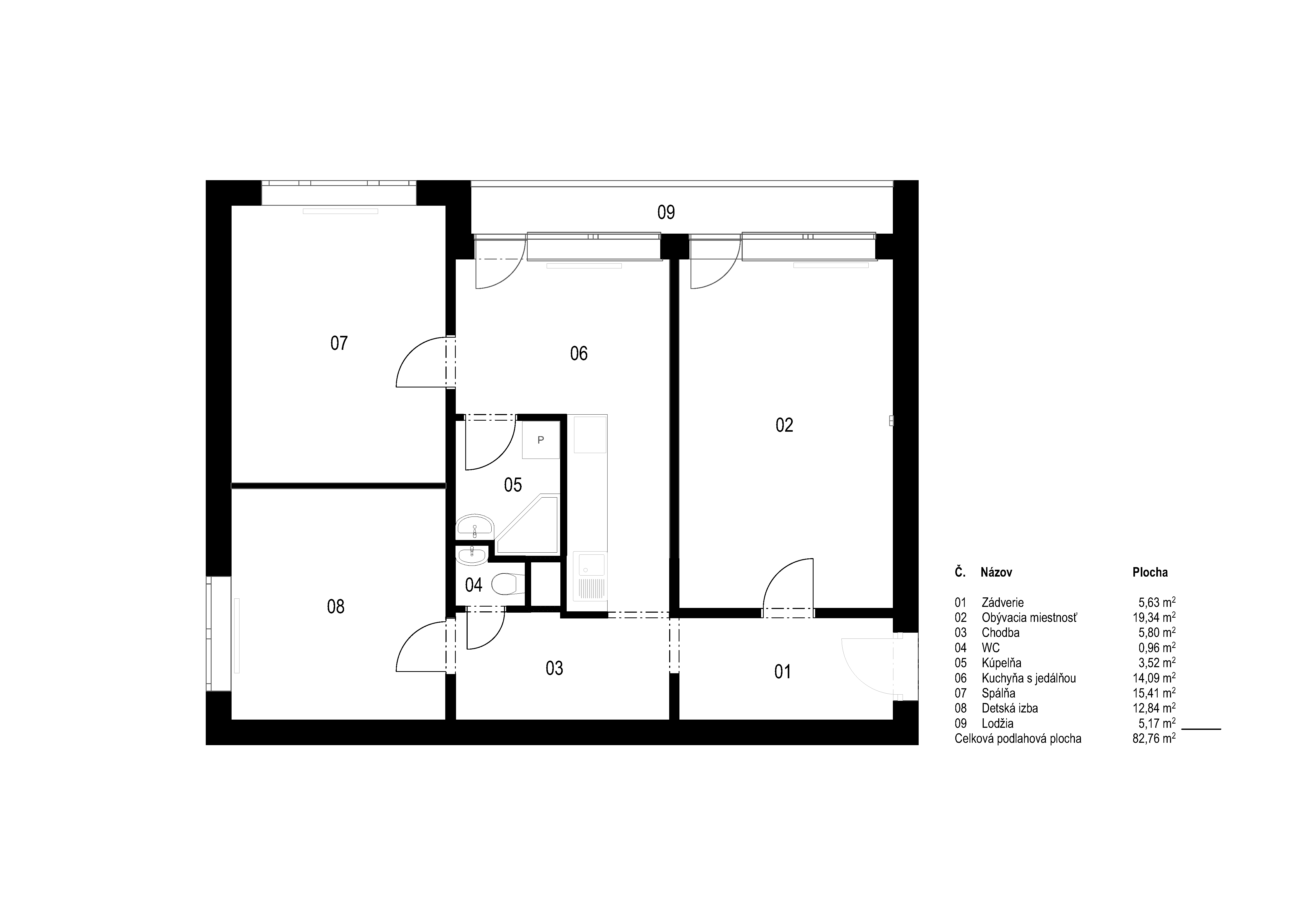
Pôdorys - pôvodný stav
Pôdorys - pôvodný stavAutor: Peter Kasman - treea
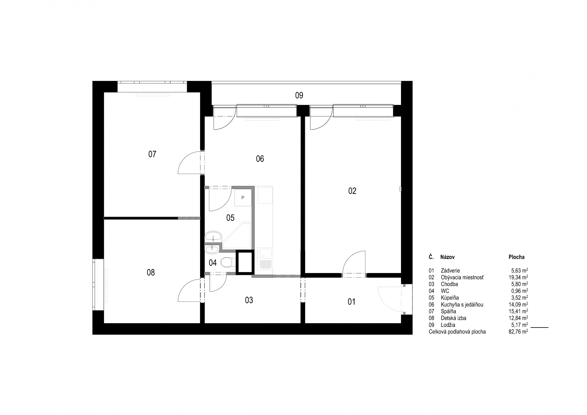
Pôdorys - búracie práce
Pôdorys - búracie práceAutor: Peter Kasman - treea
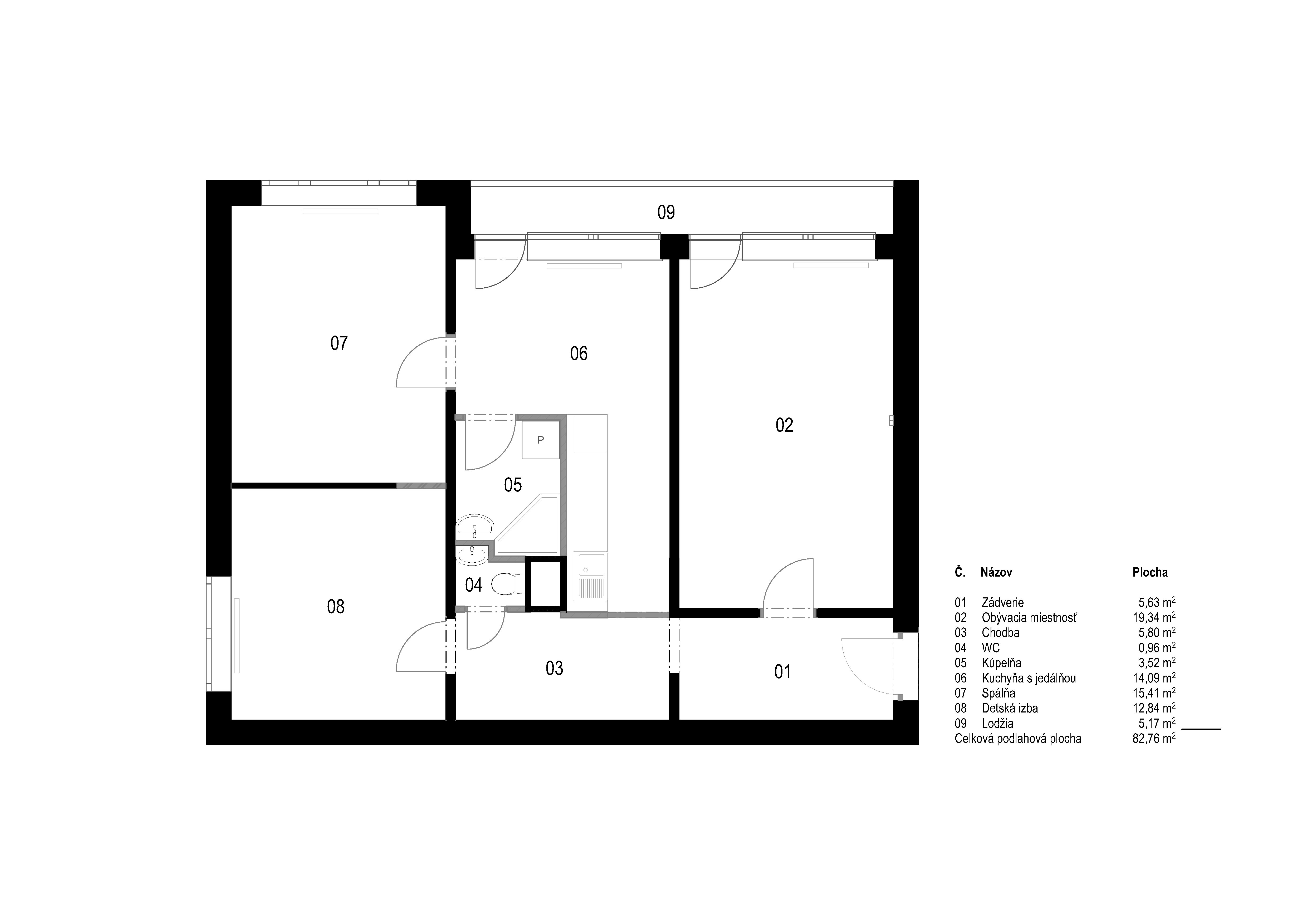
Pôdorys - nový stav
Pôdorys - nový stavAutor: Peter Kasman - treea

Fotografie pôvodného stavu a z procesu realizácie:

Podklady: Peter Kasman - treea

Poloha diela

Ing. arch. Peter Kasman
Vložené
30. august 2024
0
2106
Hlavný obsahHlavný obsah
Čakajte prosím