Advertorial

Hotel Hirschen Spa House, Rakúsko

Novotvar v prostredí alpskej obce.

Vytvorte si kúpeľňu snov: dizajnové riešenie od značky hansgrohe

Hansgrohe - prémiová značka kúpeľňových riešení, ponúka nadčasový dizajn, technickú precíznosť a udržateľné inovácie...

Okná Internorm za minuloročné ceny + hliníkový kryt zdarma!

Využite špeciálnu akciu Internorm: okná za minuloročné ceny a hliníkový kryt úplne zadarmo. Ponuka je časovo obmedzená!

Pozvánka na 2. ročník stavebného veľtrhu BigMarket na Slovensku

Na podujatí sa predstaví až 37 vystavovateľov - popredných dodávateľov stavebných materiálov a inovácií s prezentáciou...

Moderné plynové technológie: Efektivita a inovácie pre 21. storočie

Sumarizácia najdôležitejších inovácií, ktoré redefinujúcich využitie tohto energetického zdroja.

Utesňovanie spodných stavieb pomocou hydro-aktívnej fólie AMPHIBIA.

AMPHIBIA 3000 GRIP 1.3 od spoločnosti ATRO predstavuje modernú hydroizolačnú technológiu, ktorá spája vysokú odolnosť,...

Dekarbonizácia individuálneho vykurovania domácností – Green Deal evolučne a nie revolučne

Ambiciózne plány EK narazili na ekonomické možnosti domácností v jednotlivých členských štátoch –...

Minimalistické dvere IDEA – technická precíznosť a čistota prevedenia

IDEA DOOR od spoločnosti JAP prináša do interiéru čistý minimalistický vzhľad vďaka bezrámovému riešeniu a precíznej...

Dom s výhľadom na údolie, Dlouhý Most (ČR)

Kontinuita riešenia od vonkajšieho obkladu až po kovania a kľučky.

Schell Vitus – osvedčené riešenie pre sprchy a umývadlá vo verejnom sektore s viac ako desaťročnou tradíciou

Nástenné nadomietkové armatúry Vitus sú mimoriadne vhodné pre rýchlu a efektívnu...

Kompozitné okná predstavujú súčasnosť a budúcnosť

Okenné profily z kompozitného materiálu RAU-FIPRO X od spoločnosti Rehau sú v porovnaní s tradičnými plastovými profilmi mnohonásobne...

Myotis - stoly 2025

Najnovší sortiment stolov pre zariadenie interiérov...

Priemyselné sklenené priečky Dorsis Digero: svetelné rozhranie pre moderné interiéry

Spojenie moderného dizajnu, funkčnosti a svetla do harmonického architektonického prvku.

Význam prirodzeného svetla pre moderné a flexibilné pracovné prostredie

Kancelárska budova Baumit v slovinskom Trzine prešla premenou na moderné a udržateľné pracovisko. Architekti kládli dôraz...

Konferencia Xella Dialóg predstaví novinky a trendy v stavebníctve

Mottom šiesteho ročníku on-line konferencie odborníkov Xella Dialóg je Efektívny návrh budov 2025+: zmeny a riešenia

Dvojdom pod Tatrami, Liptovský Mikuláš

Dve odlišné zadania, spojené v jednom fungujúcom celku.
Diela
Red 329.11.2022
43190+73
Dvojdom pod Tatrami, Liptovský Mikuláš
Autori: Ing. arch. Gabriela Kossuthová - Rezníková, Ing. arch. Martin RezníkZastavaná plocha: 310 m2Obostavaný objem: 1 235 m3Návrh: 2013 - 2014Realizácia: 2014 - 2021Adresa: Liptovský Mikuláš, SlovenskoPublikované: 29. november 2022

Dom na okraji Liptovského Mikuláša vznikol z potreby vyriešiť bývanie rozrastajúcich sa mladých rodín architektov. Bývanie tvoria dva samostatné celky, ktoré sú navrhnuté s dôrazom na súkromie. Majú samostatné vstupy, rôznu veľkosť aj dispozičné riešenie. Pomerne členitý pôdorys vznikol spojením blokov s pôdorysnou stopou “U” a “L”. Obe rodiny si užívajú svoj segment záhrady a prirodzené svetlo zo všetkých svetových strán. 

Na fotografiách Tomáša Maninu je zachytené bývanie rodiny architektky / autorky.

Foto: Tomáš Manina
Foto: Tomáš Manina

Medzi priority pri návrhu prízemného domu patril dôraz na prepojenie bývania s exteriérom, nenáročnú prevádzku a údržbu, optimalizáciu celkových nákladov a v neposlednom rade dostatočnú mieru súkromia pre dve samostatné rodiny.

Vzhľadom na spomínané východiská zvolili architekti pre stavbu klasickú murovanú konštrukciu, kombinovanú s drevenými trámovými stropmi, a viacerými zaujímavými detailmi. Medzi ne patria napríklad obrátené nosníky, ktoré umožnili realizovať zasklenie na celú výšku priestoru. Interiér dennej časti domu architektov je preto vďaka južnej celopresklennej fasáde zaplavený denným svetlom. Fasádu v lete tienia manuálne ovládané slnečné clony, ktoré presahujú nad drevené terasy. Priestory obývacej izby a kúpeľne sú kvôli zachovaniu súkromia oboch rodín presvetlené cez strešné svetlíky. 

Foto: Tomáš Manina
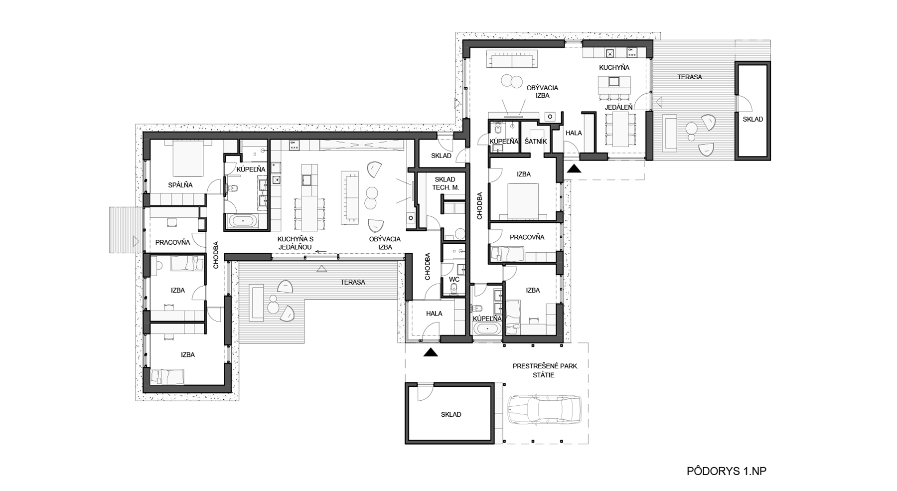
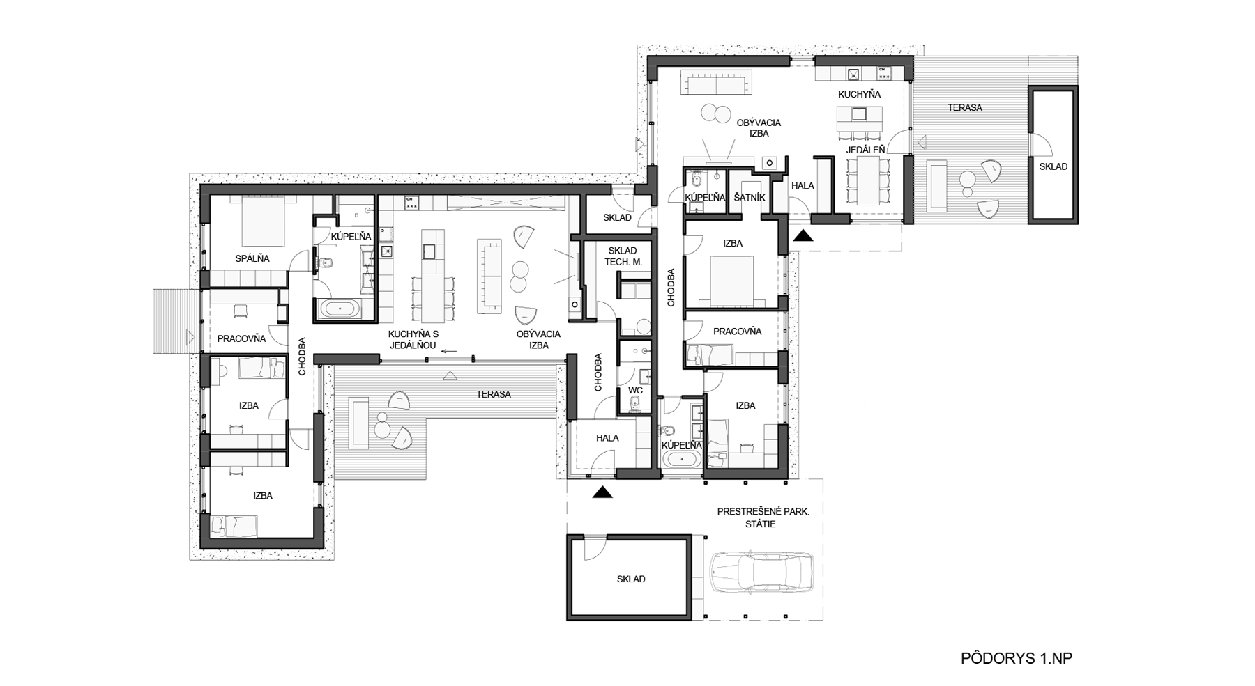
Situácia
Situácia

Dvojdom obsahuje dve bytové jednotky:

Byt s pôdorysom “U”: prístrešok pre auto, zádverie, chodba, sklad-technickú miestnosť, WC so sprchou, obývacia izba s kuchyňou jedálňou, kúpeľňou, spálňa rodičov, chodba, joga miestnosť, dve detské izby a vonkajšia terasa.

  • Počet osôb: 5
  • Zastavaná plocha: 187,00 m2
  • Úžitková plocha: 158,60 m2
  • Obytná plocha: 98,20 m2
  • Obostavaný priestor: 710,60 m3

Byt s pôdorysom “L”: zádverie, chodba, sklad-technickú miestnosť, WC so sprchou, obývacia izba s kuchyňou jedálňou, kúpeľňou, spálňa rodičov, chodba, dve detské izby a vonkajšia terasa.

  • Počet osôb: 4
  • Zastavaná plocha:138,00 m2
  • Úžitková plocha:116,85 m2
  • Obytná plocha: 83,45 m2
  • Obostavaný priestor: 524,40 m3
Pôdorys
Pôdorys

Technické riešenia, realizované s ohľadom na obmedzený rozpočet umožnili dosiahnuť nízkoenergetický štandard stavby. Systém núteného vetrania s rekuperáciou dopĺňa v dennej zóne klimatizačná jednotka pre chladenie priestoru počas najteplejších dní v roku. Ako zdroj pre teplovodné podlahové kúrenie slúži elektrický kotol. Dennú časť domu je možné dokúriť teplovzdušným krbom.

Pohľady
Pohľady
Pohľady
Pohľady
Schematický rez
Schematický rez

Exteriér a záhradu zrealizovali architekti vo vlastnej réžii. V lete nechýba ani zelenina v záhonoch. Zeleň vstupuje aj do interiéru, kde nájdeme množstvo rastlín, napríklad doma vypestované avokádovníky.

Foto: Tomáš Manina
Foto: Tomáš Manina
Foto: Tomáš Manina
Foto: Tomáš Manina

Interiéru dennej časti dominuje drevená konštrukcia stropov, tvorená lepenými smrekovými nosníkmi. Drevo je citlivo ošetrené bielidlom a olejom tak, aby nepodliehalo oxidácii a farebným zmenám. Stropy sú v ďalšej vrstve tvorené záklopom z osb dosiek a ukončené plochou strechou s PVC fóliou. Tmavé hliníkové profily odsadzujú plochy výplní s izolačným trojsklom od hmoty domu s jemnou farebnosťou.

Smrekové nosníky, použité ako pohľadový prvok, definovali paletu ďalších materiálov v interiéri. Borovicovú preglejku, upravenú bielidlom a olejom tak, aby vynikla fládrová kresba dreva, dopĺňa v menšej miere biodoska napustená prírodným olejom. Kontrast tvoria interiérové dvere z čierno morenej preglejky. Materiálovú paletu dotvára podlaha zo sibírskeho smrekovca. 

Foto: Tomáš Manina
Foto: Tomáš Manina

Pekným detailom je rovnomerná škára, lemujúca podlahy aj stropy v celom interiéri. Všetky obklady aj prvky zariadenia dodržujú rovnaký detail a steny sú ukončené bez použitia líšt. Precízny stavebný interiér vytvára priestor pre bežne meniteľný mobiliár.

 

Foto: Tomáš Manina

Do vstupnej zóny domu, hosťovského WC a technickej miestnosti, ktorá je zároveň aj práčovňou, sušiarňou, šatníkom, skladom a špajzou zvolili architekti betónovú liatu podlahu. 

Foto: Tomáš Manina
Foto: Tomáš Manina
Foto: Tomáš Manina
Foto: Tomáš Manina

Vďaka spomínanému systému vetrania s rekuperáciou sa nebáli architekti navrhnúť drevenú podlahu aj v hlavnej kúpeľni. Biely veľkoformátový obklad stien necháva vyniknúť práve spomínanú textúru prírodného dreva. Smaltovanú vaňu a sprchové vaničky architekti detailne zapracovali do stavebnej konštrukcie. Kúpeľňové dosky boli vyrobené zo zvyškov podlahových lamiel.

Foto: Tomáš Manina
Foto: Tomáš Manina
Foto: Tomáš Manina
Foto: Tomáš Manina
Foto: Tomáš Manina
Foto: Tomáš Manina
Foto: Tomáš Manina
Foto: Tomáš Manina
Foto: Tomáš Manina
Foto: Tomáš Manina
Foto: Tomáš Manina

Fotografie: Tomáš Manina

Použité materiály a riešenia:
Murovacie materiály od spoločnosti XELLA
- obvodové murivo Ytong-Lambda
- pórobetónové interiérové priečky Ytong

Poloha diela

Ing. arch. Gabriela Kossuthová - Rezníková
Ing. arch. Martin Rezník

Súvisiace články

Vložené
23. november 2022
0
4319
Hlavný obsahHlavný obsah
Čakajte prosím