Novotvar v prostredí alpskej obce.
Hansgrohe - prémiová značka kúpeľňových riešení, ponúka nadčasový dizajn, technickú precíznosť a udržateľné inovácie...
Využite špeciálnu akciu Internorm: okná za minuloročné ceny a hliníkový kryt úplne zadarmo. Ponuka je časovo obmedzená!
Na podujatí sa predstaví až 37 vystavovateľov - popredných dodávateľov stavebných materiálov a inovácií s prezentáciou...
Sumarizácia najdôležitejších inovácií, ktoré redefinujúcich využitie tohto energetického zdroja.
AMPHIBIA 3000 GRIP 1.3 od spoločnosti ATRO predstavuje modernú hydroizolačnú technológiu, ktorá spája vysokú odolnosť,...
Ambiciózne plány EK narazili na ekonomické možnosti domácností v jednotlivých členských štátoch –...
IDEA DOOR od spoločnosti JAP prináša do interiéru čistý minimalistický vzhľad vďaka bezrámovému riešeniu a precíznej...
Kontinuita riešenia od vonkajšieho obkladu až po kovania a kľučky.
Nástenné nadomietkové armatúry Vitus sú mimoriadne vhodné pre rýchlu a efektívnu...
Okenné profily z kompozitného materiálu RAU-FIPRO X od spoločnosti Rehau sú v porovnaní s tradičnými plastovými profilmi mnohonásobne...
Najnovší sortiment stolov pre zariadenie interiérov...
Spojenie moderného dizajnu, funkčnosti a svetla do harmonického architektonického prvku.
Kancelárska budova Baumit v slovinskom Trzine prešla premenou na moderné a udržateľné pracovisko. Architekti kládli dôraz...
Mottom šiesteho ročníku on-line konferencie odborníkov Xella Dialóg je Efektívny návrh budov 2025+: zmeny a riešenia
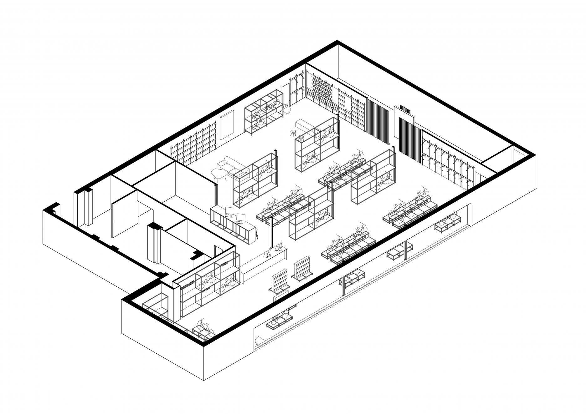
Predajňa so širokým sortimentom bickylov a elektrobicyklov sa nachádza v prízemnom objekte sídliskovej občianskej vybavenosti, ktorý tvorí prvú líniu zástavby pozdĺž hlavného cestného ťahu Žilina - Poprad.
Typový objekt na frekventovanej mestskej triede vytvoril vhodné východiská pre novú prevádzku.
Predajňa JOYRIDE vo veľkej miere využíva stavebný základ pôvodného priestoru, pričom došlo ku kompletnej výmene rozvodov technickej infraštruktúry. Medzi zmeny viditeľné na prvý pohľad však patrí nová hliníková fasáda so zníženým parapetom, ktorá spolu s novou vrstvou PUR panelov prispela k výraznému zníženiu tepelných strát.
Koncept interiéru je možné vnímať už cez rozmerný presklený výklad. Farebne zjednotený a otvorený priestor upriamuje pozornosť zákazníka na vystavené produkty a ponecháva mu voľnosť pri ich vnímaní. Dôležitú úlohu pritom zohráva aj subtílny oceľový skelet stavby.
Autori sa vyhýbajú banálnym podhľadom a neboja sa odhalených konštrukcií oceľových priehradových nosníkov a trapézového plechu. Priestor doplnila nová technická podlaha z lešteného betónu. Všetky nové vertikálne konštrukcie tvoria sendvičové PUR panely. Na ich hladký povrch aplikovali architekti rôzne polepy. Od čiernej fólie, až po plnofarebnú grafiku s bike tematikou. Tvrdý industriálny výraz lokálne zjemňuje vertikálny rombusový obklad z bielenej biodosky.
“Investor nechcel nič vážne, strohé, ´vydizajnované´. Interiér predajne ide ruka v ruke s konceptom JOYRIDE - Ride, smile, enjoy. Jednoducho sa tešiť zo života, zo športu, z prítomného momentu,” dopĺňa architektka Gabriela Kossuthová - Rezníková.
Shop systém predajne dodala firma Specialized. Jednotlivé výstavné prvky tvorí jednoduchá konštrukcia z jahklových profilov. Bud vo forme pódií/platforiem, alebo “klietok” pre prezentované bicykle.
Základný systém osvetlenia vytvárajú línie neónových trubíc na tiahlach zavetrenia priehradových nosníkov. Vystavené bicykle akcentujú bodové výbojkové svietidlá. Nad predajným pultom visia čierne lampy.
Súčasť predajne tvorí lounge zóna, kde si vie klient počas nákupu a konzultácie vychutnať kávu. Na hlavnú odbytovú časť nadväzujú potrebné plochy zázemia a skladových priestorov. Ich súčasťou sú prezliekacie kabínky, alebo servisné centrum bicyklov.

Podklady: Architekti.sk
Fotografie: Tomáš Manina