Advertorial

Pozvánka na 2. ročník stavebného veľtrhu BigMarket na Slovensku

Na podujatí sa predstaví až 37 vystavovateľov - popredných dodávateľov stavebných materiálov a inovácií s prezentáciou...

Hotel Hirschen Spa House, Rakúsko

Novotvar v prostredí alpskej obce.

Vytvorte si kúpeľňu snov: dizajnové riešenie od značky hansgrohe

Hansgrohe - prémiová značka kúpeľňových riešení, ponúka nadčasový dizajn, technickú precíznosť a udržateľné inovácie...

Okná Internorm za minuloročné ceny + hliníkový kryt zdarma!

Využite špeciálnu akciu Internorm: okná za minuloročné ceny a hliníkový kryt úplne zadarmo. Ponuka je časovo obmedzená!

Moderné plynové technológie: Efektivita a inovácie pre 21. storočie

Sumarizácia najdôležitejších inovácií, ktoré redefinujúcich využitie tohto energetického zdroja.

Utesňovanie spodných stavieb pomocou hydro-aktívnej fólie AMPHIBIA.

AMPHIBIA 3000 GRIP 1.3 od spoločnosti ATRO predstavuje modernú hydroizolačnú technológiu, ktorá spája vysokú odolnosť,...

Dekarbonizácia individuálneho vykurovania domácností – Green Deal evolučne a nie revolučne

Ambiciózne plány EK narazili na ekonomické možnosti domácností v jednotlivých členských štátoch –...

Minimalistické dvere IDEA – technická precíznosť a čistota prevedenia

IDEA DOOR od spoločnosti JAP prináša do interiéru čistý minimalistický vzhľad vďaka bezrámovému riešeniu a precíznej...

Dom s výhľadom na údolie, Dlouhý Most (ČR)

Kontinuita riešenia od vonkajšieho obkladu až po kovania a kľučky.

Schell Vitus – osvedčené riešenie pre sprchy a umývadlá vo verejnom sektore s viac ako desaťročnou tradíciou

Nástenné nadomietkové armatúry Vitus sú mimoriadne vhodné pre rýchlu a efektívnu...

Kompozitné okná predstavujú súčasnosť a budúcnosť

Okenné profily z kompozitného materiálu RAU-FIPRO X od spoločnosti Rehau sú v porovnaní s tradičnými plastovými profilmi mnohonásobne...

Myotis - stoly 2025

Najnovší sortiment stolov pre zariadenie interiérov...

Priemyselné sklenené priečky Dorsis Digero: svetelné rozhranie pre moderné interiéry

Spojenie moderného dizajnu, funkčnosti a svetla do harmonického architektonického prvku.

Význam prirodzeného svetla pre moderné a flexibilné pracovné prostredie

Kancelárska budova Baumit v slovinskom Trzine prešla premenou na moderné a udržateľné pracovisko. Architekti kládli dôraz...

Konferencia Xella Dialóg predstaví novinky a trendy v stavebníctve

Mottom šiesteho ročníku on-line konferencie odborníkov Xella Dialóg je Efektívny návrh budov 2025+: zmeny a riešenia

Obnova vily Münz

S potešením predstavujeme príklad opodstatnenej radikálnej obnovy modernej architektúry. Počin ktorý môže príkladom pre mnohé stavby, investorov a architektov nielen na Morave, ale i v Čechách a na Slovensku.
Diela
Red 315.03.2016
39440+26
Obnova vily Münz
Autori: Tomáš Rusín, Kristýna Shromáždilová, David Šrom, Ivan WahlaPlocha pozemku: 4250m2Zastavaná plocha: 595m2Podlažná plocha: 1000m2Obostavaný objem: 3400m3Návrh: 2010 - 2014Realizácia: 2012 - 2014Adresa: Hroznová 19, Brno , Česká republikaPublikované: 15. marec 2016

Vila pre riaditeľa Českej banky Union Eduarda Münza bola prvá z domov na Pisáreckom úbočí v Brne, ktoré navrhol Ernst Wiesner pre zámožných židovských objednávateľov. Architekt so slovenskými koreňmi sa neskôr stal je jeden z najvýznamnejších brnianskych architektov medzivojnového obdobia. Vila Münz bola postavená v priebehu rokov 1924-1926. Už na tejto stavbe Wiesner použil pre neho typické rozdelenie dispozície domu na dve krídla s rozdielnou funkčnou náplňou. Po smrti Eduarda Münza v roku 1940 a deportovaní jeho manželky vilu prevzal Vysťahovalecký fond pro Čechy a Moravu. Po vojne bola vila znárodnená. V 80. rokoch ju poznamenali necitlivé opravy, ktoré ju premenili na sídlo Poľnohospodárskych stavieb. Radikálne úpravy zabránili aj tomu, aby bola stavba neskôr vyhlásená pamiatkou.

Foto: David Židlický
Vila krátko po dokončení, v roku 1925
Vila krátko po dokončení, v roku 1925zdroj: PROAM ARCHITEKTI
Vila - stav pred obnovou v roku 2009
Vila - stav pred obnovou v roku 2009zdroj: PROAM ARCHITEKTI

Cieľom návrhu obnovy vily Münz nebolo zakonzervovať stav z doby dokončenia vily v roku 1928, ale navodiť situáciu, ktorá by nastala, ak by bola zachovaná kontinuita rodinného bývania počas celej jej existencie. Dom bol v priebehu rokov takmer úplne prestavaný a prišiel o väčšinu autentických prvkov a o kompletný interiér. Na začiatku rekonštrukcie v roku 2012 sa navyše ukázalo, že statické vlastnosti existujúcej konštrukcie sú v havarijnom stave. Z tohto dôvodu bolo prijaté rozhodnutie o demolácii vily a o jej opätovnom vystavaní od základov. Stavebná časť bola realizovaná so snahou o maximálnu zhodu s pôvodným domom. V tomto zmysle bolo možné porovnávať nový stav s pôvodným realizačným projektom z roku 1925 a so zachovanými fotografiami z doby pred druhou svetovou vojnou. Bolo prirodzené, že zostanú zachované všetky autentické prvky, pretože ich zostalo len niekoľko. K najdôležitejším patrilo pôvodné okno z hudobnej izby, oceľová okenná konštrukcia zimnej záhrady, zvislé pásové oceľové okno na schodisku, drevená garážová brána a vstupné dvere bočného vstupu. Všetky tieto prvky boli starostlivo reštaurované a osadené v novej stavbe na pôvodné miesto. Pri stavebných prvkoch, ktoré sa nezachovali na stavbe ani vo výkresoch a fotografiách autori hľadali analógie v iných Wiesnerových stavbách z rovnakého obdobia - v budove Moravskej zemskej poisťovne a Českej banky Union. Zdrojom inšpirácie pre riešenie mnohých detailov boli predovšetkým vily Stein, Stiassny, Neumark a Haas, hoci dve posledné boli zrealizované o niekoľko rokov neskôr. Z týchto víl bolo odvodené riešenie dverí, okien, zábradlia, podláh, vstavaných skríň, mreží a mnohých ďalších detailov. 

Foto: David Židlický
Foto: David Židlický
Foto: David Židlický
Foto: David Židlický
Foto: David Židlický
Foto: David Židlický

Architekti sa snažili o funkčnú obnovu priestorov v pôvodných proporciách a zachovanie ich pôvodnej funkcie. Išlo predovšetkým o jedáleň, prijímací salón, pracovňu a hudobný salón. Ťažšou úlohou bolo navrhnutie vstavaného interiéru pevne spojeného so stavbou. Tu sa nebolo možné oprieť sa pri navrhovaní o dochovanú predlohu. Navyše vila Münz bola jednou z prvých puristických Wiesnerových stavieb, ktorá však mala ešte mnohé dekoratívne pozostatky z predchádzajúcich foriem, ako napríklad ozdobné stropné fabióny /zaoblený prechod medzi stropom a zvislou stenou/.

Pôvodné pôdorysy a rez vily od  Ernsta Wiesnera
Pôvodné pôdorysy a rez vily od Ernsta Wiesnerazdroj: Brněnský architektonický manuál
Pôdorys 1PP po obnove
Pôdorys 1PP po obnove
Pôdorys 1NP po obnove
Pôdorys 1NP po obnove
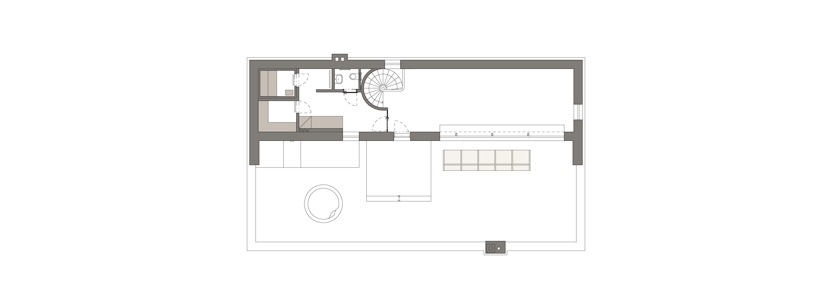
Pôdorys 2PP po obnove
Pôdorys 2PP po obnove
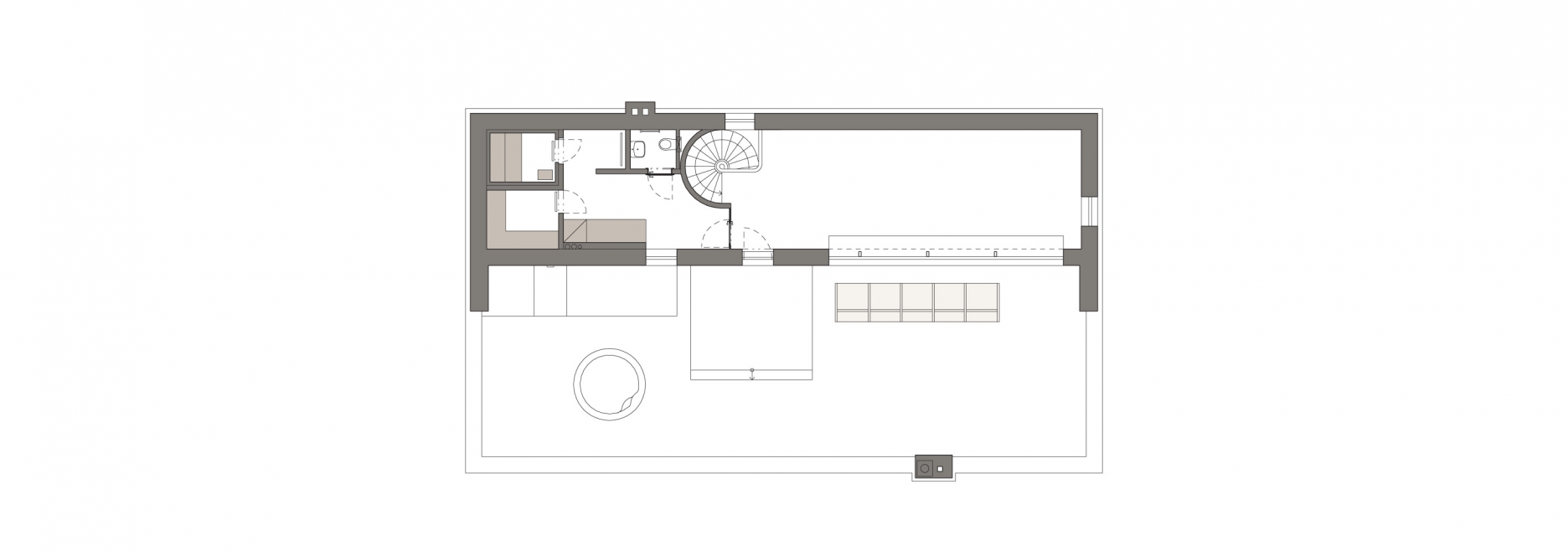
Pôdorys 3PP po obnove
Pôdorys 3PP po obnove
Pohľad južný
Pohľad južný
Pohľad severný
Pohľad severný
Pohľad východný
Pohľad východný
Pohľad západný
Pohľad západný

Je veľmi pravdepodobné, že pôvodný návrh a realizácia boli v rozsahu vstavaného nábytku a obkladov pomerne strohé. Nové riešenie hľadalo v tejto oblasti skôr predlohu v materiálovo bohatých interiéroch Adolfa Loosa než priamo u Wiesnera. Snahou bolo pri návrhoch vstavaného mobiliára evokovať predovšetkým dobu vzniku stavby. Aby sa však nešlo o bezcennú kópiu, boli dôsledne zachované dobové remeselné postupy a pôvodné materiálové riešenia. Hlavné obytné poschodie je rovnako ako u ostatných víl reprezentatívne, realizované so snahou o maximálne zachytenie pôvodného charakteru, v spodnom a horných poschodiach sa snaha o pôvodný charakter domu oslabuje. Napríklad vinotéka je moderne poňatým priestorom. Pri voľne stojacom nábytku sa architekti pokúsili o dobový mix jednotlivých prvkov od repasovaných originálov z 20. a 30. rokov 20. storočia až po súčasnú produkciu popredných svetových nábytkových firiem a návrhárov. Obdobne časovo komponovaná je tiež kolekcia výtvarných diel, ktoré interiér dotvárajú.

Foto: David Židlický
Foto: David Židlický
Foto: David Židlický
Foto: David Židlický
Foto: David Židlický
Foto: David Židlický
Foto: David Židlický
Foto: David Židlický
Foto: David Židlický
Foto: David Židlický
Foto: David Židlický
Foto: David Židlický
Foto: David Židlický

Podklady: PROAM ARCHITEKTI a RAW

Poloha diela

Tomáš Rusín
Kristýna Shromáždilová
David Šrom
Ivan Wahla
Vložené
5. marec 2016
0
3944
Hlavný obsahHlavný obsah
Čakajte prosím