Na podujatí sa predstaví až 37 vystavovateľov - popredných dodávateľov stavebných materiálov a inovácií s prezentáciou...
Novotvar v prostredí alpskej obce.
Hansgrohe - prémiová značka kúpeľňových riešení, ponúka nadčasový dizajn, technickú precíznosť a udržateľné inovácie...
Využite špeciálnu akciu Internorm: okná za minuloročné ceny a hliníkový kryt úplne zadarmo. Ponuka je časovo obmedzená!
Sumarizácia najdôležitejších inovácií, ktoré redefinujúcich využitie tohto energetického zdroja.
AMPHIBIA 3000 GRIP 1.3 od spoločnosti ATRO predstavuje modernú hydroizolačnú technológiu, ktorá spája vysokú odolnosť,...
Ambiciózne plány EK narazili na ekonomické možnosti domácností v jednotlivých členských štátoch –...
IDEA DOOR od spoločnosti JAP prináša do interiéru čistý minimalistický vzhľad vďaka bezrámovému riešeniu a precíznej...
Kontinuita riešenia od vonkajšieho obkladu až po kovania a kľučky.
Nástenné nadomietkové armatúry Vitus sú mimoriadne vhodné pre rýchlu a efektívnu...
Okenné profily z kompozitného materiálu RAU-FIPRO X od spoločnosti Rehau sú v porovnaní s tradičnými plastovými profilmi mnohonásobne...
Najnovší sortiment stolov pre zariadenie interiérov...
Spojenie moderného dizajnu, funkčnosti a svetla do harmonického architektonického prvku.
Kancelárska budova Baumit v slovinskom Trzine prešla premenou na moderné a udržateľné pracovisko. Architekti kládli dôraz...
Mottom šiesteho ročníku on-line konferencie odborníkov Xella Dialóg je Efektívny návrh budov 2025+: zmeny a riešenia

Študenti študijného programu Pozemné stavby a architektúra (PSA), pod vedením pedagógov Katedry architektúry, dosiahli významné ocenenia v medzinárodných a domácich študentských súťažiach ktorými prispeli ku propagácii a zviditeľneniu nielen samotného študijného programu PSA ale aj Stavebnej fakulty STU v Bratislave.
Výstava sa konala počas apríla v Galérii architektúry Spolku architektov Slovenska v rámci vedeckej konferencie Nová doba, nový svet.
Predstavujeme ocenené práce:
Obytný súbor Three sisters - 2. miesto v národnom kole súťaže isover Multi - Comfort House Student Contest
Autori: Bc. Roman Ruhig, Bc. Ema Kiabová
Vedúci práce: Ing. arch. Pavel Paňák
Akademický rok 2014/2015
Študijný program: I-PSA/I.
Predmet: Ateliérová tvorba VI
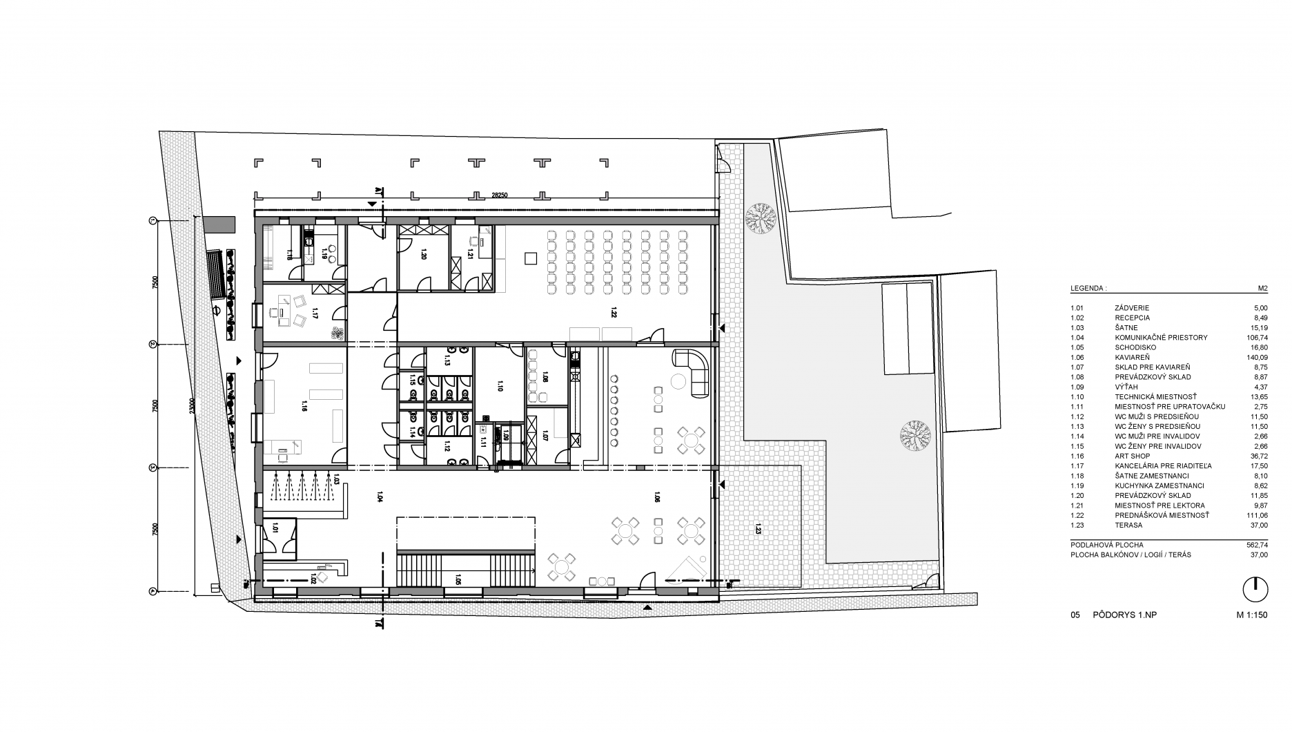
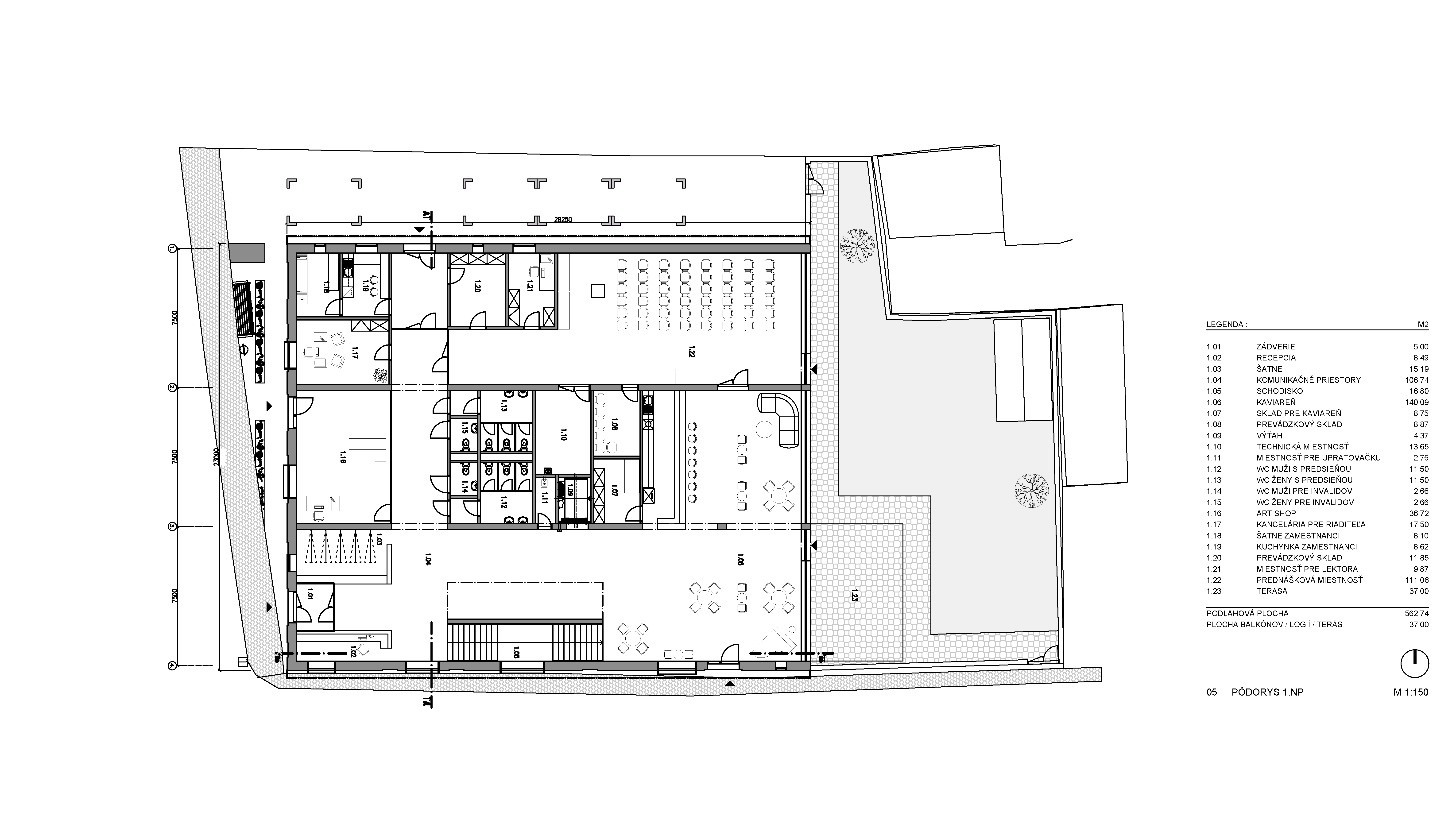
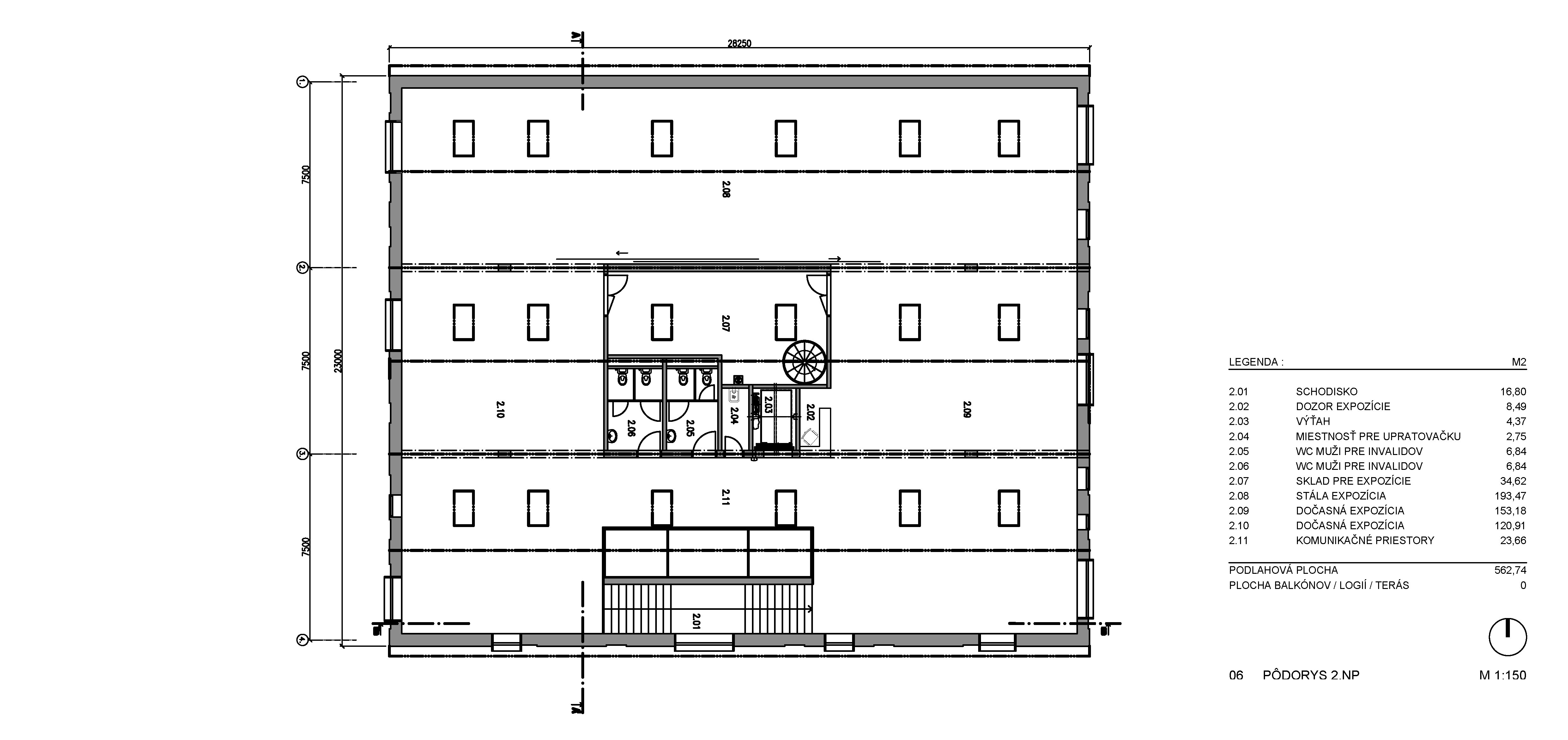
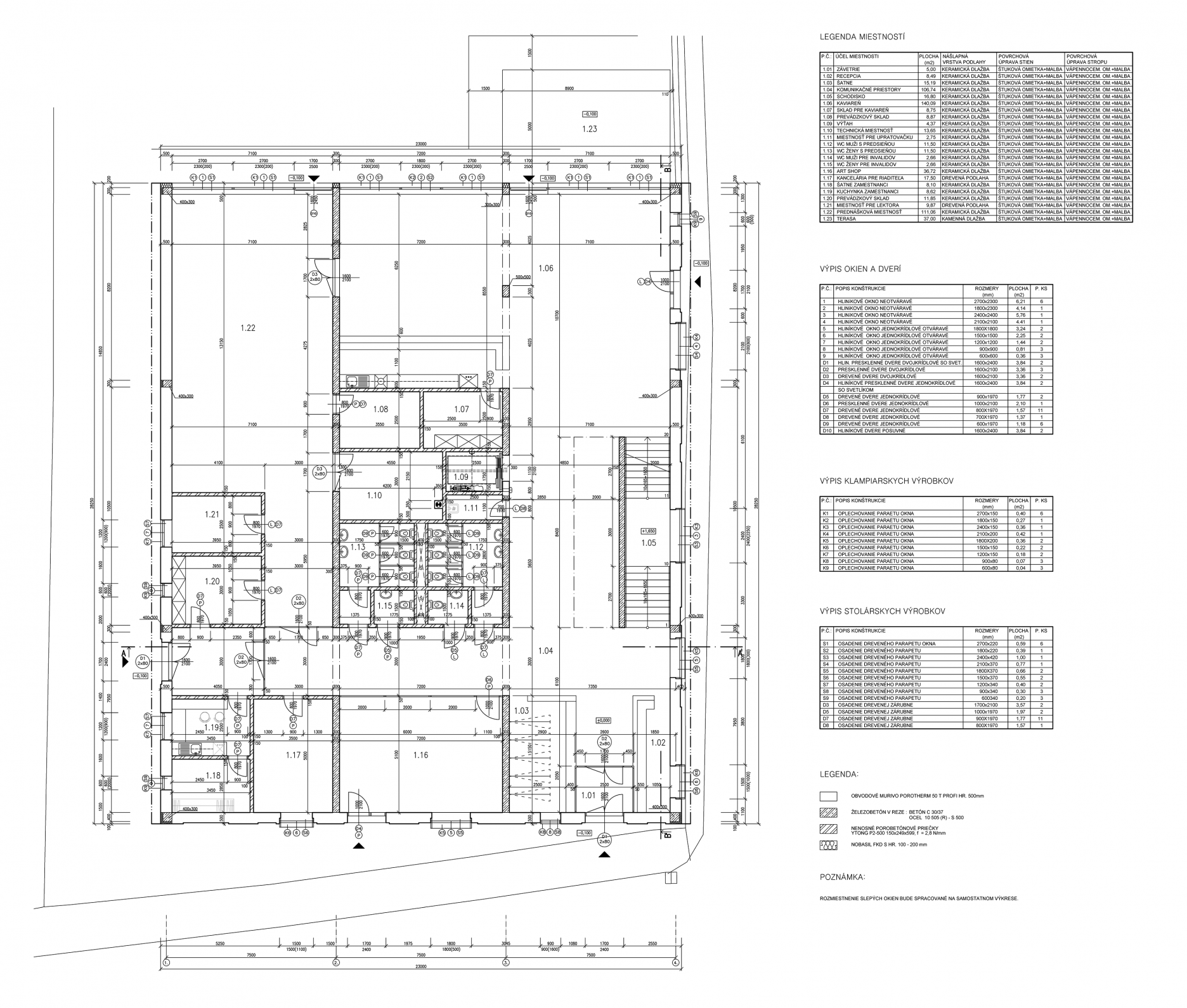
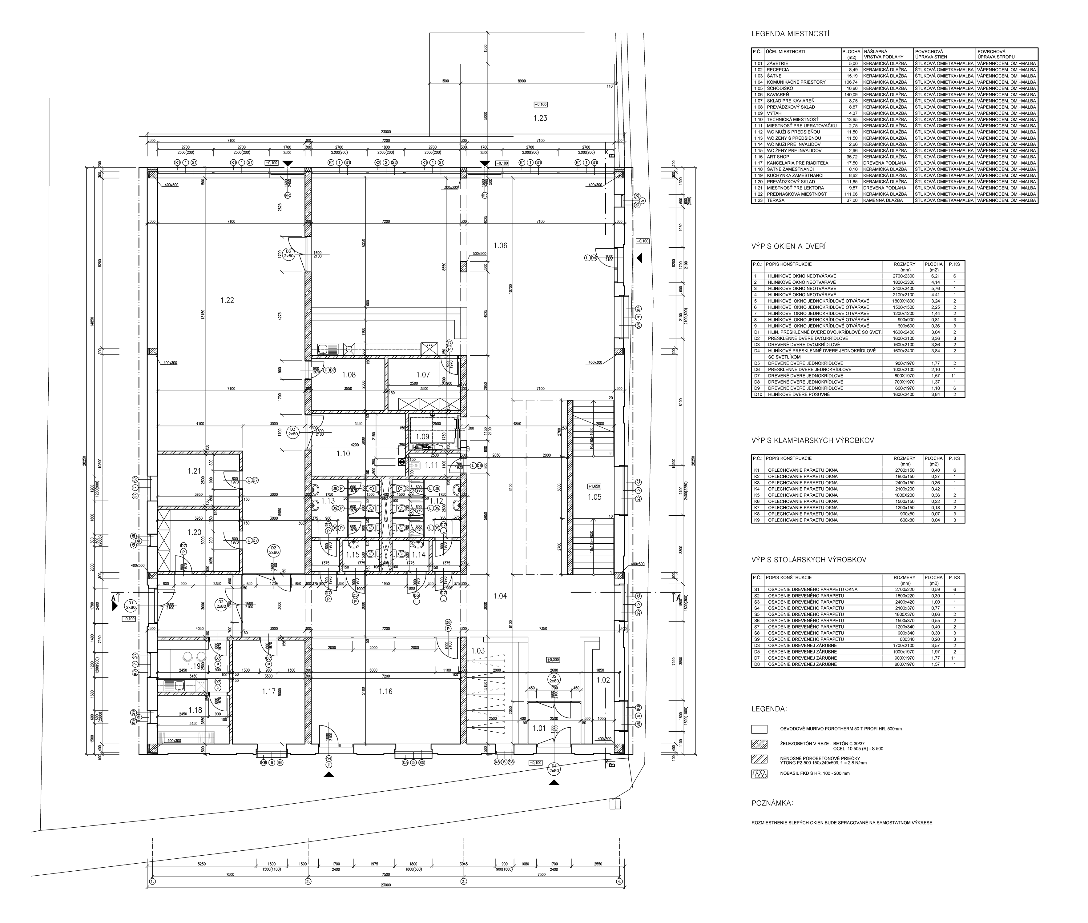
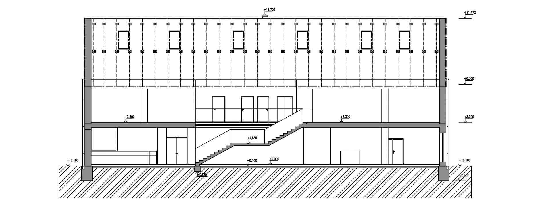
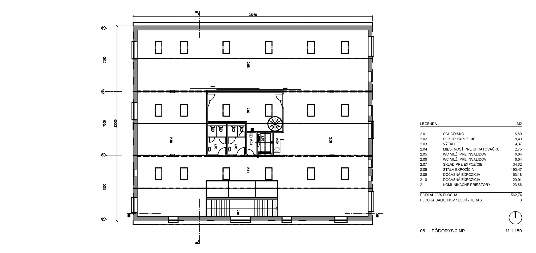
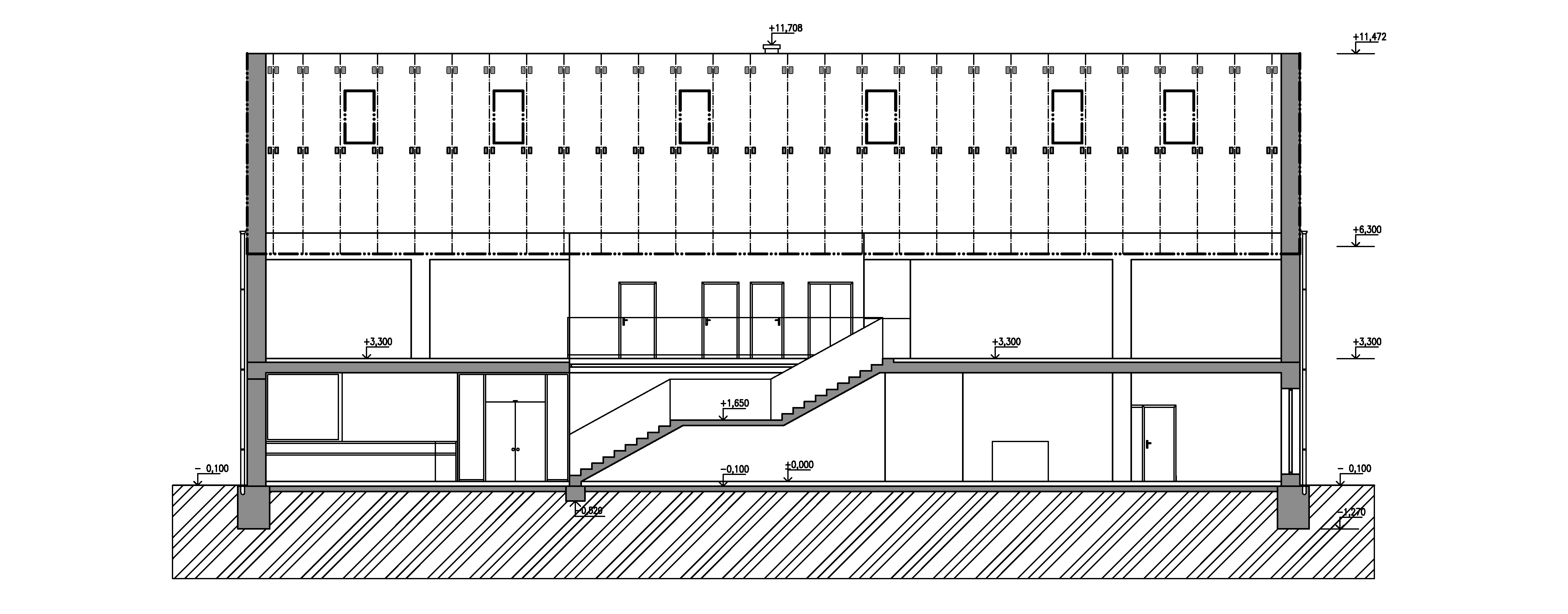
Komplex pre muzeálnu expozíciu a aktivity voľného času Bardejov - 2. miesto v súťaži o najlepšiu bakalársku prácu ABF Slovakia - Bakalár 2015 (sekcia Architektúra a urbanizmus)
Autori: Bc. Tomáš Popadič
Vedúci práce: Ing. arch. Eva Borecká, PhD.
Akademický rok 2014/2015
Študijný program: PSA
Predmet: Bakalárska práca
Výstavu v Galérii architektúry Spolku architektov Slovenska na Panskej ulici si mali návštevníci možnosť prehliadnuť začiatkom apríla.
Podklady: Katedry architektúry Stavebnej fakulty STU v Bratislave