Hansgrohe - prémiová značka kúpeľňových riešení, ponúka nadčasový dizajn, technickú precíznosť a udržateľné inovácie...
Využite špeciálnu akciu Internorm: okná za minuloročné ceny a hliníkový kryt úplne zadarmo. Ponuka je časovo obmedzená!
Na podujatí sa predstaví až 37 vystavovateľov - popredných dodávateľov stavebných materiálov a inovácií s prezentáciou...
Sumarizácia najdôležitejších inovácií, ktoré redefinujúcich využitie tohto energetického zdroja.
AMPHIBIA 3000 GRIP 1.3 od spoločnosti ATRO predstavuje modernú hydroizolačnú technológiu, ktorá spája vysokú odolnosť,...
Ambiciózne plány EK narazili na ekonomické možnosti domácností v jednotlivých členských štátoch –...
IDEA DOOR od spoločnosti JAP prináša do interiéru čistý minimalistický vzhľad vďaka bezrámovému riešeniu a precíznej...
Kontinuita riešenia od vonkajšieho obkladu až po kovania a kľučky.
Nástenné nadomietkové armatúry Vitus sú mimoriadne vhodné pre rýchlu a efektívnu...
Okenné profily z kompozitného materiálu RAU-FIPRO X od spoločnosti Rehau sú v porovnaní s tradičnými plastovými profilmi mnohonásobne...
Najnovší sortiment stolov pre zariadenie interiérov...
Spojenie moderného dizajnu, funkčnosti a svetla do harmonického architektonického prvku.
Kancelárska budova Baumit v slovinskom Trzine prešla premenou na moderné a udržateľné pracovisko. Architekti kládli dôraz...
Mottom šiesteho ročníku on-line konferencie odborníkov Xella Dialóg je Efektívny návrh budov 2025+: zmeny a riešenia
Robot WLTR predstavuje moderný prístup k murovaným konštrukciám. Vďaka automatizácii dokáže rýchlo, presne a bezpečne realizovať...

V apríli sme informovali o výsledkoch národného kola obľúbenej študentskej súťaže SAINT- GOBAIN Architecture Student Contest 2023. Prvé miesto obsadil návrh Sandry Blaškovičovej a Martiny Bežovej, ktorý vznikol na pôde FAD STU pod vedením Michala Bogára. Architektky čaká koncom júna medzinárodné finále súťaže v Lisabone, kde budú svoj návrh obhajovať v konkurencii ďalších víťazov národných kôl. Spomedzi 30 projektov vyberie medzinárodná porota na základe osobných prezentácii víťaza 28. júna. Do národných kôl SAINT - GOBAIN Architecture Student Contest 2023 sa prihlásilo celkom 1300 študentov so 167 univerzít.
V nasledujúcom článku predstavíme návrh víťaziek národného kola Sandry Blaškovičovej a Martiny Bežovej, ktorý bude v medzinárodnom finále reprezentovať Slovensko:
A.I.: Prečo ste sa rozhodli zúčastniť SAINT- GOBAIN Architecture Student Contest 2023? Čím vás zaujalo zadanie?
M.B.: Zadanie tohto projektu nás zaujalo z niekoľkých dôvodov. Jedným z nich je jeho umiestnenie v prímorskej oblasti a konkrétne v meste Lisabon s jeho fascinujúcou architektúrou. Ďalší dôvod bola komplexnosť zadania, kde sme mohli riešiť navrhovanie novej budovy a zároveň obnovu historickej stavby.
Avšak naše rozhodnutie angažovať sa v tomto projekte padlo už po našom účinkovaní na
minuloročnom medzinárodnom kole súťaže Saint-Gobain vo Varšave. Táto skúsenosť nás presvedčila, že by sme sa opäť mali zapojiť do súťaže.
A.I.: Opíšte najdôležitejšie piliere návrhu.
S.B.: V našom návrhu sme sa stretli s niekoľkými výzvami, pričom najťažšou bola schopnosť zjednotiť historický a moderný kontext lokality a ekologické princípy výstavby a technológie. Naším cieľom bolo vytvoriť koncept, ktorý by bol dostatočne silný, aby sa vyzdvihol medzi ostatnými projektmi a zároveň by zohľadňoval charakteristiky miesta.
V našom návrhu sme sa snažili vytvoriť koncept, ktorý bude rešpektovať urbanistický kontext, spájať historické a moderné prvky, minimalizmus a ekologickú výstavbu, aby sme vytvorili funkčnú a esteticky príťažlivú architektúru, ktorá bude mať výrazné miesto v kontexte tejto lokality. Celkovo sme sa snažili vytvoriť koncept, ktorý je jedinečný a zároveň rešpektuje všetky tieto aspekty.
A.I.: Do akej miery formovali váš návrh ekologické aspekty projektu?
S.B.: Vytváranie udržateľných riešení a využívanie ekologicky šetrných technológií bolo pre nás prioritou. Vzhľadom na lokalitu sme nemohli zvoliť drevostavbu z dôvodu obmedzeného prístupu k lesom v Lisabone a častých požiarov a záplav. Rovnako sme sa zamerali na zníženie uhlíkovej stopy. Preto sme sa rozhodli použiť prefabrikovaný recyklovaný betón, ktorý by sme dovážali z továrne vzdialenej približne 10 km od našej riešenej lokality.
Okrem toho sme venovali veľkú pozornosť zberu dažďovej vody a spracovaniu vody počas záplav, ktoré výrazne ovplyvňovali návrh exteriéru. Zber solárnej energie zo slnka sme zahrnuli okrem strechy aj do hlavného konceptu. Tým sme sa snažili maximalizovať využitie obnoviteľných zdrojov energie a minimalizovať vplyv na životné prostredie.
A.I.: Spolupracovali ste pri navrhovaní riešení technických s externými odborníkmi?
M.B.: Áno, pri navrhovaní riešení technických aspektov sme spolupracovali s niekoľkými externými odborníkmi. Konzultovali sme s nimi veci týkajúce sa požiarnej bezpečnosti, technických detailov a použitia materiálov v interiéroch. Odborníci nám poskytli rady a odporúčania týkajúce sa ukotvenia predsadenej fasády, konkrétny výber typu izolácii a aj v oblasti konštrukcií. Ich znalosti a skúsenosti nám pomohli zabezpečiť technickú spoľahlivosť a bezpečnosť nášho návrhu.
A.I.: Ktoré inovatívne riešenia by ste vyzdvihli? Sú aplikovateľné aj v našich končinách?
M.B.: Všetky použite technológie je možné aplikovať aj v našich končinách.
Jedno z inovatívnych riešení, ktoré by som vyzdvihla, je výroba recyklovateľného betónu, ktorý sme použili v našom projekte. Táto technológia ešte nie je v našich končinách široko rozšírená, ale je určite aplikovateľná aj u nás. Recyklovateľný betón je environmentálne prijateľnejšou alternatívou k tradičným betónovým zmesiam, pretože umožňuje opakované využitie materiálu po skončení životnosti konštrukcie. Treba však poznamenať, že táto technológia má obmedzenia a je vhodná pre určité typy konštrukcií a s určitou percentuálnou mierou recyklovateľnosti.
A.I.: Čo bol pri navrhovaní najväčší "oriešok"?
S.B.: Pri navrhovaní bol najväčším "orieškom" vymyslieť dizajn parteru a spojiť ho s hlavným konceptom, ktorý sa týkal optického rozdelenia našej novo-navrhovanej budovy na dve časti. Tento problém sme riešili prostredníctvom mnohých variantov a experimentov, aby sme našli optimálne riešenie. Bolo to výzvou, pretože sme sa snažili zachovať estetickú harmóniu a zároveň zabezpečiť funkčnosť a prepojenie parteru s historickou budovou vedľa. Tento proces nám trval dlhší čas a vyžadoval kreatívne myslenie a interaktívne testovanie rôznych návrhov, ale nakoniec sme sa dostali k výsledku, ktorý spĺňa naše požiadavky a zároveň zapadá do celkového konceptu projektu.
A.I.: Je takáto skúsenosť prínosom pre vašu budúcu prax?
M.B.: Táto skúsenosť je určite veľkým prínosom pre našu budúcu prax. Najmä vďaka skúsenosti, ktorú si zažijú víťazi v medzinárodnom kole súťaže, kde sa stretnú architekti z rôznych kútov sveta. Každý z nich má rôzne znalosti a názory, ktoré si vieme vzájomne odovzdať. Tieto interakcie nám umožnili získať nové perspektívy a inšpirácie, a taktiež sme mohli získať cenné spätné väzby od odborníkov z rôznych kultúr a prostredí.
S.B.: Vidieť projekty z celého sveta nám poskytlo možnosť zistiť naše slabé stránky a vidieť, ako iní architekti riešia podobné výzvy. Táto skúsenosť nám poskytla priestor na zlepšenie našej tvorby a rozvoj našich schopností. Budeme môcť využiť tieto nové poznatky a inšpirácie vo svojej budúcej praxi a prispieť k našej profesii.
A.I.: Držíme palce v ďalšom priebehu súťaže!
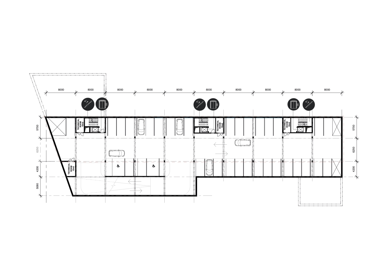
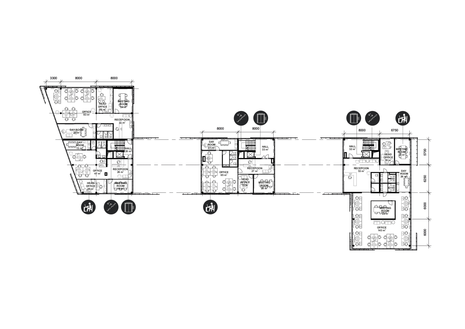
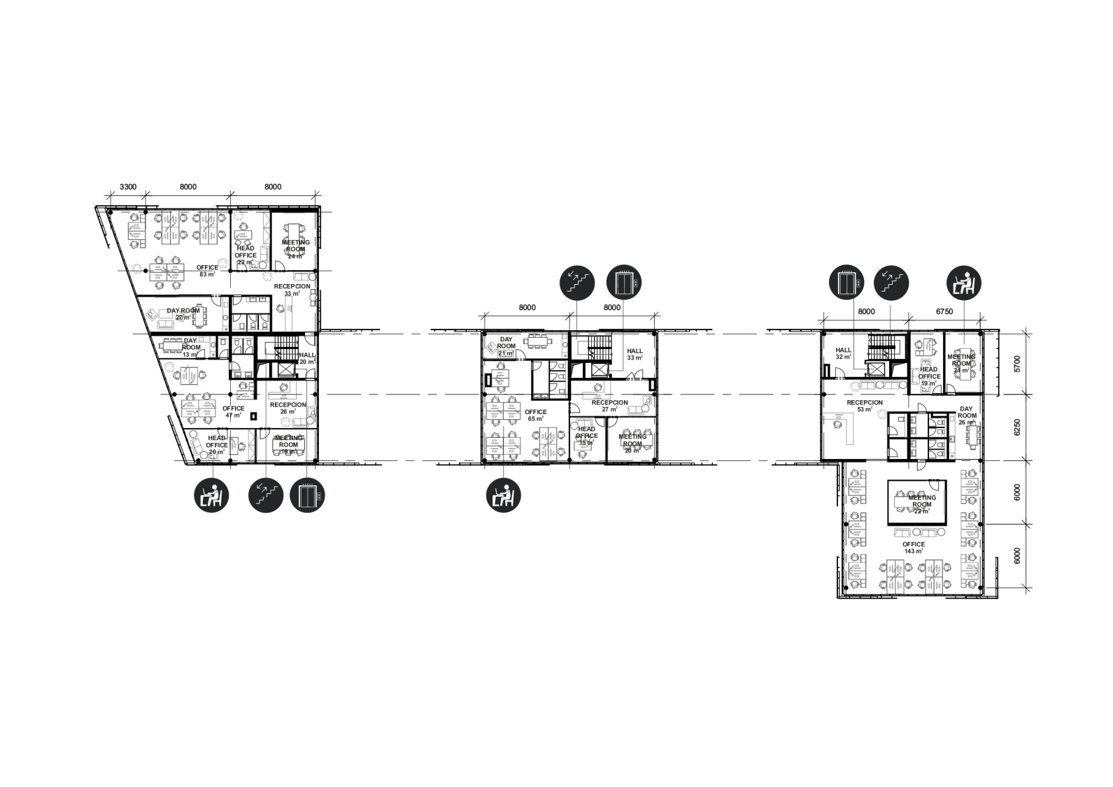
Predstavenie projektu Sandry Blaškovičovej a Martiny Bežovej
Vizualizácie:
Portfólio:
Videoprezentácia:
Výkresová dokumentácia:
Súťažné panely z národného kola súťaže: