Sumarizácia najdôležitejších inovácií, ktoré redefinujúcich využitie tohto energetického zdroja.
AMPHIBIA 3000 GRIP 1.3 od spoločnosti ATRO predstavuje modernú hydroizolačnú technológiu, ktorá spája vysokú odolnosť,...
Ambiciózne plány EK narazili na ekonomické možnosti domácností v jednotlivých členských štátoch –...
IDEA DOOR od spoločnosti JAP prináša do interiéru čistý minimalistický vzhľad vďaka bezrámovému riešeniu a precíznej...
Nástenné nadomietkové armatúry Vitus sú mimoriadne vhodné pre rýchlu a efektívnu...
Okenné profily z kompozitného materiálu RAU-FIPRO X od spoločnosti Rehau sú v porovnaní s tradičnými plastovými profilmi mnohonásobne...
Najnovší sortiment stolov pre zariadenie interiérov...
Spojenie moderného dizajnu, funkčnosti a svetla do harmonického architektonického prvku.
Kancelárska budova Baumit v slovinskom Trzine prešla premenou na moderné a udržateľné pracovisko. Architekti kládli dôraz...
Mottom šiesteho ročníku on-line konferencie odborníkov Xella Dialóg je Efektívny návrh budov 2025+: zmeny a riešenia
Robot WLTR predstavuje moderný prístup k murovaným konštrukciám. Vďaka automatizácii dokáže rýchlo, presne a bezpečne realizovať...
Okrem bezpečnosti majú okná aj elegantný vzhľad, pretože nie sú viditeľné žiadne uzamykacie časti kovania.
Dvere MASTER v skrytej zárubni AKTIVE je možné vyrobiť až do výšky 3 700 mm
Internorm stavia na energetickú efektívnosť a inteligentné tieniace riešenia.
Slovensko vo výbere zastupuje šesť realizácií.

Mesto Valašské Meziříčí vyhlásilo v júli otvorenú jednofázovú súťaž na príkladné rezidenčné bývanie pre staršiu generáciu. Súťažné návrhy posudzovala porota na čele so Štefanom Polakovičom. Úlohou zúčastnených ateliérov bolo priniesť víziu kvalitného, dôstojného a bezpečného prostredia, v ktorom si obyvatelia budú môcť zachovať svoju nezávislosť a doterajší životný štýl. Zároveň budú mať istotu prístupu k sociálnym službám a možnosť okamžitej pomoci v prípade núdze. Nový bytový dom by mal vytvoriť príjemný priestor na stretnutia a budovanie sociálnych väzieb medzi rezidentmi, s cieľom prispieť k duševnej pohode starších obyvateľov mesta. Medzi dôležité kritériá pri posudzovaní návrhov objektu s minimálne 32 bytovými jednotkami patrilo jeho vhodné začlenenie do štruktúry mesta a otvorenosť voči okolitému prostrediu.
Atraktívne zadanie pritiahlo do súťaže celkom 43 autorských kolektívov z 8 krajín (Slovensko, Česká republika, Švajčiarsko, Rumunsko, Čína, Argentína, Maďarsko a Španielsko. Slovensko v súťaži reprezentuje 8 ateliérov.
Porota v zložení: Štefan Polakovič, Ondřej Chybík, Tereza Kabelková, Gabriela Kaprálová a Robert Stržínek rozhodla o výsledkoch súťaže nasledovne:
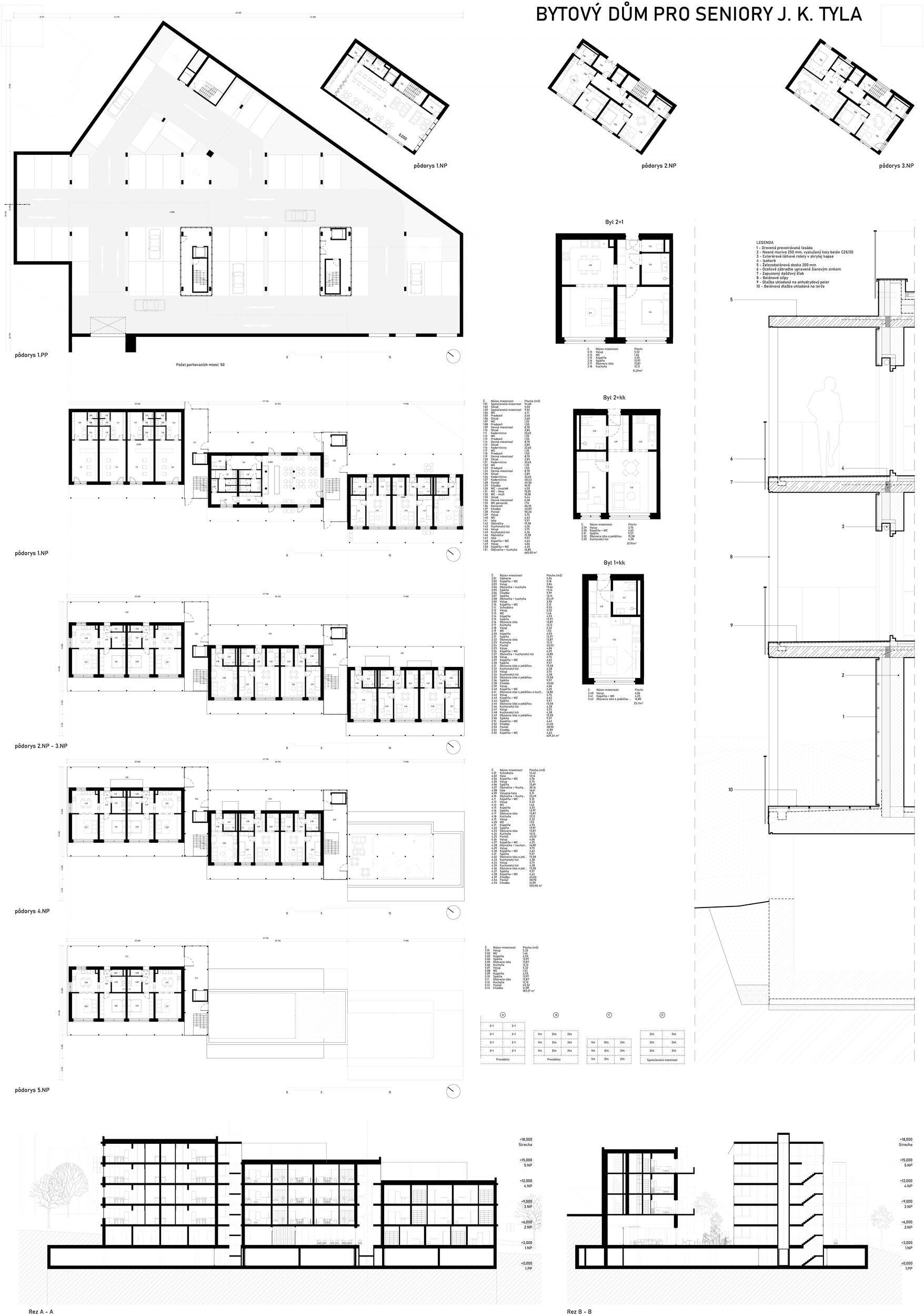
1.cena (700 000 Kč): AXXI - Brno, Česká republika
Autori: Luděk Šimoník, Jan Stolek, Anna Kabeláčová, Šimon Klein, Vít Staudinger, Ingrid Spáčilová
Hodnotenie poroty:
Dialog se stromy. Velmi nenápadný a zdařilý návrh. Vychází z předpokladu maximálního respektování stávající zeleně. Vychází z ní, opírá se o ni, nechává ji do sebe vstoupit, využívá ji. Nedefinuje charaktery míst propojení s ní. Nekřičí, dispozice domu chvílemi přetéká do exteriéru a naopak. Situování objektu na parcele maximálně respektuje kontextuální danosti lokality. Ustupuje od linie zástavby rodinných domů, ale stále si zachovává určitý fyzický kontakt. Zeleň z horního vnitrobloku nechává protéct před sebou z východní strany, spojený kompaktní objem tak nechává mírně zahalený a ustoupený v druhém plánu. Současně zachovává dostatek prostoru a možnost výhledu stávajícímu objektu stejného využití. Geometrie návrhu vtipně a účelně zachází se svými částmi tak, aby maximalizovala komfort užívání v jejím koncentrovaném středu. Čtyři ramena dispozic bytů, jejich propojení centrální halou podlaží jsou uspořádána tak, aby sloužila nejen jako vertikální komunikace, ale také jako prostor fyzického setkávání a možnosti být spolu tak, aby tím ostatní privátní prostředí neutrpělo. Dispozice je čistá, semknutí kolem haly vytváří možnosti používání v závislosti na poloze, intenzitě, až po rozhodnutí o tom, která její část momentálně nejlépe splňuje představy o pobytu uživatele. Velmi zajímavě působí vytvoření možnosti komunikace v exteriéru (na rekreačních balkonech) bez nutnosti průchodu skrze byt, což je velmi ojedinělý přístup a vytvořená nabídka, kdy pokoje mohou zůstat – v tomto režimu – soukromé a návštěvy se odehrávají v polo veřejném exteriéru balkonu nebo interiéru haly. Architektonické řešení nás nenechává na pochybách, o jaký druh zařízení se jedná. Jeho výrazová subtilnost, vjemová elegance, upřednostněná horizontalita, se s vertikální krajinou korun stromů skládá do jednoho celku a působí, jako by to tak bylo odjakživa. Krásné řešení koexistence objemu stavby a efemérnosti rostlé přírody. Z pohledu poroty tento návrh nejlépe splnil zadání soutěže a zaslouženě se stal jejím vítězem. V následujícím dopracování je schopen vypilováním svých předností vytvořit hluboké spojení kvality architektury a jejího vetkání do krajiny. Držíme vám všichni (město, porota i organizátoři) palce!!!
2.cena (500 000 Kč): MACH - Barcelona, Španielsko
Autori: Laia Gelonch Llongarriu, Marc Subirana Ribera, Victoria Cirillo Chiarle, Magdalena Mannise Frutos
Hodnotenie poroty:
Kvalita návrhu je porotou hodnocena velmi vysoko z hlediska urbanisticko-krajinářského, architektonického, enviromentálního, konstrukčního i technologického. Velkým přínosem návrhu je rafinovaná transformace a propojení dvou téměř neslučitelných urbánních struktur (blokové zástavby sídliště a zástavby individuálních rodinných domů). Bytový dům je fragmentován do menších půdorysných stop, přičemž pružně reaguje na výškovou hladinu okolní zástavby. Nebojí se jít do výšky 4 a na jihu až 5 obytných podlaží, avšak s velkým citem k okolní zástavbě. Větší počet pater umožňuje minimalizaci zastavěné plochy. Tím je docílena větší plocha veřejné zeleně včetně zachování původních stromů. Velkým přínosem návrhu je práce s polo veřejným prostorem společné haly napojené na vertikální komunikace. Společná prostorná hala na každém podlaží umožňuje bezprostřední interakci mezi sousedy a podporuje komunitní život obyvatel, aniž by museli sjíždět do přízemí. Dispozice bytových jednotek je promyšlená a komfortní. Parter kolem intimního náměstíčka u autobusové zastávky je obklopen pronajímatelnými prostory adekvátní velikosti. Návrh představuje absolutně současnou architekturu ve všech prezentovaných detailech (interiér i exteriér, včetně okolní zahrady) jak po stránce použitých materiálů, tak po stránce enviromentální.
3.cena (350 000 Kč): Javier López Revol, Jorge Larrea - Córdoba, Argentína
Autori: Javier López Revol, Jorge Larrea, spolupráce: Facundo Gonzalez Abad, Rodrigo Del Barrio, Jeremias Filardo, Martin Jara, Amalia Carrión
Hodnotenie poroty:
Velmi silná a přitom jednoduchá koncepce návrhu. Pravdivá, jednoduchá a krásná fasáda vycházející z podstaty domu. Rozhodnutí autorů orientovat liniový dům jako pokračování řady panelových domů hodnotí porota kladně. Vzniká tak příjemný park naproti zástavbě rodinných domů, který je propojen s vnitroblokem stávajícího domova seniorů. Orientace všech bytových jednotek na jih při vytvoření členité fasádní krajiny je svěžím nápadem. Prostorná otevřená pavlač se zálivy před vstupy do bytových jednotek velmi dobře funguje, bohužel ale pouze v teplejších měsících. Slabou stránkou návrhu, nejmarkantnější na jižní straně, je kontakt s terénem, neaktivní parter a odtržení domu od veřejného prostoru.
Mimoriadna odmena (50 000 Kč): Építész Stúdió - Budapešť, Maďarsko
Autori: Zsolt Felix, Detti Kolossváry, Luca Mudry, Máté Pálfy
Hodnotenie poroty:
Návrh přináší zcela ojedinělé urbanistické řešení a vytváří přívětivý veřejný prostor obklopený dvěma domy seniorského bydlení a umístěný napříč řešeným územím. Velmi kvalitní návrh svou hodnotou daleko přesahuje řešené území a má potenciál stát se živým centrem celého sídliště. Propojení autobusové zastávky, veřejného prostoru, komerčních ploch a navazujících pěších tras je velmi zdařilé. Vnímání stavebního záměru v širších městských souvislostech je nejsilnější stránkou tohoto návrhu. Integrace seniorů s ostatními obyvateli sídliště je nejlépe provedená ze všech soutěžních návrhů. Vnitřní provozní řešení je v porovnání s oceněnými návrhy méně zdařilé. Vertikální komunikace dostatečně nevyužívají svůj prostorový potenciál. Chodby nabízejí pouze 1 typ pobytového místa, který se opakuje. Kvalitu řešení exteriéru se nepodařilo přenést také do interiéru. Navržené budovy zcela rezignovali na optické propojení se stávajícím domovem seniorů
Ostatné súťažné návrhy:
Návrh č. 1: XTOPIX architekti - Praha, Česká republika
Autori: Pavel Buryška, Barbora Buryšková, Martin Málek, Tereza Mirská, Michal Štěpař, Martin Černý, Blanka Drašnarová, Lucie Lorencová, Michal Rešetár, spolupráca: Květoslav Syrový, Lukáš Scholz
Návrh č. 2: 2M ateliér architektúry - Bratislava, Slovensko
Autori: Tomáš Pozdech, Filip Hečko, Miroslav Michalica
Návrh č. 3: ADEA projekt - Ostrava, Česká republika
Autori: Aleš Vojtasík, Jana Stavinohová, Marie Peršalová, Dominik Šubrt
Návrh č. 4: Petra Kunarová - Chodov u Karlových Varů, Česká republika
Autori: Petra Kunarová, Michaela Doubravová
Návrh č. 5: AVEBURY - Praha, Česká republika
Autori: Stanislav Taraba, Vladimír Bezchleba
Návrh č. 6: Vit Forman, Jan Stibral, Roman Balšán - Stráž nad Nežárkou, Česká republika
Autori: Vit Forman, Jan Stibral, Roman Balšán
Návrh č. 7: David Petr - Mešno, Česká republika
Autor: David Petr
Návrh č. 8: Atelier Štěpán - Vranov, Česká republika
Autori: Lucie Hájková, Magdalena Štěpánová, Marek Jan Štěpán, Adéla Bláhová
Návrh č. 9: LZ-PROJEKT plus - Valašské Meziříčí, Česká republika
Autori: Tomáš Strnadel, Lucie Zapletal Zádrapová, Leoš Zádrapa
Návrh č. 10: playarchitects - Bratislava, Slovensko
Autori: Matúš Gondek, Branislav Hantabal, spolupráca: Marína Ťapajnová, Ján Ščúry
Návrh č. 11: JIKA-CZ + ohboi - Hradec Králové, Brno, Česká republika
Autori: Jiří Slánský, Jan Kubát, Linda Kaliská, Martin Jireš, David Baďura
Návrh č. 12: Atelier Amont GmbH - Basel, Švajčiarsko
Autori: Logan Amont, Dawid Roszkowski, Florian Elbing
Návrh č. 13: Kuba & Pilař architekti - Brno, Česká republika
Autori: Ladislav Kuba, Tomáš Pilař, Kristýna Ordeltová, spolupráca: Radovan Séleš
Návrh č. 15: Birou Individual de Arhitectură - Timiș, Rumunsko
Autori: David Dumitrescu, Alexandra Maria Pascotescu
Návrh č. 16: PROAM ARCHITEKTI - Praha, Česká republika
Autori: Václav Štojdl, David Šrom, Olga Saprynskaya, Duc Pham Ngoc
Návrh č. 17: Yuhui Guo, Jiaxin Yan - Čína
Autori: Yuhui Guo, Jiaxin Yan
Návrh č. 19: Amulet + Paranormal office - Praha, Česká republika
Autori: Petr Bureš, Marko Čambor, Adam Šustek
Návrh č. 20: KOTA atelier - Jihlava, Česká republika
Autori: Adam Koten, Štěpán Vašut, Tomáš Babka (záhradná architektúra), Jáchym Daniel (vizualizácie), Petra Vilímková (sociológia)
Návrh č. 21: Červená I Svitek architekti - Praha, Česká republika
Autori: Tereza Červená, Jakub Svitek, Aneta Nováčková, Šárka Pražáková
Návrh č. 22: AOSI - Brno, Česká republika
Autori: Ivo Stejskal, Natálie Laníková, Vít Šarišský
Návrh č. 23: Studio Fragment - Budapešť, Maďarsko
Autori: Imre Bődi, Zsolt Frikker
Návrh č. 24: Branislav Blažek - Borský Svätý Jur, Slovensko
Autor: Branislav Blažek
Návrh č. 25: ARCHCON atelier - Praha, Česká republika
Autori: Irena Truhlářová, Martin Valášek, Vojtěch Vecán, David Šiška, Michaela Flachsová, Kateřina Šoulová, Lenka Kelbelová
Návrh č. 26: Jih architekti - Deštná, Česká republika
Autori: Matěj Šebek, Matěj Bělohlávek, Jakub Ježek, Michaela Zudová (krajinářská architektura), Tomáš Oubrecht (dopravní inženýrství)
Návrh č. 27: SIAL architekti a inženýři - Liberec, Česká republika
Autori: Jiří Buček, Lenka Hamerlová, Josef Franc, Jaroslav Pfleger, Vít Šrámek, Martina Sluková, Petr Matoušek, Daniel Matějka, Igor Nestěrov (vizualizácie)
Návrh č. 28: Jan Mach - Liberec, Česká republika
Autori: Jan Mach, Martin Stupka
Návrh č. 30: Lumír Šandera - Hradec Králové, Česká republika
Autori: Lumír Šandera, Jaromír Šašinka, Kristýna Balážová, Sofie Lukeš, Aneta Hopová, Mirek Vrbický
Návrh č. 31: ADBA - Bratislava, Slovensko
Autori: Adam Kubica, Barbora Antošová, Mikuláš Konček
Návrh č. 32: gro architekti - Bratislava, Slovensko
Autori: Juraj Palovič, Lukáš Bím, Jakub Čerešník, Katarína Siváková, Petr Strojný, Veronika Vojteková, Samuel Andrejčák
Návrh č. 33: studio SP-AM - Liberec, Česká republika
Autori: Pavel Šťastný, Jan Koníček
Návrh č. 34: Rudohradský - Bratislava, Slovensko
Autori: Marek Rudohradský, Adam Kubričan, Dávid Horváth, Luka Khundadze, Maria Shinshinová, Dominika Sojková, Ivona Chmelová, Natália Černeyová
Návrh č. 35: ZARI architects - Boskovice, Česká republika
Autor: Pavel Richter
Návrh č. 36: Formanek Chromelová Filsak - Praha, Česká republika
Autori: Jiří Formanek, Lada Chromelová, Karel Filsak, Vojtěch Kettner
Návrh č. 38: PRE-UM - Bratislava, Slovensko
Autori: Filip Bránický, Simona Fischerová, Juraj Izrael
Návrh č. 39: Wood place - Podbiel, Slovensko
Autori: m47, Lukáš Ďurian, Erik Hornáček, Miroslava Kamenská, Nikolas Klimčák
Návrh č. 40: bams office + Ladislav Müller - Popůvky, Česká republika
Autori: Michal Solár, Blanka Solár, Ladislav Müller, Jan Štangl
Návrh č. 41: Michal Auxt - Praha, Česká republika
Autor: Michal Auxt
Návrh č. 42: stolařík architekti - Zlín, Česká republika
Autori: Ondřej Stolařík, Martin Velecký, Šárka Stolaříková
Návrh č. 43 (nehodnotaný z dôvodu neskorého odovzdania): studioLIBRE - Praha, Česká republika
Autori: Robert Jelínek, Michal Talabiška, Matyáš Vrtiška, Nikolai Mazhorin
Zoznam všetkých súťažných návrhov:
Návrh č. 1: XTOPIX architekti - Praha, Česká republika
Autori: Pavel Buryška, Barbora Buryšková, Martin Málek, Tereza Mirská, Michal Štěpař, Martin Černý, Blanka Drašnarová, Lucie Lorencová, Michal Rešetár, spolupráca: Květoslav Syrový, Lukáš Scholz
Návrh č. 2: 2M ateliér architektúry - Bratislava, Slovensko
Autori: Tomáš Pozdech, Filip Hečko, Miroslav Michalica
Návrh č. 3: ADEA projekt - Ostrava, Česká republika
Autori: Aleš Vojtasík, Jana Stavinohová, Marie Peršalová, Dominik Šubrt
Návrh č. 4: Petra Kunarová - Chodov u Karlových Varů, Česká republika
Autori: Petra Kunarová, Michaela Doubravová
Návrh č. 5: AVEBURY - Praha, Česká republika
Autori: Stanislav Taraba, Vladimír Bezchleba
Návrh č. 6: Vit Forman, Jan Stibral, Roman Balšán - Stráž nad Nežárkou, Česká republika
Autori: Vit Forman, Jan Stibral, Roman Balšán
Návrh č. 7: David Petr - Mešno, Česká republika
Autor: David Petr
Návrh č. 8: Atelier Štěpán - Vranov, Česká republika
Autori: Lucie Hájková, Magdalena Štěpánová, Marek Jan Štěpán, Adéla Bláhová
Návrh č. 9: LZ-PROJEKT plus - Valašské Meziříčí, Česká republika
Autori: Tomáš Strnadel, Lucie Zapletal Zádrapová, Leoš Zádrapa
Návrh č. 10: playarchitects - Bratislava, Slovensko
Autori: Matúš Gondek, Branislav Hantabal, spolupráca: Marína Ťapajnová, Ján Ščúry
Návrh č. 11: JIKA-CZ + ohboi - Hradec Králové, Brno, Česká republika
Autori: Jiří Slánský, Jan Kubát, Linda Kaliská, Martin Jireš, David Baďura
Návrh č. 12: Atelier Amont GmbH - Basel, Švajčiarsko
Autori: Logan Amont, Dawid Roszkowski, Florian Elbing
Návrh č. 13: Kuba & Pilař architekti - Brno, Česká republika
Autori: Ladislav Kuba, Tomáš Pilař, Kristýna Ordeltová, spolupráca: Radovan Séleš
Návrh č. 14 (1.cena): AXXI - Brno, Česká republika
Autori: Luděk Šimoník, Jan Stolek, Anna Kabeláčová, Šimon Klein, Vít Staudinger, Ingrid Spáčilová
Návrh č. 15: Birou Individual de Arhitectură - Timiș, Rumunsko
Autori: David Dumitrescu, Alexandra Maria Pascotescu
Návrh č. 16: PROAM ARCHITEKTI - Praha, Česká republika
Autori: Václav Štojdl, David Šrom, Olga Saprynskaya, Duc Pham Ngoc
Návrh č. 17: Yuhui Guo, Jiaxin Yan - Čína
Autori: Yuhui Guo, Jiaxin Yan
Návrh č. 18 (3.cena): Javier López Revol, Jorge Larrea - Córdoba, Argentína
Autori: Javier López Revol, Jorge Larrea, spolupráca: Facundo Gonzalez Abad, Rodrigo Del Barrio, Jeremias Filardo, Martin Jara, Amalia Carrión
Návrh č. 19: Amulet + Paranormal office - Praha, Česká republika
Autori: Petr Bureš, Marko Čambor, Adam Šustek
Návrh č. 20: KOTA atelier - Jihlava, Česká republika
Autori: Adam Koten, Štěpán Vašut, Tomáš Babka (zahradná architektúra), Jáchym Daniel (vizualizácie), Petra Vilímková (sociológia)
Návrh č. 21: Červená I Svitek architekti - Praha, Česká republika
Autori: Tereza Červená, Jakub Svitek, Aneta Nováčková, Šárka Pražáková
Návrh č. 22: AOSI - Brno, Česká republika
Autori: Ivo Stejskal, Natálie Laníková, Vít Šarišský
Návrh č. 23: Studio Fragment - Budapest, Maďarsko
Autori: Imre Bődi, Zsolt Frikker
Návrh č. 24: Branislav Blažek - Borský Svätý Jur, Slovensko
Autor: Branislav Blažek
Návrh č. 25: ARCHCON atelier - Praha, Česká republika
Autori: Irena Truhlářová, Martin Valášek, Vojtěch Vecán, David Šiška, Michaela Flachsová, Kateřina Šoulová, Lenka Kelbelová
Návrh č. 26: Jih architekti - Deštná, Česká republika
Autori: Matěj Šebek, Matěj Bělohlávek, Jakub Ježek, Michaela Zudová (krajinářská architektúra), Tomáš Oubrecht (dopravní inženýrství)
Návrh č. 27: SIAL architekti a inženýři - Liberec, Česká republika
Autori: Jiří Buček, Lenka Hamerlová, Josef Franc, Jaroslav Pfleger, Vít Šrámek, Martina Sluková, Petr Matoušek, Daniel Matějka, Igor Nestěrov (vizualizácie)
Návrh č. 28: Jan Mach - Liberec, Česká republika
Autori: Jan Mach, Martin Stupka
Návrh č. 29 (mimoriadna odmena): Építész Stúdió - Budapešť, Maďarsko
Autori: Zsolt Felix, Detti Kolossváry, Luca Mudry, Máté Pálfy
Návrh č. 30: Lumír Šandera - Hradec Králové, Česká republika
Autori: Lumír Šandera, Jaromír Šašinka, Kristýna Balážová, Sofie Lukeš, Aneta Hopová, Mirek Vrbický
Návrh č. 31: ADBA - Bratislava, Slovensko
Autori: Adam Kubica, Barbora Antošová, Mikuláš Konček
Návrh č. 32: gro architekti - Bratislava, Slovensko
Autori: Juraj Palovič, Lukáš Bím, Jakub Čerešník, Katarína Siváková, Petr Strojný, Veronika Vojteková, Samuel Andrejčák
Návrh č. 33: studio SP-AM - Liberec, Česká republika
Autori: Pavel Šťastný, Jan Koníček
Návrh č. 34: Rudohradský - Bratislava, Slovensko
Autori: Marek Rudohradský, Adam Kubričan, Dávid Horváth, Luka Khundadze, Maria Shinshinová, Dominika Sojková, Ivona Chmelová, Natália Černeyová
Návrh č. 35: ZARI architects - Boskovice, Česká republika
Autor: Pavel Richter
Návrh č. 36: Formanek Chromelová Filsak - Praha, Česká republika
Autori: Jiří Formanek, Lada Chromelová, Karel Filsak, Vojtěch Kettner
Návrh č. 37 (2.cena) - MACH - Barcelona, Španielsko
Autori: Laia Gelonch Llongarriu, Marc Subirana Ribera, Victoria Cirillo Chiarle, Magdalena Mannise Frutos
Návrh č. 38: PRE-UM - Bratislava, Slovensko
Autori: Filip Bránický, Simona Fischerová, Juraj Izrael
Návrh č. 39: Wood place - Podbiel, Slovensko
Autori: m47, Lukáš Ďurian, Erik Hornáček, Miroslava Kamenská, Nikolas Klimčák
Návrh č. 40: bams office + Ladislav Müller - Popůvky, Česká republika
Autori: Michal Solár, Blanka Solár, Ladislav Müller, Jan Štangl
Návrh č. 41: Michal Auxt - Praha, Česká republika
Autor: Michal Auxt
Návrh č. 42: stolařík architekti - Zlín, Česká republika
Autori: Ondřej Stolařík, Martin Velecký, Šárka Stolaříková
Návrh č. 43: studioLIBRE - Praha, Česká republika
Autori: Robert Jelínek, Michal Talabiška, Matyáš Vrtiška, Nikolai Mazhorin
Zdroj: CCEA MOBA