Novotvar v prostredí alpskej obce.
Hansgrohe - prémiová značka kúpeľňových riešení, ponúka nadčasový dizajn, technickú precíznosť a udržateľné inovácie...
Využite špeciálnu akciu Internorm: okná za minuloročné ceny a hliníkový kryt úplne zadarmo. Ponuka je časovo obmedzená!
Na podujatí sa predstaví až 37 vystavovateľov - popredných dodávateľov stavebných materiálov a inovácií s prezentáciou...
Sumarizácia najdôležitejších inovácií, ktoré redefinujúcich využitie tohto energetického zdroja.
AMPHIBIA 3000 GRIP 1.3 od spoločnosti ATRO predstavuje modernú hydroizolačnú technológiu, ktorá spája vysokú odolnosť,...
Ambiciózne plány EK narazili na ekonomické možnosti domácností v jednotlivých členských štátoch –...
IDEA DOOR od spoločnosti JAP prináša do interiéru čistý minimalistický vzhľad vďaka bezrámovému riešeniu a precíznej...
Kontinuita riešenia od vonkajšieho obkladu až po kovania a kľučky.
Nástenné nadomietkové armatúry Vitus sú mimoriadne vhodné pre rýchlu a efektívnu...
Okenné profily z kompozitného materiálu RAU-FIPRO X od spoločnosti Rehau sú v porovnaní s tradičnými plastovými profilmi mnohonásobne...
Najnovší sortiment stolov pre zariadenie interiérov...
Spojenie moderného dizajnu, funkčnosti a svetla do harmonického architektonického prvku.
Kancelárska budova Baumit v slovinskom Trzine prešla premenou na moderné a udržateľné pracovisko. Architekti kládli dôraz...
Mottom šiesteho ročníku on-line konferencie odborníkov Xella Dialóg je Efektívny návrh budov 2025+: zmeny a riešenia

Medzinárodnú architektonickú súťaž Windows in sight organizuje Internorm pravidelne od roku 2015. Cieľom súťaže je prezentácia realizácií, ktoré využívajú okná a dvere netradičným spôsobom.
Do aktuálneho ročníka súťaže sa prihlásilo doposiaľ najväčšie množstvo účastníkov. Po šiestykrát boli ocenené zaujímavé architektonické riešenia v súkromnej aj verejnej sfére.
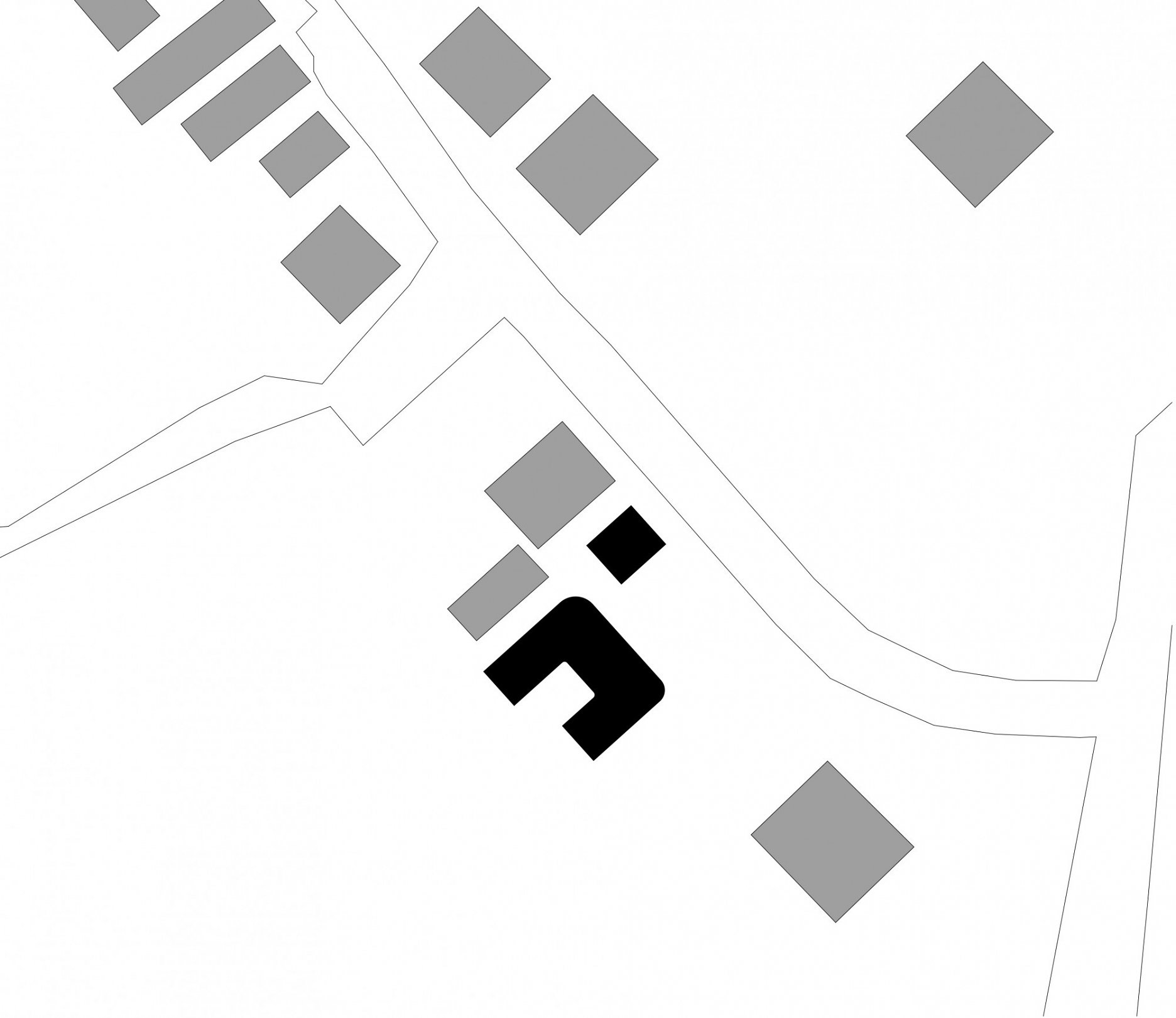
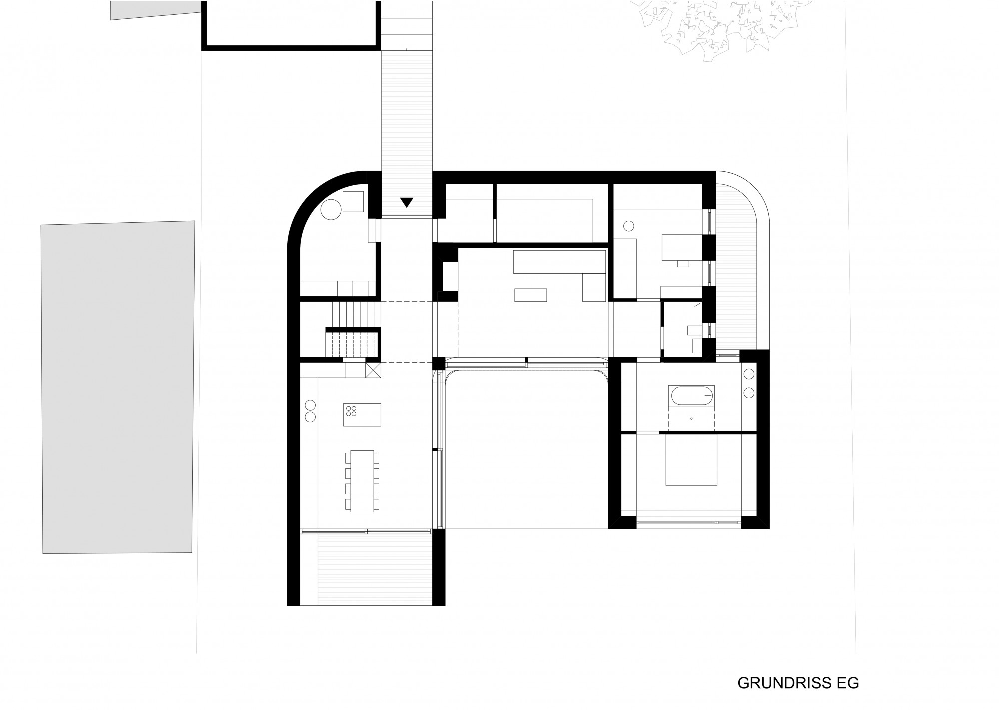
V kategórii súkromné stavby získal hlavnú cenu viedenský ateliér Juri Troy Architects za projekt "U-Haus".
Projekt "Nord 19" ateliéru Superblock zvíťazil v kategórii verejných stavieb.
Špeciálne ocenenie získal architekt Attila Béres z ateliéru Béres Architects za realizáciu víkendového domu na hranici lesa.
"Teší ma, že sa v aktuálnom ročníku súťaže zišiel opäť veľký počet kvalitných realizácií. Projekty z celej Európy ukazujú netradičné koncepty a možnosti narábania so svetlom a priestorom. Výsledkom sú svetlé, priestranné a energeticky efektívne budovy,“ uviedla Anette Klinger, spolumajiteľka firmy Internorm.
Výsledky súťaže Windows in sight 2021 v jednotlivých kategóriách:
Súkromné stavby:
Rodinný dom v prírode - Maďarsko
Autor: Juri Troy Architects
Hlavná cena - odmena 2 000 eur
Dom na úzkej a dlhej parcele v obci Unterolberndorf, 15 kilometrov severne od rakúskeho hlavného mesta. Viedenský ateliér Juriho Troya navrhol uzavretý átriový koncept, ktorý orientuje rodinný život do súkromnej zóny átria a západne orientovanej záhrady. Zároveň tvorí pohľadovú bariéru z ulice, od domov v tesnom susedstve a prijémné závetrie v chladnejších mesiacoch.
Špirálová hmota ústi do prevýšeného obývacieho priestoru, s presklenou stenou smerujúcou k výhľadom do záhrady. Vegetačná strecha odkazuje na tradíciu strešnej krajiny vínnych pivníc v okolí. “Interiér definuje neobvyklé priestorové riešenie a dôsledná práca s denným svetlom. Podstatným momentom konceptu je neustály kontakt s pokojným priestorom záhrady a átria,” vysvetľuje člen poroty, architekt Gerald Anton Steiner.
Energetický koncept stavby definuje zapustenie západnej presklenej steny a orientácia rozsiahlych plôch presklenia do átria, ktoré zamedzujú prehrievaniu stavby v letných mesiacoch. Tepelný komfort zvyšuje tiež akumulačná kapacita dodatočne zateplených keramických tvaroviek s hrúbkou 500 mm. Prijemnú klímu zabezpečuje tiež nadštandardná kvalita zasklenia.
Verejné stavby:
Obytný blok "Nord 19", Viedeň
Autor: SUPERBLOCK
Hlavná cena - odmena 2 000 eur
Polyfunkčný mestský dom vo viedenskej mestskej časti Nordbahnhof-Nord, z dielne “domáceho” ateliéru SUPERBLOCK, oslovil porotu najmä kvalitou priestorového riešenia, prepojením s okolitou mestskou štruktúrou a kvalitou vnútorného prostredia.
„Napriek mimoriadne prísnym rámcovým podmienkam dotovanej bytovej výstavby dokázali architekti vniesť do projektu riešenia, ktoré výrazne posúvajú kvalitu bývania v porovnaní so zaužívaným štandardom. Rozsiahly blok so 169 bytovými jednotkami a takmer 12 000 m2 podlahovej plochy rozčlenili do troch štíhlych objemov, prepojených spoločnou podnožou. Výsledné ´rezy´ presvetľujú nádvorie a citlivo modelujú novú štruktúru. Architektonické riešenie vytvára priestor pre rozmanitú typológiu a škálu veľkosti bytov. Osobitnou kapitolou je parter so svetlou výškou štyri metre, ktorý tvorí živú súčasť ulice, prepojenej s vnútroblokom cez voľný priechod,” konštatuje člen poroty a architekt Erwin Stättner z ateliéru Franz & Sue Architektur (víťaz Windows in sight 2019).
Architektúru definuje dualita fasád. Byty obrátené do ulice disponujú uzavretými lodžiami. Zvolené riešenie okrem filtrovania hluku tvorí tiež efektívnu ochranu proti prehrievaniu južne a západne orientovaných bytov. Byty smerujúce do pokojného vnútrobloku majú naopak rozmerné balkóny.
“Kompaktné budovy spĺňajú vysoký energetický štandard. Architekti navyše vyzdvihli aspekty udržateľnosti prostredníctvom úzkeho prepojenia medzi životom a podnikaním”, dopĺňa Anette Klinger.
Špeciálna cena:
Útulňa "MOSS" v prírodnom prostredí regiónu Alpokalja
Autor: Béres Architects
Víkendový dom s podlahovou plochou 40 m2 vznikol v úzkej spolupráci architekta Atillu Béresa a majiteľa a staviteľa Attilu Hidega. Vášeň majiteľa pre drevostavby odštartoval prvý spoločný projekt v roku 2013. Vlastné bývanie Attilu Hidega “Hideg House” zaznamenalo po dokončení výrazný ohlas vo svetových architektonických médiách.
Koncept aktuálneho projektu v prírodnom prostredí regiónu Alpokalja do značnej miery definovala požiadavka, aby Attila Hideg realizoval takmer všetky stavebné práce bez ďalšej pomoci. Dôležitou súčasťou architektonického riešenia je tiež založenie stavby na subtílnych oceľových pilieroch, ktoré minimálne zasahujú do mohutného koreňového systému okolitých stromov. Priečny rez, ktorý definuje dvojica pravých uhlov, smeruje východnú fasádu na kolmicu klesajúceho svahu.
Monochromatická obálka zo strany exteriéru, ktorá elegantne zjednocuje aj detaily rámov zasklenia a oplechovania, kontrastuje s teplými tónmi drevených povrchov v interiéri. Zjednotená materialita nechá vyniknúť to najpodstatnejšie - nerušený výhľad do krajiny, ktorá sa stáva súčasťou obytného prostredia.
Dôležitou súčasťou konceptu sú technické parametre zasklenia, ktoré spolu s nadštandardnou izoláciou obvodových konštrukcií umožňujú prevádzku s minimálnou spotrebou elektrickej energie. Mikroklíma lesa eliminuje prehrievanie konštrukcií v letných mesiacoch a umožňuje vypustiť exteriérové tienenie.
Stavba realizovaná ”jednochlapovou firmou” si od poroty zaslúžila uznanie najmä vďaka premyslenému architektonickému konceptu a prepojeniu s krajinou.
Za podklady ďakujeme spoločnosti Internorm.
Viac informácií nájdete na internorm-architecture.com.