Na podujatí sa predstaví až 37 vystavovateľov - popredných dodávateľov stavebných materiálov a inovácií s prezentáciou...
Novotvar v prostredí alpskej obce.
Hansgrohe - prémiová značka kúpeľňových riešení, ponúka nadčasový dizajn, technickú precíznosť a udržateľné inovácie...
Využite špeciálnu akciu Internorm: okná za minuloročné ceny a hliníkový kryt úplne zadarmo. Ponuka je časovo obmedzená!
Sumarizácia najdôležitejších inovácií, ktoré redefinujúcich využitie tohto energetického zdroja.
AMPHIBIA 3000 GRIP 1.3 od spoločnosti ATRO predstavuje modernú hydroizolačnú technológiu, ktorá spája vysokú odolnosť,...
Ambiciózne plány EK narazili na ekonomické možnosti domácností v jednotlivých členských štátoch –...
IDEA DOOR od spoločnosti JAP prináša do interiéru čistý minimalistický vzhľad vďaka bezrámovému riešeniu a precíznej...
Kontinuita riešenia od vonkajšieho obkladu až po kovania a kľučky.
Nástenné nadomietkové armatúry Vitus sú mimoriadne vhodné pre rýchlu a efektívnu...
Okenné profily z kompozitného materiálu RAU-FIPRO X od spoločnosti Rehau sú v porovnaní s tradičnými plastovými profilmi mnohonásobne...
Najnovší sortiment stolov pre zariadenie interiérov...
Spojenie moderného dizajnu, funkčnosti a svetla do harmonického architektonického prvku.
Kancelárska budova Baumit v slovinskom Trzine prešla premenou na moderné a udržateľné pracovisko. Architekti kládli dôraz...
Mottom šiesteho ročníku on-line konferencie odborníkov Xella Dialóg je Efektívny návrh budov 2025+: zmeny a riešenia

Zaujímavý objekt nachádzajúci sa v zložitom sídelnom kontexte. Bytový dom je vzhľadom na územné limity urobený sympaticky a čisto. Oceňujeme jednoduché ortogonálne biele hmoty, primeranú mierku, celkovú kultivovanosť a striedmosť architektonického výrazu. Najmä v kontexte susednej heterogénnej zástavby.
Architektonická tvorba je často o kompromisoch, hľadaní miest kde je možné pridať, alebo naopak ubrať. V Devínskej Novej Vsi sa podarilo napriek východiskovým obmedzeniam nájsť vyvážené i úspešné riešenie. Všetky byty, s výnimkou dvojice najdrahších si našli svojho majiteľa.
Lokalita
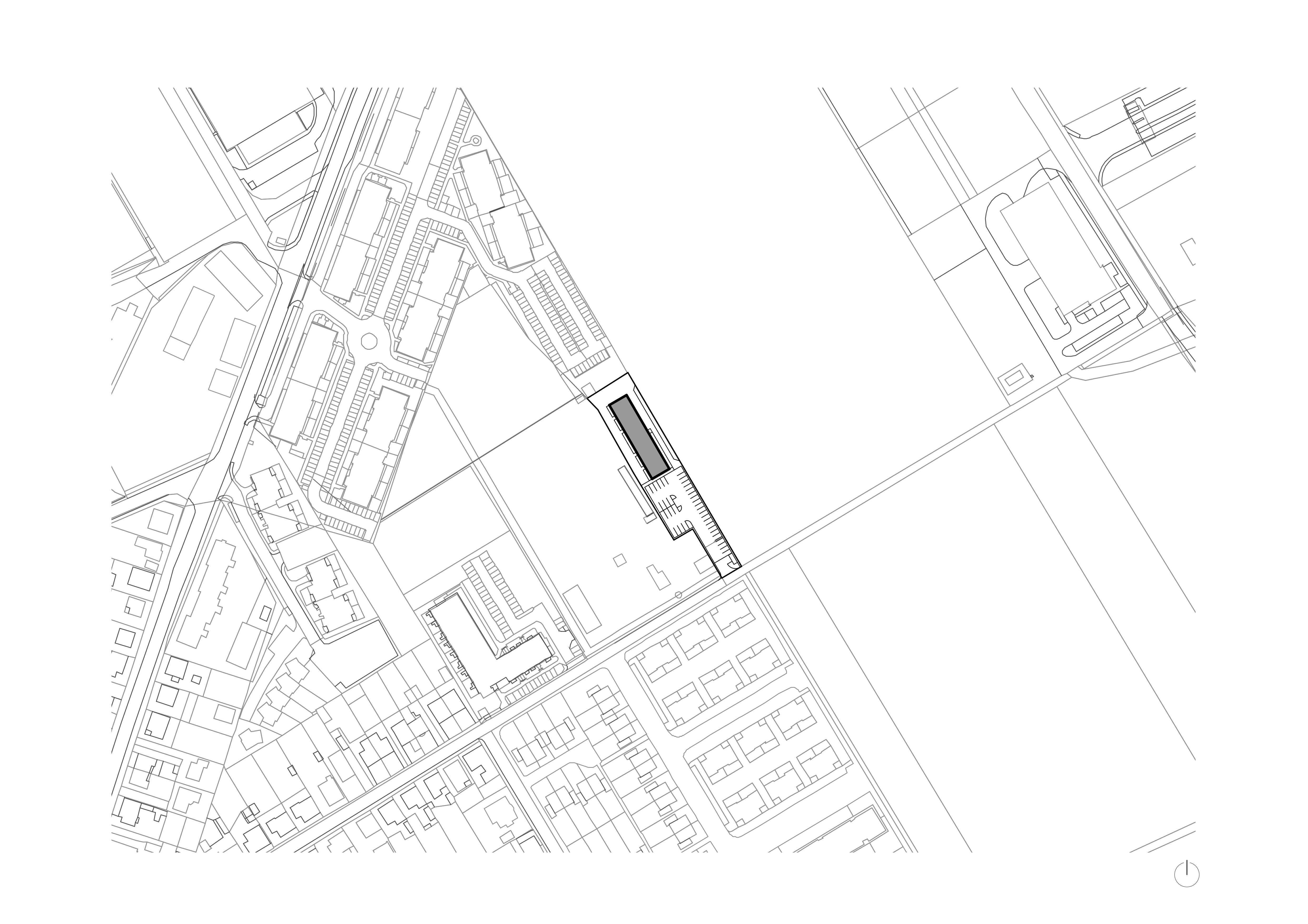
Štvorpodlažná novostavba s tridsiatkou menších bytov sa nachádza v Devínskej Novej Vsi, na severovýchodnom okraji novej zástavby. Bytový dom je prístupný zo záveru ulice Bystrická, ktorej predĺženie smeruje priamo k objektom fabriky Volkswagen. Od nich je stavba oddelená pomerne širokým pásom (zatiaľ) nezastavanej lúky.
Výhodou lokality je dobré dopravné napojenie, dostatok zelene, blízkosť rieky Morava či priame spojenie s Rakúskom prostredníctvom Cyklomosta slobody. Naopak, medzi limitujúce faktory patrí bezprostredná blízkosť výrobného areálu, prebiehajúca výstavba v okolí, či slabšia občianska vybavenosť.
Koncepta a dispozícia
Spomínané dôvody viedli k prehodnoteniu pôvodného investičného zámeru a realizácii menších a dostupnejších bytov. Statická doprava (40 parkovacích miest) je vyriešená na úrovni terénu. Parkovisko nadväzuje bezprostredne na Bystrickú ulicu, stavba je situovaná na juhozápadnej hrane oploteného areálu. Zvyšný verejný priestor tvoria zatrávnené plochy s drobnými sadovníckymi úpravami.
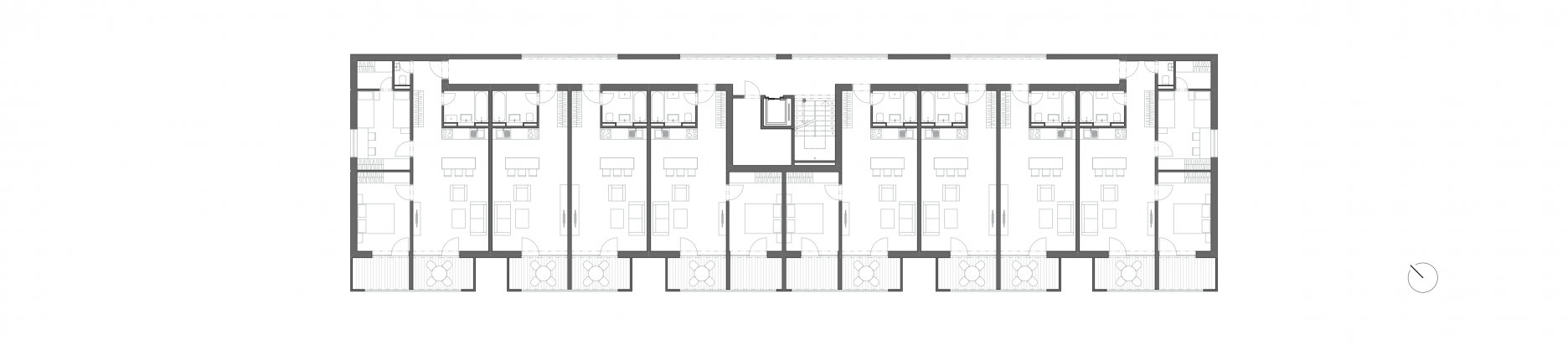
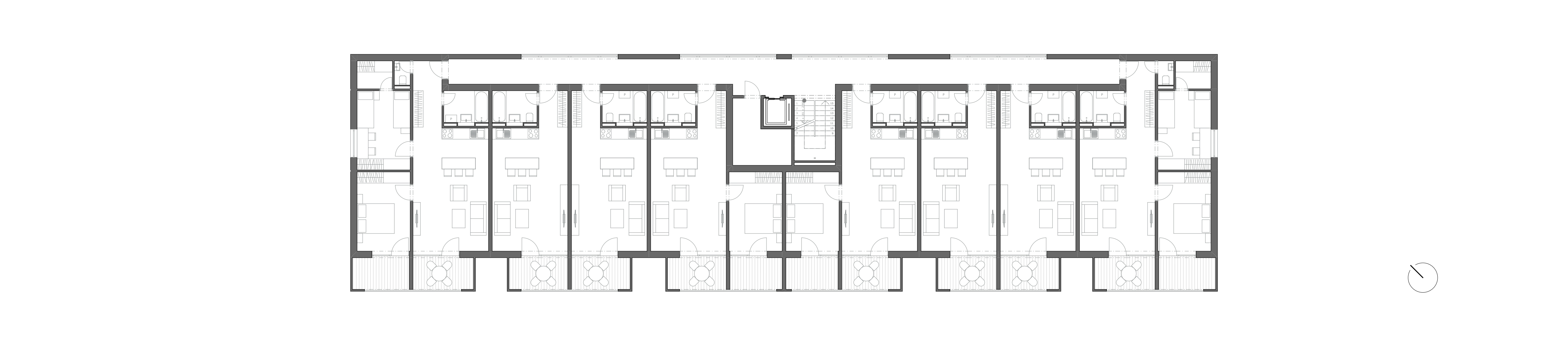
Do domu sa vstupuje zo severovýchodnej strany, z chodníka vedúceho pozdĺž hladkej fasády. Byty sú prístupné zo zasklenej pavlače, ktorú obsluhuje centrálne komunikačné jadro s výťahom a dvojramenným schodiskom. Na štyroch nadzemných podlažiach je celkovo 32 bytových jednotiek. Skladba bytov sa pravidelne opakuje - na každom podlaží nájdeme “mix” malých jednoizbových bytov (s kuchynským kútom), väčších “dvojizbákov” a nakoniec “trojizbákov” v koncových polohách. špecifické sú byty na prízemí, ktoré disponujú vlastnými predzáhradkami orientovanými na slnečnú juhozápadnú stranu. Všetky byty majú prístup na priestranné lodžie, ktoré sú charakteristickým prvkom architektonického riešenia.
Konštrukčné riešenie
Železobetónová stenová konštrukcia, vyplnená plynosilikátovými, tvárnicami je zateplená kontaktným fasádnym systémom Baumit open. Ako pohľadová vrstva zo strany exteriéru je použitá fasádna omietka Baumit NanoporTop.
Výkresová dokumentácia - zhora: situácia, pôdorysy 1-4 NP, pohľady:
Fasáda
Plasticky formovaná juhozápadná fasáda je najvýraznejším architektonickým prvkom stavby. Šachovnicovo rozmiestnené polouzavreté lodžie značne rozširujú obytný priestor bytov. Exteriér vsádza na monochromatické farebné riešenie. Tmavé okenné rámy podporujú jednoznačnosť kompozície. Zábradlia sú doplnené plechovými panelmi perforovanými pravidelnou štruktúrou kruhových otvorov. Polotransparentný raster adresuje potrebu súkromia obyvateľov, zároveň však nie je výraznou optickou bariérou pri pohľade do exteriéru.
Pekný projekt i kvalitná práca architekta. Chýba nám však väčšie spojenie nového objektu s okolitou urbánnou štruktúrou, aktívnejšia kooperácia i previazanosť so širším okolím. Spoločenský život komunity obyvateľov je introvertný. V exteriéri je obmedzený na bezprostredné, trochu stiesnené okolie objektu. Život prebieha vnútri oploteného areálu. Veľkú časť disponibilného pozemku tvoria tvrdé povrchy parkoviska. Je to daň za parametre pozemku i za tlak na ekonomiku projektu.
Podklady: Milan Kiaček
Generálny dodávateľ: COLORSTAV-TEAM
Hlavný manažér stavby: Ing. Mário Bulko / BM Building