Na podujatí sa predstaví až 37 vystavovateľov - popredných dodávateľov stavebných materiálov a inovácií s prezentáciou...
Novotvar v prostredí alpskej obce.
Hansgrohe - prémiová značka kúpeľňových riešení, ponúka nadčasový dizajn, technickú precíznosť a udržateľné inovácie...
Využite špeciálnu akciu Internorm: okná za minuloročné ceny a hliníkový kryt úplne zadarmo. Ponuka je časovo obmedzená!
Sumarizácia najdôležitejších inovácií, ktoré redefinujúcich využitie tohto energetického zdroja.
AMPHIBIA 3000 GRIP 1.3 od spoločnosti ATRO predstavuje modernú hydroizolačnú technológiu, ktorá spája vysokú odolnosť,...
Ambiciózne plány EK narazili na ekonomické možnosti domácností v jednotlivých členských štátoch –...
IDEA DOOR od spoločnosti JAP prináša do interiéru čistý minimalistický vzhľad vďaka bezrámovému riešeniu a precíznej...
Kontinuita riešenia od vonkajšieho obkladu až po kovania a kľučky.
Nástenné nadomietkové armatúry Vitus sú mimoriadne vhodné pre rýchlu a efektívnu...
Okenné profily z kompozitného materiálu RAU-FIPRO X od spoločnosti Rehau sú v porovnaní s tradičnými plastovými profilmi mnohonásobne...
Najnovší sortiment stolov pre zariadenie interiérov...
Spojenie moderného dizajnu, funkčnosti a svetla do harmonického architektonického prvku.
Kancelárska budova Baumit v slovinskom Trzine prešla premenou na moderné a udržateľné pracovisko. Architekti kládli dôraz...
Mottom šiesteho ročníku on-line konferencie odborníkov Xella Dialóg je Efektívny návrh budov 2025+: zmeny a riešenia

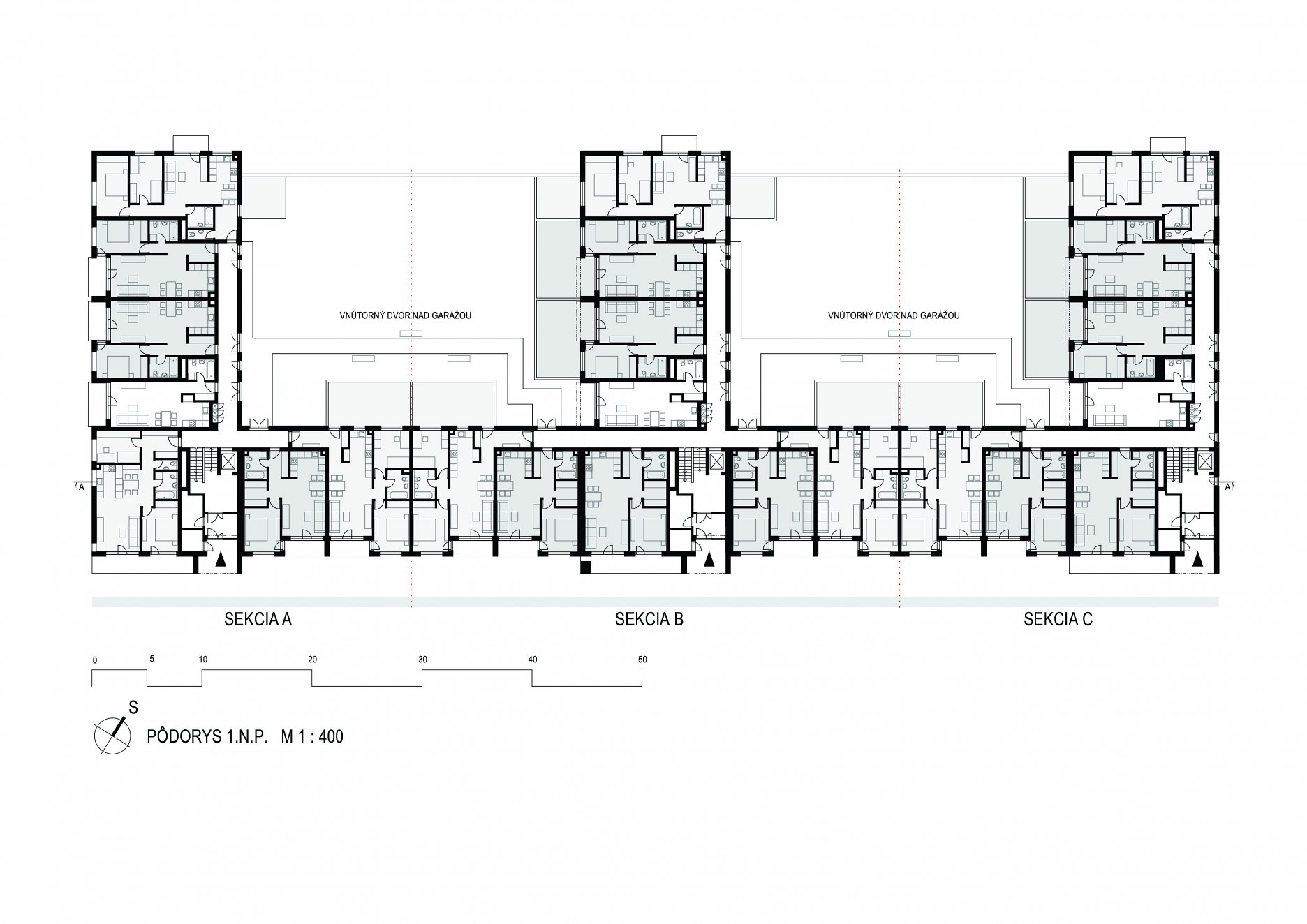
Bytový dom na rozhraní nízkopodlažnej zástavby rodinných domov a susediacich viacpodlažných obytných blokov. Členitá obytná štruktúra stúpajúca smerom k vyšším susedom zabezpečuje veľmi dobré preslnenie bytov, vnútorných dvorov a prístup na stupňovité strešné terasy. Investor sa v tomto prípade vzdal polyfunkčného partera. Zodvihnutím podzemného podlažia (garáže) sa byty na prvom poschodí dostali nad úroveň ulice. Zároveň vznikol priestor pre prevýšené vstupy, ktoré od ulice delí široký zelený pás.
Architektonická tvorba je často o kompromisoch, hľadaní miest kde je možné pridať, alebo naopak ubrať. V Trnávke sa podarilo napriek východiskovým obmedzeniam nájsť hmotovo vyvážené riešenie.
Architektúra
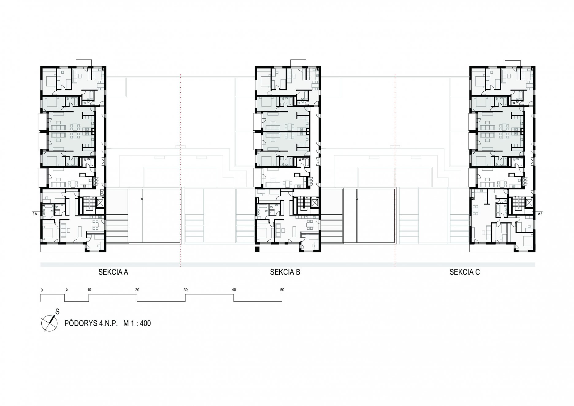
Z podnože, prebiehajúcej paralelne s ulicou Na Križovatkách, vystupujú smerom do dvora tri kolmé obytné bloky. Bytový dom ohraničuje dva privátne dvory, zdvihnuté nad úroveň okolitého terénu. Členeniu objektu zodpovedajú tri samostatné vstupy (A,B,C). Dvoj až trojpodlažná podnož reaguje na výšku okolitých rodinných domov, zatiaľ čo kolmé ramená dorovnávajú výšku susedných bytoviek.
Najväčšia časť polozapusteného suterénu je vyhradená pre parkovanie, zvyšok zaberajú pivničné kobky a technické zázemie budovy. Ploché strechy nižšieho traktu sú využité ako strešné terasy pre jednotlivé byty. Strecha nad suterénom, medzi ramenami objektu, je využívaná ako vnútorný zelený dvor s predzáhradkami. Oddychová časť, vyhradená pre obyvateľov domu, umožňuje ďalšiu výsadbu okrasnej a extenzívnej zelene.
Vzhľadom na obmedzený rozpočet návrh pracuje iba s tromi vizuálnymi materiálmi v základnom použití - omietka, kompozitné dosky a oceľové prvky s povrchovou úpravou.
"Celkový zámer bol navrhnúť bytový dom tak, aby sa odlíšil od okolitej bytovej zástavby, mal veľa zelene, kultivované vstupy, aby byty neboli plošne poddimenzované a loggie s predzáhradkami sa dali aktívne využívať a neslúžili iba pre sušiak na prádlo. Bytový dom nedisponuje žiadnymi high-tech technológiami," vysvetľujú architekti.
Prevádzka a dispozícia
Do vnútorných dvorov sú orientované vždy iba byty z jedného traktu (oproti je situovaná chodba), čo zvyšuje intimitu bytov. Kolmé ramená bytového domu sú výškovo odstupňované. Najnižšie - juhozápadné má štyri nadzemné podlažia, stredné je päťposchodové a krajné, severovýchodné siaha do výšky šiestich nadzemných podlaží. Spojnice medzi kolmými ramenami objektu majú výšku dvoch až troch podlaží. Zvolená hmotová skladba zabezpečuje priaznivé preslnenie bytov a vnútorných dvorov. Všetky spoločné priestory, vstup a chodby sú prirodzene presvetlené a odvetrané. Skladba 95 bytových jednotiek pokrýva pokrýva široké veľkostné spektrum. Od jednoizbových bytov až po niekoľko "štvorizbákov".
Stavebno-technické riešenie
Nosné, oceľobetónové konštrukcie kombinujú architekti s výplňovým murivom Porotherm. Stropné monolitické dosky, s hrúbkou 250 mm a rozponom polí až do 7,7 m, sú ukladané na železobetónové steny, alebo prievlaky. V suteréne ich dopĺňajú bezprievlakové dosky s doskovými hlavicami. Obvodový plášť je zateplený minerálnou vlnou hrúbky 100 mm. Vonkajšie silikátové omietky, použité v dvoch farebných odtieňoch, zvýrazňujú priestorové členenie objektu. Tmavosivé zábradlia dopĺňajú kompozitné dosky Fundermax. Plastové okná s bielymi rámami sú podľa potreby členené na francúzske okná a okná s parapetmi. Zasklenie vstupných priestorov, vsadené do tmavosivých hliníkových rámov, chráni vystupujúci prístrešok. Všetky vnútorne omietky sú vápenocementové.
Ploché strechy nad najvyššími podlažiami ukončujú klasické atiky. Pochôdzna časť strechy, ktorá je súčasťou strešnej terasy, je navrhnutá s obrátenou skladbou vrstiev. Strecha nad suterénom, medzi ramenami objektu, je porastená extenzívnou zeleňou.