Advertorial

95 rokov Internorm: 30 miliónov okien a dverí z Rakúska

Európska značka okien oslavuje jubileum: za 95 rokov sa vyvinula na najväčšiu medzinárodne pôsobiacu okennú značku a inovačného...

Pozvánka na 2. ročník stavebného veľtrhu BigMarket na Slovensku

Na podujatí sa predstaví až 37 vystavovateľov - popredných dodávateľov stavebných materiálov a inovácií s prezentáciou...

Hotel Hirschen Spa House, Rakúsko

Novotvar v prostredí alpskej obce.

Vytvorte si kúpeľňu snov: dizajnové riešenie od značky hansgrohe

Hansgrohe - prémiová značka kúpeľňových riešení, ponúka nadčasový dizajn, technickú precíznosť a udržateľné inovácie...

Okná Internorm za minuloročné ceny + hliníkový kryt zdarma!

Využite špeciálnu akciu Internorm: okná za minuloročné ceny a hliníkový kryt úplne zadarmo. Ponuka je časovo obmedzená!

Moderné plynové technológie: Efektivita a inovácie pre 21. storočie

Sumarizácia najdôležitejších inovácií, ktoré redefinujúcich využitie tohto energetického zdroja.

Utesňovanie spodných stavieb pomocou hydro-aktívnej fólie AMPHIBIA.

AMPHIBIA 3000 GRIP 1.3 od spoločnosti ATRO predstavuje modernú hydroizolačnú technológiu, ktorá spája vysokú odolnosť,...

Dekarbonizácia individuálneho vykurovania domácností – Green Deal evolučne a nie revolučne

Ambiciózne plány EK narazili na ekonomické možnosti domácností v jednotlivých členských štátoch –...

Minimalistické dvere IDEA – technická precíznosť a čistota prevedenia

IDEA DOOR od spoločnosti JAP prináša do interiéru čistý minimalistický vzhľad vďaka bezrámovému riešeniu a precíznej...

Dom s výhľadom na údolie, Dlouhý Most (ČR)

Kontinuita riešenia od vonkajšieho obkladu až po kovania a kľučky.

Schell Vitus – osvedčené riešenie pre sprchy a umývadlá vo verejnom sektore s viac ako desaťročnou tradíciou

Nástenné nadomietkové armatúry Vitus sú mimoriadne vhodné pre rýchlu a efektívnu...

Kompozitné okná predstavujú súčasnosť a budúcnosť

Okenné profily z kompozitného materiálu RAU-FIPRO X od spoločnosti Rehau sú v porovnaní s tradičnými plastovými profilmi mnohonásobne...

Myotis - stoly 2025

Najnovší sortiment stolov pre zariadenie interiérov...

Priemyselné sklenené priečky Dorsis Digero: svetelné rozhranie pre moderné interiéry

Spojenie moderného dizajnu, funkčnosti a svetla do harmonického architektonického prvku.

Význam prirodzeného svetla pre moderné a flexibilné pracovné prostredie

Kancelárska budova Baumit v slovinskom Trzine prešla premenou na moderné a udržateľné pracovisko. Architekti kládli dôraz...

Rekonštrukcia multifunkčnej sály pod kostolom Dona Bosca na Dornkapli v Trnávke

Komunitný priestor bez príkras.
Diela
Red 427.03.2019
31860+34
Rekonštrukcia multifunkčnej sály pod kostolom Dona Bosca na Dornkapli v Trnávke
Autori: Ing. arch. Borislav Benedek, Ing. arch. Michal LangPodlažná plocha: 403,59 m2Návrh: 2018 - 2018Realizácia: 2018 - 2019Adresa: Okružná 13, Bratislava, SlovenskoPublikované: 27. marec 2019

Dobrá architektúra je často o hľadaní efektívneho, nie efektného riešenia. Niekedy stačí nechať vyniknúť samotný priestor, precízne dotiahnuť osvetlenie a akustiku. Myslieť na trvácnosť materiálov a údržbu. Vynaložené prostriedky využiť účelne v prospech komunity.

Stručný pohľad do histórie

Základný kameň kostola Trnávke bol položený v roku 1937. Plány oratória a kostola spracoval významný domáci staviteľ Ing. Gabriel Schreiber. Don Šimončič, ako organizátor a prvý direktor tunajšieho saleziánskeho diela, pripravili investičný zámer. Kostol mal byť trojloďový, zároveň však účelný a moderný. Odpoveďou Schreibera bol pomerne progresívny návrh rozmernej trojloďovej pseudohaly, s plochými stropmi, ktorá bola na juhozápade ukončená modernistickým vstupným blokom a kostolnou vežou. Pre nedostatok finančných prostriedkov však boli práve tieto dva prvky vylúčené. Aj keď je stavba oproti pôvodnému návrhu architekta značne menšia a konzervatívnejšia, stále nesie Schreiberov rukopis (podieľal sa okrem iného na návrhu budovy Charitas v Bratislave). Patrí medzi pekné príklady účelovej stavby postavenej v duchu doznievajúceho funkcionalizmu. Železobetónovú kostru kostola vypĺňa tehlové murivo.

Súčasťou stavby je sála pod kostolom, kde sa už pred vojnou pravidelne konali divadelné predstavenia, prednášky a premietali filmy. Oratórium tak okrem oživenia náboženského života prispievalo aj k šíreniu vzdelania a kultúry a v tejto podobe predstavovalo vskutku „kultúrny dom“, ktorý fungoval aj v ťažkých rokoch vojny. Výrazné zastúpenie mala aj podpora športovej činnosti.

Koncom šesťdesiatych rokov bol kostol južným smerom predĺžený o poldruha modulu (9 m) a ukončený presklenou predsieňou a krytou terasou. V predĺžení kostola bol v celej šírke hlavnej lode postavený masívny chór, na hlavnej fasáde pribudla sgrafitová výzdoba. Funkcionalistický základ stavby sa postupne dostal do úzadia.

Komunitný život v novom

Architekti Lang a Benedek vstupovali do "živého" priestoru. Po návrate saleziánov do Trnávky v roku 1989 bol opäť obnovený komunitný život. V starej sále pod kostolom sa organizovali stretnutia, prednášky, divadelné hry i športové aktivity... Dokonca tu bola aj lezecká stena. V sále sa zišlo niekedy až tristo ľudí. Interiér bol výrazne opotrebovaný.

Investor sa na architektov obrátil s požiadavkou na inštaláciu vzduchotechniky, ktorá by zabezpečila efektívnu výmenu vzduchu v podzemnom polozapustenom priestore s jednostranne orientovanými oknami. Nová vzduchotechnika slúži zároveň na aj vetranie kostola. V bočných lodiach sú trasované rozvody prekryté akustickými lamelami z netkaných tepelne tvarovaných textilných vlákien s prírodným, mäkko pôsobiacim povrchom. Doplnené sú novým líniovým LED osvetlením korešpondujúcim s trámovým stopom hlavnej lode kostola.

Pôvodné zadanie sa značne rozšírilo. Komplexnou rekonštrukciou prešiel aj multifunkčný priestor pod kostolom. Úlohou architektov bolo zlepšiť vnútorné prostredie a zebezpečiť nenáročnú prevádzku a údržbu interiéru.

V otvorenom priestore je jasne čitateľná veľkorozponová železobetónová nosná konštrukcia stavby. Steny, strop a nosné prvky sú zjednotené bielym náterom, ktorý spolu s lamelami (akustické "baffle") zavesenými pod stropom napomáha k rovnomernej distribúcii svetla v interiéri. Mäkké horné osvetlenie zabezpečujú líniové LED svietidlá umiestnené pri styku trámov a stropnej dosky. Od svetlého priestoru multifunkčnej sály (športoviska, komunitného priestoru, hľadiska…) je vizuálne odčlenený tmavý priestor javiska a nový “vložený” prvok schodiska.

Pribudla nová polyuretánová liata podlaha, ktorá si zachovala pôvodnú farebnosť. Využitiu priestoru plne zodpovedajú aj sokle z HPL (vysokotlakový laminát) platní, ktoré sú odolné a ľahko umývateľné. Sokle elegantne ukrývajú pôvodné neestetické panelové radiátory. Na zadnej stene sály boli použité akustické lamely, ktoré sú odolné voči mechanickému opotrebeniu.

Do sály pod kostolom sa vchádza cez repliky pôvodných dvoch dvojkrídlových dverí, osadených do oceľových zárubní. Schodisko v sále architekti odstránili a nahradili novým montovaným blokom, ktorý má zároveň funkciu tabule a skladu v podschodiskovom priestore. Nové výstupné rameno vedie k redizajnovanému prevýšenému dvernému otvoru, obalenému vrátane ostení do HPL (obdobne ako sokle), ktorý prepája sálu s čajovňou a pastoračnými priestormi. Zároveň slúži ako druhý vstup do sály, spred hlavného vchodu do kostola. Medzi javiskom a strojovňou vzduchotechniky je vybudovaná ťažká akustická stena s novým dverným otvorom. Pod pódiom vznikol skladový priestor pre stohovateľné stoličky zo Španielskej Valencie ladené v neutrálnom "taupe" odtieni. Ťažké čierne blackoutové závesy na oknách tienia priestor počas predstavení.

Ramená vedúce z podlažia kostola, ktoré nadväzujú na hlavný vstup do sály z oratória, ubytovacieho bloku a "námestia za kostolom" architekti zachovali a zrekonštruovali. Nechali vyniknúť pôvodné terrazzové stupne a medzipodesty. Zachované ostali zábradlia aj farebnosť soklov. Pekným detailom sú autentické medené dilatácie medzi ramenami schodísk a podestami. Uvoľnením priestoru pred hlavným vstupom do sály pod kostolom vznikol príjemný vestibul s nástupnou plochou s možnosťou umiestnenia recepcie a mobilnej garderóby.

Foto: Welinna
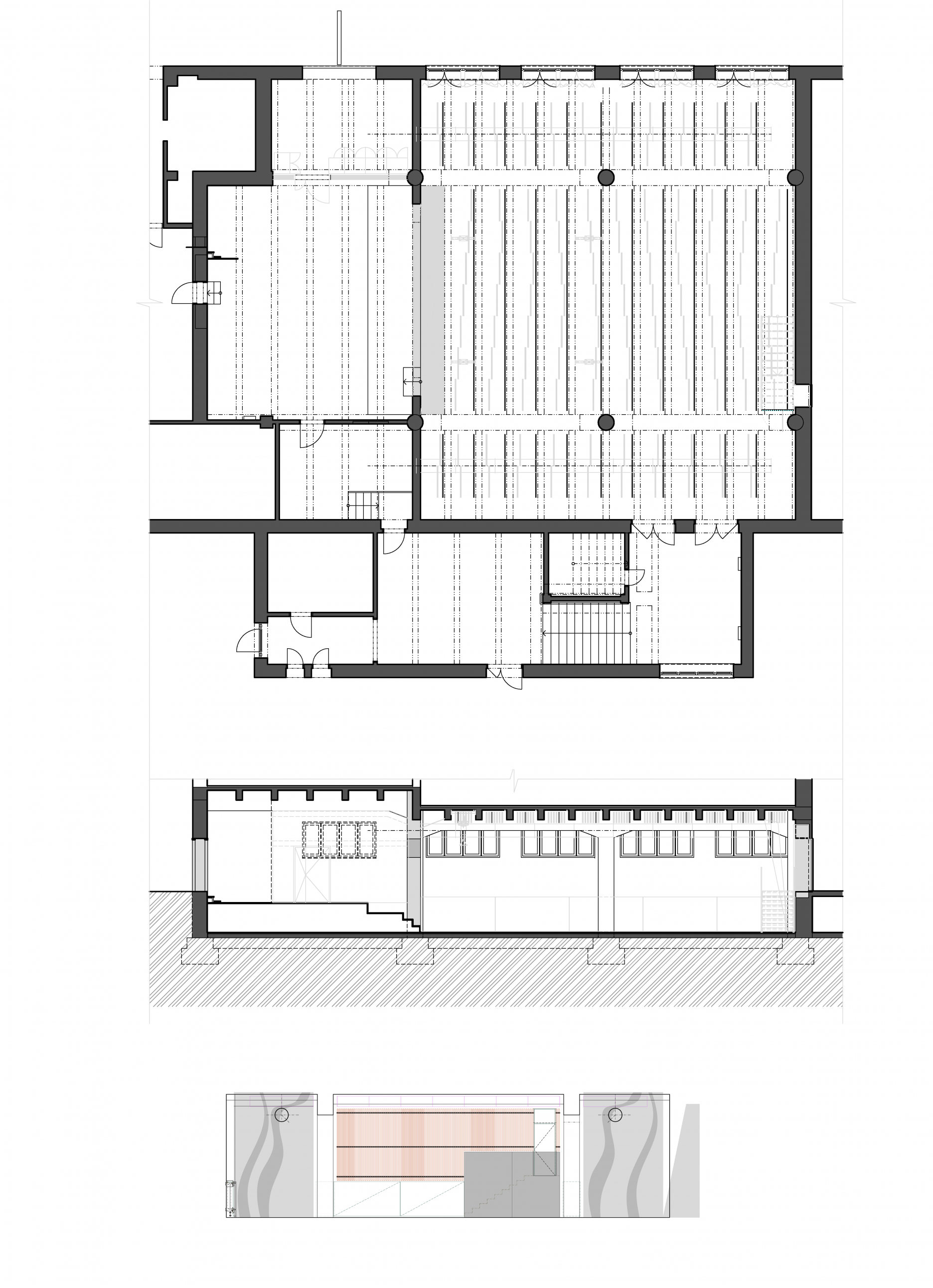
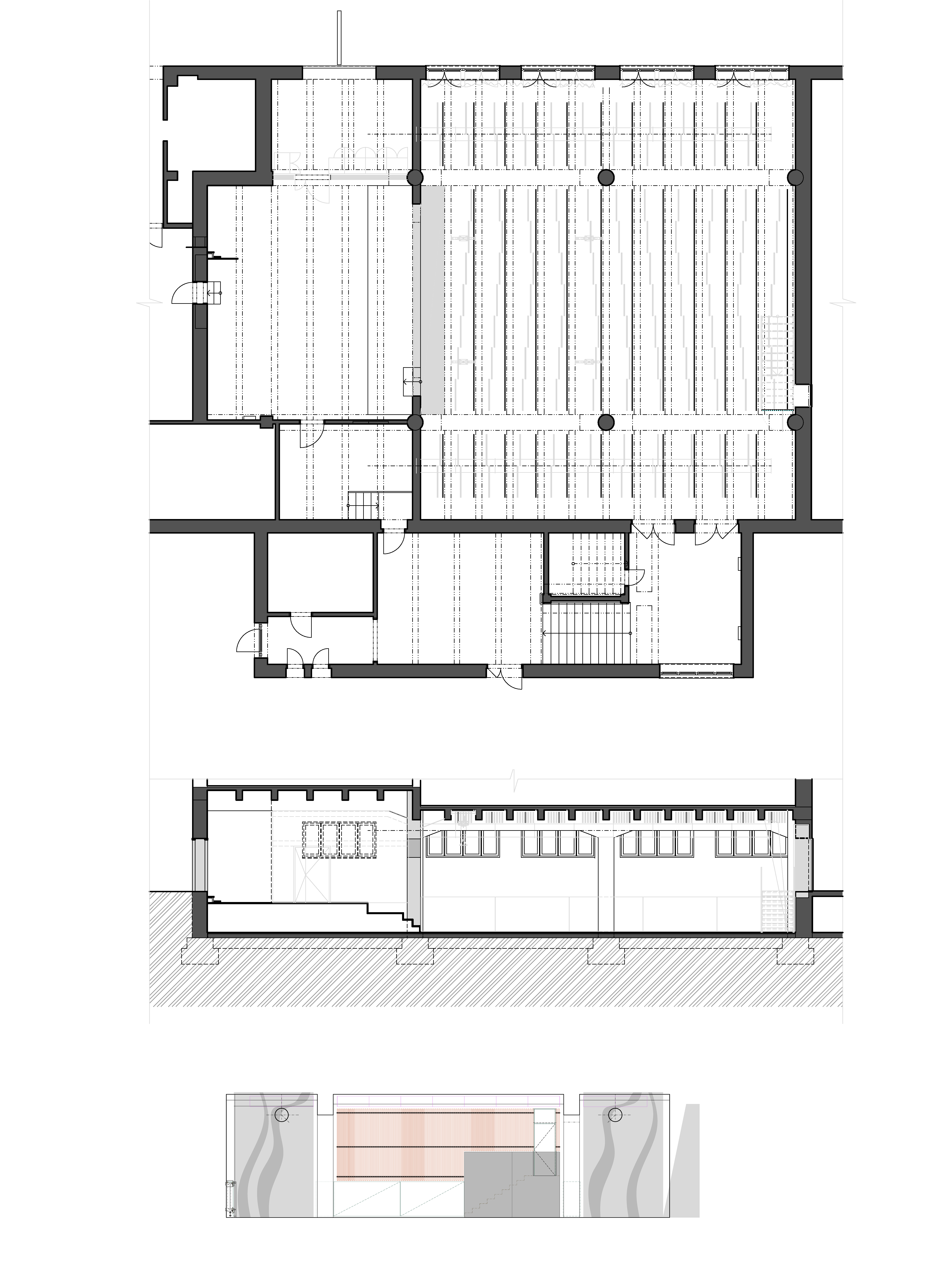
Pôdorys, rez a rozvinutý pohľad
Pôdorys, rez a rozvinutý pohľadAutor: Lang Benedek Associated Architects
Foto: Welinna
Foto: Welinna
Foto: Welinna
Foto: Welinna
Foto: Welinna
Foto: Welinna
Foto: Welinna
Foto: Welinna
Foto: Welinna
Foto: Welinna
Foto: Welinna
Foto: Welinna
Foto: Welinna
Foto: Welinna
Foto: Welinna
Foto: Welinna
Foto: Welinna
Foto: Welinna
Foto: Welinna
Foto: Welinna
Kostol sv. Dona Bosca a Saleziánsky ústav na Dornkapli
Kostol sv. Dona Bosca a Saleziánsky ústav na DornkapliFoto: Jana Hamšíková
Pôvodný návrh Gabriela Schreibera
Pôvodný návrh Gabriela SchreiberaScan: Saleziánske dielo na Trnávke

Poloha diela

Ing. arch. Borislav Benedek
Ing. arch. Michal Lang

Súvisiace články

Vložené
25. marec 2019
0
3186
Hlavný obsahHlavný obsah
Čakajte prosím