Advertorial

Pozvánka na 2. ročník stavebného veľtrhu BigMarket na Slovensku

Na podujatí sa predstaví až 37 vystavovateľov - popredných dodávateľov stavebných materiálov a inovácií s prezentáciou...

Hotel Hirschen Spa House, Rakúsko

Novotvar v prostredí alpskej obce.

Vytvorte si kúpeľňu snov: dizajnové riešenie od značky hansgrohe

Hansgrohe - prémiová značka kúpeľňových riešení, ponúka nadčasový dizajn, technickú precíznosť a udržateľné inovácie...

Okná Internorm za minuloročné ceny + hliníkový kryt zdarma!

Využite špeciálnu akciu Internorm: okná za minuloročné ceny a hliníkový kryt úplne zadarmo. Ponuka je časovo obmedzená!

Moderné plynové technológie: Efektivita a inovácie pre 21. storočie

Sumarizácia najdôležitejších inovácií, ktoré redefinujúcich využitie tohto energetického zdroja.

Utesňovanie spodných stavieb pomocou hydro-aktívnej fólie AMPHIBIA.

AMPHIBIA 3000 GRIP 1.3 od spoločnosti ATRO predstavuje modernú hydroizolačnú technológiu, ktorá spája vysokú odolnosť,...

Dekarbonizácia individuálneho vykurovania domácností – Green Deal evolučne a nie revolučne

Ambiciózne plány EK narazili na ekonomické možnosti domácností v jednotlivých členských štátoch –...

Minimalistické dvere IDEA – technická precíznosť a čistota prevedenia

IDEA DOOR od spoločnosti JAP prináša do interiéru čistý minimalistický vzhľad vďaka bezrámovému riešeniu a precíznej...

Dom s výhľadom na údolie, Dlouhý Most (ČR)

Kontinuita riešenia od vonkajšieho obkladu až po kovania a kľučky.

Schell Vitus – osvedčené riešenie pre sprchy a umývadlá vo verejnom sektore s viac ako desaťročnou tradíciou

Nástenné nadomietkové armatúry Vitus sú mimoriadne vhodné pre rýchlu a efektívnu...

Kompozitné okná predstavujú súčasnosť a budúcnosť

Okenné profily z kompozitného materiálu RAU-FIPRO X od spoločnosti Rehau sú v porovnaní s tradičnými plastovými profilmi mnohonásobne...

Myotis - stoly 2025

Najnovší sortiment stolov pre zariadenie interiérov...

Priemyselné sklenené priečky Dorsis Digero: svetelné rozhranie pre moderné interiéry

Spojenie moderného dizajnu, funkčnosti a svetla do harmonického architektonického prvku.

Význam prirodzeného svetla pre moderné a flexibilné pracovné prostredie

Kancelárska budova Baumit v slovinskom Trzine prešla premenou na moderné a udržateľné pracovisko. Architekti kládli dôraz...

Konferencia Xella Dialóg predstaví novinky a trendy v stavebníctve

Mottom šiesteho ročníku on-line konferencie odborníkov Xella Dialóg je Efektívny návrh budov 2025+: zmeny a riešenia

Rodinný dom Bulharská 52, Bratislava

Dom architekta.
Diela
Red 316.07.2021
103230+81
Rodinný dom Bulharská 52, Bratislava
Autori: Ing. arch. Michal Lang, Ing. arch. Borislav BenedekPlocha pozemku: 385,00 m2Zastavaná plocha: 114,35 m2Podlažná plocha: 186,95 m2Návrh: 2018 - 2019Realizácia: 2019 - 2021Adresa: Bulharská 52, Bratislava , SlovenskoPublikované: 16. júl 2021

Prerod polovice malého dvojdomu v bratislavskom Ružinove. Kompaktná uličná fasáda tvorí bariéru od rušnej ulice. Do záhrady vstupuje otvorená denná zóna, ktorá rozširuje bývanie o priamy kontakt s exteriérom. Uličný blok a dostavbu domu zjednocuje obklad z lícových tehál.

Úžitková plocha jednopodlažného domu so štvorcovým pôdorysom sa zobytnením podkrovia a prístavbou zväčšila z 88 na 150 m2. Prístavba, s rozmerným zasklením orientovaným na juhovýchod - do priestoru záhrady, rozširuje dennú časť domu o komfortnú obývačku pre štvorčlennú rodinu. Nový blok dennej zóny je priamo prepojený so záhradou a odpočinkovou exteriérovou terasou.

Foto: WELINNA
Foto: WELINNA

Historický kontext lokality a východiská návrhu

Bulharská ulica tvorí centrálnu tepnu prechádzajúcu cez miestnu časť Trnávka. V jej okolí (ulica Bencúrová, Na Križovatkách - jedna z najširších ulíc v Bratislave) žila komunita Bulharov v domoch s rozsiahlymi záhradami. Dopestované ovocie a zeleninu tu predávali v drevených stánkoch pred typickými dvojdomami s lipovou alejou. Jednou z mála zachovaných líp je práve tá na Bulharskej 52.

Realizácia ateliéru LANG BENEDEK ASSOCIATED ARCHITECTS rešpektuje podstatu miesta a pôvodný archetyp dvojdomu so sedlovou strechou, ktorý je dodnes neoddeliteľnou súčasťou uličnej zástavby (v situácii naznačené svetlosivou farbou). 

Plánovaná prestavba a dostavba polovice dvojdomu sa kvôli stavu pôvodných konštrukcií nakoniec zmenila na novostavbu. Pôdorysné rozšírenie skoro na hranicu parcely oddelilo záhradu od rušnej ulice.

Situácia
SituáciaAutor: LANG BENEDEK ASSOCIATED ARCHITECTS

"Koncept návrhu minimalizuje perforácie hmoty smerom k hlučným a prašným priestorom frekventovanej ulice Bulharská, snaží sa maximálne otvoriť objekt do záhrady. Nočnú časť podkrovia tvorí loft / otvorený priestor a samostatná kúpeľňa. Celok dopĺňa dvojica detských izieb, ktoré sú len formálne delené šatníkom. Celé podkrovie je riešené s priznanými smrekovými KVH krokvami a záklopom zo smrekovej biodosky. Tehličkový obklad dverí, smerujúcich do rušnej ulice, dotvára kompaktný výraz v uličnej línii. Vzhľadom na hluk je do ulice situovaná len predsieň, kúpeľňa a technická miestnosť. Malý mestský dom bol zámer"... vysvetľujú architekti Michal Lang a Borislav Benedek.

Foto: WELINNA

Dispozícia

Hlavný vstup na severozápadnej uličnej fasáde sprístupňuje zádverie so šatníkom, ktorého súčasťou je technológia domu. Zo vstupu je prístupné hosťovské WC s umývadlom. Zádverie voľne prechádza do priestoru centrálne situovanej jedálne s jednoramenným schodiskom, ktorého súčasťou je kuchynský kút. V plynule nadväzujúcom priestore prístavby je situovaná obývacia izba. 

Denná zóna je pri schodisku prepojená so spálňou dverami pri posuvnej časti presklenej steny a nástupnej hrane schodiska. K rodičovskej izbe prislúcha priechodný šatník a rodičovská kúpeľňa so sprchou, WC a umývadlom.

Pôdorys prízemia
Pôdorys prízemiaAutor: LANG BENEDEK ASSOCIATED ARCHITECTS
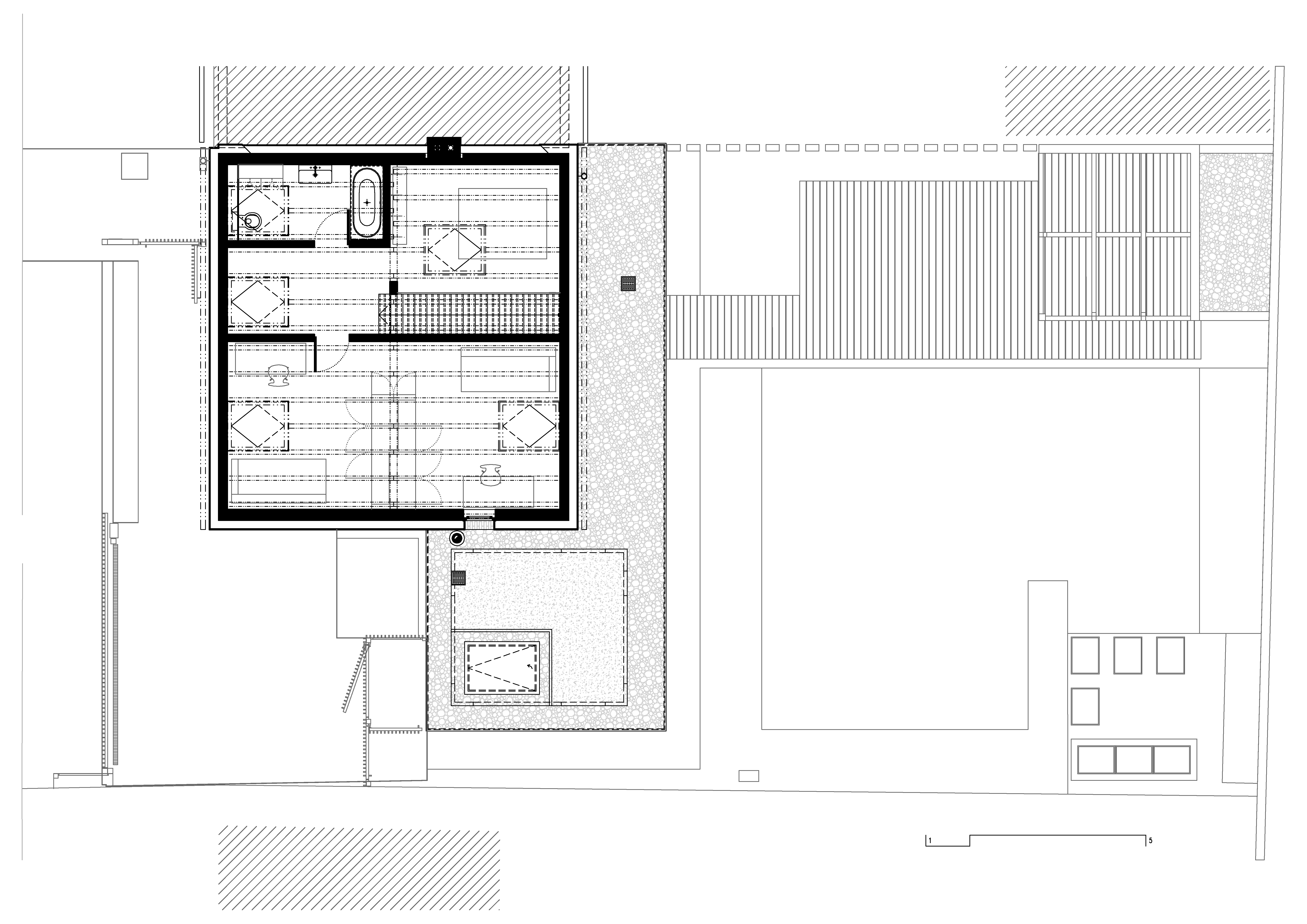
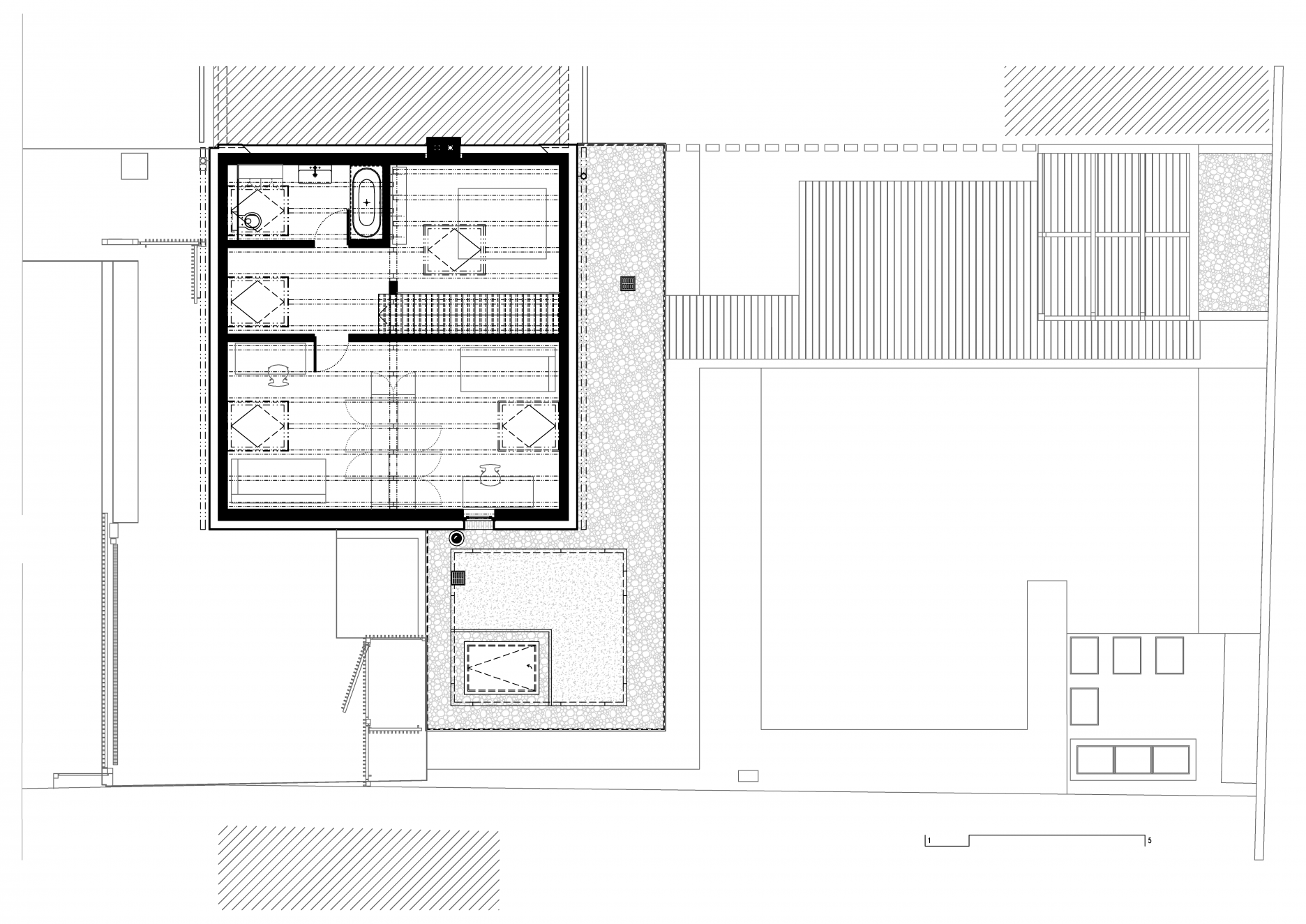
Pôdorys podkrovia
Pôdorys podkroviaAutor: LANG BENEDEK ASSOCIATED ARCHITECTS

Nočná časť v podkroví domu zahŕňa otvorený multifunkčný priestor s televíziou a hosťovským rozťahovacím futonom. Celok slúži i ako plocha pre cvičenie. Loft komunikuje s prízemím cez minimálnu bariéru v podobe štyroch laniek zábradlia. Odľahčené oceľové schodisko sa stáva súčasťou priestoru, nakoľko do podkrovia nevchádzame medzi dvomi stenami.

Podkrovie dopĺňa dvojica detských izieb, ktoré fungujú ako spoločný otvorený priestor. Nábytkový blok šatníka formálne delí miestnosť na dve samostatné zóny. Zónu orientovanú do záhrady dosvetľuje okrem strešného okna aj malé štvorcové okienko osadené na štítovej stene s výhľadom na zelenú strechu a svetlík nad obývačkou.

Pozdĺžny rez
Pozdĺžny rezAutor: LANG BENEDEK ASSOCIATED ARCHITECTS
Priečny rez
Priečny rezAutor: LANG BENEDEK ASSOCIATED ARCHITECTS
Juhozápadný pohľad
Juhozápadný pohľadAutor: LANG BENEDEK ASSOCIATED ARCHITECTS
Priestorová schéma
Priestorová schémaAutor: LANG BENEDEK ASSOCIATED ARCHITECTS

Konštrukčné a materiálové riešenie

Obvodové konštrukcie domu boli zateplené izolačnými lamelami z minerálnej vlny. Fasády zjednocuje kontaktne lepený lícový keramický obklad. Filozofia ukladania tehál vychádza z viacerých princípov. Textúra keramického obkladu v prírodnom hlinenom odtieni radeného vertikálne evokuje kladenie nosného muriva. Z dôvodu zvýraznenia horizontálnej špáry a voľného radenia vertikálnych špár je hmota vo výsledku horizontálna a vyvážená s príjemnejšou mierkou. Plasticita plášťa sa podporila jednak orezaním vertikálnych hrán obkladu prechádzajúcich do ostení, čim vzniká kontrast rustikálnej - prírodnej čelnej plochy obkladu voči architektonickej - technickej hrane a jednak zvýraznením hĺbky tmavšieho špárovania.

Nová konštrukcia krovu zdvihla úroveň hrebeňa sedlovej strechy o pol metra, čím vznikol priestor pre miestnosti v obytnom podkroví. Krokvy uložené v pôvodnom sklone 35°, sú priznané zo strany interiéru vrátane celoplošného záklopu z biodosky nad nimi. Strešná rovina je zateplená nadkrokvovou izoláciou z PIR panelov a minerálnej vlny, v ktorej sú skryté výmeny strešných okien. Ukončená je falcovanou hliníkovou krytinou v šedobielom odtieni.

Foto: WELINNA
Foto: WELINNA
Foto: WELINNA

Interiér

Pre interiér je charakteristický rukopis ateliéru LANG BENEDEK ASSOCIATED ARCHITECTS. Na monochromatickom základe vyniká kresba prírodných materiálov. Kompozíciu dotvárajú precízne detaily zariadenia zhotoveného na mieru a vybraný mobiliár s doplnkami. Podlažia prepája vzdušné zavesené celooceľové schodisko.

Prízemie sprevádza kombinácia pohľadových betónových plôch stien a stropu, ku ktorým sú ladené vstavané kusy nábytku výrazovo v teplom svetlošedom odtieni v kontraste k bielym matným plochám stien. Plochy podlahy zjednocuje masívna drevená šedá dubová podlaha farebne ladená k pohľadovým betónom. Dispozícia spálne prízemia vrcholí svetlým veľkoformátovým akcentom obkladu rodičovskej kúpeľne, kde je podčiarknutý aspekt preplávajúcej dispozície a preslnenia priestoru v hĺbke dispozície z východu i západu.

Prírodné lino na podlahe v podkroví a vnútorné plochy vstavaného nábytku šatníka detských izieb sú farebne zjednotené s pohĺadovým betónom. Pohľadové plochy šatníka ladia so stenami v bielom matnom odtieni a podčiarkujú farebnosť a štruktúru priznaného krovu. Doplnkové nábytkové prvky loftu a kúpeľne sú vyrobené zo smrekovej biodosky. Kúpeľňa je riešená guľôčkovou bielou matnou mozaikou doplnená o farebnú stierku v odtieni špárovacej hmoty.

Foto: WELINNA
Foto: WELINNA
Foto: WELINNA
Foto: WELINNA
Foto: WELINNA
Foto: WELINNA
Foto: WELINNA
Foto: WELINNA
Foto: WELINNA

Podklady: LANG BENEDEK ASSOCIATED ARCHITECTS
Foto: WELINNA


Použité materiály a riešenia:

Tehlový obklad: Wienerberger, Terca, lícová tehla Oud Laethem WF

Zateplenie: fasáda - Isover NF 333, sokel - Isover EPS 150 PERIMETER, plochá strecha - Isover EPS 150 + extenzívna zeleň, šikmá strecha - Isover S + PUREN PLUS, podlaha prízemia - Izolačné panely termPIR AL, podlaha podkrovia - Isover EPS Floor 5000

Výplne otvorov fasády: okná, dreve - Reynaers Masterline 8 + SGG CLIMAPLUS, zasklená stena - Reynaers CP 155 (-LS) SlimChicane + štrukturálne sklá SGG CoolLite Xtreme 70/33 (ESG z interiéru)

Strešná krytina: Prefa, Prefalz (PR), 10 P.10 biela

Výplne otvorov strešnej roviny: strešné okná - Velux GGU Black, svetlík plochej strechy - Velux Integra CVP (elektricky ovládaná základňa) + ISD (zaoblené zasklenie)

Automatizácia: Inteligentný systém TapHome ovláda osvetlenie, exteriérové žalúzie, vykurovanie a chladenie, reguluje výmenu vzduchu. Ovláda tiež vstupné brány, prepojené s videovrátnikom a zavlažovanie trávnikov. Výhodou je aj vzdialená kontrola nad domom.

Poloha diela

Ing. arch. Michal Lang
Ing. arch. Borislav Benedek

Súvisiace články

VELUX SLOVENSKO spol. s r.o.SKPrinášame Vám svetlo
Vložené
30. jún 2021
0
10323
Hlavný obsahHlavný obsah
Čakajte prosím