Advertorial

Pozvánka na 2. ročník stavebného veľtrhu BigMarket na Slovensku

Na podujatí sa predstaví až 37 vystavovateľov - popredných dodávateľov stavebných materiálov a inovácií s prezentáciou...

Hotel Hirschen Spa House, Rakúsko

Novotvar v prostredí alpskej obce.

Vytvorte si kúpeľňu snov: dizajnové riešenie od značky hansgrohe

Hansgrohe - prémiová značka kúpeľňových riešení, ponúka nadčasový dizajn, technickú precíznosť a udržateľné inovácie...

Okná Internorm za minuloročné ceny + hliníkový kryt zdarma!

Využite špeciálnu akciu Internorm: okná za minuloročné ceny a hliníkový kryt úplne zadarmo. Ponuka je časovo obmedzená!

Moderné plynové technológie: Efektivita a inovácie pre 21. storočie

Sumarizácia najdôležitejších inovácií, ktoré redefinujúcich využitie tohto energetického zdroja.

Utesňovanie spodných stavieb pomocou hydro-aktívnej fólie AMPHIBIA.

AMPHIBIA 3000 GRIP 1.3 od spoločnosti ATRO predstavuje modernú hydroizolačnú technológiu, ktorá spája vysokú odolnosť,...

Dekarbonizácia individuálneho vykurovania domácností – Green Deal evolučne a nie revolučne

Ambiciózne plány EK narazili na ekonomické možnosti domácností v jednotlivých členských štátoch –...

Minimalistické dvere IDEA – technická precíznosť a čistota prevedenia

IDEA DOOR od spoločnosti JAP prináša do interiéru čistý minimalistický vzhľad vďaka bezrámovému riešeniu a precíznej...

Dom s výhľadom na údolie, Dlouhý Most (ČR)

Kontinuita riešenia od vonkajšieho obkladu až po kovania a kľučky.

Schell Vitus – osvedčené riešenie pre sprchy a umývadlá vo verejnom sektore s viac ako desaťročnou tradíciou

Nástenné nadomietkové armatúry Vitus sú mimoriadne vhodné pre rýchlu a efektívnu...

Kompozitné okná predstavujú súčasnosť a budúcnosť

Okenné profily z kompozitného materiálu RAU-FIPRO X od spoločnosti Rehau sú v porovnaní s tradičnými plastovými profilmi mnohonásobne...

Myotis - stoly 2025

Najnovší sortiment stolov pre zariadenie interiérov...

Priemyselné sklenené priečky Dorsis Digero: svetelné rozhranie pre moderné interiéry

Spojenie moderného dizajnu, funkčnosti a svetla do harmonického architektonického prvku.

Význam prirodzeného svetla pre moderné a flexibilné pracovné prostredie

Kancelárska budova Baumit v slovinskom Trzine prešla premenou na moderné a udržateľné pracovisko. Architekti kládli dôraz...

Konferencia Xella Dialóg predstaví novinky a trendy v stavebníctve

Mottom šiesteho ročníku on-line konferencie odborníkov Xella Dialóg je Efektívny návrh budov 2025+: zmeny a riešenia

Dom S 80, Kittsee

Možno aj toto by mohol byť jeden z príkladov pre slovenských stavebníkov rodinných domov.
Diela
Red 330.04.2017
26880+14
Dom S 80, Kittsee
Autori: Ing. arch. Borislav Benedek, Ing. arch. Michal LangPlocha pozemku: 616,00 m2Zastavaná plocha: 154,01 m2Podlažná plocha: 154,02 m2 + 28,47 m2 garážNávrh: 2015 - 2016Realizácia: 2016 - 2017Adresa: Kitsee, RakúskoPublikované: 30. apríl 2017

Dispozícia obvyklá, rozsah a objem podobný ako v mnohých katalógových domoch, žiadne tvarové a materiálové exhibície (nadštandardom je akurát exteriérový bazén). Predsa však vidno, že výsledok nie je bežnou rutinou, ale niekto sa snažil o ucelené a zároveň nie drahé riešenie. A práve to je najväčším kladom domu. Hmoty sú jednoduché, vyvážené a dôstojné. Dielo nie je také čisté a nezávislé, ako napríklad vlastný dom Borislava Benedeka. Cítiť, že investor bol menej odvážny a skôr preferoval klasickejšie riešenia priestorov i dispozície. Poteší však, že i takéto požiadavky sa dajú riešiť primerane a dobre. Slovenský vklad v Kitsee začína byť viditeľný. V tých lepších prípadoch (ku ktorým nepochybne patrí tvorba Benedeka a Langa, viď súvisiace články) vytvára zárodok nového "moderného" štandardu v štruktúre individuálneho bývania, ktoré do tejto rakúskej lokality priniesli noví slovenskí obyvatelia i architekti.

Dvojpodlažný rodinný dom s garážou v Kitsee, neďaleko Bratislavy, nie je prvou realizáciou ateliéru Borislava Benedeka a Michala Langa v tejto lokalite. V minulosti sme predstavili Vilu S72 aj susediaci jednopodlažný rodinný dom. Novostavba S 80 sa nachádza vo vznikajúcej uličnej zástavbe rodinných domov. V susedstve, cez cestu sa nachádzajú dvojpodlažné bytové domy s plochou strechou. Pozemok je rovinatý, s výhľadmi na Berg a marhuľové sady, ktoré sú typické pre Kittsee.

Foto: Soňa Sadloňová

Dom využíva takmer celú šírku pozemku, od juhozápadndej hranice je odsadený o 3 metre. Na opačnej strane garáž nadväzuje priamo na severovýchodnú hranicu parcely. Nachádza sa tu aj hlavný vstup do domu.

Foto: Soňa Sadloňová

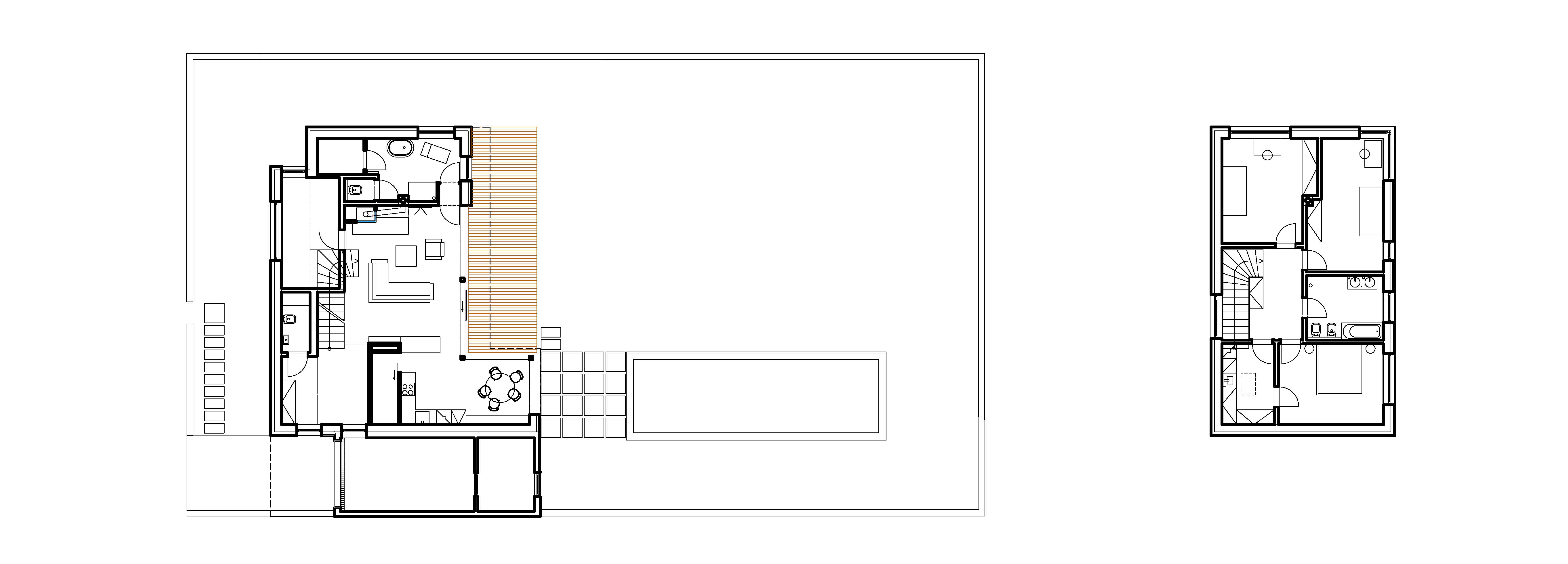
Pri vstupe je technická miestnosť a WC. Centrálnu časť domu tvorí otvorený obytný priestor s kuchyňou a jedálňou. Prístup na terasu a výhľad do záhrady zabezpečuje zasklenie s posuvnými dverami. Na prízemí dvojpodlažného objektu sa okrem obývačky nachádza telocvičňa/hosťovská izba so samostatným vstupom, saunou a hygienickým zázemím. V budúcnosti môže slúžiť aj ako malá samostatná bytová jednotka. Z jednoduchého obdĺžnikového pôdorysu prízemia je vysunutý presklený blok jedálne. Tento priestor prebieha v línii bazénu a zabezpečuje súkromie a južné svetlo pre obytnú časť domu, nakoľko je záhrada orientovaná na severozápad.

Na poschodie vedie otvorené schodisko. V nočnej časti domu sa okrem troch spální a priestornej kúpeľňe nachádza aj rozmerný šatník spojený s práčovňou, ktorý je prístupný aj z rodičovskej izby.

Pôdorysy
PôdorysyAutor: LANG BENEDEK ASSOCIATED ARCHITECTS
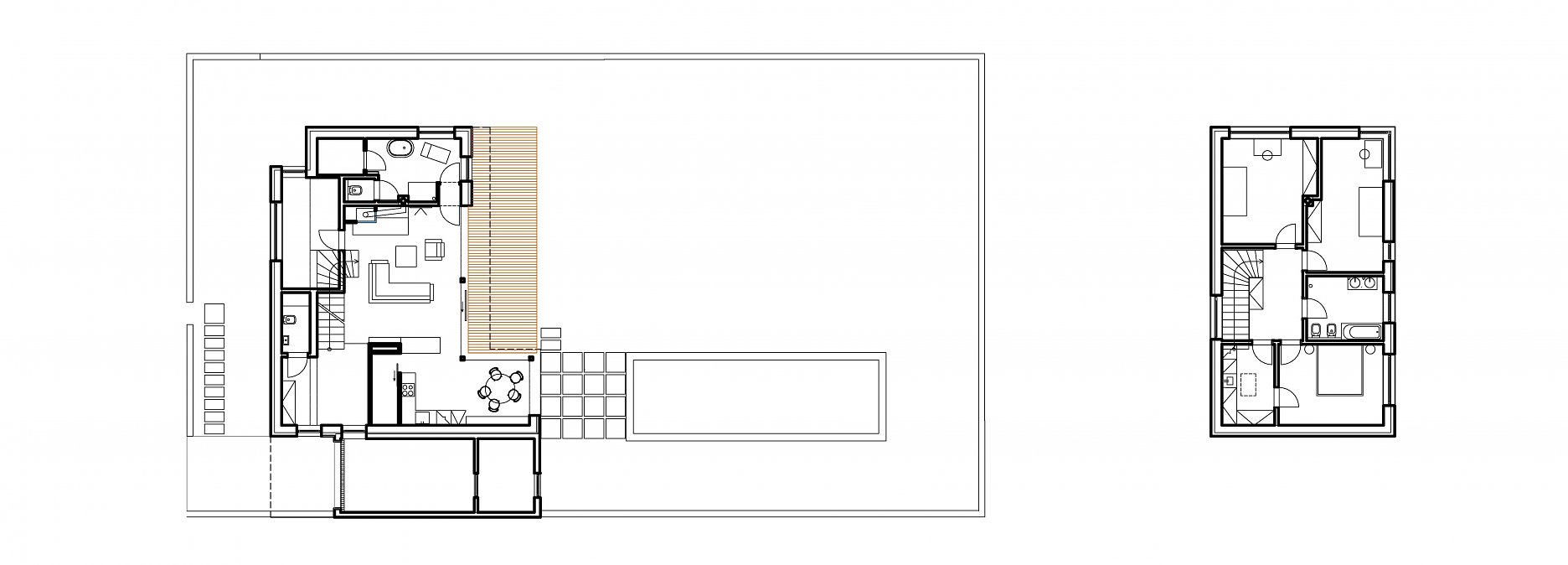
Pohľady
PohľadyAutor: LANG BENEDEK ASSOCIATED ARCHITECTS

Stavba je založená na základových pásoch. Za bielou omietkou sa ukrývajú múry z keramických tvárnic, ktoré sú z vonkajšej strany dodatočne zateplené. Betónové tvárnice sú použité ako časť oplotenia a dlažba pred vstupom do domu. Trojkombináciu materiálov dopĺňajú vertikálne členené drevené obklady. Okenné a dverné výplne tvoria hliníkové profily antracitovej farby, ktoré sú zasklené kvalitným izolačným trojsklom. Ploché strechy sú riešené ako nepochôdzne, ochrannú vrstvu tvorí štrkový zásyp.

Kúrenie a ohrev vody zabezpečuje tepelné čerpadlo typu zem-voda. Dažďová voda je zachytávaná na pozemku.

Foto: Soňa Sadloňová
Foto: Soňa Sadloňová
Foto: Soňa Sadloňová
Foto: Soňa Sadloňová

Poloha diela

Ing. arch. Borislav Benedek
Ing. arch. Michal Lang

Súvisiace články

Vložené
27. apríl 2017
0
2688
Hlavný obsahHlavný obsah
Čakajte prosím