Advertorial

Pozvánka na 2. ročník stavebného veľtrhu BigMarket na Slovensku

Na podujatí sa predstaví až 37 vystavovateľov - popredných dodávateľov stavebných materiálov a inovácií s prezentáciou...

Hotel Hirschen Spa House, Rakúsko

Novotvar v prostredí alpskej obce.

Vytvorte si kúpeľňu snov: dizajnové riešenie od značky hansgrohe

Hansgrohe - prémiová značka kúpeľňových riešení, ponúka nadčasový dizajn, technickú precíznosť a udržateľné inovácie...

Okná Internorm za minuloročné ceny + hliníkový kryt zdarma!

Využite špeciálnu akciu Internorm: okná za minuloročné ceny a hliníkový kryt úplne zadarmo. Ponuka je časovo obmedzená!

Moderné plynové technológie: Efektivita a inovácie pre 21. storočie

Sumarizácia najdôležitejších inovácií, ktoré redefinujúcich využitie tohto energetického zdroja.

Utesňovanie spodných stavieb pomocou hydro-aktívnej fólie AMPHIBIA.

AMPHIBIA 3000 GRIP 1.3 od spoločnosti ATRO predstavuje modernú hydroizolačnú technológiu, ktorá spája vysokú odolnosť,...

Dekarbonizácia individuálneho vykurovania domácností – Green Deal evolučne a nie revolučne

Ambiciózne plány EK narazili na ekonomické možnosti domácností v jednotlivých členských štátoch –...

Minimalistické dvere IDEA – technická precíznosť a čistota prevedenia

IDEA DOOR od spoločnosti JAP prináša do interiéru čistý minimalistický vzhľad vďaka bezrámovému riešeniu a precíznej...

Dom s výhľadom na údolie, Dlouhý Most (ČR)

Kontinuita riešenia od vonkajšieho obkladu až po kovania a kľučky.

Schell Vitus – osvedčené riešenie pre sprchy a umývadlá vo verejnom sektore s viac ako desaťročnou tradíciou

Nástenné nadomietkové armatúry Vitus sú mimoriadne vhodné pre rýchlu a efektívnu...

Kompozitné okná predstavujú súčasnosť a budúcnosť

Okenné profily z kompozitného materiálu RAU-FIPRO X od spoločnosti Rehau sú v porovnaní s tradičnými plastovými profilmi mnohonásobne...

Myotis - stoly 2025

Najnovší sortiment stolov pre zariadenie interiérov...

Priemyselné sklenené priečky Dorsis Digero: svetelné rozhranie pre moderné interiéry

Spojenie moderného dizajnu, funkčnosti a svetla do harmonického architektonického prvku.

Význam prirodzeného svetla pre moderné a flexibilné pracovné prostredie

Kancelárska budova Baumit v slovinskom Trzine prešla premenou na moderné a udržateľné pracovisko. Architekti kládli dôraz...

Konferencia Xella Dialóg predstaví novinky a trendy v stavebníctve

Mottom šiesteho ročníku on-line konferencie odborníkov Xella Dialóg je Efektívny návrh budov 2025+: zmeny a riešenia

Mezonet v bratislavskej Dúbravke

Bývanie na sídlisku ako ho nepoznáme. Veľkorysé, otvorené, s rozsiahlou terasou.
Diela
Red 315.05.2018
36950+35
Mezonet v bratislavskej Dúbravke
Autori: Ing. arch. Borislav Benedek, Ing. arch. Michal LangPodlažná plocha: 174 m2Návrh: 2017 - 2017Realizácia: 2017 - 2018Adresa: Dúbravka , Bratislava, SlovenskoPublikované: 15. máj 2018

Architekti stáli pred neľahkou úlohou prestavby veľkého mezonetového bytu. Interiér, ktorý vznikal pre mladú rodinu s troma deťmi, zaberá dve najvyššie podlažia domu v Dúbravke. Hlavnou prednosťou pôvodného priestoru v pätnásťročnej bytovke bola veľkorysá obytná plocha a strešná terasa s výmerou 120 m2. Napriek tomu, že sa tiahne pozdĺž celého ustúpeného podlažia, bola pôvodne prístupná len z dvoch izieb.

Investor požadoval radikálnu rekonštrukciu bytu, čomu zodpovedá aj rozpočet. Na finálnom výsledku je cítiť množstvo času, ktoré rekonštrukcii venovali architekti aj majiteľ.

Foto - Studio Flusser: Zdeněk Porcal, Petr Dub
Foto - Studio Flusser: Zdeněk Porcal, Petr Dub

Najvýraznejšou zmenou dispozície je vloženie novej “platformy” na poschodie bytu. Toto riešenie umožňuje priamy prístup na terasu, čím odstraňuje najväčší nedostatok pôvodného bytu. Na otvorenej galérii našla svoje miesto knižnica s policami vytiahnutými až po strop. "Čiteteľ" má z tohto miesta prehľad o dianí v celom byte.

Po rekonštrukcii sa denná časť bytu premenila na veľký otvorený priestor, ktorý spája kuchyňu, jedáleň a obývaciu izbu. Otvorenosť umocňuje svetlá výška cez dve podlažia.

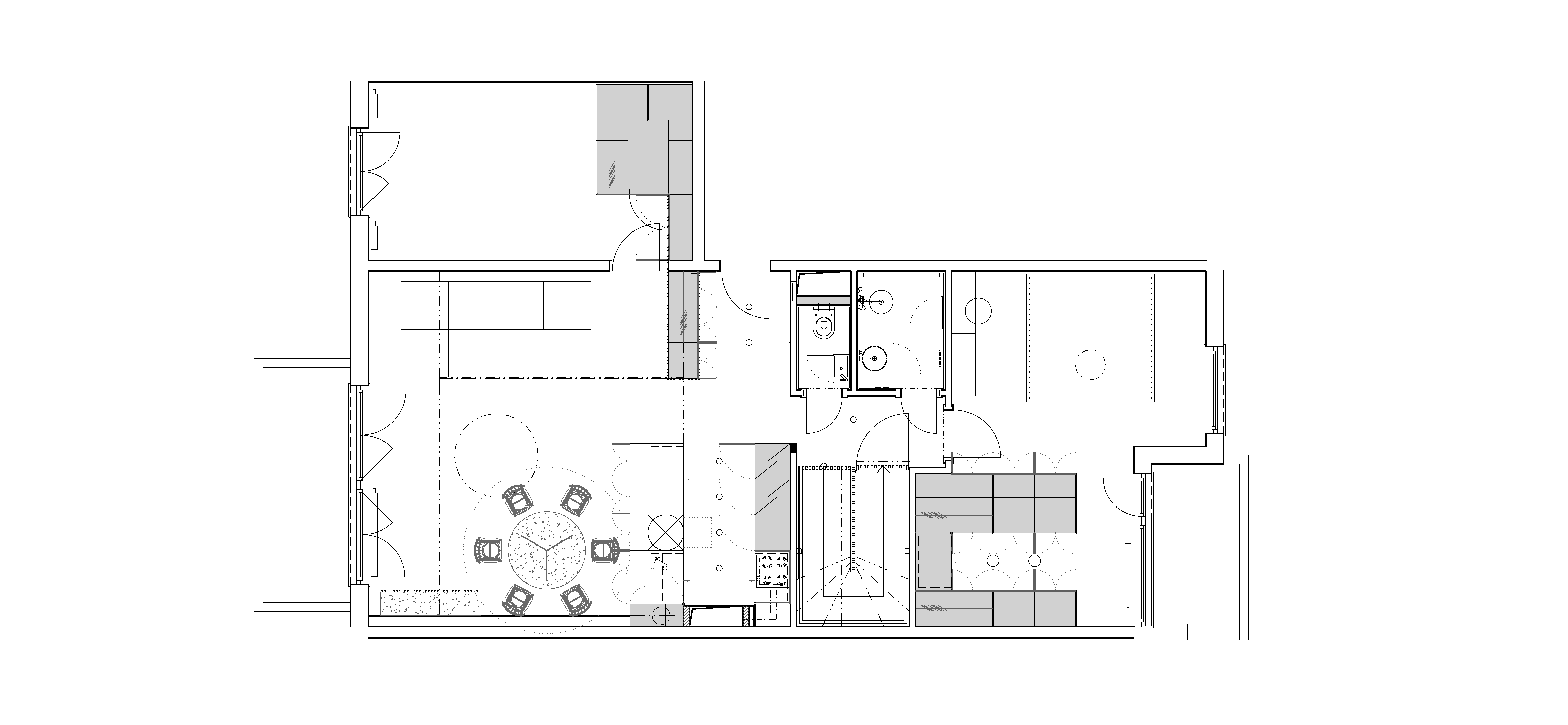
Pôdorys 7. NP: vstupná predsieň, obývacia izba s kuchyňou, hosťovská miestnosť so šatníkom, spálňa so šatníkom, kúpeľňa, WC miestmosť, sklad pod schodiskom, loggia, balkón
Pôdorys 7. NP: vstupná predsieň, obývacia izba s kuchyňou, hosťovská miestnosť so šatníkom, spálňa so šatníkom, kúpeľňa, WC miestmosť, sklad pod schodiskom, loggia, balkónAutor: LANG BENEDEK ASSOCIATED ARCHITECTS
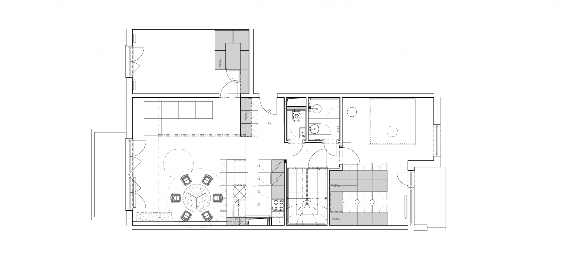
Pôdorys 8. NP: schodisko, chodba, práčovňa, 2x kúpeľňa, 2x detská izba, novonavrhnutá galéria s knižnicou, terasa
Pôdorys 8. NP: schodisko, chodba, práčovňa, 2x kúpeľňa, 2x detská izba, novonavrhnutá galéria s knižnicou, terasaAutor: LANG BENEDEK ASSOCIATED ARCHITECTS
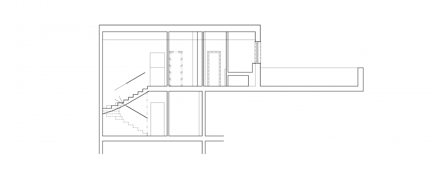
Rez
RezAutor: LANG BENEDEK ASSOCIATED ARCHITECTS
Rez
RezAutor: LANG BENEDEK ASSOCIATED ARCHITECTS

Návrh sa nesie v duchu zdravého konzervativizmu, s dôrazom na kvalitu použitých materiálov. Interiér zjednotila svetlá farba stien, dverí a vstavaného nábytku. Na neutrálnom podklade vynikne jemná textúra prírodného linolea a kresba smrekového dreva použitá na vertikálnych lamelách zasklených stien, nábytku i schodisku. Čierne oceľové prvky dopĺňajú materiálovú kompozíciu.

Zvislé smrekové laty použité ako dekor, zábradlie alebo obklad, umocňujú výšku mezonetu a vertikalitu kompozície. Blok kuchynskej linky je, rovnako ako ďalšie úložné priestory, navrhnutý na mieru s bezúchytkovými zásuvkami a dvierkami na magnet. Cieľom bolo dosiahnutie monochromatickej plochy členenej iba linkami špár. Dodávateľom nábytku je firma Wemal - Design from Scandinavia.

Mobiliár je o poznanie pestrejší. Výrazným akcentom v hlavnom obytnom priestore je obraz nad sedačkou a TV stolík ladený v pastelových modrých odtieňoch. Autorkou je umelkyňa Patrícia Koyšová.

Foto - Studio Flusser: Zdeněk Porcal, Petr Dub
Foto - Studio Flusser: Zdeněk Porcal, Petr Dub
Foto - Studio Flusser: Zdeněk Porcal, Petr Dub
Foto - Studio Flusser: Zdeněk Porcal, Petr Dub
Foto - Studio Flusser: Zdeněk Porcal, Petr Dub
Foto - Studio Flusser: Zdeněk Porcal, Petr Dub
Foto - Studio Flusser: Zdeněk Porcal, Petr Dub
Foto - Studio Flusser: Zdeněk Porcal, Petr Dub
Foto - Studio Flusser: Zdeněk Porcal, Petr Dub
Foto - Studio Flusser: Zdeněk Porcal, Petr Dub
Foto - Studio Flusser: Zdeněk Porcal, Petr Dub
Foto - Studio Flusser: Zdeněk Porcal, Petr Dub
Foto - Studio Flusser: Zdeněk Porcal, Petr Dub
Foto - Studio Flusser: Zdeněk Porcal, Petr Dub
Foto - Studio Flusser: Zdeněk Porcal, Petr Dub
Foto - Studio Flusser: Zdeněk Porcal, Petr Dub

Záverečná bilancia:

Plocha bytu (pôvodný stav): 165,8 m²
Plocha bytu (nový stav): 174,0 m²
Terasa : 119,6 m²
Balkón : 6,0 m²
Loggia : 4,30 m²

Podklady: LANG BENEDEK ASSOCIATED ARCHITECTS

Poloha diela

Ing. arch. Borislav Benedek
Ing. arch. Michal Lang

Súvisiace články

Vložené
10. máj 2018
0
3695
Hlavný obsahHlavný obsah
Čakajte prosím