Na podujatí sa predstaví až 37 vystavovateľov - popredných dodávateľov stavebných materiálov a inovácií s prezentáciou...
Novotvar v prostredí alpskej obce.
Hansgrohe - prémiová značka kúpeľňových riešení, ponúka nadčasový dizajn, technickú precíznosť a udržateľné inovácie...
Využite špeciálnu akciu Internorm: okná za minuloročné ceny a hliníkový kryt úplne zadarmo. Ponuka je časovo obmedzená!
Sumarizácia najdôležitejších inovácií, ktoré redefinujúcich využitie tohto energetického zdroja.
AMPHIBIA 3000 GRIP 1.3 od spoločnosti ATRO predstavuje modernú hydroizolačnú technológiu, ktorá spája vysokú odolnosť,...
Ambiciózne plány EK narazili na ekonomické možnosti domácností v jednotlivých členských štátoch –...
IDEA DOOR od spoločnosti JAP prináša do interiéru čistý minimalistický vzhľad vďaka bezrámovému riešeniu a precíznej...
Kontinuita riešenia od vonkajšieho obkladu až po kovania a kľučky.
Nástenné nadomietkové armatúry Vitus sú mimoriadne vhodné pre rýchlu a efektívnu...
Okenné profily z kompozitného materiálu RAU-FIPRO X od spoločnosti Rehau sú v porovnaní s tradičnými plastovými profilmi mnohonásobne...
Najnovší sortiment stolov pre zariadenie interiérov...
Spojenie moderného dizajnu, funkčnosti a svetla do harmonického architektonického prvku.
Kancelárska budova Baumit v slovinskom Trzine prešla premenou na moderné a udržateľné pracovisko. Architekti kládli dôraz...
Mottom šiesteho ročníku on-line konferencie odborníkov Xella Dialóg je Efektívny návrh budov 2025+: zmeny a riešenia

Dnes prinášame prvú časť informácií o súťaži. Predstavujme práce, ktoré boli posudzované vo finále a hodnotenie poroty.
Vyhodnotenie architektonickej súťaže
Do súťaže bolo prihlásených 43 návrhov. Tento počet považuje porota za prejav aktuálnosti témy najmä pre mladých architektov a prejav dobrej prípravy súťaže. Podľa poroty dosiahli súťažné návrhy štandardnú solídnu úroveň, z ktorej mimoriadne nevynikol žiaden súťažný návrh. Napriek rôznorodému prístupu v poslednom hodnotiacom kole sa stretli kvalitatívne pomerne vyrovnané súťažné návrhy o čom svedčí aj tesnosť hodnotenia. Súťažné návrhy priniesli rôznorodosť pohľadov na využitie pozemku, vzťah k okolitým budovám a typologický prístup k riešeniu vlastného objektu. Z týchto aspektov vytvorili spôsobom príbuzného prístupu niekoľko skupín, z ktorých najvýraznejší protagonisti predstavujú poslednú hodnotenú skupinu návrhov.
Vzhľadom ku skutočnosti, že súťaž je vyhlásená podľa zákona o VO, z hľadiska predpokladanej realizácie bude vyhasovateľ súťaže rokovať s víťazným uchádzačom. Preto porota vo svojich odporúčaniach venuje tomuto návrhu najväčší priestor.
Porota je presvedčená, že súťaž priniesla pre vyhlasovateľa množstvo podnetov na riešenie problematiky MŠ aj z iných súťažných návrhov. Víťazný súťažný návrh vidí porota ako najvývojaschopnejší a tiež výhodný z hľadiska realizovateľnosti. Porota je presvedčená, že vo víťaznom návrhu získala obec riešenie, ktoré plne uspokojí jej požiadavky a ktorého realizácia prispeje ku kultivovanému prostredia pre výchovu a vzdelávanie detí a mládeže a bude mať parametre nového komunitného centra obce.
Čo súťaž priniesla?
Umiestnenie:
Škála súťažných návrhov oscilovala okolo troch možností umiestnenia budovy škôlky:
- lineárny model
- diagonálny
- centrálny
Porota vyhodnotila z predložených návrhov ako najvhodnejší predovšetkým lineárny a diagonálny model. Oba typy sú zastúpené v ocenených návrhoch.
Lineárny model: Najviac návrhov sledovalo lineárny model, ktorý podľa poroty najlepšie naplnil zadania poroty i zámer vyhlasovateľa súťaže:
- Posilniť centrálny verejný priestor
- Bezbariérovo prepojiť MŠ s jedálňou
- Kompaktnosť objektu pri zachovaní vhodného merítka a vynaloženie predstaviteľných finančných prostriedkov na realizáciu stavby
Diagonálny model: Akcentoval orientáciu materskej školy na úkor zovretosti centrálneho priestoru a riešenia prevádzky zariadenia na rovine.
Centrálny model: sa ukazoval ako menej vhodný, čo sa prejavilo zvýšenou podlažnosťou a odseparovaním priestorov jedálne od MŠ.
Čím súťaž prekvapila:
Porotu prekvapilo množstvo návrhov, ktoré nerešpektovali základné hygienické nároky na orientáciu denných miestností jednotlivých oddelení, resp. tried. V prevádzkovo dispozičných riešeniach mnohí súťažiaci podcenil bezpečný a bezbariérový pohyb ako samotných užívateľov, tak aj jedla z jedálne. Z hľadiska areálového „mikroubanizmu“ pomerne veľa návrhov rezignovalo na design objektu materskej školy, bez snahy o presah do centrálneho verejného priestoru areálu alebo štrukturovanie školskej záhrady, v ktorej by deti mohli stráviť väčšiu časť svojho denného pobytu.
Protokol z rokovania poroty súťaže návrhov : Materská škola Selce
Vyhlasovateľ : Obec Selce
Názov súťaže návrhov: Materská škola Selce
Druh súťaže návrhov: Verejná, anonymná, architektonická súťaž
Dátum, čas: 15. februára 2016, 09:00 -20:00 hod., 16. februára 2016, 09:00 -12:00 hod.
Miesto: Kultúrny dom, Selce, Selčianska cesta 132
Zasadnutia sa zúčastnili riadni členovia poroty
- závislý na vyhlasovateľovi:
1. Ján Kupec
- nezávislí na vyhlasovateľovi:
2. Ing. arch. Danica Končeková, PhD.
3. Ing. arch. Marián Marcinka
4. prof. Ing. arch. Bohumil Kováč, PhD., predseda poroty
5. Ing. arch. Peter Sticzay-Gromski
Náhradníci poroty
- závislý na vyhlasovateľovi:
1. Dušan Mesík
- nezávislý na vyhlasovateľovi:
2. Ing. arch. Štefan Moravčík
Priebeh rokovania poroty
1/ Porota začala rokovanie o 9,00 hod. v úplnom zložení (viď. prezenčné listiny, príloha č. 1 k protokolu).
2/ Porota si vypočula správu overovateľov súťažných návrhov (viď. príloha č. 2 k protokolu). Celkove bolo doručených 43 súťažných návrhov. Porota rozhodla, že všetky súťažné návrhy splnili požiadavky na úpravu súťažných návrhov podľa čl. 3.8. a 3.9. súťažných podmienok a lehotu na predkladanie súťažných návrhov podľa čl. 5.5.
Za : 5 Proti : 0 Zdržal sa : 0
3/ Vzhľadom na vysoký počet súťažných návrhov sa porota rozhodla, že návrhy bude hodnotiť vo viacerých posudzovateľských kolách.
Za : 5 Proti : 0 Zdržal sa : 0
4/ Porota sa dohodla, že v 1. – 3. vylučovacom kole každý člen poroty samolepkou označí návrh, ktorý odporúča na postup do ďalšieho kola. Návrhy, ktoré dostanú menej ako jednu značku, nepostúpia do ďalšieho kola posudzovania.
Za : 5 Proti : 0 Zdržal sa : 0
5/ Porota v spoločnej diskusii preštudovala každý súťažný návrh z hľadiska hodnotiacich kritérií (kontext, vlastné architektonické riešenie, realizovateľnosť, typologické požiadavky na MŠ).
6/ 1. kolo : Porota rozhodla, že do 2. kola postupujú návrhy č.:
1, 4, 5, 6, 7, 9, 11, 12, 18, 19, 22, 23, 25, 26, 28, 29, 31, 32, 34, 37, 40, 41, 43.
Súčasne porota rozhodla, že súťažné návrhy č.:
2, 3, 8, 10, 13, 14, 15, 16, 17, 20, 21, 24, 27, 30, 33, 35, 36, 38, 39 a 42
sa umiestnili v poradí 24 – 43 ex aequo s počtom bodov 75.
Za : 5 Proti : 0 Zdržal sa : 0
7/ 2. kolo : Porota rozhodla, že do 3. kola posudzovania postúpili návrhy č.:
1, 4, 5, 7, 9, 12, 19, 22, 26, 28, 29, 34, 40, 41, 43.
Súčasne porota rozhodla, že súťažné návrhy č.:
6, 11, 18, 23, 25, 31, 32 a 37 sa umiestnili v poradí 16 – 23 ex aequo s počtom bodov 90.
Za : 5 Proti : 0 Zdržal sa : 0
8/ 3. kolo : Porota rozhodla, že do posudzovania návrhov o ceny postúpili návrhy č.:
7, 28, 29, 40, 41.
Súčasne porota rozhodla, že :
- v poradí 11 – 15 sa umiestnili návrhy č. 5, 12, 19, 22, 26 ex aequo s počtom bodov 110.
Za : 5 Proti : 0 Zdržal sa : 0
- v poradí 8 – 10 sa umiestnili návrhy č. 1, 34, 43 ex aequo s počtom bodov 120.
Za : 5 Proti : 0 Zdržal sa : 0
-v poradí 6 - 7 sa umiestnili návrhy č. 4, 9 ex aequo s počtom bodov 130.
Za : 5 Proti : 0 Zdržal sa : 0
9/ 4. kolo : Porota rozhodla, že v tomto kole určí poradie súťažných návrhov na 1. až 5. mieste individuálnym bodovaním porotcov. Body pridelila porota podľa článku 7.1. súťažných podmienok a poradie súťažných návrhov určila takto:
- na 5. mieste sa umiestnil návrh č. 29 s počtom bodov 136,
- na 4. mieste sa umiestnil návrh č. 41 s počtom bodov 142,
- na 3. mieste sa umiestnil návrh č. 7 s počtom bodov 162,
- na 2. mieste sa umiestnil návrh č. 28 s počtom bodov 169,
- na 1. mieste sa umiestnil návrh č. 40 s počtom bodov 186.
Za : 5 Proti : 0 Zdržal sa : 0
Bodové hodnotenie jednotlivých návrhov tvorí príloha č. 3 k protokolu. Hlasovacie lístky s hodnotením jednotlivých porotcov odovzdala porota vyhlasovateľovi na archiváciu (ako nezverejňované prílohy č. 4.1 - 4.5)
10/ Porota rozhodla o udelení cien takto :
1. cena : návrh č.40, 3000,- euro
2. cena : návrh č.28, 2000,- euro
3. cena : návrh č.7, 1000,- euro
Za : 5 Proti : 0 Zdržal sa : 0
11/ Porota vypracovala charakteristiku súťažných návrhov a odporučenia poroty vyhlasovateľovi (príloha č. 5 k protokolu).
12/ Porota pristúpila k otváraniu obálok. Zoznam autorov súťažných návrhov je v prílohe č. 6 k protokolu. Zverejnenie mien autorov podlieha v súlade s čl.12 odst.3 podmienok ich súhlasu.
Predstavujeme ocenené práce:
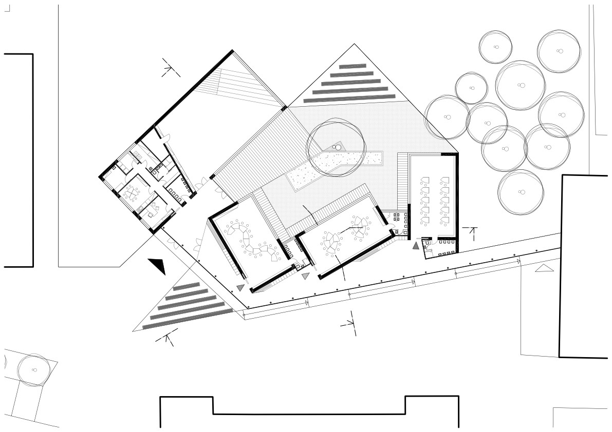
1. cena: návrh č.40 - studio B52 , s.r.o. (Ing. arch. Michal Lang, Ing. arch. Boris Benedek, Ing. arch. Ján Pieš)
Popis architektonickej koncepcie
Navrhovaná Materská škola je situovaná v intraviláne obce Selce, v areály základnej školy, ktorý v súčasnosti tvorí súbor objektov a plôch v rôznom technickom a prevádzkovom stave s potenciálom ich ďalšieho rozvoja a zhodnotenia. V rámci areálu je objekt osadený v prvotnom stúpaní svahovitého terénu, pozdĺžnou osou rovnobežný s objektom základnej školy, výškovo bez zmeny úrovne terénu priamo napojený na objekt jedálne.
Hlavným ukazovateľom architektonického i urbanistického riešenia je priama inšpirácia v polohe a charaktere daného územia v širšom i úzkom kontexte.
Komunikácia a spájanie hlavných elementov daného prostredia, ich vzájomné vzťahy, potreby, rozvoj, ako aj samotné dieťa /či už v predškolskom, alebo školskom veku/ so svojimi špecifickými sociálnymi, vzdelávacími, voľnočasovými potrebami a aktivitami sa tak stali zdrojom pre skladbu a transformáciu tvarov architektonického i urbanistického riešenia.
Prechod vidieckeho urbanizovaného prostredia na čisto prírodné, vlastná identita a charakter územia so svojimi tradíciami i výrazom, transformácia prírodného svahu s maximálnym zachovaním kultivovaného prírodného charakteru, využitie a zhodnotenie prírodných daností areálu, potenciál transformácie a zhodnotenia existujúcich objektov i plôch, začlenenie škôlky/ako nositeľa prvotného a dôležitého pilieru vzdelávania a formovania detskej osobnosti/ do plnohodnotného vzdelávacieho komplexu v rámci existujúcej štruktúry /a zhodnotenie tak jej potenciálu v rámci vlastného rozvoja/, vhodnosť materiálov, štylizácie, energetickej úspornosti.
Do celkového urbanisticko‐architektonického riešenia sme sa tak vniesli spomínané prvky, ktorými sme chceli vytvoriť spojitosť medzi rôznorodými prostrediami, ktoré sa vzájomne ovplyvňujú, rozvíjajú, transformujú...na pozadí zákonov a princípov fungovania prírody, pri snahe o jej optimalizáciu, matematicky vyjadrenú Fibonacciho postupnosťou, špirálou, ktorá sa i hravo premietla do formovania architektúry a je jedným z hlavných geometrických motívov návrhu a prispieva tak k dynamického vnímaniu vytvoreného detského sveta.
Výrazným prvkom architektúry sa tak stáva i eliptická prirodzená cirkulácia detí v areály škôlky, v prostredí prirodzeného pokračovania a dopovedania svahu v podobe vegetačnej strechy škôlky, prirodzene tak vytvárajúca rôzne typy prostredí, podporujúce detskú zvedavosť, hravosť, tvorivosť, kreativitu...
Hmotovo objekt vychádza z jednoduchého tvaru jednopodlažnej dosky, vsadenej do svahu v jeho severozápadnej časti, výškovo v jednej úrovni prepojenej z existujúcim objektom jedálne, čím sa vytvára ich vzájomné plynulé bezbariérové prepojenie. Následná transformácia základného tvaru vytvára a definuje v areály dve hlavné zhromaždovacie exteriérové prostredia... na jednej strane chránené polozapustené átrium Materskej školy v priamej nadväznosti na prírodný svah a jeho pokračovanie na strešnej rovine, prepojenej vo viacerých úrovniach. Do átria sú orientované všetky hlavné miestnosti škôlky, kde sa tak plynule prepája interiér s exteriérom. Druhý priamo zadefinovaný priestor pre multifunkčné využitie vzniká medzi budovou školy a škôlky podporený oporným múrikom, sformovaným ako pobytové schody.
Popis návrhu konštrukčno‐technického riešenia
Konštrukčno‐technické riešenie pozostáva zo železobetónovej konštrukcie stropu pochôdznej strešnej roviny, z prevažne južnej polohy s mohutnejším vykonzolovaním ‐ tienením v kombinácii
s vertikálnymi oceľovými a železobetónovými nosnými prvkami. Konzola je doplnená a odľahčená eliptickými otvormi, ktoré prispievajú k presvetleniu a preslneniu samotných priestorov. Statická schéma je doplnená priečenými železobetónovými zavetrovacími stenami. Snahou bolo dosiahnuť čo najviac otvorený – variabilný priestor, ktorý ponúka niekoľko alternatív premeny. Základové konštrukcie reagujú na výškové pomery osadenia novostavby v teréne, kde držia podlahou jednopodlažnej hmoty výškovú úroveň objektu jedálne. Týmto spôsobom je zaručená bezbariérovosť pohybu po objekte Materskej školy s väzbou na jedáleň. Doplnením základových konštrukcií je i prefabrikovaná pobytová plocha s integrovaným schodiskom a vodnou plochou, ktorá príjemne prispieva k dotvoreniu vizuálu areálu Základnej školy a vhodne potláča markantné výškové pomery. Výplne otvorov zasklených stien sú navrhnuté v drevenom prevedení. Tento sceľujúci – etnografický prvok sa nachádza i na prevažne severnej fasáde, smerom k budove Základnej školy, kde drevené lamely prekrývajú voľnú kompozičnú hru štvorcových okenných otvorov komunikačného koridoru. Uvažuje sa s farebným riešením sklenených tabúľ v chránenej polohe areálu Materskej školy. Zábradlie strešnej roviny a ostatné zámočnícke prvky sú riešené pozinkovaním, prípadne v prevedení matná nerez.
Odstránením sedlovej strešnej roviny jedálne a doplnením nového pochôdzneho stropu sa vytvorí multifunkčná športová plocha pre deti Materskej školy s možnosťou využitia i deťmi Základnej školy. Ochranným prvkom športovej plochy je v návrhu oceľový skelet so sieťou. Zmenou objemu hmoty objektu jedálne a jeho zapojením do celkového konceptu je i prefasadovanie okenných otvorov, kde po odstránení jestvujúcich okenných výplní sa do pôvodnej polohy osadí nové bezrámové predsadené pásove okno v drevenom ráme.
Technologické riešenie novostavby Materskej školy je nezávislé, postavené na samostatnej technologickej časti situovanej v polohe prekrytej svahom, odkiaľ budú chodbovým severným traktom distribuované jednotlivé média. Konštrukčný prvok vegetačnej strechy prispieva k maximalizácii zelene v areály a zároveň zabezpečuje mikroklimatickú pohodu v zimných, no predovšetkým v letných mesiacoch.
Súťažné panely:
Hodnotenie poroty:
Víťazný súťažný návrh je protagonistom prístupu, keď prevádzkové a hmotové usporiadanie situuje do spodnej časti pozemku po vrstevnici, čo umožnilo eliminovať potrebu prekonávania výšok rampami a schodiskami vo väzbe na jestvujúci objekt čoho výsledkom je bezbariérová prevádzka objektu. Spojenie s ním je artikulované multifunkčným preskleným priestorom s priehľadom na pozemok a skupinu stromov. Táto poloha objektu jasne definuje verejný priestor medzi jednotlivými budovami a podľa poroty umožňuje v budúcnosti aj možnosť vytvorenia prepojenia s objektom telocvične.
Autori sa rozhodli pre jednoduchý lineárny tvar jednopodlažného objektu, ktorého dispozícia sa rozvíja do tvaru L, čo umožnilo vytvoriť intímny herný priestor s dobrou vizuálnou kontrolou. Zárez krídla do svahu umožnilo autorom sprístupniť zelenú strechu. To je príjemné pre pohľady z náprotivnej budovy ZŠ ako aj z pozorovacích stanovísk z členitého terénu okolia areálu. Myšlienka „ohybnosti“ strechy MŠ viedla autorov k prestavbe sedlovej strechy na plochu s ihriskom aj na objekte jedálne a kuchyne.
Odporúčanie poroty:
- Zvážiť reálnosť resp. potreby prestavby strechy objekt jedálne a kuchyne
- Preveriť vynaloženie eliptickej markízy z hľadiska osvetlenia vnútorných priestorov
- pri hlavnom vstupe absentuje zádverie a markíza
- Preveriť veľkosti exteriérových plôch /terás/ pre účely vyučovania a pobytu detí na „čerstvom vzduchu“
- V ďalšej etape rozpracovať priestor medzi školou a škôlkou tak, aby vznikla exteriérová plocha využiteľná deti a mládež všetkých vekových kategórií počas školských prestávok, v tejto súvislosti odporúčame zvážiť parametre deliacej steny, ktorá pôsobí ako priestorová bariéra /podľa vizualizácií/
Panely a textová časť vo formáte PDF v prílohe nižšie:
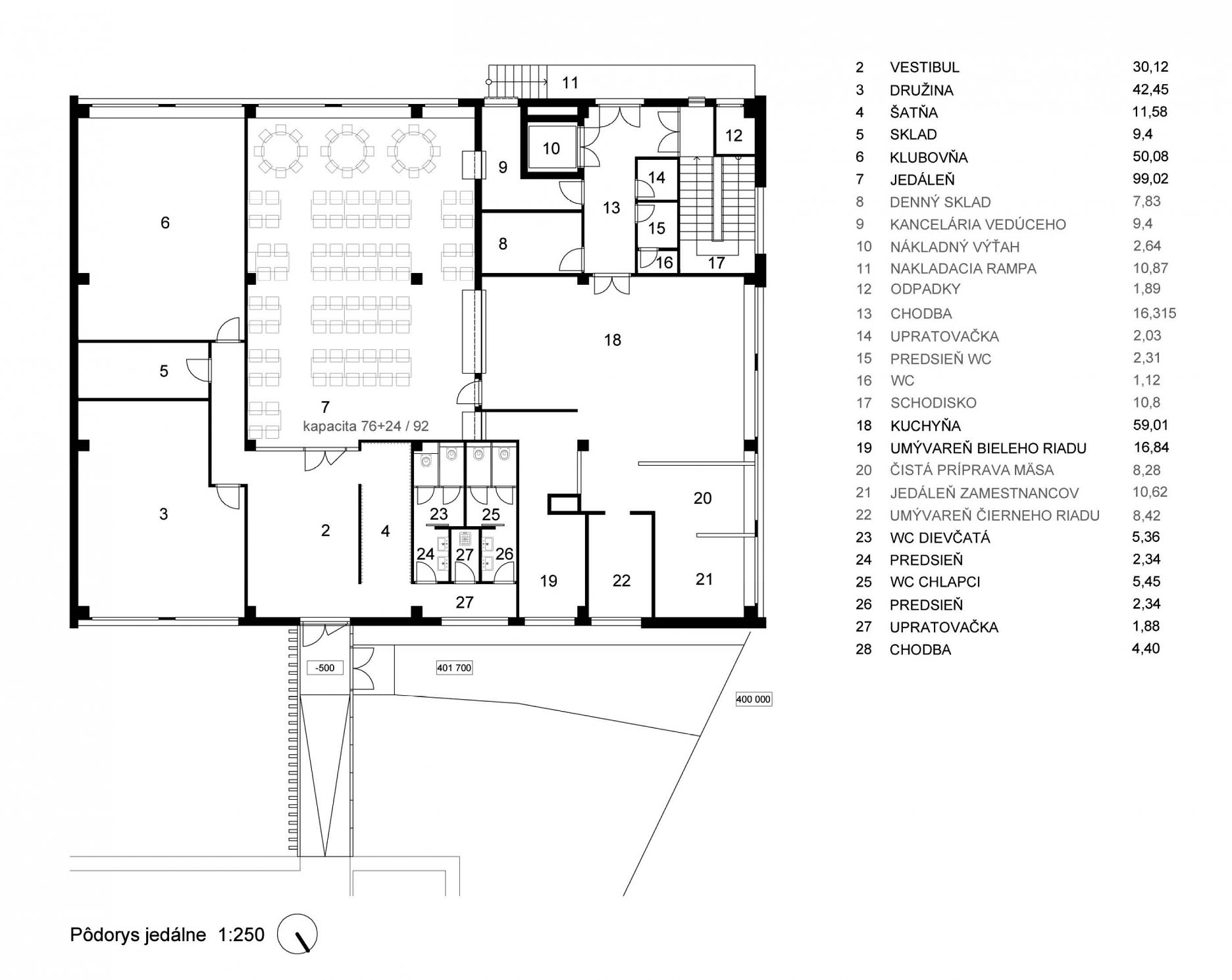
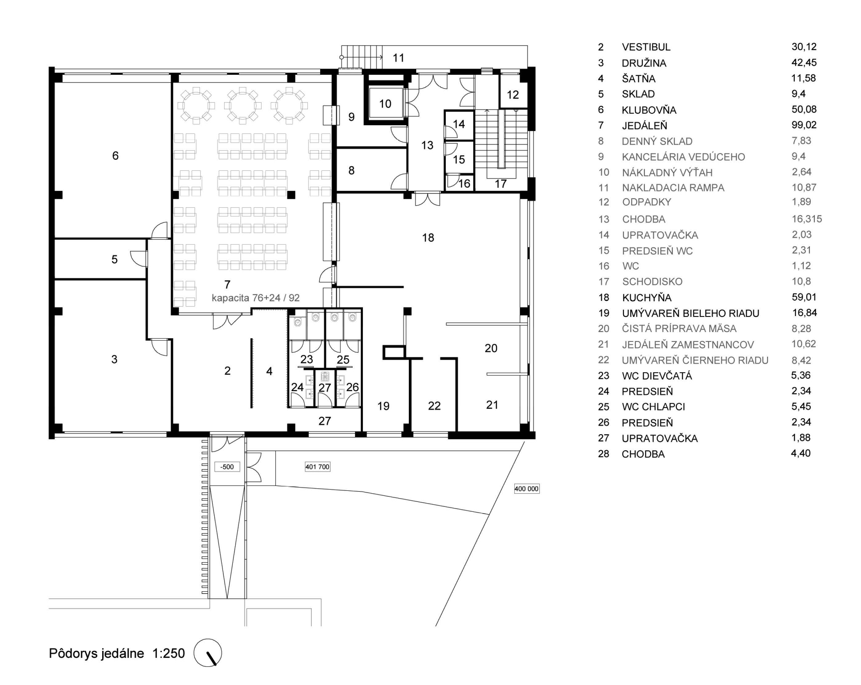
2. cena: návrh č.28 - SLLA Architects (Ing. arch. Michal Sulo, Ing. arch. Miriam Líšková)
Textová správa autorov:
Centrom areálu školy je priestor ohraničený budovou školy, telocvične, družiny s jedálňou a materskou škôlkou. Budova školy tvorí rozhranie medzi areálom školy a obcou, telocvičňa a jedáleň s družinou tvoria hranicu so susedmi a materská škôlka oddeľuje urbanizovanú časť obce od krajiny. Spevnená plocha školského dvora prechádza do pobytového trávnika so stromami smerom ku krajine. Pozdĺžny objekt materskej škôlky je súčasťou areálu základnej školy, stranou s vstupnými a spoločenskými priestormi je orientovaný do školského dvora, denné pobytové časti sú otvorené do krajiny.
Všetky pobytové priestory sú otvorené do záhrady, s výhľadmi na ovocný sad, sú orientované juhovýchodným smerom hlavnou fasádou a juhozápadným smerom pozdĺžnymi svetlíkmi. Nízke slnko v priebehu dopoludnia preniká hlboko dovnútra objektu, na obed je tienené vykonzolovanou strechou a poobede vchádza intenzívne západné slnko vo forme nepriameho odrazeného svetla od plôch vytvorených geometriou svetlíkov.
Traktu pozdĺžneho objektu obrátený do záhrady je rozdelený hygienickými jadrami na štyri časti. Od východu na západ - od vstupu do objektu - šatňa s možnosťou vstupu aj zo záhrady, potom dve triedy so spálňami a hygienickým zázemím, tretia trieda a zóna pre zamestnancov. Hygienické jadrá tvoria pevné body, denné miestnosti tried sú oddelené od spálňových častí jednoduchými mobilnými paravánmi, triedy medzi sebou a od spoločného traktu na sú oddelené mobilnými akustickými priečkami. Spôsob radenia priestorov a typ delenia umožňuje rôzne konfigurácie priestorov pre rôzne aktivity vrámci tried, pre spájanie tried, komunikáciu medzi deťmi rôzneho veku, učiteľmi, pre vytváranie sály pre stratávanie s rodičmi a podobne.
Druhý trakt, orientovaný do školského dvora, je univerzálny priestor, ktorý slúži rozšírenie spoločenských priestorov, jedáleň pre deti, komunikačný priestor, na západnej strane napojený na kuchyňu.
Otvorenosť a transparentnosť objektov vymedzujúcich priestor školského dvora je dôležitým kritériom pri formovaní jeho priestoru. Samozrejme spolu s kritériom pomeru plných a presklených plôch vrámci obvodového plášťa vzhľadom na orientáciu na svetové strany.
Otvorenosť do centrálneho priestoru areálu školy je jednou zo základných požiadaviek na rekonštrukciu alebo novostavnu telocvične (pri novostavbe je možné posunutie objektu smerom k ulici o 5 až 10m). V prípade potreby rozšírenia plôch družiny by sa rozšíril objekt jedálne smerom k školskému dvoru, vzhľadom na nevýhodnú orientáciu na svetové strany využíva presvetlenie svetlíkom otočeným na juhozápad s použitím odrazových plôch ako v prípade objektu materskej škôlky.
Železobetónový monolitický skelet, vykonzolovaná stropná doska, zelená strecha, energetický štandard konštrukcií, obvodového plášťa, v zmysle súčasných požiadaviek na verejné objekty, eliminácia tepelných mostov, maximálne využitie alternatívnych zdrojov energie, lokálne rekuperačné vetracie jednotky, podlahové vykurovanie s nízkym teplotným spádom.
Súťažné panely:
Hodnotenie poroty:
Návrh umiestňuje objekt materskej školy vo vrchnej časti pozemku, pod úroveň existujúceho sadu. Lineárny objekt vytvára na pozemku horizontálnu líniu prerušovanú zeleňou svahu medzi školou a MŠ. Jednoduchá elegancia a minimalizmus výrazu dávajú možnosť vyniknúť prírodným prvkom v areáli.
Škoda, že návrh sa nevyjadril detialnejšie k potenciálu tohto priestranstva. Porota ako nevýhodu riešenia považuje zložitý prístup k objektu, jeho prevádzkový vzťah k jedálni a kuchyni ako aj nedostatky v dispozičnom riešení .
Panely a textová časť vo formáte PDF v prílohe nižšie:
3. cena: návrh č.7 - Ing. arch. Petra Schleicher, Ing. Ivan Tasler
Popis architektonickej koncepcie
Príroda a zeleň
Fenoménom miesta je zeleň a najmä ovocný sad situovaný v južnej časti svahovitého, ku vstupu do areálu základnej školy sa zvažujúceho pozemku. Navrhovaný objekt je prirodzene zapojený do školského areálu pozostávajúceho z viacerých existujúcich objektov situovaných v atraktívnom prírodnom prostredí z väčšej časti zazeleneného pozemku. Existujúcim objektom vrátane preverovaného objektu telocvične sa ponecháva ich terajšia poloha. Objekt materskej školy je navrhovaný na juh od spevnenej plochy školského dvora medzi objektmi jedálne a telocvične, prepojený s objektom školskej jedálne. Navrhovaná materská škola vytvorí s objektom jedálne s integrovanou funkciou družiny jeden celok s možnosťou zdieľania niektorých funkcií. Atraktivita svahovitého pozemku je pretavená do koncepcie rozloženia hmoty navrhovaného objektu, ktorý sa plynule rozprestiera na svahu a tento charakteristický znak je transformovaný do kontinuálne plynúceho vnútorného priestoru situovaného na troch, rampami prepojených výškových úrovniach. Týmto spôsobom je kreované podnetné, vnútorne štruktúrované prostredie pre život detí v škôlke vytvárajúce ich vlastný svet.
Prízemný objekt vytvára štruktúru, ktorá vo svojom členení reaguje na mierku areálu, ale rovnako je v interakcii s mierkou okolitej zástavby rodinných domov, ktorá areál školy obkolesuje. Štruktúra objektu zároveň pravdivo a čitateľne vyjadruje jeho vnútorné členenie a funkčno-prevádzkové väzby a vonkajšie väzby objektu materskej školy a areálu, predovšetkým existujúceho objektu jedálne. Formovanie štruktúry tak odráža vnútornú náplň objektu, urbanitu miesta, geomorfológiu terénu, ale rovnako vlastné tvarovanie štruktúry reaguje na existujúcu vzrastlú zeleň v areáli a snahu o jej maximálne zachovanie. Pri možnom zvažovaní etapizácie alebo rozhodovaní o náročnosti navrhovaných zásahov do existujúceho objektu jedálne je možné priamu väzbu navrhovaného objektu materskej školy s jedálňou vypustiť a objekt realizovať ako solitér situovaný v rámci areálu s voľnejšími väzbami na existujúce objekty, bez nutnosti zásahov do školskej jedálne s družinou alebo túto väzbu realizovať neskôr v čase. Prepojenie novostavby materskej školy s budovou jedálne je vzhľadom na navrhovanú polohu prepojovacej chodby (výškovo aj pôdorysne) možné realizovať bez stavebných úprav jedálne. Návrh ponúka aj alternatívne pôdorysné riešenie vstupných priestorov, tvarovanie strešných rovín a materiálové stvárnenie exteriéru jedálne, harmonizujúce s návrhom materskej školy.
Kontexty s prostredím sú vytvárané nielen mierkou objektu, riešením reflektujúcim existujúcu geomorfológiu terénu a snahou o maximálne možné zachovanie zelene – vzrastlých stromov a masívov vzrastlej zelene, ale aj materialitou objektu. Materská škola je navrhovaná z prírodných, odbúrateľných materiálov z lokálnych zdrojov. Základná stavebná báza je konštrukcia z utláčanej hliny so slamenou, resp. celulózovou izoláciou v kombinácii s drevenými konštrukciami stien a striech (CLT panely a lepené nosníky). Okrem zaujímavého a príjemného vizuálneho pôsobenia a haptických vnemov je veľkým pozitívom vplyv materiálu na vnútornú mikroklímu prostredia – prirodzenú reguláciu vlhkosti v interiérových pobytových priestoroch a akustiku priestoru (v spojení s drevenými povrchmi). Ďalším z aspektov integrácie do prostredia je použitie šikmých striech s malým sklonom s extenzívnou kvitnúcou zeleňou nadväzujúcou na „zelenosť“ celého areálu. Zelené strechy nahradia v maximálnej možnej miere nízku zeleň zabratú výstavbou nového objektu. Orientácia a sklon striech umožňuje optimálne rozmiestnenie aktívnych solárnych systémov. Okolie objektu je rovnako ako strešná rovina v čo najväčšej miere riešené na báze zatrávnených plôch, len s nevyhnutnou mierou použitia spevnených plôch – pre prístup k hlavnému vstupu (kamenná dlažba) a pre terasy – východy z jednotlivých denných pobytových priestorov – tried (drevené terasy). Ostatné plochy vrátane ihrísk a navrhovanej plochy amfiteátra sú riešené ako zazelenené zmesou lúčnych kvitnúcich tráv s lokálnym pôvodom.
Vnútorné fungovanie
Škôlka je vnútorne organizovaná ako tri oddelenia situované na rôznych výškových úrovniach a vzájomne rampami prepojené kontinuálnym vnútorným priestorom. Oddelenia sú zoskupené okolo multifunkčného priestoru, ktorý je súčasťou vstupného priestoru a ktorý škôlku vnútorne organizuje. Môže byť využívaný pre široké spektrum funkcii života škôlky – môže slúžiť pre vyučovací proces škôlky, športové aktivity, môže slúžiť ako priestor na spoločné stolovanie detí (čomu slúži aj prislúchajúci priestor kuchynky a zázemia) – toto umožňuje v prípade potreby vyčleniť stolovanie škôlkárov s odlišnými požiadavkami ako u školopovinných detí z objektu jedálne, môže slúžiť na spoločné stretnutia škôlkárov a ich rodinných príslušníkov, môže slúžiť ako rozšírenie funkcií jedálne integrovanej s družinou alebo pre komunitné podujatia mimo prevádzkových hodín škôlky v podobe rôznych kultúrnych stretnutí, bálov, divadla, premietania a podobne. Ústredný priestor škôlky cez presklenú plochu kontinuálne pokračuje v podobe vonkajšieho zeleného amfiteátra. Otvorením presklených plôch je možné exteriér a interiér aj fyzicky prepojiť a v lete tu vytvoriť zväčšený priestor pre rôzne podujatia s čiastočne krytým javiskom a hľadiskom. V lete, v čase ťažiskového využitia vonkajších plôch, zelený amfiteáter bude poskytovať deťom príjemný tieň. Okrem optického prepojenia multifunkčného priestoru s možnosťou fyzického prepojenia s exteriérom sú v centrálnom priestore dôležité rozmanité priehľady z rôznych výškových úrovní v interiéri a priehľady do exteriéru – smerom do sadu v záhrade. Sem sú smerované aj výhľady a východy z jednotlivých oddelení škôlky. V úzkom kontakte na vstupný priestor je navrhnutá šatňa, kde sa rozlúčia škôlkári so svojimi rodičmi a následne vstupujú do svojho vlastného sveta v škôlke. Deti majú vo svojej škôlke vytvorenú štruktúru troch oddelení s priestorom herne, spálne, hygienu a skladu. Usporiadanie priestorov a ich plošné parametre síce spĺňajú všetky požiadavky na plnohodnotné fungovanie škôlky v zmysle platnej legislatívy, ale vzájomnou prepojiteľnosťou jednotlivých priestorov zároveň umožňujú aj alternatívne usporiadania s možnosťou vytvorenia odpočinkového kútika pre deti v združenom priestore herne a spálne, vytvorenia priestoru pre individuálne aktivity vybranej skupiny detí a pod. V nadväznosti na vstupné priestory škôlky je riešený prechod na jednej výškovej úrovni do objektu jedálne (ten zároveň tvorí nový vstup do jedálne) a rad funkcií slúžiacich pre personál a obsluhu škôlky (kancelária, šatne, denné miestnosti, sklady).
Popis konštrukčno-technického riešenia
- stenový systém v kombinácii so subtílnymi oceľovými stĺpmi za presklenými plochami na obvode stavby
- steny z utláčanej hliny so slamenou, resp. celulózovou izoláciou
- steny a obklady stien a stropov z drevených CLT panelov
- drevené podlahy z masívnej palubovky
- posuvné a otvárateľné segmenty drevených a presklených stien umožňujúce rôzne konfigurácie priestoru vo vnútri a takisto medzi interiérom a exteriérom
- strešné konštrukcie z lepených nosníkov a CLT panelov
- okná a zasklené steny s drevohliníkovými profilmi a hliníkovými profilmi s prerušeným tepelným mostom s izolačným trojsklom
- extenzívne vegetačné strechy s malým spádom
- obklad existujúceho objektu jedálne z drevených šindľov
- pasívne solárne systémy v podobe rámov s tieniacimi markízami v priestoroch orientovaných na oslnené strany
- aktívne solárne systémy na strechách
- tepelné čerpadlo
Upravené exteriérové pobytové plochy určené pre vyučovací proces v nadväznosti na budovu
- drevené terasy pred jednotlivými oddeleniami škôlky
- zelený amfiteáter – rozšírenie ústredného vnútorného priestoru
- zelené ihriská – prvky detských ihrísk situované v zeleni
- zelené plochy tvorené zmesou kvitnúcich lúčnych druhov flóry s lokálnym pôvodom
- svah pod sadom na sánkovanie a lyžovanie
- školský dvor na bicyklovanie
- multifunkčné športové ihrisko situované v kontakte na telocvičňu
Ostatné exteriérové plochy – chodníky, rampy schodiská, cesty...
- navrhovaná prístupová rampa k hlavnému vstupu do škôlky pre peších z žulových kociek malého rozmeru
- navrhovaná prístupová rampa k hlavnému vstupu do jedálne pre peších zo žulových kociek malého rozmeru
- zachovaný prístup k telocvični; v prípade budovania novej telocvične poloha telocvične zachovaná, riešená jej nová forma a veľkosť, resp. rekonštrukcia a prispôsobenie prístupu novému objektu telocvične, materiál – žulové kocky malého rozmeru
- navrhovaný prístup k multifunkčnému športovému ihrisku vytvorený kombináciou spevnenej zelene a štrkom sypaného chodníka
- existujúci spevnený školský dvor s možnosťou prejazdu obsluhy a údržby areálu zachovaný (bez možnosti vjazdu pre rodičov, zamestnancov a verejnosť)
- krátkodobé odstavné parkovacie plochy pre účely areálu – pozdĺžne parkovacie miesta sú situované v kontakte na hlavný vstup, paralelne s Dolnou ulicou, lemované novonavrhovaným chodníkom, umožňujúcim bezpečný prístup do areálu
Súťažné panely:
Hodnotenie poroty:
Návrh reaguje na morfológiu terénu hmotným oddelením jednotlivých oddelení MŠ. Spolu s aplikáciou zelených striech ide o citlivé osadenie do terénu. Z pohľadu vnútornej prevádzky MŠ však vytvára potrebu prekonávania výškových rozdielov.
O zrelosti návrhu a autora svedčí aj grafické vyjadrenie na paneli č. 1, za ním však zaostávajú vizualizácie na paneli č. 2. Tu je nedostatkom návrhu vzťah objektu MŠ k náprotivnej budove školy /plné steny, nedoriešený areál/. Putlové riešenie striech oddelených objemov vytvára hlboké úžľabia, ktoré môžu byť v miestnych klimatických podmienkach rizikovým miestom stavby. Napriek tomu sa jedná o kultivované riešenie súťažného návrhu, kde sa podarilo vytvoriť príjemné vnútorné prostredie s dobrým prepojením na exteriér.
Panely a textová časť vo formáte PDF v prílohe nižšie:
4. miesto: návrh č.41 - Atrium Architekti; Ing. arch. Tomáš Boroš
Popis architektonickej koncepcie
Hmotu materskej školy (ďalej MS) sme situovali na prvú terasu- nad základnú školu. Zastávame názor že budova MS musí viesť rovnocenný dialóg s ZŠ a nie s jedálňou. Táto dôležitá inštitúcia sa nesmie stať len prístavbou k jedálni, musí jasne komunikovať svoju rovnocennosť s ZŠ. Budovy jedálne a telocvične sa tak dostávaju do ďalšieho plánu a tvoria vybavenosť celého areálu. Hmota MŠ v performácií s budovou základnej školy vytvárajú spevnenú plochu- akýsi školský pobytový priestor, študentské námestie, (spolu fungujúci synergicky celok). Vytvorenie dlhých pobytových schodov pod budovou školky len podčiarkuje jej horizontálny charakter a uzatvára toto školské námestie. Nad MŠ je potom situovaná záhrada- výbeh pre deti. Tento priestor je v miernom svahu a preto sú na ňom vytvorené menšie terasy pre pobyt detí. Nad touto záhradou sa nachádza druhá väčšia terasa, na ktorú sme situovali ihriská ktoré môžu byť využívané deťmi z MŠ ako aj deťmi zo ZŠ. Sad, ktorý sa v súčastnosti nachádza na konci pozemku plánujeme využiť na edukačno-relaxačné prechádzky detí. Všetky tieto funkcie sú pospájané hlavnou komunikačnou tepnou, ktorá vedie od vstupu do areálu popri telocvični až hore k sadu.
Budova MŠ
Zasadenie do terénu :
Prostredie do ktorého umiestňujeme MŠ je značne svažité. Preto považujeme za dôležité, aby sa táto nerovnosť terénu prejavila v budove MŠ. Miesto na ktoré vlkladáme objekt MŠ sme podľa vrstevníc rozdelili na tri terasy, ktoré sú vertikálne posunuté o 45 cm. Tieto terasy sú pospájané rampamy, ktoré zabezpečujú bezbariérovosť celého komplexu. Rampy nevnímame len ako výlučne komunikačnú zónu, ale rovnako ju chceme využívať ako hrací priestor pre deti. Výškové rozdieli nám pocitovo delia vnútorný priestor na funkčné celky, ktoré teda nemusia byť deléné fixnými priečkami.
Zmenšenie mierky:
Miestnosti v rámci MŠ sme koncipovali ako bunky, ktoré medzi sebou vytváraju tečúci pristor. Ten vie byť delený posuvnými priečkami na menšie celky. Naším zámerom bolo vytvoriť menší urbanizmus- mesto pre deti. Tie vedia celý priestor donekonečna objavovať. Jednotlivé bloky sú materiálovo odlišené, čo na jednej strane spôsobuje pestrosť v interiéry, no na druhej strane to ponúka možnosť zoznámenia sa s netradičnými materiálmi. Snažili sme sa vyhnúť formálnej farebnosti, radšej sme zvolili materiálovú úprimnosť.
Priestorová variabilita:
Otvorený priestor MŠ ponúka nekonečné možnosti variability a tak môže v budúcnosti prejsť adaptáciou na inú fuknciu. Vnútorná chodba sa v jednotlivých úsekoch otvára do strán a tak ponúka možnosti komunitných aktyvít. Spoločný priestor pre akcie MŠ sa dá zväčšovať podľa potreby na úkor jednej z tried.
Popis návrhu konštrukčno-technického riešenia
Pri voľbe konštrukčného systému sme dbali na jednoduchosť, estetiku a efektivitu celej konštrukcie. Budovu MŠ navrhujeme ako drevostavbu. Konštrukčný systém je tvorený drevenými stĺpami a trámami. Rozmiestnenie stĺpov je na sieti 6500 x 5500 mm. Všetky bunky vo vnútry stavby sú samonosné, stavané nezávisle od hl. konštrukčného systému. Tak vzniká jednoduchá variabilita prestavania celého interiéru, pri zmene funkcií stavby. Strechu navrhujeme ako pultovú s valcovaným plechom. Pultová strecha s miernym sklonom a presahom na južnej strane umožňuje efektívne tienenie a tým sa ušetrí na ochladzovaní MŠ v lete. V zime slnko býva nízko, takže sa slnečné lúče hravo dostanú dnu.
Súťažné panely:
Hodnotenie poroty:
Veľmi dobre zvládnutý návrh usporiadania areálu Základnej školy v Selciach. Logicky a prehľadne radí jednotlivé objekty, plochy a funkcie tak, že tvoria logicky usporiadaný celok s potenciálom na dobré fungovanie celého komplexu. Lineárny návrh materskej školy je racionálny a ekonomický. Zvolené riešenie by patrilo k tým, ktoré by sa dali realizovať bez väčších problémov a dobre by fungovalo aj vo väzbách na okolie. V dispozičnom riešení nám však chýba univerzálny priestor pre neformálne aktivity (napríklad s rodičmi). Tak, ako je dobre a názorne prezentovaný "mikrourbanizmus", samotná architektúra a stvárnenie objektov sú vyjadrené iba náznakovo, schématicky.
Panely a textová časť vo formáte PDF v prílohe nižšie:
5. miesto: návrh č.29 - Ing. arch. Vladimír Tomala, Ing. arch. Martin Sedláček, bc. Boris Rusiňák
Architektonická koncepcia
Nachádzanie možností pre novú polohu objektu materskej školy v existujúcom prostredí základnej školy ovplyvňujú danosti terénu, vzájomné umiestnenie (výškové) existujúcich objektov základnej školy, jedálne a telocvične a zároveň ich prepojenie teda ich doterajšie spolužitie. Správne začlenenie nového objektu medzi tento súbor musí reagovať na doterajšie zákonitosti.
A to umiestnenie objektu jedálne a terénne danosti nám určujú zónu kde sa objekt škôlky bude nachádzať. Keďže objekt jedálne bude každodenne využívaný škôlkou a najvhodnejší prístup pre deti vo veku od troch rokov je prekonávať čo najmenej výškových stupňov v rámci ich bezpečnosti je navrhnutý objekt ako jednopodlažný.
Areál bude rozdelený do niekoľkých zón. V nadväznosti na hlavný vchod je umiestnené parkovisko pre ranné a poobedné potreby školy a škôlky pre vyloženie deti tak isto môže byt využívané aj pre potreby telocvične a navrhovaného športového ihriska pre obyvateľov obce v podvečerných hodinách a cez víkendy , jeho poloha je navyše riešená tak aby sa nekrižovali peší užívatelia s automobilmi. Spomenuté športové ihrisko je ako ďalšia fáza rozvoja areálu v priamom prepojení na telocvičňu využívaná v prvom rade pre hodiny telocviku základnej školy a zároveň príjemným miestom kde sa môžu stretnúť aj obidve školy (ZŠ+MŠ). Už existujúci ovocný sad je veľkou výhodou areálu pre deti, čím môže narastaťvzťah dieťaťa k prírode a ku starostlivosti o ňu. (stačí len chcieť).
Nový objekt natočením naráža na hlavný vchod do areálu a jeho samotnú prevádzku. Pravé týmto natočením sa otvárajú nové zaujímavé priestory priamo pred základnou školou, ktoré môžu byt využívané na hry , zhromaždovací priestor, oddych ( vytvorenie viacúrovňového sedenia). Veľmi praktickou je aj vzniknutá prekrytá rampa na prekonanie vzdialenosti a výškového rozdielu pre deti ZŠ cestou do jedálne, ktorá sleduje líniu vnútornej komunikácie materskej školy. Komunikácia spája objekt škôlky a jedálne vnútornou chodbou. Natočenie nového objektu prináša dobru orientáciu voči svetovým stranám a poskytuje deťom MŠ kľud a výhľad na vegetáciu (vysoká zeleň, ovocný sad).
Keďže priestorové potreby MŠ sa dajú rozdeliť do 4 druhov priestorov (1. Vstupy, zázemie, hygiena, komunikácia 2. Triedy , 3.Spoločenský priestor, 4. dvor), každý tento druh si vyžaduje orientáciu podľa denného pobytu detí. Práve ich orientácia určuje polohy a vzájomné prepojenie týchto priestorov. Hlavný vstup, komunikácia, vstupy do tried a hygieny sú orientovane na sever a severozápad, zároveň vytvárajú hygienicky filter a vizuálny filter medzi ZŠ a MŠ. Dispozícia je preto veľmi jednoduchá no zároveň princípom natočenia troch rovnakých hmôt tried od komunikácie vytvárajú rôznorodosť a otvorené priestory pre prezúvanie a plynulý vchod do týchto tried. Pre ešte lepšiu orientáciu pre deti sú triedy rozlišované aj farebne. Triedy fungujú dvojúčelovo ako herňa a zároveň počas oddychu ako spálňa (jednotlivé lôžka sa vyklopia zo steny , je to praktické a zábavné riešenie kvôli ktorému sa deti môžu tešiť na oddych).(viď obrazová príloha č.1) Zároveň sa dajú oddeliť plachtou pre prípad že niektoré dieťa sa chce hrať alebo kresliť. Spomínaným vzájomným uložením tried sa odzrkadlilo aj v exteriéri, kde nám vznikol rovnako podnetný tvar dvoru na hranie, ktorý práve takým tvarom ponuka deťom zákutia na hranie, behanie, vytvára hru tieňov. takto riešený priestor je nám blízky , z koncepcie napr. starých miest, ktoré sú atraktívne pravé pre rôznorodosť priestorov. Terén nám automaticky poskytuje vytvorenie amfiteatrového sedenia na dvore, tak isto aj v spoločenskej miestnosti, ktoré môžu byť využívané aj na besiedky a predstavenia pre rodičov.
Konštrukčno - technické riešenie
Koncepcia spomínaných druhov priestorov (okrem dvoru) je tvarovo- konštrukčne rozlíšená a vytvárajú tak prirodzenú výškovú gradáciu z hľadiska ich funkčnosti. Jednotlivé triedy sú konštrukčne aj rozmerovo rovnaké čím poskytujú prvkovú prefabrikáciu a teda ich konštrukciu tvorí drevená konštrukcia, ktorá je využitá na riešenie celého nového objektu. Hmota komunikácie ma plochú strechou , ktorá priamo nadväzuje na sedlové strechy tried a spoločenskej budovy. Krytina z falcovaného pozinkovaného plechu (farba antracit) je ideálna na minimalizovanie chybových spojení takýchto detailov. Vzhľadom na použitie dreva ako konštrukčného materiálu je drevo aj výrazovým prvkom fasády a to najme na severnej a severozápadnej strane kde je dokonca aj chránené pred nepriaznivými podmienkami počasia a zároveň použité lamely čiastočne opticky oddeľujú komunikáciu škôlky no sú využité aj na ochranu sklenenej steny.
Dažďová voda zachytená pomerne veľkou plochou strechy je odvádzaná do zásobníkov a opätovne využívaná na splachovanie, čím sa zníži najväčší činiteľ spotreby vody. Vykurovací systém tvorí podlahové kúrenie ktoré s použitým materiálom (pvc) vytvárajú pohodové hranie sa na podlahe. PVC svojou jednoliatosťou je veľmi jednoduché na údržbu a eliminuje tvorbu špín a plesni v špárach. Možnosť získavania elektrickej energie je z fotovoltaických panelov umiestnených na juhozápadnej strane sedlovej strechy spoločenskej budovy.
Súťažné panely:
Hodnotenie poroty:
Najvyššie ocenený kompaktný model umiestňuje ad-hoc objekty tried do náhodnej juxta-pozície evokujúcu staré hospodárske dvory. Návrh má veľmi dobrú grafiku a je výborne čitateľný. Má správnu mierku i vtip, ktorý by mal byť súčasťou každej edukativnej stavby. Na rozdiel od mnohých iných návrhov so sedlovou strechou návrh sa dokázal vyhnúť strojenému pátosu a svoju ideu založil na hravosti a prehľadnej hierarchii objemov. Pozitívne je zdynamizovanie centrálneho priestoru pomocou mierne stúpajúcej rampy oživujúcej dlhú frontu školského dvoru. V dispozícii boli riešiteľné chyby –nedostatočné zázemie, chýbajúce miestnosti –izolačka atd. Čo však zlomilo tomuto návrh „väz“ bolo riešenie areálového „mikrourbanizmu“. Škôlka svojou dostredivou štruktúrou sústredenou na seba centrálne nádvorie skôr oslabila a jeho pozitívny vplyv na celok podcenila.
Panely a textová časť vo formáte PDF v prílohe nižšie:
Za vypisovateľa veľmi pekne ďakujeme všetkým súťažiacim za množstvo vykonanej práce a doručené návrhy. Mimoriadne si vážime profesionálne nasadenie súťažiacich i množstvo podnetných nápadov, ktoré nám pomohli k formovaniu názoru, ako ďalej narábať s pozemkom. Prehlasujeme, že súťaž bola rozhodovaná čestne, bez akéhokoľvek ovplyňovania a akýchkoľvek parciálnych záujmov. Obálky s autormi boli otvorené až po záverečnom verdikte nezávislej poroty.
Ospravedlňujeme sa súťažiacim, že výsledky zverejňujeme až teraz. Vzhľadom na vysoký počet návrhov a množstvo technickej a administratívnej práce boli písomnosti, posudky a iné potrebné materiály, dopracovanéné až dnes.
Ešte raz pekne ďakujeme všetkým súťažiacim za ich čas a nasadenie. V budúcich dňoch zverejníme všetky súťažné návrhy. Je to príspevok k transparentnosti i výborný študijný materiál a nástroj na porovnanie si alternatívnych prístupov k zadaniu. Návrhy butú takisto fyzicky verejne vystavené. O termíne výstavy budeme informovať.