Na podujatí sa predstaví až 37 vystavovateľov - popredných dodávateľov stavebných materiálov a inovácií s prezentáciou...
Novotvar v prostredí alpskej obce.
Hansgrohe - prémiová značka kúpeľňových riešení, ponúka nadčasový dizajn, technickú precíznosť a udržateľné inovácie...
Využite špeciálnu akciu Internorm: okná za minuloročné ceny a hliníkový kryt úplne zadarmo. Ponuka je časovo obmedzená!
Sumarizácia najdôležitejších inovácií, ktoré redefinujúcich využitie tohto energetického zdroja.
AMPHIBIA 3000 GRIP 1.3 od spoločnosti ATRO predstavuje modernú hydroizolačnú technológiu, ktorá spája vysokú odolnosť,...
Ambiciózne plány EK narazili na ekonomické možnosti domácností v jednotlivých členských štátoch –...
IDEA DOOR od spoločnosti JAP prináša do interiéru čistý minimalistický vzhľad vďaka bezrámovému riešeniu a precíznej...
Kontinuita riešenia od vonkajšieho obkladu až po kovania a kľučky.
Nástenné nadomietkové armatúry Vitus sú mimoriadne vhodné pre rýchlu a efektívnu...
Okenné profily z kompozitného materiálu RAU-FIPRO X od spoločnosti Rehau sú v porovnaní s tradičnými plastovými profilmi mnohonásobne...
Najnovší sortiment stolov pre zariadenie interiérov...
Spojenie moderného dizajnu, funkčnosti a svetla do harmonického architektonického prvku.
Kancelárska budova Baumit v slovinskom Trzine prešla premenou na moderné a udržateľné pracovisko. Architekti kládli dôraz...
Mottom šiesteho ročníku on-line konferencie odborníkov Xella Dialóg je Efektívny návrh budov 2025+: zmeny a riešenia

Návrhy sú prestavené pod číslami pridelenými vypisovateľom súťaže. Čísla boli prideľované chronologicky podľa času doručenia. (Posudky poroty pripájame k návrhom ktoré postúpili do 2., 3. a 4. kola).
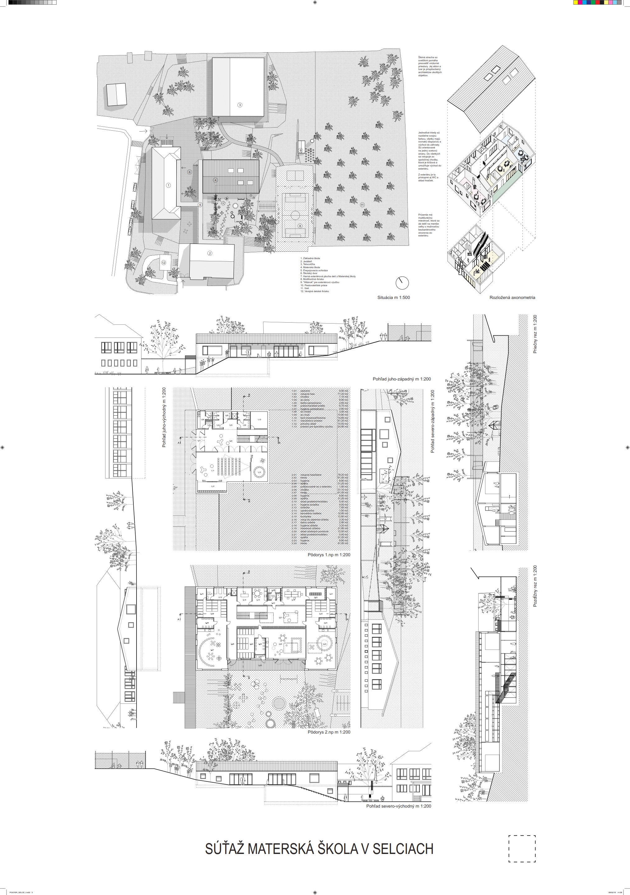
Súťažný návrh č.1 - SPDe s.r.o. (Ing. arch. Štefan Lichvár, Ing. arch. Mária Lichvárová, Ing. arch. Michal Petrák, Ing. arch. Alexander Schleicher)
- Návrh postúpil do 3.kola súťaže a skončil v poradí 8–10 ex aequo s počtom bodov 120.
"Architektúra objektu je navrhnutá z ohľadom na jestvujúce prostredie – tvarovo vychádza objekt so zelenými strechami z motívu zvlneného terénu, ktorý zabezpečuje priehľady z objektu školy a okolia do zelenej časti areálu. Hmotové riešenie odzrkadľuje dispozičné rozdelenie škôlky na tri triedy a spoločné časti, pričom každá z týchto primárnych funkcií je orientovaná na inú stranu."
Hodnotenie poroty:
Návrh je zástupcom Centrálneho modelu. Kompaktný objekt, nekompromisne votknutý do prvej terasy svahu, hneď na prvý pohľad zaujal. Tento návrh prezentuje jedno z najlepšie vyriešených prevádzkovo - dispozičných riešení. Zovretý tvar štruktúrovaný triedami, bez komplikovaných väzieb na okolie, pôsobí čisto. Prevýšené triedy, polyfunkčná miestnosť bez možnosti oddelenia a menšia variabilita dennej a oddychovej časti tried sa nejavili ako výraznejší problém.
Vážnejšie nedostatky sme našli v riešení hmoty, striech a fasád. Toto riešenie na nás pôsobilo rozpačitejšie – objekt pôsobil v školskom areáli izolovane a možno až príliš tvrdo. Orámované fasády bez presahu zelenej strechy nechtiac vzbudzovali predstavu skôr sakrálnej architektúry.
Panely a text vo formáte PDF nájdete v prílohe nižšie:
Súťažný návrh č.2 - Mgr. Art. Boris Kopaj, Ing. arch. Ľuboš Kľučka
"Koncepcia riešenia spočíva v rozvrhnutí dispozície v tvare trojuholníka, kde v jeho vrcholoch sa nachádzajú priestory samotných tried. V osi hmoty sa nachádza zhromažďovací priestor. Priestor chodby oddeľuje triedy od časti určenej pre zamestnancov materskej školy a zároveň tvorí koridor pre prepojenie s objektom jedálne na jednej strane (pravej) a telocvične na druhej strane (ľavej). Tvar hmoty je navrhnutý tak, aby zodpovedal tradičnej ľudovej architektúre v regióne, v kombinácií s modernými prvkami, so zachovaním kontextu s jestvujúcimi objektmi v areály školy. Vo vrchole trojuholníka je orientovaná hmota triedy v tvare elipsy – ktorá krivkami symbolizuje zrod nového života – vajce, vajíčko..."
Panely a text vo formáte PDF nájdete v prílohe nižšie:
Súťažný návrh č.3 - Ing. arch. Branislav Husárik, Ing. arch. Marián Stanislav, Ing. arch. Martin Hudec, Ing. arch. Patrícia Botková, Ing. arch. Katarína Bergerová
"Vzhľadom k členitosti terénu sme sa rozhodli objekt navrhnúť ako dvojpodlažný. Na vstupnom podlaží sa nachádza viacúčelová miestnosť, ktorá môže slúžiť ako priestor priestor pre stretávanie sa rodičov s deťmi, či spoločenské udalosti v kontexte obecného významu, pre hru detí v nepriaznivom počasí, ako alternatívna možnosť pre stravovanie žiakov školky.Priestor môže byť v čase rekonštrukcie objektu telocvične využívaný ako dočasný priestor pre telovýchovu, a v neposlednom rade môže tento priestor využívať aj jedna trieda školskej družiny. Vzhľadom k objemu stavby sme sa rozhodli jednu triedu školskej družiny ponechať v objekte školskej jedálne."
Panely a text vo formáte PDF nájdete v prílohe nižšie:
Súťažný návrh č.4 - Ing. arch. Tomáš Kodet, Ing. arch. Martina Kodetová (ČR)
- Návrh postúpil do 3.kola súťaže a skončil v poradí 6–7 ex aequo s počtom bodov 130.
"Pretiahnutý prízemný tvar materskej školy umiestnený na vrstevnici reaguje na prudký svah pozemku a zároveň otvára budovu jak do spoločného komunitného dvora, tak do oplotenej záhrady materskej školy. Vďaka zapusteniu budovy do terénu a zelenej streche budova splýva so svahom školského pozemku a neruší výhľady do krajiny z existujúcej školskej budovy."
Hodnotenie poroty:
Zástupca Lineárneho modelu. Návrh venoval dosť pozornosti bezprostrednému okoliu objektu avšak v snahe o prepojenie všetkých objektov v areálu –„odrezal“ centrálny priestor od záhrady. Akcent na verejný centrálny priestor porota vítala. Nepresvedčivo však pôsobila dlhá neštruktúrovaná hmota „narazená“ na jedáleň.
Čo sa týka prevádzky – porota preferovala samostatný vstup do jedálne pred spoločným (dlhší nástup). Polyfunkčná miestnosť nie je prevádzkovo oddeliteľná. Inak pôdorysné riešenie pôsobí čisto bezbariérovo a bezkolízne.
Panely a text vo formáte PDF nájdete v prílohe nižšie:
Súťažný návrh č.5 - Light4Space s.r.o. (Ing. arch. Igor Kovalovský, Ing. arch. Ján Krchnavý)
- Návrh postúpil do 3.kola súťaže a skončil v poradí 11–15 ex aequo s počtom bodov 110.
"Architektúra troch domov zo šikmou strechou je reakciou na budovu školy, jedálne a morfológiu prevažujúcich striech v obci. Návrh počíta s rekonštrukciou starej budovy telocvične na jej pôvodnom mieste a s novou fasádou pre jedáleň tak, aby bol vytvorený jednotný architektonický výraz celého areálu. Budova školy ostáva v pôvodnom stave."
Hodnotenie poroty:
Zástupca Centrálneho modelu s vyjadrením prevádzkových jednotiek. Nádejný rozvoj myslenia prezentovaný na schémach sa bohužiaľ v poslednom kroku premenil na predimenzovaný súbor objektov, ktoré postrádajú mierku a vzťah k ostatným objektom školského areálu. Priestorový koncept tradičných archtetypov sa autorom nepodarilo dotiahnuť do presvedčivej hmoty ani výrazu. Objekt je bezbariérový len vďaka výťahu. Pohyb detí po schodišti bude prinášať komplikácie a nie je v danej situácii nevyhnutný. Otvorenie tried do vysokého loftu strechy je problematický zo strany vnímania predškoláka.
Panely a text vo formáte PDF nájdete v prílohe nižšie:
Súťažný návrh č.6 - Ing. arch. Ján Tvrdoň, Ing. arch. Erik Blaho, Ing. arch. Matej Brondoš, Ing.arch. Andrej Barinka
- Návrh postúpil do 2.kola súťaže a skončil v poradí 16–23 ex aequo s počtom bodov 90.
"Z hľadiska architektúry je navrhnutý objekt, ako jednoduchý kváder, jemne zasadený do stúpajúceho terénu, vďaka čomu tvoríme budovu, ktorá nenarúša krajinný ráz okolia ale ho dopĺňa. Táto filozofia sa odzrkadľuje aj na stvárnení fasády, ktorá je minimalisticky jednoduchá a zároveň pokojná, vhodná do prírodného rázu krajiny."
Hodnotenie poroty:
Toto je návrh, ktorý „miluje“ súťaže. Každý porotca si ho okamžite všimol a zaradil ho pomerne vysoko vo svojom pomyslenom rebríčku. Je to návrh, ktorý vďaka úspornej a výraznej grafiky, podloženej jednoduchou a výraznou formou je schopný okamžite zaujať.
O to bolo ťažšie pre porotcov poznanie, že tento návrh nie je vôbec vhodný pre materskú škôlku v Selciach. Lineárny model objektu posunutý do zadnej línie je rovnako ako víťaz súťaže s väčšej časti zakopaný. Bohužiaľ , všetky jeho triedy majú síce pekný výhľad na dedinu, ale ich orientácia je na severozápad. Ostatné priestory majú len strešné svetlíky, ihrisko s „voliérovou“ ochranou na streche bez kontaktu z triedy je sporné. Nevyriešené stravovanie vo vzťahu s jedálňou je zásadným nedostatkom.
Panely a text vo formáte PDF nájdete v prílohe nižšie:
Súťažný návrh č.7 - Ing. arch. Petra Schleicher, Ing. Ivan Tasler
- III. cena
"Prízemný objekt vytvára štruktúru, ktorá vo svojom členení reaguje na mierku areálu, ale rovnako je v interakcii s mierkou okolitej zástavby rodinných domov, ktorá areál školy obkolesuje. Štruktúra objektu zároveň pravdivo a čitateľne vyjadruje jeho vnútorné členenie a funkčno-prevádzkové väzby a vonkajšie väzby objektu materskej školy a areálu, predovšetkým existujúceho objektu jedálne."
Hodnotenie poroty:
Návrh reaguje na morfológiu terénu hmotným oddelením jednotlivých oddelení MŠ. Spolu s aplikáciou zelených striech ide o citlivé osadenie do terénu. Z pohľadu vnútornej prevádzky MŠ však vytvára potrebu prekonávania výškových rozdielov.
O zrelosti návrhu a autora svedčí aj grafické vyjadrenie na paneli č. 1, za ním však zaostávajú vizualizácie na paneli č. 2. Tu je nedostatkom návrhu vzťah objektu MŠ k náprotivnej budove školy /plné steny, nedoriešený areál/. Putlové riešenie striech oddelených objemov vytvára hlboké úžľabia, ktoré môžu byť v miestnych klimatických podmienkach rizikovým miestom stavby. Napriek tomu sa jedná o kultivované riešenie súťažného návrhu, kde sa podarilo vytvoriť príjemné vnútorné prostredie s dobrým prepojením na exteriér.
Panely a text vo formáte PDF nájdete v prílohe nižšie:
Súťažný návrh č.8 - Obermeyer Helika s.r.o. (Ing. Dušan Štefanides)
"Budova je navrhnutá tak, aby objemovo a tvarovo zapadla do okolia. Sedlová strecha, výška hrebeňa obdĺžnikový pôdorys korešpondujú s okolitými domami. Nesie v sebe tvaroslovie archetypu stodoly vyskytujúcej sa hojne v horskom regióne. Objem sa ponára do svahu, a zo strany školy uzatvára do seba. Cez presklené fasády sa otvára okoliu svojou vybratou časťou ihriska. Použité materiály sú drevo, betón, keramická pálená tehla, sklo. Odporúčam použiť materiály z lokálnych zdrojov."
Panely a text vo formáte PDF nájdete v prílohe nižšie:
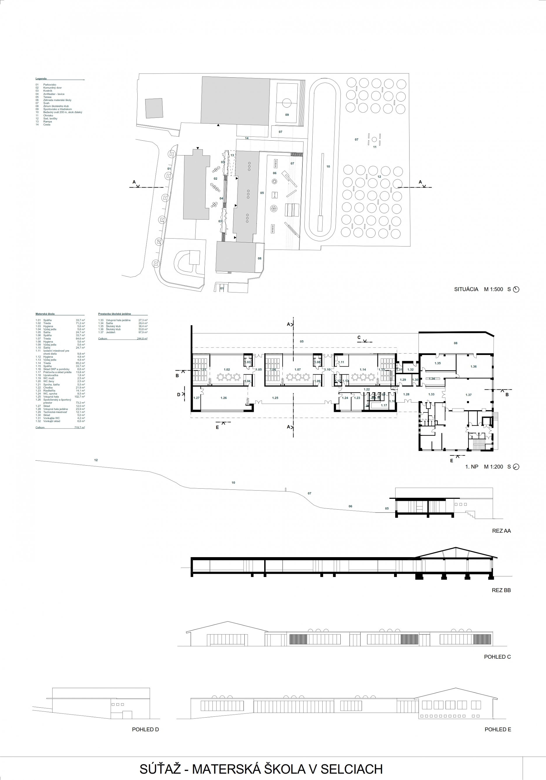
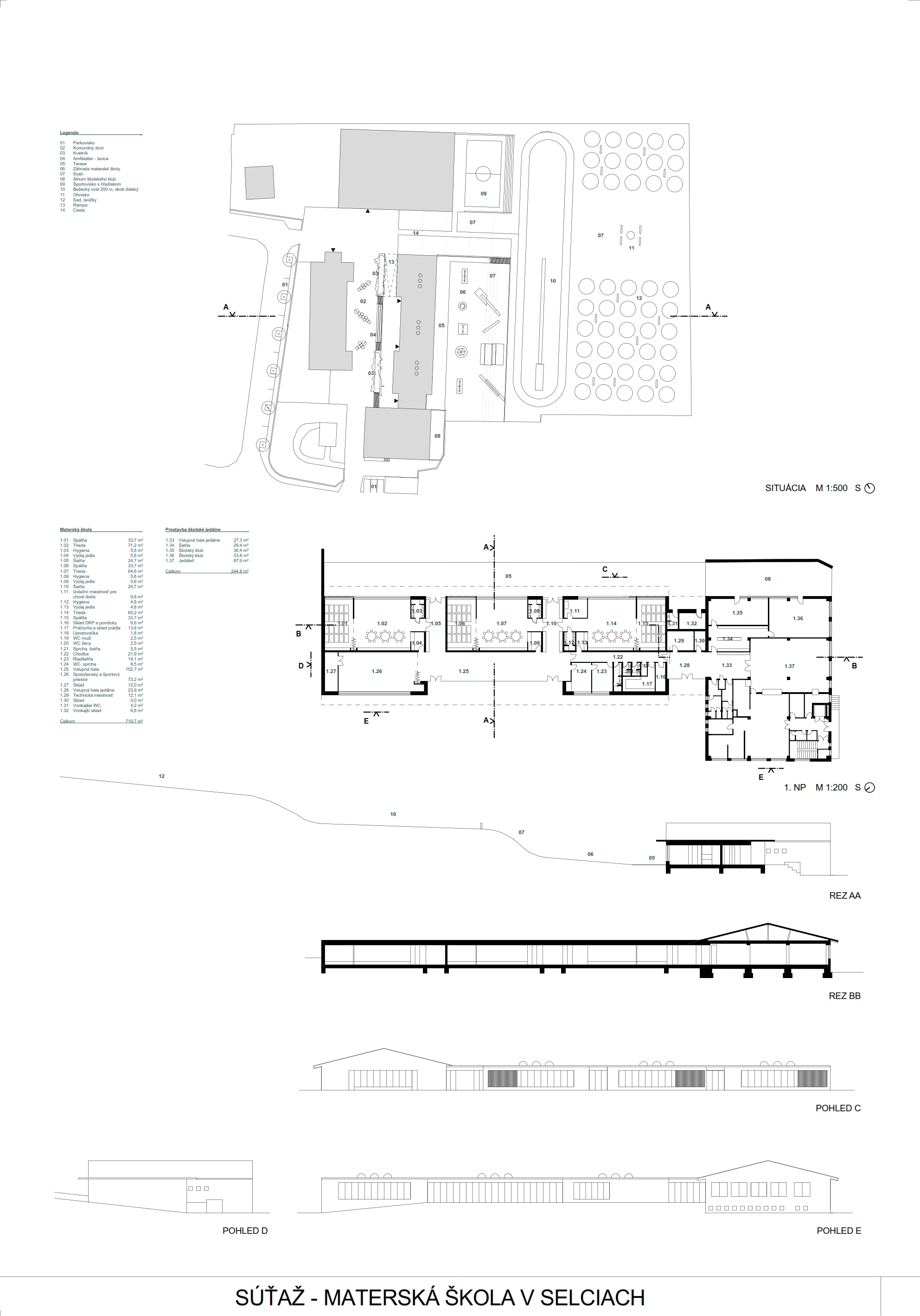
Súťažný návrh č.9 - Ing. arch. Tibor Gombarček, Ing. arch. Marián Gombarček, Dipl. -Ing. Dominika Čerepkaiová, Ing. arch. Pavol Dobšinský
- Návrh postúpil do 3.kola súťaže a skončil v poradí 6–7 ex aequo s počtom bodov 130.
"Hmotovo vychádza návrh z pragmatickej kompaktnej hmoty, obdĺžnikového pôdorysu, zarezanej priečne do svahu, kolmo na existujúci oporný múr. Tvarovaním hmoty boli extrahované tie časti, ktoré vo finálnej podobe reprezentujú patiá a tvoria tak prepojenie medzi interiérom a exteriérom.. 4 hmoty - 4 bloky - blok administratívy, blok viacúčelovej sály, a 2 bloky tried – vzájomne prepojené hlavnou komunikačnou osou. Z jednotlivých hmôt vystupujú svetlíky, ktoré svojim konštrukčným stvárnením pultovým krovom reflektujú kontext miesta a svojou orientáciou doplňujú hlavné denné priestory o potrebné presvetlenie."
Hodnotenie poroty:
Zástupca Vertikálneho modelu riešil prevádzku materskej školy v súvislosti s klesaním, resp. stúpaním záhrady. Toto zaujímavé riešenie na jednej strane otvára centrálny priestor školského areálu do záhrady a ďalej „až za ploty“, na druhej však „utopilo“ objekt jedálne za škôlkou. Priestorovo volia autori „ozubenú“ schému s vnútornými poloátriami. Zaujímavá „ponuka“ prechodu bezpečného átria do otvorenej záhrady však naráža na zložitú hmotu, pomerne rozsiahlu fasádu, horšie možnosti osvetlenia a stratu úplnej bezbariérovosti (rampy sú problematické v prípade distribúcie jedla na vozíku). Navzdory zaujímavej vizuálnej prezentácie, porota musela opustiť tento návrh hlavne kvôli pavilónovej štruktúre, ktorá nedávala veľa možnosti pre ekonomickú realizáciu v svažitom pozemku horského prostredia. Sympatickú mierku pavilónov oslabovala absencia okien v pohľade z centrálneho priestoru školského dvora a tým i nízka miera spolupôsobenia na komunitnom priestore.
Panely a text vo formáte PDF nájdete v prílohe nižšie:
Súťažný návrh č.10 - Txt architekti (Ing. Ing. arch. Marián Trcka)
"Triedy sú skoro identické a každá je riešená ako rovnaký domček so sedlovou strechou. So sedlovou strechou preto lebo nadväzujeme na okolitú štruktúru a hlavne vytvárame archetypálny rytmus s jedálňou na ktorú nadväzujeme. Domčeky sú radené priečne na os=komunikáciu(vnútornú). Pre získanie lepších priestorov a harmonického rytmu je stredný domček o šírku posunutý a vytočený. Ku každému domčeku prislúchajú spoločné priestory a priestory zázemia."
Panely a text vo formáte PDF nájdete v prílohe nižšie: