Na podujatí sa predstaví až 37 vystavovateľov - popredných dodávateľov stavebných materiálov a inovácií s prezentáciou...
Novotvar v prostredí alpskej obce.
Hansgrohe - prémiová značka kúpeľňových riešení, ponúka nadčasový dizajn, technickú precíznosť a udržateľné inovácie...
Využite špeciálnu akciu Internorm: okná za minuloročné ceny a hliníkový kryt úplne zadarmo. Ponuka je časovo obmedzená!
Sumarizácia najdôležitejších inovácií, ktoré redefinujúcich využitie tohto energetického zdroja.
AMPHIBIA 3000 GRIP 1.3 od spoločnosti ATRO predstavuje modernú hydroizolačnú technológiu, ktorá spája vysokú odolnosť,...
Ambiciózne plány EK narazili na ekonomické možnosti domácností v jednotlivých členských štátoch –...
IDEA DOOR od spoločnosti JAP prináša do interiéru čistý minimalistický vzhľad vďaka bezrámovému riešeniu a precíznej...
Kontinuita riešenia od vonkajšieho obkladu až po kovania a kľučky.
Nástenné nadomietkové armatúry Vitus sú mimoriadne vhodné pre rýchlu a efektívnu...
Okenné profily z kompozitného materiálu RAU-FIPRO X od spoločnosti Rehau sú v porovnaní s tradičnými plastovými profilmi mnohonásobne...
Najnovší sortiment stolov pre zariadenie interiérov...
Spojenie moderného dizajnu, funkčnosti a svetla do harmonického architektonického prvku.
Kancelárska budova Baumit v slovinskom Trzine prešla premenou na moderné a udržateľné pracovisko. Architekti kládli dôraz...
Mottom šiesteho ročníku on-line konferencie odborníkov Xella Dialóg je Efektívny návrh budov 2025+: zmeny a riešenia

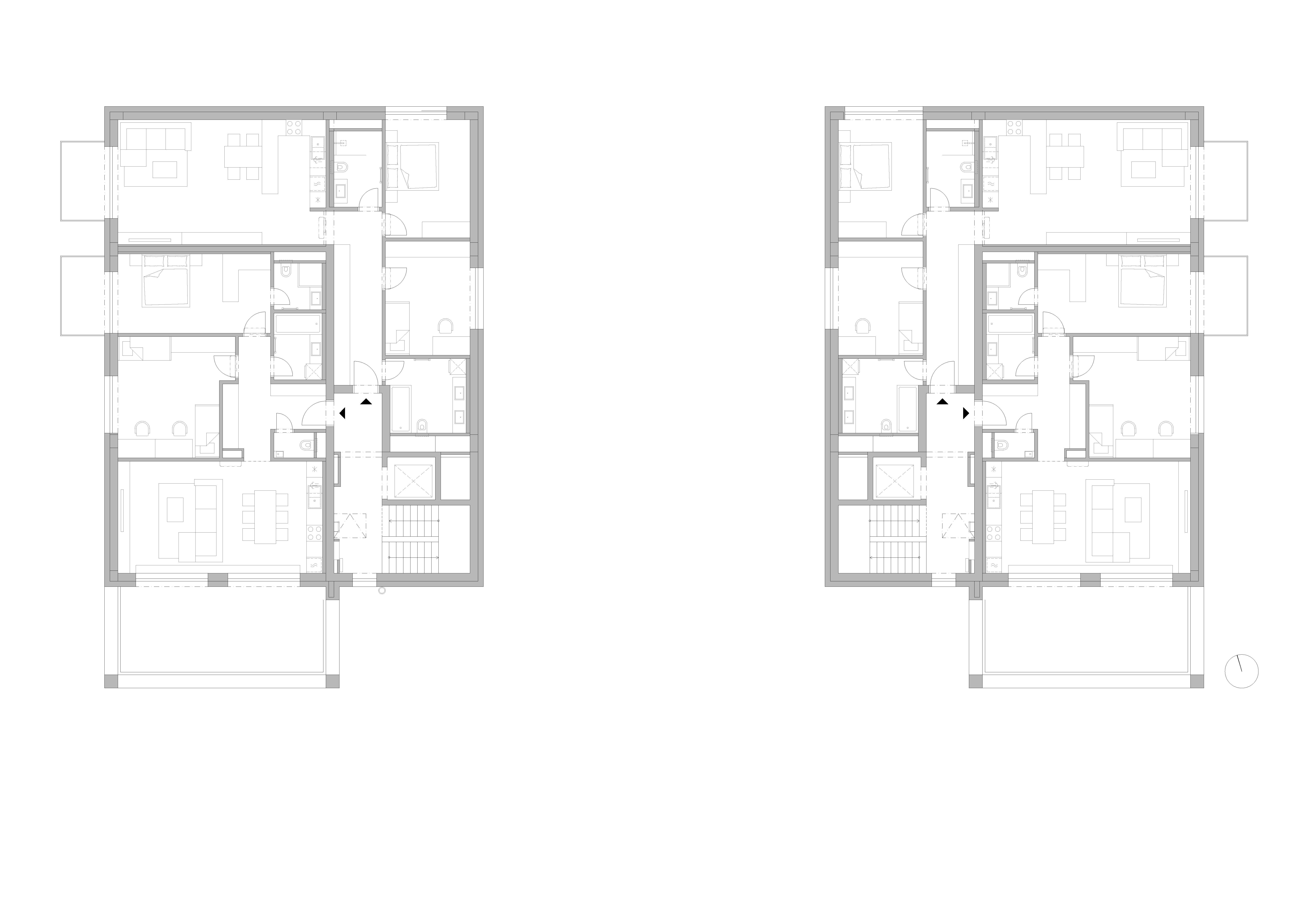
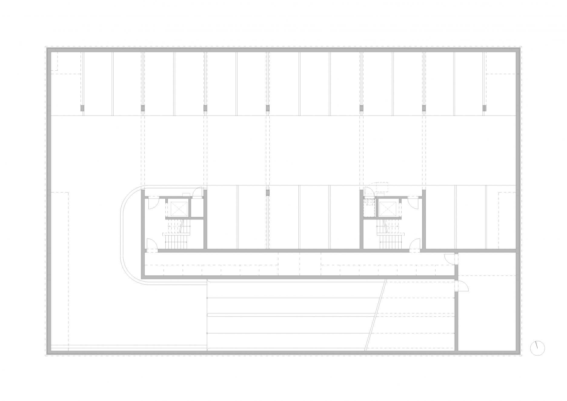
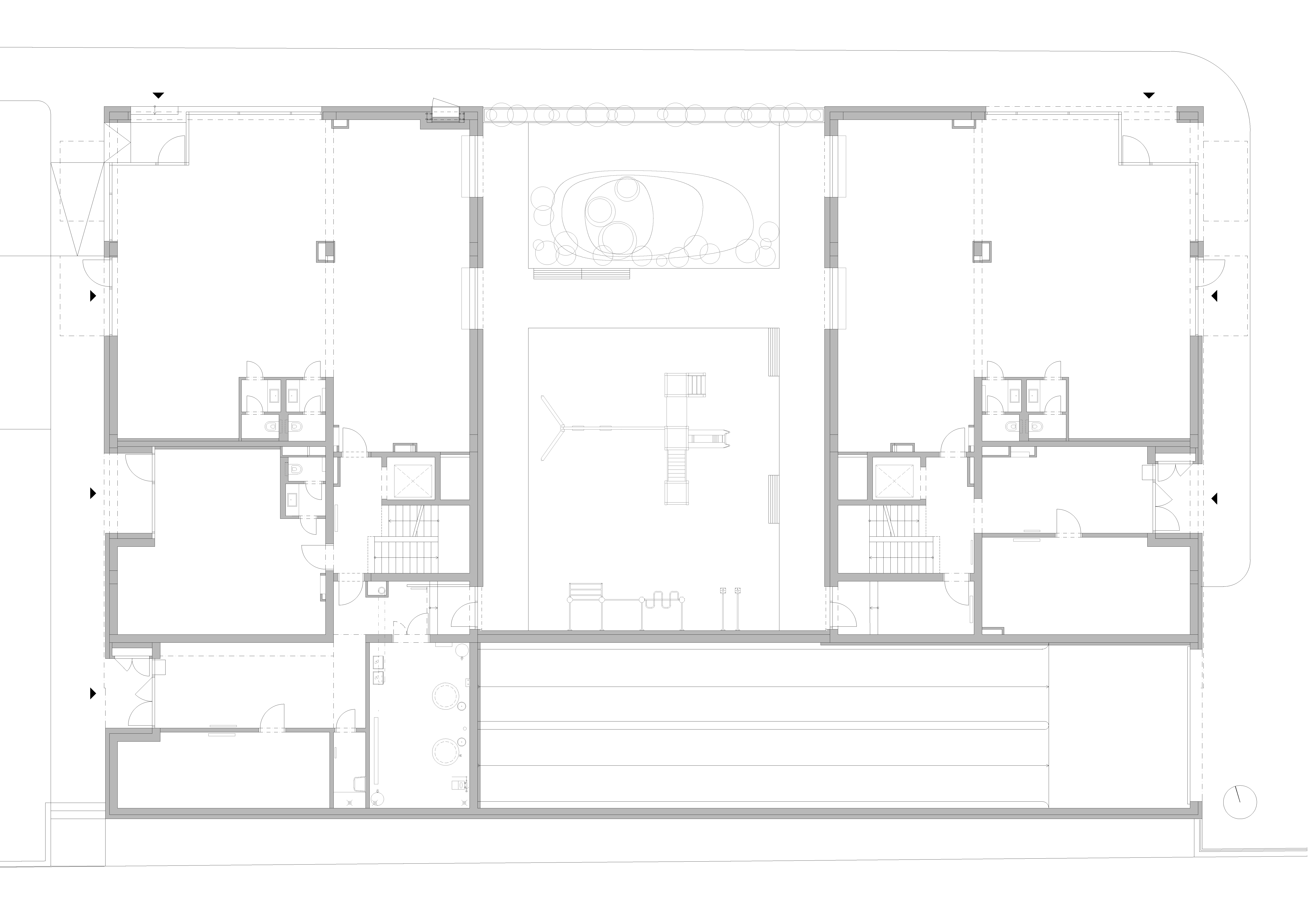
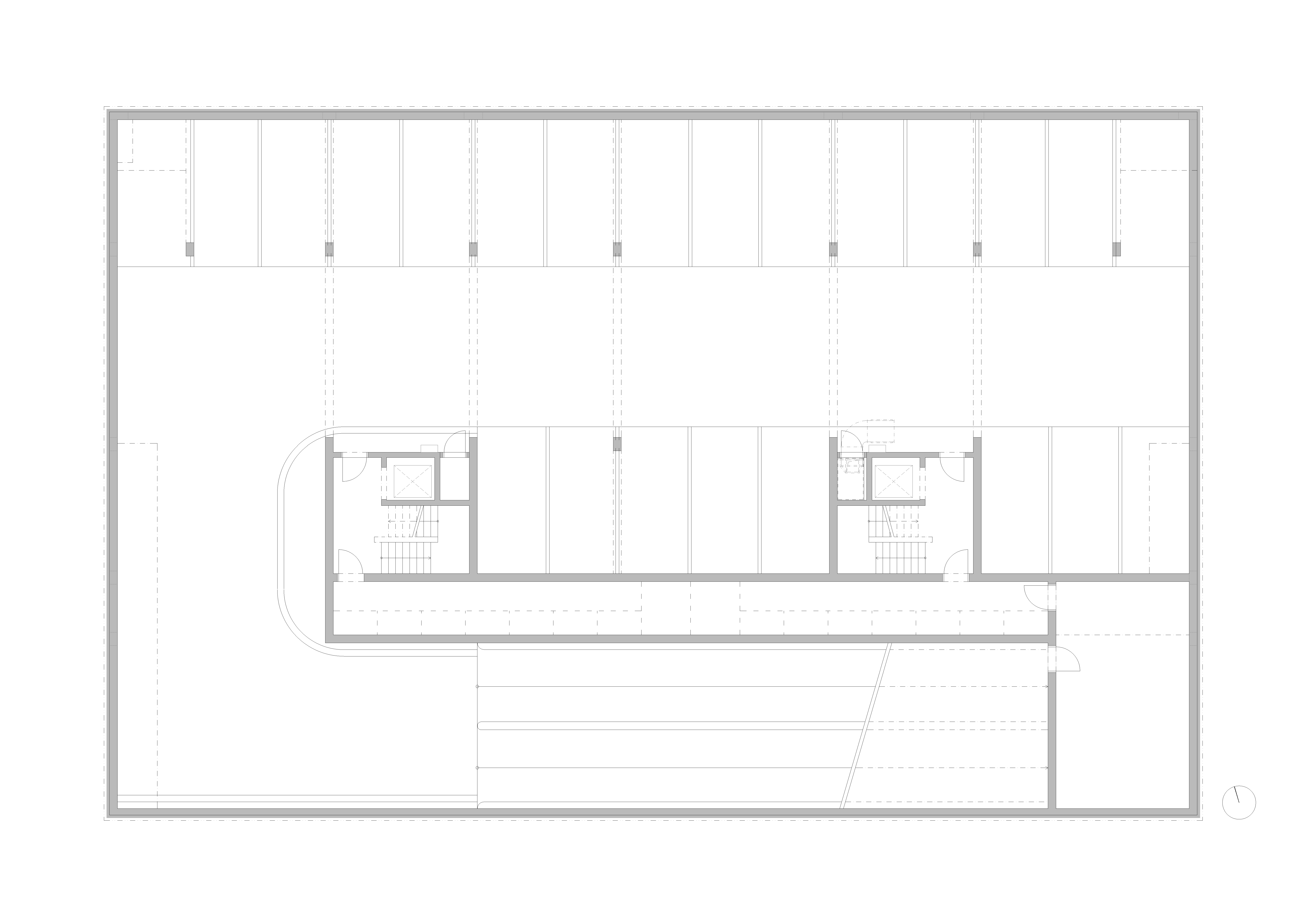
V priebehu minulého roku bol na Mojmírovej ulici v Piešťanoch dokončený rezidenčný projekt podľa návrhu Ľudovíta Vitka a VAUarchitects. Novostavbu tvoria dve symetrické sekcie, ktoré uzatvárajú mestský blok a zachovávajú uličnú čiaru. Pôdorys v tvare písmena U, definovaný na úrovni prízemia dvojicou štvorpodlažných blokov a technickým traktom, vymedzuje menšie vnútorné átrium.
Každá zo sekcií bytového domu obsahuje osem bytových jednotiek, ktoré obsluhuje jedno vertikálne komunikačné jadro. Na druhom a treťom nadzemnom podlaží jednotlivých blokov sú situované tri bytové jednotky: dva dvojizbové byty a jeden trojizbák. Na štvrtom podlaží je v každom trakte jeden trojizbový byt s rovnakou dispozíciou ako na 2.-3.NP a jeden priestranný trojizbový byt s rozsiahlou, južne orientovanou terasou. Priestory na prízemí zastrešujú prenajímateľné obchodné jednotky a spoločné zázemie pre obyvateľov bytov.
Pod celým pôdorysom prechádza suterén, určený pre podzemné parkovanie a technické vybavenie bytového domu. Okrem podzemného parkoviska sú v areáli k dispozícii aj pohotovostné parkovacie miesta (10 státí) pre potreby návštevníkov obchodných prevádzok. Vegetačné strechy nad garážami, vjazdom a technickým blokom pôsobia ako biofilter a čiastočne zadržiavajú dažďovú vodu. Zelené plochy v átriu dopĺňa zóna s hracími prvkami pre deti.
Technické časti partra odlišujú architekti od hlavných blokov štvorpodlažných sekcií sivou farebnosťou. K celkovému vyzneniu architektonickej kompozície prispievajú bezpresahové ploché strechy, striedanie okenných otvorov uličných priečelí, sivé rámy výplní a subtílne zámočnícke detaily.
Zvislé nosné konštrukcie tvorí železobetónový skelet s prievlakmi a stužujúcimi stenami okolo schodísk, výťahov a medzi bytmi. Výplňové obvodové murivo s hrúbkou 300mm je zateplené kompaktným systémom z minerálnej vlny.
Autori: Ing. arch. Ľudovít Vitko + VAUarchitects