Okenné profily z kompozitného materiálu RAU-FIPRO X od spoločnosti Rehau sú v porovnaní s tradičnými plastovými profilmi mnohonásobne...
Najnovší sortiment stolov pre zariadenie interiérov...
Spojenie moderného dizajnu, funkčnosti a svetla do harmonického architektonického prvku.
Kancelárska budova Baumit v slovinskom Trzine prešla premenou na moderné a udržateľné pracovisko. Architekti kládli dôraz...
Mottom šiesteho ročníku on-line konferencie odborníkov Xella Dialóg je Efektívny návrh budov 2025+: zmeny a riešenia
Robot WLTR predstavuje moderný prístup k murovaným konštrukciám. Vďaka automatizácii dokáže rýchlo, presne a bezpečne realizovať...
Okrem bezpečnosti majú okná aj elegantný vzhľad, pretože nie sú viditeľné žiadne uzamykacie časti kovania.
Dvere MASTER v skrytej zárubni AKTIVE je možné vyrobiť až do výšky 3 700 mm
Internorm stavia na energetickú efektívnosť a inteligentné tieniace riešenia.
Pohľad na moderné prístupy k výrobe s dôrazom na udržateľnosť.
Slovensko vo výbere zastupuje šesť realizácií.
Spoločnosť Internorm odteraz stavia na novej variante tepelnoizolačného skla od AGC, ktorá v produkcii ročne ušetrí 10...
Jubilejný 20. ročník prestížnej medzinárodnej súťaže pre študentov architektúry priniesol...
Otočné a posuvné dvere MASTER od podlahy až po strop, ponúkajú mimoriadnu variabilitu výšky, materiálu a zladenia so skrytými...
Predstavené produkty, spájajú premyslený dizajn, funkčnosť a udržateľnosť. Nábytok Materia vzniká s cieľom podporiť inšpiratívne stretnutia...

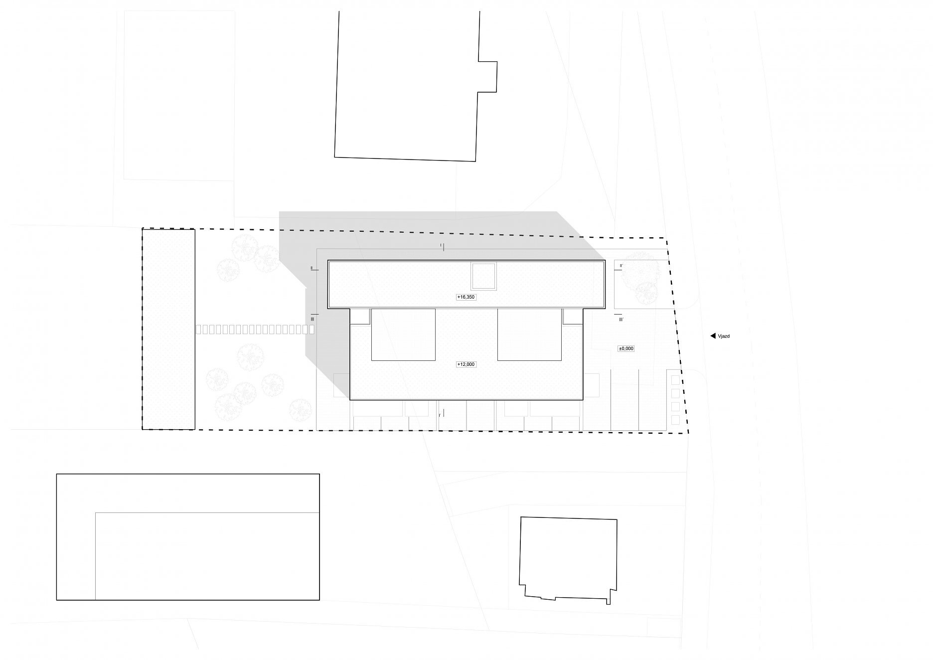
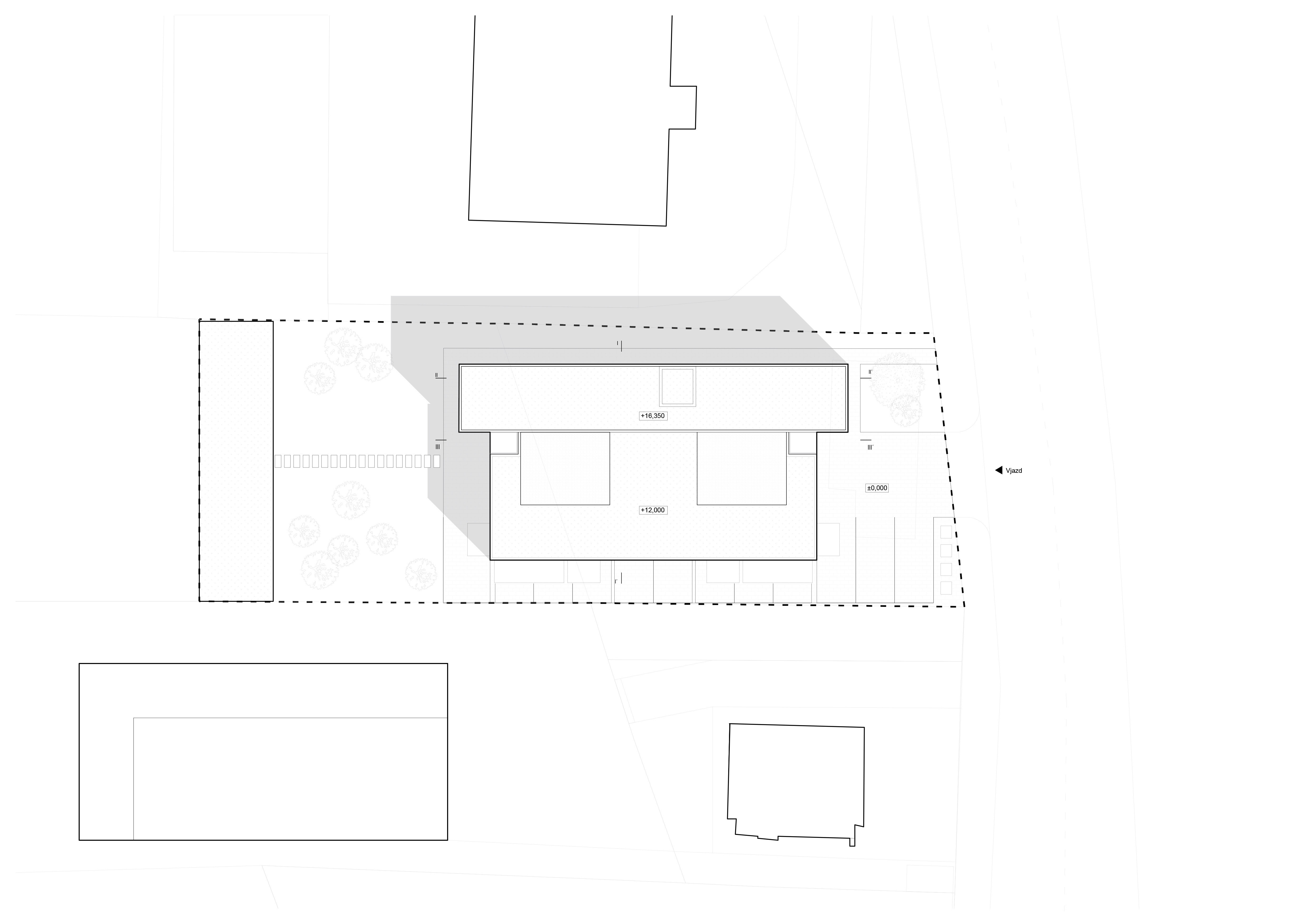
Realizácia v Podunajských Biskupiciach z dielne ateliéru kuklicasmerek+ rozumne využíva danosti a limity komplikovanej parcely. Nastavuje dôstojnú tvár smerom do ulice a zachováva otvorené priehľady do záhrady.
Skladbu menších bytov, presvetlených vždy z viacerých strán, dopĺňajú na najvyšších podlažiach štíhleho bloku neobvyklé mezonety so svetlou výškou až 6m. Zjednocujúci plášť z vlnitého plechu prispieva k celkovému vyzneniu architektonického konceptu a vytvára zapamätateľný bod v okolitom prostredí.
Viac slovami autorov:
Koncept malého bytového domu prezentuje náš pohľad, ako vytvoriť kvalitné mestské bývanie. Medzi základné prvky návrhu patrí rešpektovanie mierky urbanizmu a komunikácia objektu so svojím okolím. Dôležitá je kultivovaná zeleň pre obyvateľov, rovnako pre okoloidúcich, svetlé a racionálne dispozície s orientáciou na dve svetové strany a spoločné pobytové priestory.
Urbanisticky objekt artikuluje a dopĺňa kompozične nedopovedanú Podunajskú ulicu v jej ohybe a nadväzuje na vznikajúcu uličnú čiaru. Vizuálne je zložený z dvoch hmôt “komína a boxu”, čo zmenšuje proporciu uličných fasád. Toto delenie hmoty zároveň vychádza z umiestnenia a orientácie rôznych typov bytov.
Komín obsiahol menšie 1,5 izbové byty s lodžiou pre páry alebo jednotlivcov a box väčšie 2,5 izbové štartovacie byty s veľkorysými balkónmi. Všetky byty sú kvôli presvetleniu a prevetraniu ako aj akustickej pohode rohové. Prevýšenú časť komína tvorí dvojica loftových bytov so svetlou výškou skoro 6 metrov a pobytovými terasami na zelenej streche.
Otvorený parter objektu opticky odľahčuje hmotu a otvára priehľady do parku za domom aj pre okoloidúcich. Zasunutie spevnených plôch parkovísk umožnilo vytvoriť záhradu v tichej časti za domom. Na jej konci je komunitný altánok s kuchyňou a priestor pre odkladanie bicyklov a kočíkov. Priechodný parter zároveň funguje ako prekryté námestie, fungujúce ako spoločenský uzol, kde sa obyvateľ zastaví a porozpráva so susedom či naučí dieťa bicyklovať.
Fasáda objektu, s pohľadovou vrstvou vlnitého plechu, tvorí prechodom medzi priľahlými objektmi technického charakteru a bytovými domami. Zároveň dáva objektu jemnosť a kultivovanosť. Dom sa pomaly, ale isto stáva orientačným bodom vo svojej lokalite.
Ateliér: kuklicasmerek+
Fotografie: Alexandra Timpau (Alex Shoots Buildings)