Na podujatí sa predstaví až 37 vystavovateľov - popredných dodávateľov stavebných materiálov a inovácií s prezentáciou...
Novotvar v prostredí alpskej obce.
Hansgrohe - prémiová značka kúpeľňových riešení, ponúka nadčasový dizajn, technickú precíznosť a udržateľné inovácie...
Využite špeciálnu akciu Internorm: okná za minuloročné ceny a hliníkový kryt úplne zadarmo. Ponuka je časovo obmedzená!
Sumarizácia najdôležitejších inovácií, ktoré redefinujúcich využitie tohto energetického zdroja.
AMPHIBIA 3000 GRIP 1.3 od spoločnosti ATRO predstavuje modernú hydroizolačnú technológiu, ktorá spája vysokú odolnosť,...
Ambiciózne plány EK narazili na ekonomické možnosti domácností v jednotlivých členských štátoch –...
IDEA DOOR od spoločnosti JAP prináša do interiéru čistý minimalistický vzhľad vďaka bezrámovému riešeniu a precíznej...
Kontinuita riešenia od vonkajšieho obkladu až po kovania a kľučky.
Nástenné nadomietkové armatúry Vitus sú mimoriadne vhodné pre rýchlu a efektívnu...
Okenné profily z kompozitného materiálu RAU-FIPRO X od spoločnosti Rehau sú v porovnaní s tradičnými plastovými profilmi mnohonásobne...
Najnovší sortiment stolov pre zariadenie interiérov...
Spojenie moderného dizajnu, funkčnosti a svetla do harmonického architektonického prvku.
Kancelárska budova Baumit v slovinskom Trzine prešla premenou na moderné a udržateľné pracovisko. Architekti kládli dôraz...
Mottom šiesteho ročníku on-line konferencie odborníkov Xella Dialóg je Efektívny návrh budov 2025+: zmeny a riešenia

Dom na Laurinskej ulici číslo 14, postavený v roku 1971 podľa projektu Štefana Ďurkoviča netreba bratislavčanom dlho predstavovať. Neskoro modernistická stavba, ustúpená od uličnej čiary a vyčnievajúca nad susedné historické budovy sa rokmi stala orientačným bodom vstupu do centra mesta a miestom alternatívnej kultúry. Pôvodne tu sídlia Inžiniersko-projektová organizácia školských stavieb, neskôr napríklad Katedra scénografie VŠMU či Katedra architektonickej tvorby VŠVU.
Ďeväťpodlažná budova vznikla na parcele, ktorá historicky priliehala k južnej časti mestského opevnenia. Rozvoj mesta, zlučovanie úzkych parciel a postupný prerod ulice priniesol do mestskej pamiatkovej rezervácie mnohovrstvovú štruktúru, so zastúpením kvalitných diel neskorej moderny. Okrem domu na Laurinskej 14 (Štefan Ďurkovič) za spomenutie určite stojí aj Dom slovenských spisovateľov dokončený v rovnakom roku (Jozef Lacko).
Aktuálna rekonštrukcia diela Štefana Ďurkoviča z dielne ateliéru Kuklica x Smerek ukazuje aj po polstoročí potenciál pôvodného architektonického riešenia.
“Zvolený ´facelift´ budovy ju konzervuje vo svojej architektonickej podstate tak ako ju navrhol architekt Štefan Ďurkovič, a vyplýva z dlhého hľadania správnej podstaty rekonštrukcie,” vysvetľujú architekti.
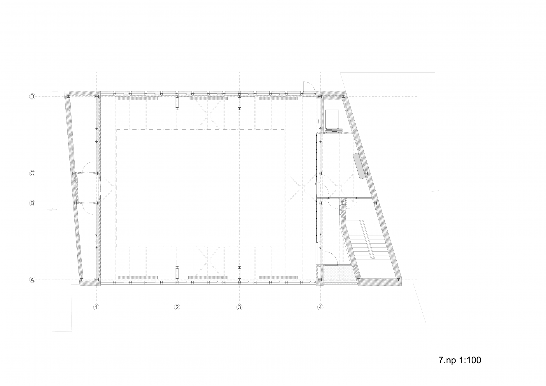
Masívne lichobežníkové konštrukcie vertikálneho a hygienického jadra, ktoré výrazne čnejú nad susedné domy, vyčleňujú ortogonálny centrálny priestor. Ľahká oceľová konštrukcia umožnila prostredníctvom presklených fasád úplne otvoriť dom smerom do ulice aj do dvora a spolu so spriahnutou konštrukciou stropov a viditeľným trapézovým plechom vytvára nezameniteľnú estetiku vnútorných priestorov.
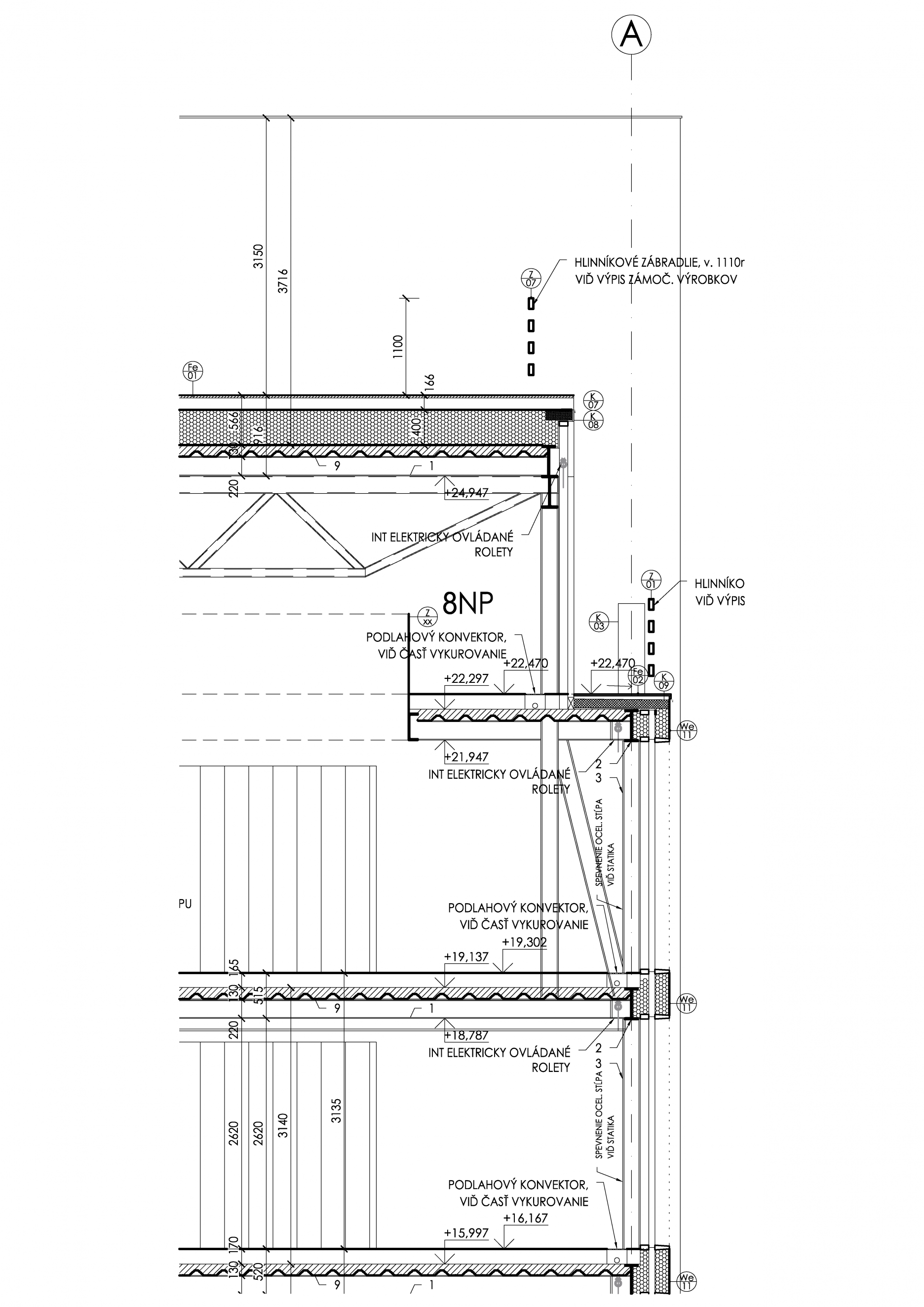
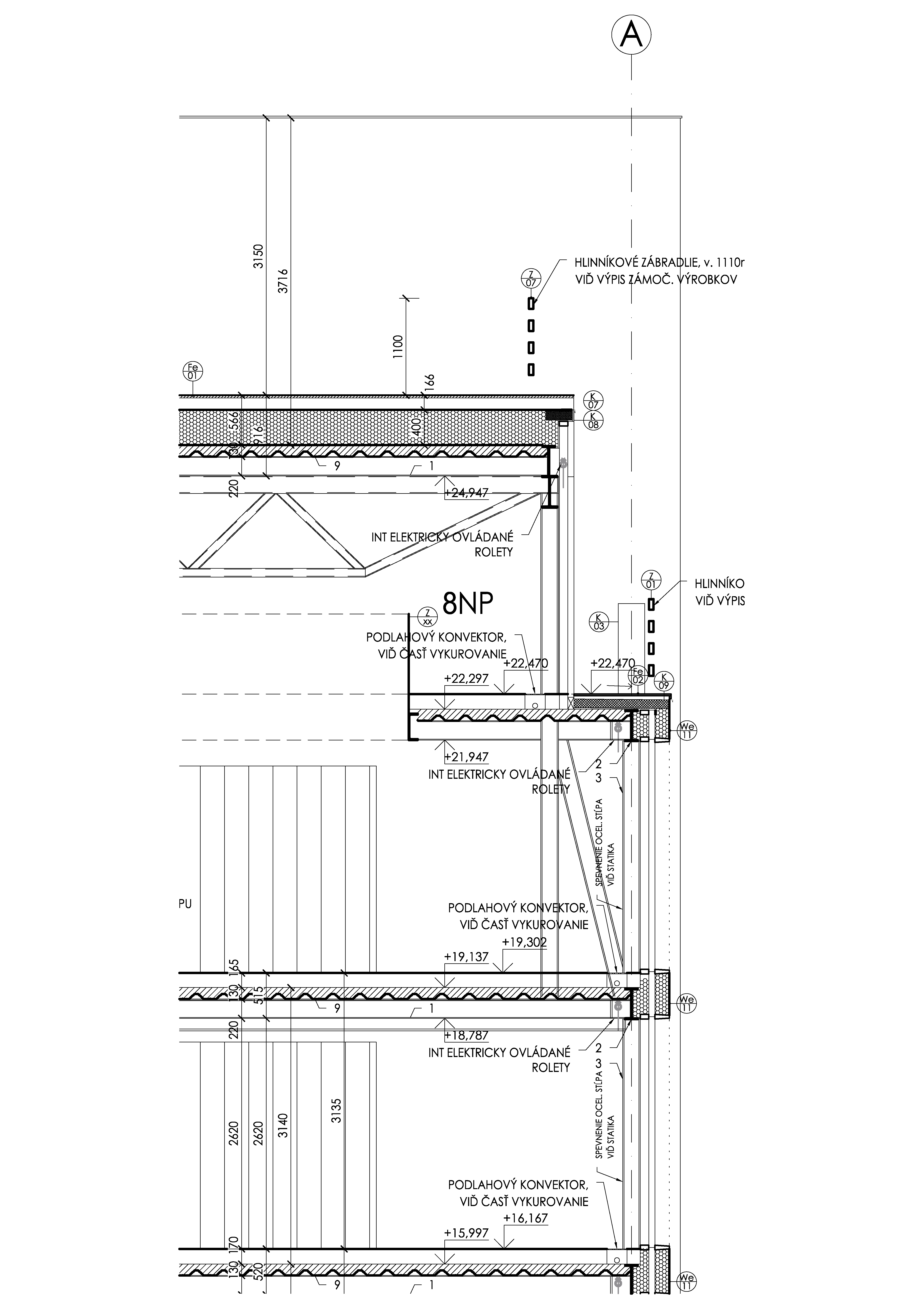
Zásahy architektov spočívali v zachovaní a efektívnom využití daností pôvodnej stavby. Výraznejším konštrukčným zásahom bolo prepojenie 7. a 8. podlažia prostredníctvom otvorenej galérie. Navrhované riešenie umožnilo realizovať vloženie novej priehradovej konštrukcie, zjednotenej s pôvodnými prvkami tmavým náterom.
Dôležitá bola tiež výmena oboch montovaných oceľových fasád, ktoré boli v havarijnom stave. Členenie a proporcie nových polí rešpektuje vertikálny raster pôvodného riešenia, rámy sú však výrazne subtílnejšie. Fasádu orientovanú na Laurinskú ulicu navrhli architekti ako zavesenú s vložením nových otváravých segmentov, pričom parapet lícuje s úrovňou podlahy. Modul sa opakuje na každom podlaží - od 2. NP až po podlažia po 7. NP. Výnimku tvorí ustúpené štvrté nadzemné podlažie s pochôdznou terasou a rovnako ustúpené 8. NP, z ktorého sa otvárajú výhľady na mestskú pamiatkovú rezerváciu a Staré mesto.
Okrem rekonštrukcie fasád prebehla výmena, požiarneho schodiska, výťahu, strešného plášťa a zmena systému vykurovania (tepelné čerpadlá), čo zabezpečilo dosiahnutie kvalitných technických parametrov stavby.
Príkladné zachovanie výrazu pôvodného diela, prinavrátenie maximálnej priestorovej flexibility domu, spolu s nevyhnutnou a výraznou technickou modernizáciou stavby...
...predstavuje pozitívny príklad, ako narábať s dedičstvom neskorej moderny.
Stavieb, ktoré by by si podobný prístup zaslúžili je v Bratislave viacero, stačí sa prejsť 150 metrov po Laurinskej ulici. Na prízemí funguje obľúbená kaviareň využívajúca "záliv" ulice. Celú budovu momentálne využíva tanečná škola, ktorá vnáša do kedysi chátrajúcej stavby novú, živú náplň.
Podklady: Kuklica-Smerek
Foto: Matej Hakár
Použité materiály a riešenia:
ISOVER PUREN FD-L 100 mm - styk zavesenej fasády a strešnej roviny