Advertorial

Hotel Hirschen Spa House, Rakúsko

Novotvar v prostredí alpskej obce.

Vytvorte si kúpeľňu snov: dizajnové riešenie od značky hansgrohe

Hansgrohe - prémiová značka kúpeľňových riešení, ponúka nadčasový dizajn, technickú precíznosť a udržateľné inovácie...

Okná Internorm za minuloročné ceny + hliníkový kryt zdarma!

Využite špeciálnu akciu Internorm: okná za minuloročné ceny a hliníkový kryt úplne zadarmo. Ponuka je časovo obmedzená!

Pozvánka na 2. ročník stavebného veľtrhu BigMarket na Slovensku

Na podujatí sa predstaví až 37 vystavovateľov - popredných dodávateľov stavebných materiálov a inovácií s prezentáciou...

Moderné plynové technológie: Efektivita a inovácie pre 21. storočie

Sumarizácia najdôležitejších inovácií, ktoré redefinujúcich využitie tohto energetického zdroja.

Utesňovanie spodných stavieb pomocou hydro-aktívnej fólie AMPHIBIA.

AMPHIBIA 3000 GRIP 1.3 od spoločnosti ATRO predstavuje modernú hydroizolačnú technológiu, ktorá spája vysokú odolnosť,...

Dekarbonizácia individuálneho vykurovania domácností – Green Deal evolučne a nie revolučne

Ambiciózne plány EK narazili na ekonomické možnosti domácností v jednotlivých členských štátoch –...

Minimalistické dvere IDEA – technická precíznosť a čistota prevedenia

IDEA DOOR od spoločnosti JAP prináša do interiéru čistý minimalistický vzhľad vďaka bezrámovému riešeniu a precíznej...

Dom s výhľadom na údolie, Dlouhý Most (ČR)

Kontinuita riešenia od vonkajšieho obkladu až po kovania a kľučky.

Schell Vitus – osvedčené riešenie pre sprchy a umývadlá vo verejnom sektore s viac ako desaťročnou tradíciou

Nástenné nadomietkové armatúry Vitus sú mimoriadne vhodné pre rýchlu a efektívnu...

Kompozitné okná predstavujú súčasnosť a budúcnosť

Okenné profily z kompozitného materiálu RAU-FIPRO X od spoločnosti Rehau sú v porovnaní s tradičnými plastovými profilmi mnohonásobne...

Myotis - stoly 2025

Najnovší sortiment stolov pre zariadenie interiérov...

Priemyselné sklenené priečky Dorsis Digero: svetelné rozhranie pre moderné interiéry

Spojenie moderného dizajnu, funkčnosti a svetla do harmonického architektonického prvku.

Význam prirodzeného svetla pre moderné a flexibilné pracovné prostredie

Kancelárska budova Baumit v slovinskom Trzine prešla premenou na moderné a udržateľné pracovisko. Architekti kládli dôraz...

Konferencia Xella Dialóg predstaví novinky a trendy v stavebníctve

Mottom šiesteho ročníku on-line konferencie odborníkov Xella Dialóg je Efektívny návrh budov 2025+: zmeny a riešenia

TREN

Interiér v strešnej nadstavbe panelového domu v bratislavskom Ružinove.
Diela
Red 307.08.2018
35470+23
TREN
Autori: Ing. arch. Peter Kuklica, Ing. arch. Martin SmerekPlocha pozemku: 95m2 + terasaNávrh: 2017 - 2017Realizácia: 2017 - 2017Adresa: Trenčianska ulica , Bratislava, SlovenskoPublikované: 7. august 2018

Otvorený obytný priestor. Absencia klasických chodieb. Stĺpy ako súčasť zariadenia. Na ploche takmer sto metrov štvorcových vznikol funkčný a remeselne dotiahnutý byt. Príjemným bonusom je rozsiahla strešná terasa a výhľady z obytných miestností.

Byt na Trenčianskej ulici v Bratislave vznikol zlúčením dvoch susediacich bytových jednotiek v desaťročnej nadstavbe pôvodného panelového domu.

Foto: Lousy Auber
Foto: Lousy Auber

Nový interiér je navrhnutý pre mladý pár. Hlavným limitom pri zmene dispozície bol hlavne konštrukčný systém nadstavby s malým rozponom a oceľovými stĺpmi.

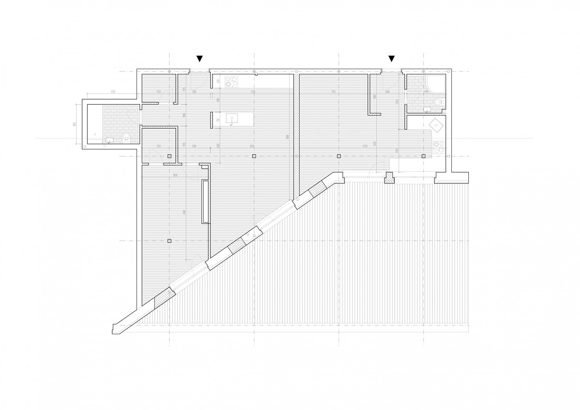
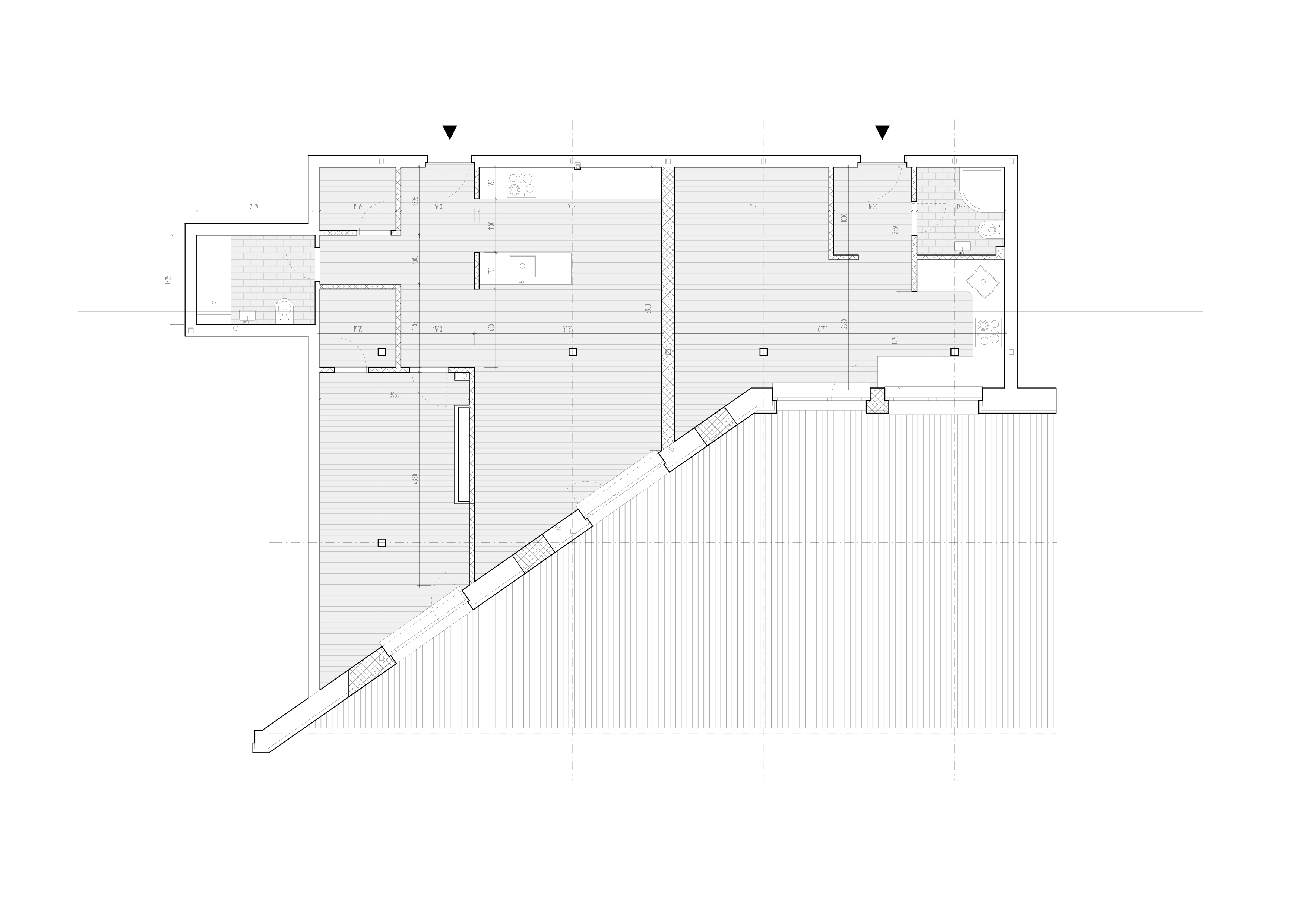
Pôdorys pôvodný stav
Pôdorys pôvodný stavAutor: Kuklica Smerek architekti

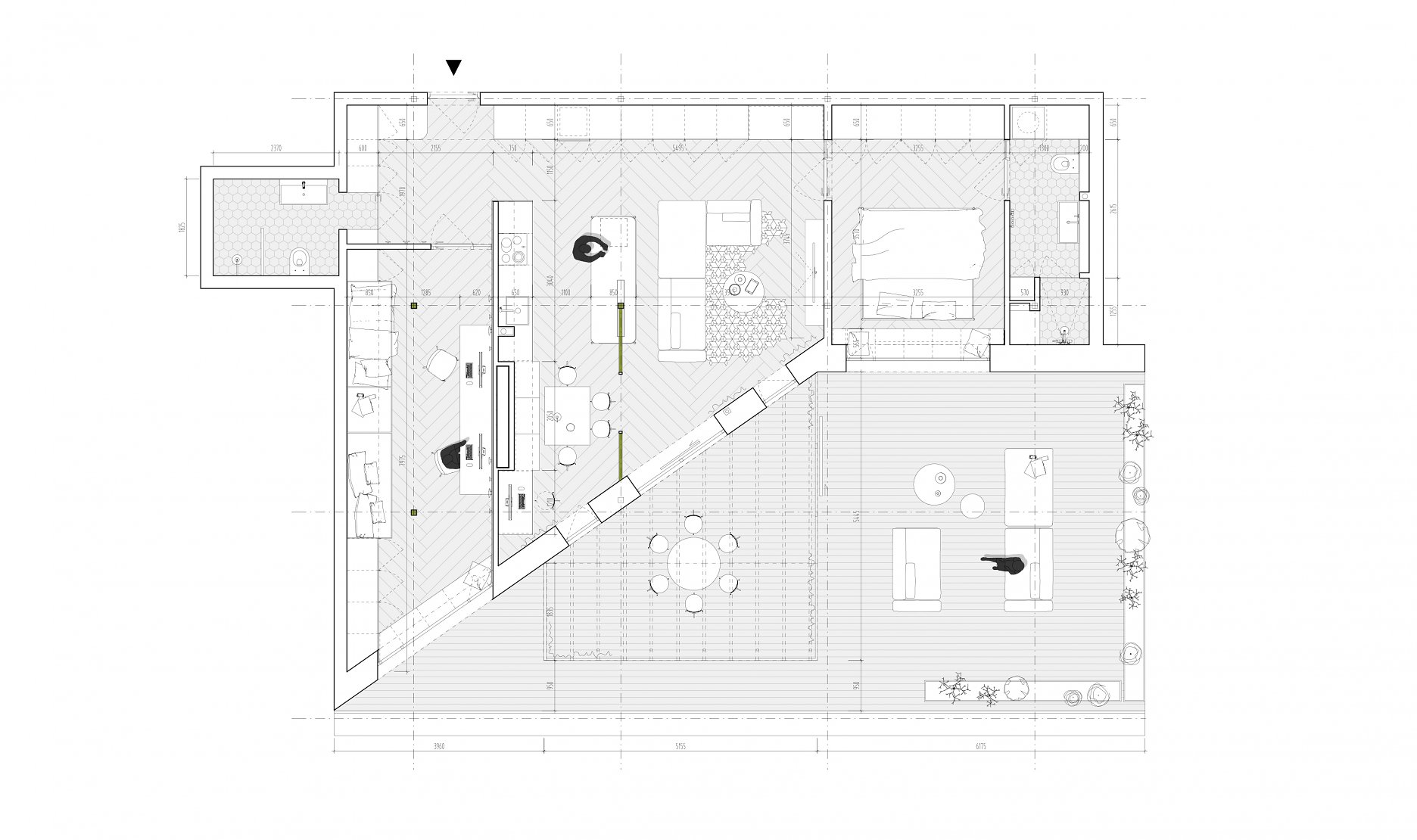
Pri pomerne hlbokej dispozícii sa architekti rozhodli obytnú zónu orientovať čo najviac ku oknám. Šatník a vstup je situovaný do tmavších častí bytu. Priestor lemuje súvislá drevená stena. 

Obývačka s kuchyňou a jedálňou sa presunula do strednej časti dispozície, čo prispelo k zjednoteniu priestoru bytu bez zbytočných chodieb.

Pôdorys navrhovaný stav
Pôdorys navrhovaný stavAutor: Kuklica Smerek architekti

Stĺpy, ktoré prechádzajú interiérom sú integrované v rámci stolárskych výrobkov alebo nábytkových stien. Na rozdiel od pôvodného riešenia nerušia prevádzku alebo estetiku priestoru.

Obytné miestnosti sú priamo prepojené s rozsiahlou súkromnou terasou.

Pozdĺž zadnej steny bytu prebieha nábytková stena, ktorá v sebe integruje sedenie vo vstupnej časti, spotrebiče v kuchyni, knižnicu a úložný priestor v obývačke, šatník v spálni a práčku so sušičkou v kúpeľni. Pohľadovú vrstvu tvorí prírodná dyha.

Kolmo na spomínanú nábytkovú stenu je orientovaný čierny drevený box, ktorý prechádza kuchyňou a jedálňou. Spája pracovný kút, jedálenskú niku s lavicou a kuchynskú pracovnú dosku.

Tretím kompozično-dispozičným prvkom v otvorenom priestore kuchyne a obývačky je kuchynský ostrov, ktorým preniká čierny stĺp a zavetrovací prvok. Biely ostrov je odsadený od zeme, stojí na subtílnych oceľových nohách.

Schéma priestorového konceptu
Schéma priestorového konceptuAutor: Kuklica Smerek architekti

Miestnosti vizuálne zjednocuje drevená podlaha “vyskladaná” z veľkoformátových parkiet kladených do rybinového vzoru.

Foto: Lousy Auber
Foto: Lousy Auber
Foto: Lousy Auber
Foto: Lousy Auber
Foto: Lousy Auber
Foto: Lousy Auber
Foto: Lousy Auber
Foto: Lousy Auber
Foto: Lousy Auber

Spálňa s výhľadom na Bratislavský hrad má po obvode okna zabudovanú drevenú knižnicu.

Foto: Lousy Auber

Kúpeľňa je zjednotená bielym keramickým obkladom a dlažbou. Nad umývadlom je do steny v nike vložená drevená skrinka s podsvieteným zrkadlom.

Foto: Lousy Auber
Foto: Lousy Auber
Foto: Lousy Auber
Foto: Lousy Auber
Foto: Lousy Auber
Foto: Lousy Auber
Foto: Lousy Auber
Foto: Lousy Auber
Foto: Lousy Auber
Foto: Lousy Auber
Foto: Lousy Auber

Poloha diela

Ing. arch. Peter Kuklica
Ing. arch. Martin Smerek

Súvisiace články

Vložené
6. august 2018
0
3547
Hlavný obsahHlavný obsah
Čakajte prosím