Advertorial

Pozvánka na 2. ročník stavebného veľtrhu BigMarket na Slovensku

Na podujatí sa predstaví až 37 vystavovateľov - popredných dodávateľov stavebných materiálov a inovácií s prezentáciou...

Hotel Hirschen Spa House, Rakúsko

Novotvar v prostredí alpskej obce.

Vytvorte si kúpeľňu snov: dizajnové riešenie od značky hansgrohe

Hansgrohe - prémiová značka kúpeľňových riešení, ponúka nadčasový dizajn, technickú precíznosť a udržateľné inovácie...

Okná Internorm za minuloročné ceny + hliníkový kryt zdarma!

Využite špeciálnu akciu Internorm: okná za minuloročné ceny a hliníkový kryt úplne zadarmo. Ponuka je časovo obmedzená!

Moderné plynové technológie: Efektivita a inovácie pre 21. storočie

Sumarizácia najdôležitejších inovácií, ktoré redefinujúcich využitie tohto energetického zdroja.

Utesňovanie spodných stavieb pomocou hydro-aktívnej fólie AMPHIBIA.

AMPHIBIA 3000 GRIP 1.3 od spoločnosti ATRO predstavuje modernú hydroizolačnú technológiu, ktorá spája vysokú odolnosť,...

Dekarbonizácia individuálneho vykurovania domácností – Green Deal evolučne a nie revolučne

Ambiciózne plány EK narazili na ekonomické možnosti domácností v jednotlivých členských štátoch –...

Minimalistické dvere IDEA – technická precíznosť a čistota prevedenia

IDEA DOOR od spoločnosti JAP prináša do interiéru čistý minimalistický vzhľad vďaka bezrámovému riešeniu a precíznej...

Dom s výhľadom na údolie, Dlouhý Most (ČR)

Kontinuita riešenia od vonkajšieho obkladu až po kovania a kľučky.

Schell Vitus – osvedčené riešenie pre sprchy a umývadlá vo verejnom sektore s viac ako desaťročnou tradíciou

Nástenné nadomietkové armatúry Vitus sú mimoriadne vhodné pre rýchlu a efektívnu...

Kompozitné okná predstavujú súčasnosť a budúcnosť

Okenné profily z kompozitného materiálu RAU-FIPRO X od spoločnosti Rehau sú v porovnaní s tradičnými plastovými profilmi mnohonásobne...

Myotis - stoly 2025

Najnovší sortiment stolov pre zariadenie interiérov...

Priemyselné sklenené priečky Dorsis Digero: svetelné rozhranie pre moderné interiéry

Spojenie moderného dizajnu, funkčnosti a svetla do harmonického architektonického prvku.

Význam prirodzeného svetla pre moderné a flexibilné pracovné prostredie

Kancelárska budova Baumit v slovinskom Trzine prešla premenou na moderné a udržateľné pracovisko. Architekti kládli dôraz...

Konferencia Xella Dialóg predstaví novinky a trendy v stavebníctve

Mottom šiesteho ročníku on-line konferencie odborníkov Xella Dialóg je Efektívny návrh budov 2025+: zmeny a riešenia

Loft Mlynica, Bratislava

Ako sa býva v Novej Mlynici?
Diela
Red 417.10.2018
97020+87
Loft Mlynica, Bratislava
Autori: Ing. arch. Mgr. art. Juraj Hubinský, Ing. arch. Peter Kuklica, Ing. arch. Martin SmerekPodlažná plocha: 73 m2Návrh: 2017 - 2018Realizácia: 2018 - 2018Adresa: Turbínová 13, Bratislava, SlovenskoPublikované: 17. október 2018

Loft v obnovenej Mlynici. Železobetónový skelet priemyselného objektu na Turbínovej ulici sa po náročnej konverzii zmenil na moderný na administratívny, kultúrny a obytný súbor. Projekt ateliéru GutGut reagoval na nový dopyt po flexibilnom pracovnom prostredí, originálnych eventových priestoroch a po loftových bytoch. V zahraničí osvedčený mix funkcií a snaha o vytvorenie komunitného prostredia je u nás relatívnou novinkou.

Bývanie v takomto prostredí nie je pre každého. Architekti sa rozhodli svoj návrh postaviť na dialógu starého a nového. Pôvodné povrchy v interiéri ostávajú odkryté. Surové, elementárne a pravdivé vo svojej materiálovej podstate sú aj nové prvky.

Do loftových bytov situovaných na najvyších podlažiach sa vstupuje zo spoločnej chodby na piatom poschodí. Nosné, medzibytové steny boli budované mimo modulový systém stĺpov. Ten sa tak stal svojim rytmom súčasťou priestorových riešení jednotlivých bytových jednotiek. Ústredným prvkom priestorového riešenia je schodisko, ktoré sprístupňuje vložené obytné podlažia. Každý byt má vlastnú terasu.

Svoj projekt loftu zasadeného v zložitom kontexte Novej Mlynice bližšie predstavia architekti Juraj Hubinský, Peter Kuklica a Martin Smerek:

Trojpodlažný loft v industriálnom objekte Mlynica je neobvyklý priestor na bývanie a trávenie spoločenského života. Samotný objekt Mlynice, nachádzajúcej sa v odľahlejšom bratislavskom brownfielde, nedávno prešiel rozsiahlou konverziou a v súčasnosti poskytuje multifunkčné priestory s minoritnou obytnou náplňou.

Foto: Lousy Auber
Foto: Lousy Auber
Foto: Lousy Auber

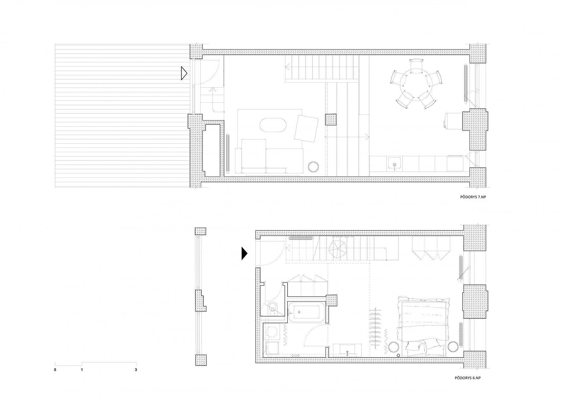
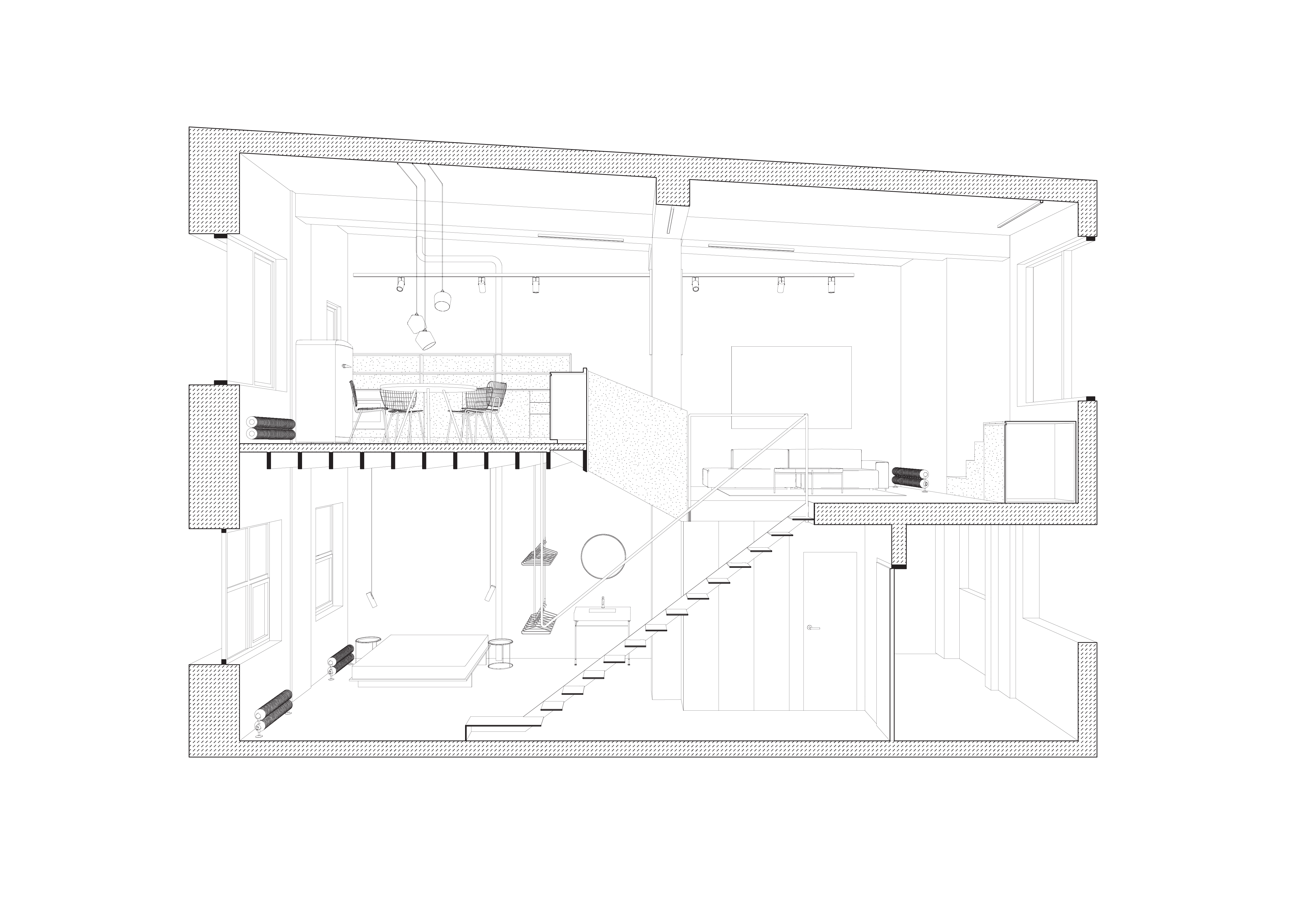
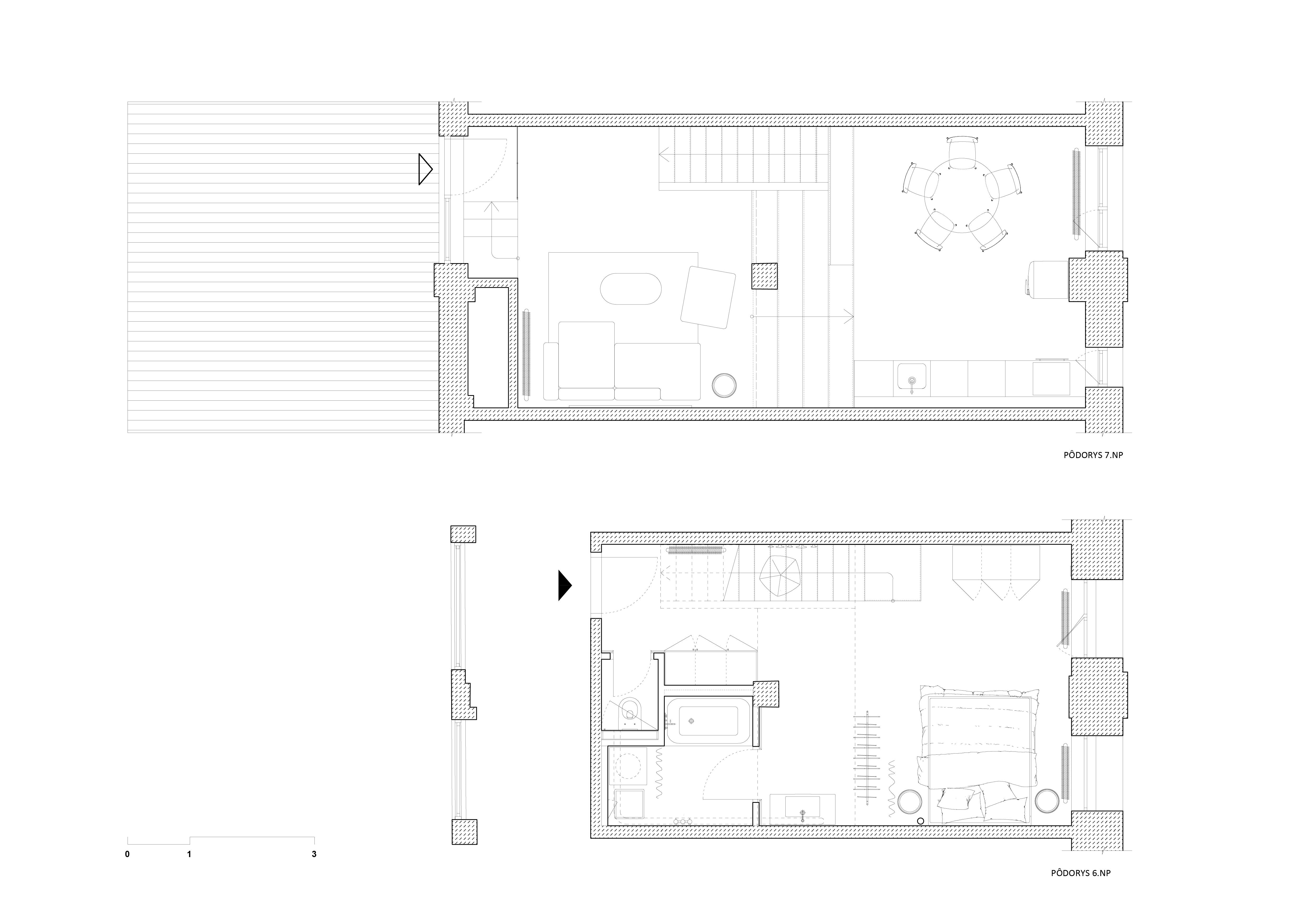
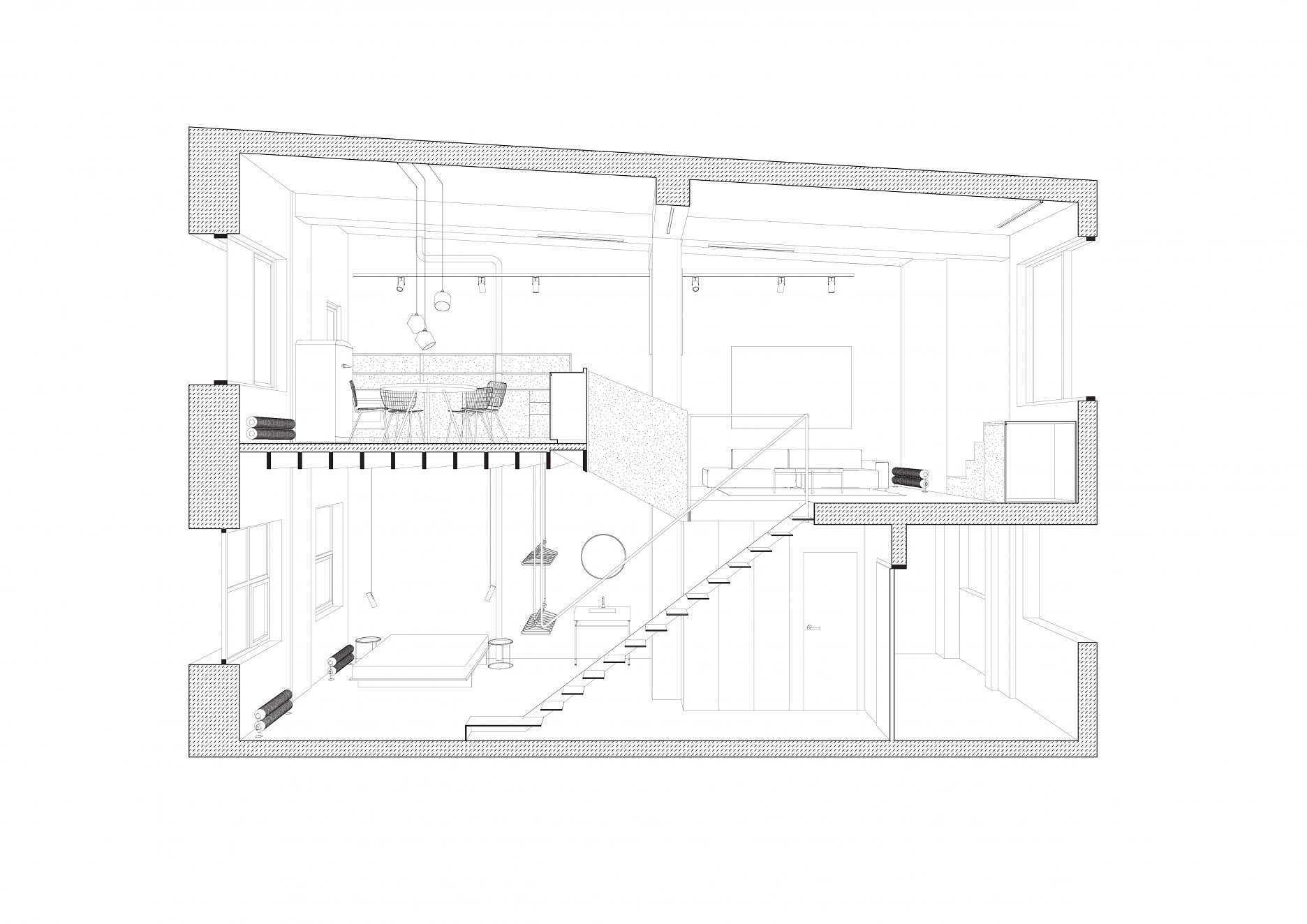
Dispozícia loftu je radená vertikálne. Vstupuje sa do spodnej úrovne loftu, kde sa nachádza šatník, kúpeľňa, WC a spálňa. Schodiskom je dostupná horná úroveň loftu s obývačkou prepojená pobytovými schodami s jedáľňou a kuchyňou. Z obývačky je tiež dostupná terasa s výhľadom na Karpaty.

Stavebné surové materiály použité v lofte kontrastujú s vloženými stolárskymi a zámočníckymi prvkami a priznanými rozvodmi na povrchu stien. Obálku loftu tak tvorí neomietnutý liaty betón, železobetónový strop a betónová podlaha s epoxidovým lakom. Na spodnej úrovni loftu sa nachádza zabudovaný šatník, ktorý v sebe integruje aj dvere do hygienických buniek, ktoré sú spolu s dverami šatníka zjednotené do celistvej celozrkadlovej plochy, ktorá opticky zväčšuje priestor. Umývadlo na ocelových nožickách je umiestnené mimo zrkadlový box a od postele ho oddeľuje zo stropu podvesená čierna oceľová vešiaková tyč a tiež textilný záves na celú výšku miestnosti, ktorým je možné celkom oddeliť spálňu od zvyšku loftu. Vložené čierne schodisko je zvarené z oceľových plechov. Schodisko vedúce zo spodného podlažia od vstupu a spálňovej časti do obývacej miestnosti, spolu s tenkým zábradlím pôsobí subtílnym dojmom. Odľahčený výraz mu dodávajú aj vynechané podstupnice. Výškovo zalomené horné podlažie je prepojené pobytovými schodmi z bielenej brezovej preglejky. Tie kontrastujú s tmavým kuchynským boxom z čiernej morenej preglejky a tmavým jedálenským stolom a stoličkami. Celočalúnená sedacia súprava v obývacej časti na hornom podlaží je potiahnutá sivou látkou.

Osvetlenie loftu zabezpečujú výrazné zvesené lustre nad posteľou a jedálenským stolom, v kombinácii s prisadeným technickým líniovým a reflektorovým osvetlením.

Interiér loftu bol osviežujúcim solitérnym zadaním s dôrazom na surovú estetiku odrzkadlujúcu charakter industriálnej lokality, objektu a osobnosti klientky.

Pôdorysy
PôdorysyAutor: Kuklica x Smerek, Juraj Hubinský
Rezopohľad
RezopohľadAutor: Kuklica x Smerek, Juraj Hubinský
Foto: Lousy Auber
Foto: Lousy Auber
Foto: Lousy Auber
Foto: Lousy Auber
Foto: Lousy Auber
Foto: Lousy Auber
Foto: Lousy Auber
Foto: Lousy Auber
Foto: Lousy Auber
Foto: Lousy Auber
Foto: Lousy Auber
Foto: Lousy Auber
Foto: Lousy Auber
Foto: Lousy Auber
Foto: Lousy Auber
Foto: Lousy Auber
Foto: Lousy Auber
Foto: Lousy Auber
Foto: Lousy Auber
Foto: Lousy Auber

Podklady: Kuklica x Smerek, Juraj Hubinský
Realizácia interiéru: WOOD & INTERIERS

Poloha diela

Ing. arch. Mgr. art. Juraj Hubinský
Ing. arch. Peter Kuklica
Ing. arch. Martin Smerek

Súvisiace články

Vložené
1. október 2018
0
9702
Hlavný obsahHlavný obsah
Čakajte prosím