Hansgrohe - prémiová značka kúpeľňových riešení, ponúka nadčasový dizajn, technickú precíznosť a udržateľné inovácie...
Využite špeciálnu akciu Internorm: okná za minuloročné ceny a hliníkový kryt úplne zadarmo. Ponuka je časovo obmedzená!
Na podujatí sa predstaví až 37 vystavovateľov - popredných dodávateľov stavebných materiálov a inovácií s prezentáciou...
Sumarizácia najdôležitejších inovácií, ktoré redefinujúcich využitie tohto energetického zdroja.
AMPHIBIA 3000 GRIP 1.3 od spoločnosti ATRO predstavuje modernú hydroizolačnú technológiu, ktorá spája vysokú odolnosť,...
Ambiciózne plány EK narazili na ekonomické možnosti domácností v jednotlivých členských štátoch –...
IDEA DOOR od spoločnosti JAP prináša do interiéru čistý minimalistický vzhľad vďaka bezrámovému riešeniu a precíznej...
Kontinuita riešenia od vonkajšieho obkladu až po kovania a kľučky.
Nástenné nadomietkové armatúry Vitus sú mimoriadne vhodné pre rýchlu a efektívnu...
Okenné profily z kompozitného materiálu RAU-FIPRO X od spoločnosti Rehau sú v porovnaní s tradičnými plastovými profilmi mnohonásobne...
Najnovší sortiment stolov pre zariadenie interiérov...
Spojenie moderného dizajnu, funkčnosti a svetla do harmonického architektonického prvku.
Kancelárska budova Baumit v slovinskom Trzine prešla premenou na moderné a udržateľné pracovisko. Architekti kládli dôraz...
Mottom šiesteho ročníku on-line konferencie odborníkov Xella Dialóg je Efektívny návrh budov 2025+: zmeny a riešenia
Robot WLTR predstavuje moderný prístup k murovaným konštrukciám. Vďaka automatizácii dokáže rýchlo, presne a bezpečne realizovať...

Revitalizácia bývalého Unidomu na Námestí sv. Anny v Trenčíne vzišla z návrhu, ktorý zvíťazil vo vyzvanej architektonickej súťaži.
Autori, zoskupení okolo kolektívu Hubinský ateliér navrhli komplexnú prestavbu modernistického objektu.
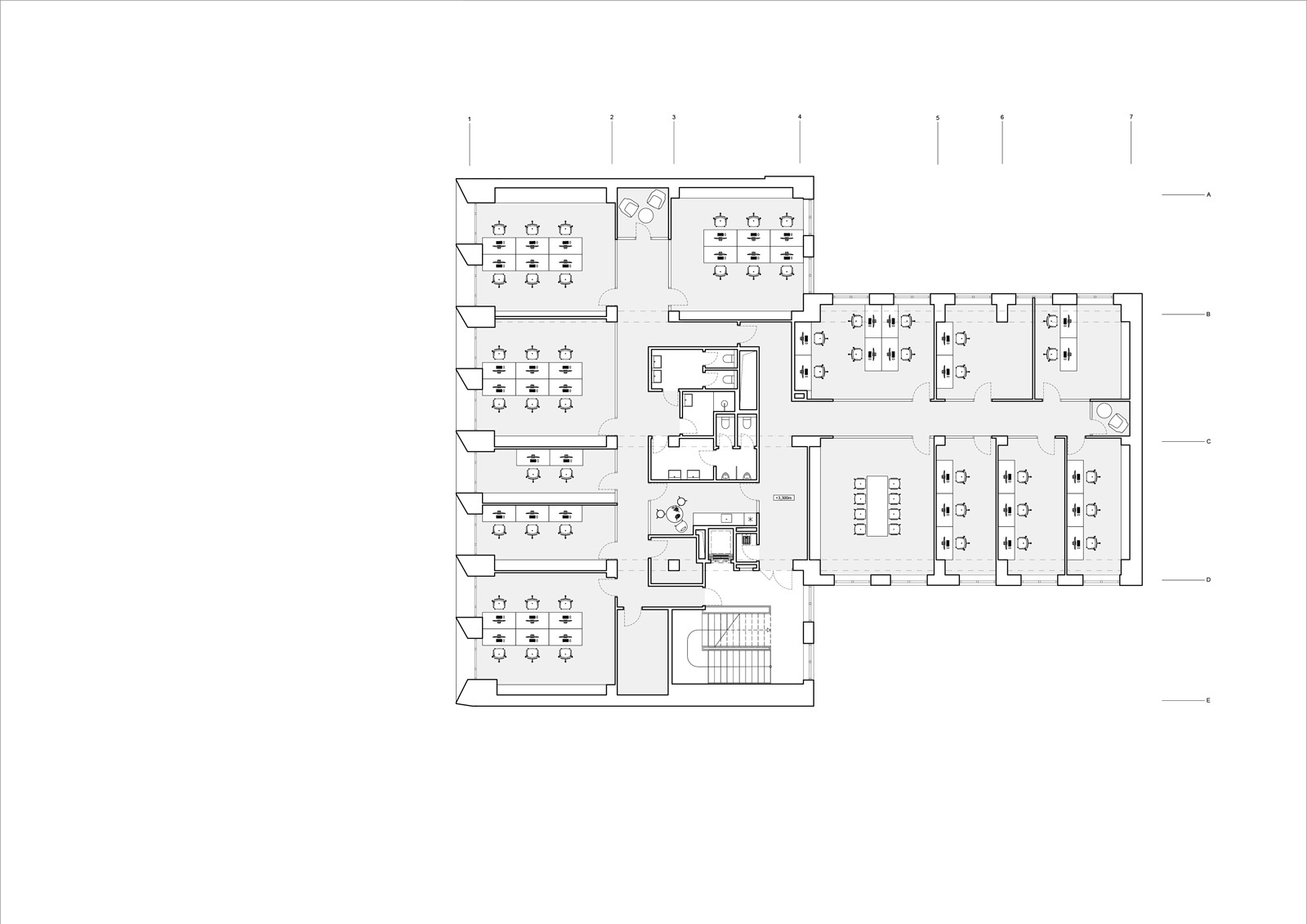
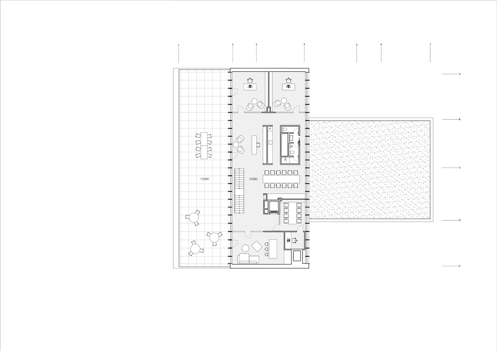
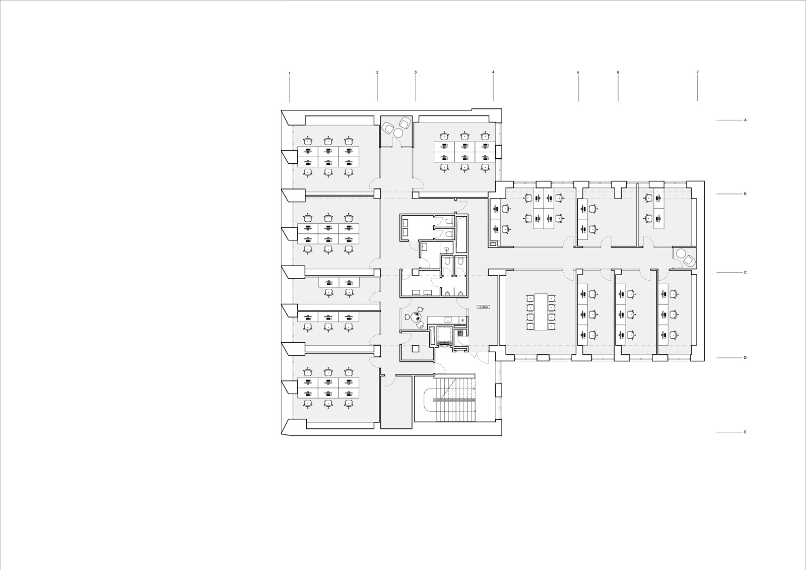
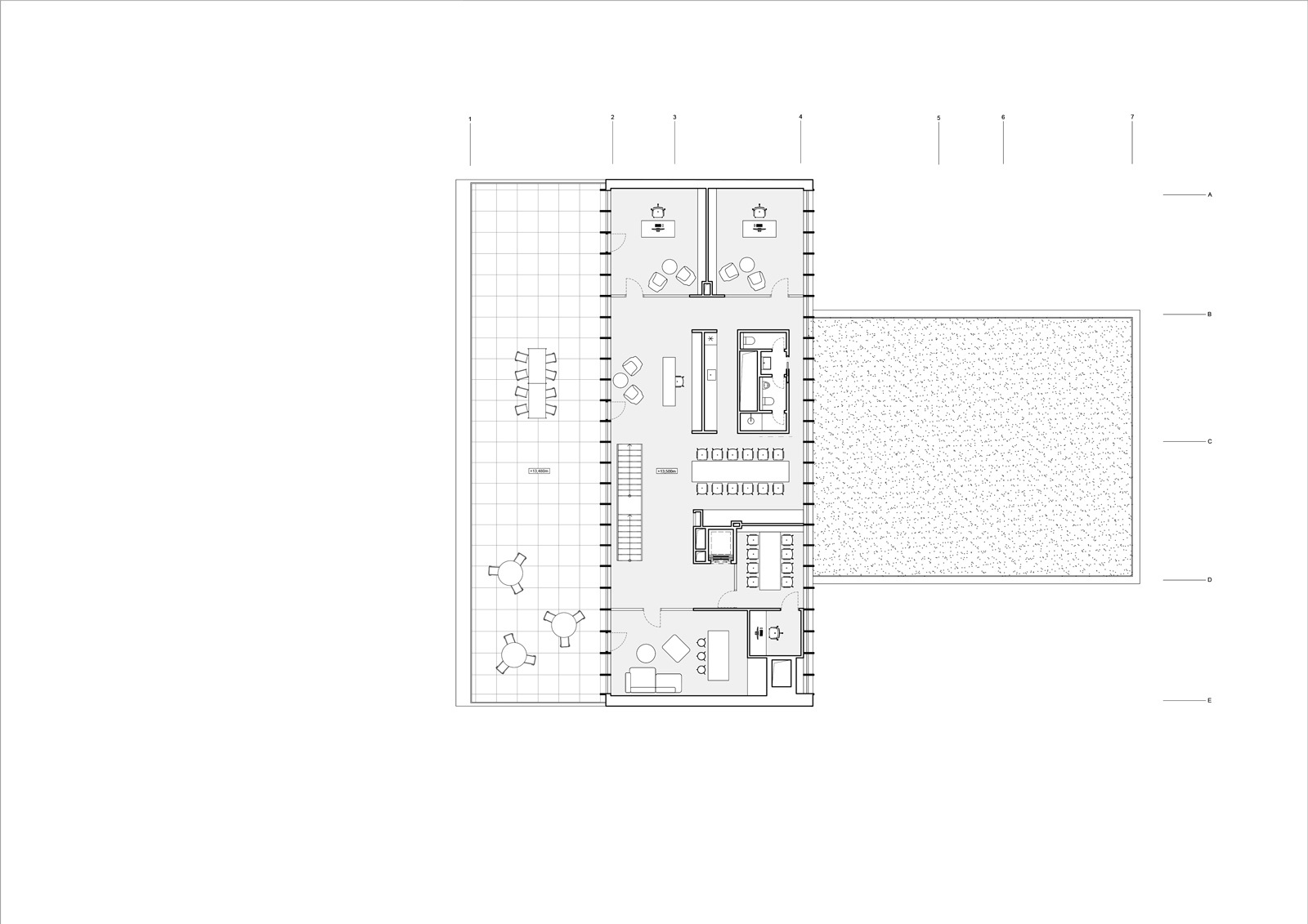
Odstránenie všetkých deliacich konštrukcií až na úroveň samotného železobetónového skeletu otvorilo flexibilný rámec pre nové využitie. Projekt dotvárajú súčasné vrstvy v podobe nadstavby ustúpeného najvyššieho podlažia a novej dynamickej fasády s kamenným obkladom.
Realizáciu bližšie predstavia autori:
Revitalizácia verejných objektov z obdobia moderny v historických centrách v sebe často prináša mnoho otáznikov. Objekty sú mnohokrát osadené mimo uličnú čiaru, bez kontextu fasád k okolitým historickým objektom, či výškovo nesúrodé. Napriek tomu majú mnohé svoje kvality, oceniteľné aj v dnešnej dobe. Použitím nových statických, modulových schém sa docielila variabilnosť a flexibilita vnútorných priestorov, čo otvára potenciál pre ich revitalizáciu na moderné budovy.
Zachovanie pôvodného skeletu a jeho transformácia do nového vzhľadu je odkazom na udržateľnosť a dlhodobú životnosť stavby
V návrhu revitalizácie využívame variabilnosť pôvodného skeletu a nadväzujeme naň prísnym rastrom fasády, ktorá dovoľuje využívať vnútorné priestory veľmi flexibilne podľa potrieb aktuálneho nájomcu.
Na pôvodne štvropodlažný objekt osádzame piate, ustúpené podlažie, ktoré získava veľkorysú terasu s výhľadom na revitalizovaný park a kaplnku. Oceľová konštrukcia a presklená fasáda mu dodáva ľahkosť oproti spodným podlažiam s bodovými otvormi. Osadenie objektu v minulosti mimo pôvodnú uličnú čiaru susedných historických objektov malo za následok vytvorenie predpolia domu, ktoré transformujeme na piazzetu so stromami a rozširujeme tak verejný priestor až po fasádu objektu. Tu sa zároveň nachádza hlavný vstup s lávkou. Átrium vo vnútrobloku zdvíhame na úroveň zadného vstupu, aby sme sa zbavili pôvodných schodov a zlepšili bezbariérovosť objektu. Takisto tu dopĺňame zeleň a mestotvornú dlažbu zo žulových kociek. Všetky spomenuté exteriérové plochy využívame na stretávacie a odpočinkové priestory pre návštevníkov a nájomníkov objektu v maximálnej možnej miere.
Dom reflektuje svoje okolie ako zrkadlo a prerozprávane simuluje správanie fasád okolitých domov. Plnšia fasáda domu je odkazom na historické mestské domy v okolí, charakteristické svojím vizuálom murovaných domov s okennými otvormi. Je pojednaná exteriérovým kamenným obkladom z vápenca. Na zabezpečenie prevetrávania podzemnej garáže boli do kameňa vodným lúčom vyrezané otvory, čo dodáva soklu domu pozoruhodný detail. Vnútorné fasády objektu zo strany dvora sú vyomietané hrubozrnnou omietkou a skosené ostenia okien nadväzujú na čelnú modeláciu.
Samotný dom využíva variabilitu pôvodného skeletu, ale skelet samotný sa stáva iba čisto nosným prvkom, ktorý sa implementuje do nového vzhľadu objektu, tak, aby nenarúšal charakter mestského domu. Objekt získava postupom času obľubu u domáceho obyvateľstva a stáva sa rozpoznateľným znakom lokality.
Fotografie: Matej Hakár
Podklady: Hubinský atelier