Advertorial

Pozvánka na 2. ročník stavebného veľtrhu BigMarket na Slovensku

Na podujatí sa predstaví až 37 vystavovateľov - popredných dodávateľov stavebných materiálov a inovácií s prezentáciou...

Hotel Hirschen Spa House, Rakúsko

Novotvar v prostredí alpskej obce.

Vytvorte si kúpeľňu snov: dizajnové riešenie od značky hansgrohe

Hansgrohe - prémiová značka kúpeľňových riešení, ponúka nadčasový dizajn, technickú precíznosť a udržateľné inovácie...

Okná Internorm za minuloročné ceny + hliníkový kryt zdarma!

Využite špeciálnu akciu Internorm: okná za minuloročné ceny a hliníkový kryt úplne zadarmo. Ponuka je časovo obmedzená!

Moderné plynové technológie: Efektivita a inovácie pre 21. storočie

Sumarizácia najdôležitejších inovácií, ktoré redefinujúcich využitie tohto energetického zdroja.

Utesňovanie spodných stavieb pomocou hydro-aktívnej fólie AMPHIBIA.

AMPHIBIA 3000 GRIP 1.3 od spoločnosti ATRO predstavuje modernú hydroizolačnú technológiu, ktorá spája vysokú odolnosť,...

Dekarbonizácia individuálneho vykurovania domácností – Green Deal evolučne a nie revolučne

Ambiciózne plány EK narazili na ekonomické možnosti domácností v jednotlivých členských štátoch –...

Minimalistické dvere IDEA – technická precíznosť a čistota prevedenia

IDEA DOOR od spoločnosti JAP prináša do interiéru čistý minimalistický vzhľad vďaka bezrámovému riešeniu a precíznej...

Dom s výhľadom na údolie, Dlouhý Most (ČR)

Kontinuita riešenia od vonkajšieho obkladu až po kovania a kľučky.

Schell Vitus – osvedčené riešenie pre sprchy a umývadlá vo verejnom sektore s viac ako desaťročnou tradíciou

Nástenné nadomietkové armatúry Vitus sú mimoriadne vhodné pre rýchlu a efektívnu...

Kompozitné okná predstavujú súčasnosť a budúcnosť

Okenné profily z kompozitného materiálu RAU-FIPRO X od spoločnosti Rehau sú v porovnaní s tradičnými plastovými profilmi mnohonásobne...

Myotis - stoly 2025

Najnovší sortiment stolov pre zariadenie interiérov...

Priemyselné sklenené priečky Dorsis Digero: svetelné rozhranie pre moderné interiéry

Spojenie moderného dizajnu, funkčnosti a svetla do harmonického architektonického prvku.

Význam prirodzeného svetla pre moderné a flexibilné pracovné prostredie

Kancelárska budova Baumit v slovinskom Trzine prešla premenou na moderné a udržateľné pracovisko. Architekti kládli dôraz...

Konferencia Xella Dialóg predstaví novinky a trendy v stavebníctve

Mottom šiesteho ročníku on-line konferencie odborníkov Xella Dialóg je Efektívny návrh budov 2025+: zmeny a riešenia

SLC - kancelárie v budove Silocentrály z roku 1902

Dočasnosť kancelárií verzus hodnota pôvodného historického priestoru.
Diela
Red 409.11.2021
21980+39
SLC - kancelárie v budove Silocentrály z roku 1902
Autori: Ing. arch. Peter Kuklica, Ing. arch. Martin Smerek, Ing. arch. Mgr. art. Juraj HubinskýSpolupráca: Ing. arch. Katarína SivákováInvestor: BK, a.s.Plocha pozemku: 265 m2Obostavaný objem: 795 m3Návrh: 2020 - 2020Realizácia: 2020 - 2021Adresa: Svätoplukova 2A, Bratislava, SlovenskoPublikované: 9. november 2021

Ateliér  Kuklica x Smerek a Juraj Hubinský majú za posledné roky na konte viacero vydarených kancelárskych priestorov (viď. súvisiace články na konci textu). Kancelárie spoločnosti BK, ktoré dnes predstavíme, navrhovali do špecifických priestorov historickej Silocentrály. Jeden z dvojice zachovaných objektov v rámci revitalizovaného areálu Cvernovky prešiel náročnou rekonštrukciou pod vedením ateliéru BOUDA MASÁR architekti. 

Autori vkladajú do holopriestoru ústredný sklenený box so zasadacími miestnosťami. Priehľadný prvok delí dispozíciu na menšie pracovné zóny, súčasne však necháva vyniknúť otvorený priestor pôvodnej technickej stavby. Subtílne tiahlové stĺpy a originálne členenie okenných výplní vyznejú na pozadí redukovanej materiálovej a farebnej palety. 

Foto: Matej Hakár
Foto: Matej Hakár

 

Realizáciu bližšie predstavia autori:

Dočasnosť kancelárií verzus hodnota pôvodného historického priestoru.

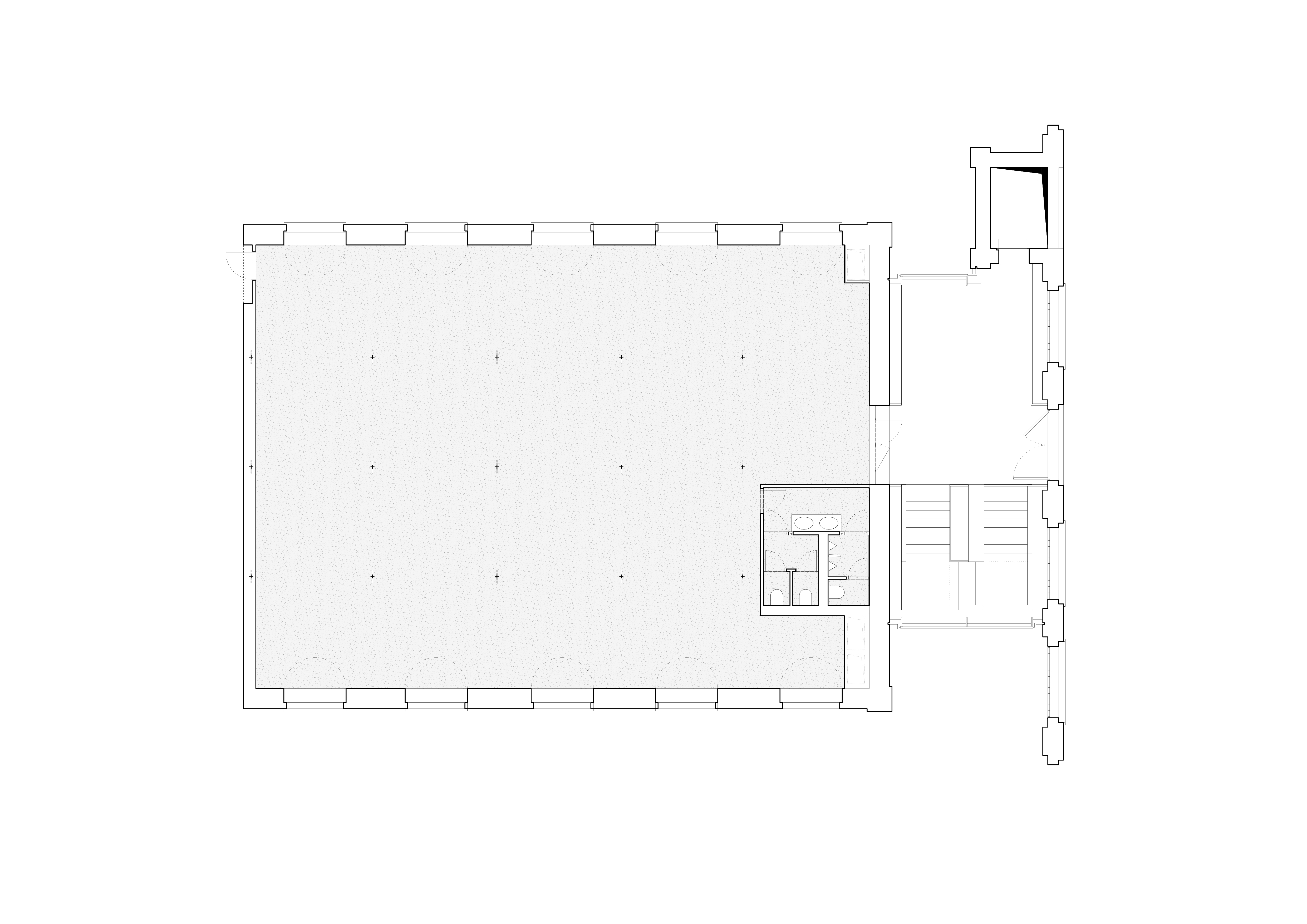
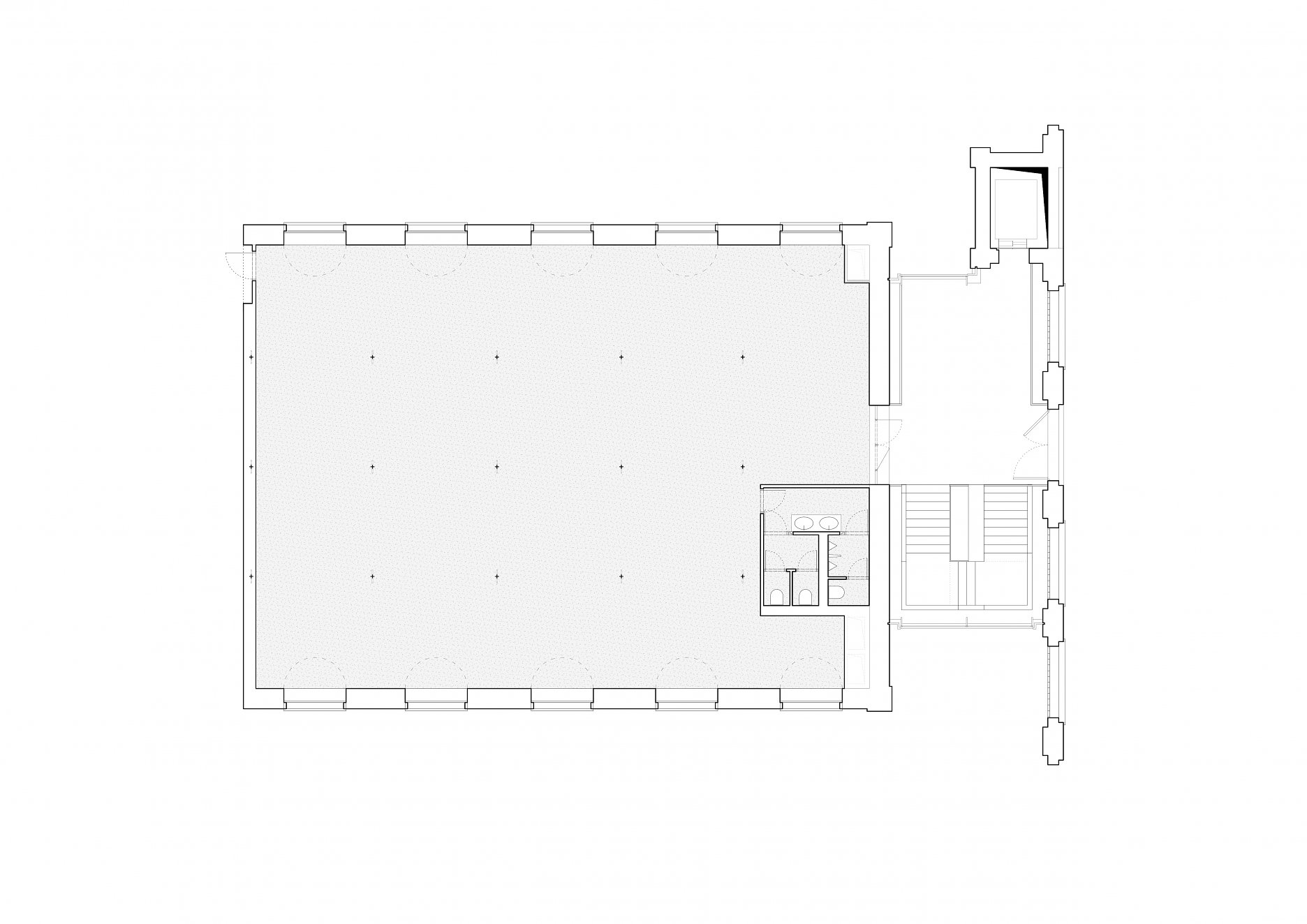
Kancelárie spoločnosti BK, sa nachádzajú na poslednom podlaží novozrekonštruovanej historickej budovy Silocentrály z roku 1902.  Do projektu sme vstupovali vo fáze holopriestoru, kedy z pôvodných charakteristických prvkov historického objektu ostali v interiéri iba polkruhové okná a subtílne tiahlové stĺpy podopierajúce oblúkovú strechu. Zvyšok priestoru bol doplnený o klasickú developerskú schému zdvojených podláh, bielych omietok a pevne osadeného hygienického boxu, či zníženého sadrokartónového podhľadu.

Naše uvažovanie sa presunulo k základným otázkam o tvorbe interiérov a ich dočasnosti. Kládli sme si otázky o nutnosti zásahov do už jestvujúcich, len nedávno zrealizovaných stavebných prvkov, omietok, sadrokartónových stropov, či pridávania čisto vizuálnych riešení zakrývajúcich technológie, z čisto estetických dôvodov.

Rozhodli sme sa návrh oprostiť o akúkoľvek dekoráciu a riešiť len najnutnejšie funkčné prvky, potrebné pre pobyt v priestore s využitím všetkých predošlých nánosov stavebnej činnosti. Neplytvať materiálom, ľudskou prácou a energiou. Zamerali sme sa na precízne riešenie každého funkčného a technického prvku, ktorý vkladáme. Vyzdvihli sme v priestore hlavne nemenné kvality stavby, okná a tiahlové stĺpy. Nami vkladané prvky ponechávame ako dočasnú kulisu súčasnej funkcie. Priestor sa stáva akýmsi whiteboxom pre variabilné využitie, ktorý môže byť neskôr bytom, galériou, kanceláriou... a to bez nutnosti výrazných stavebných zásahov.

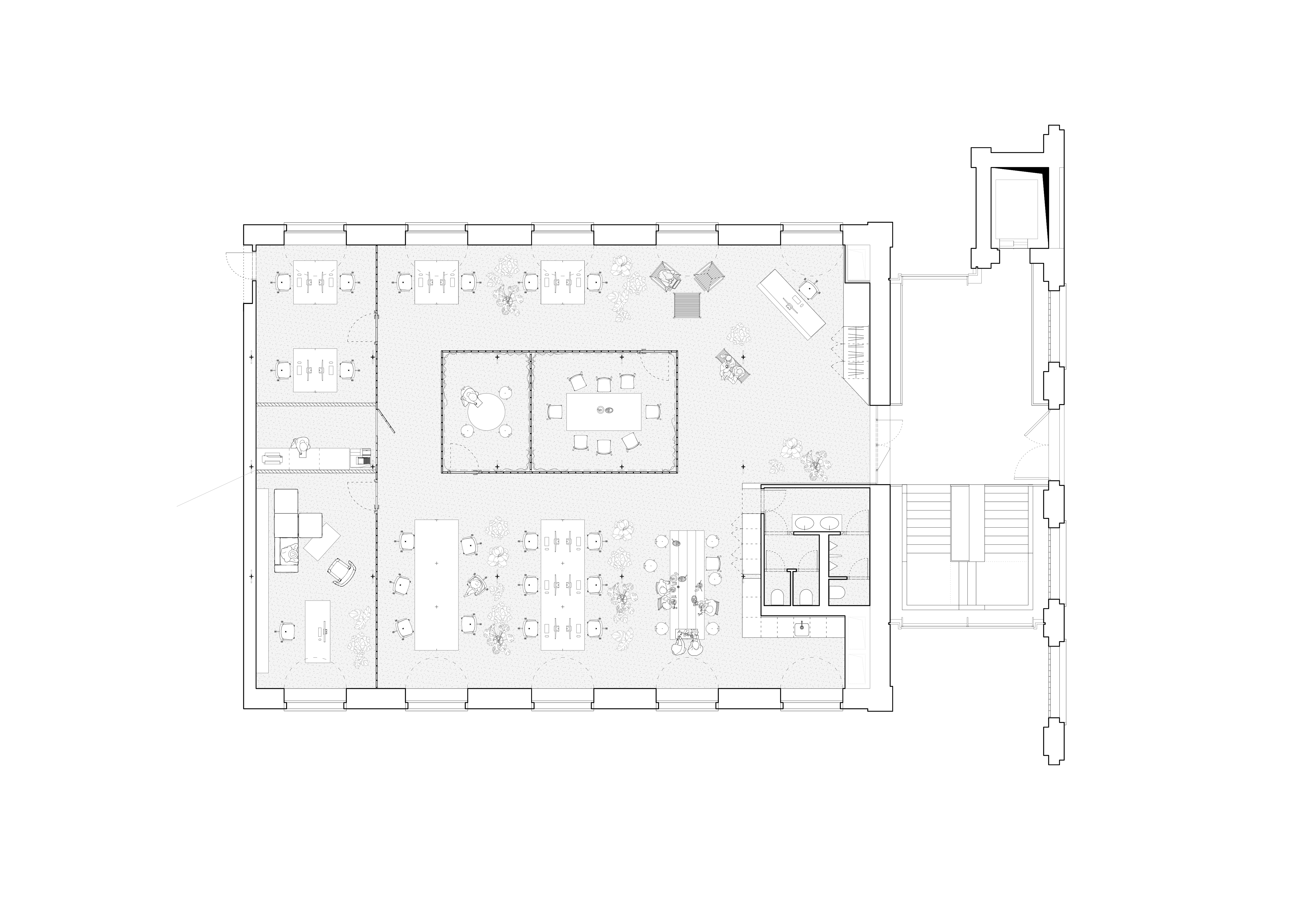
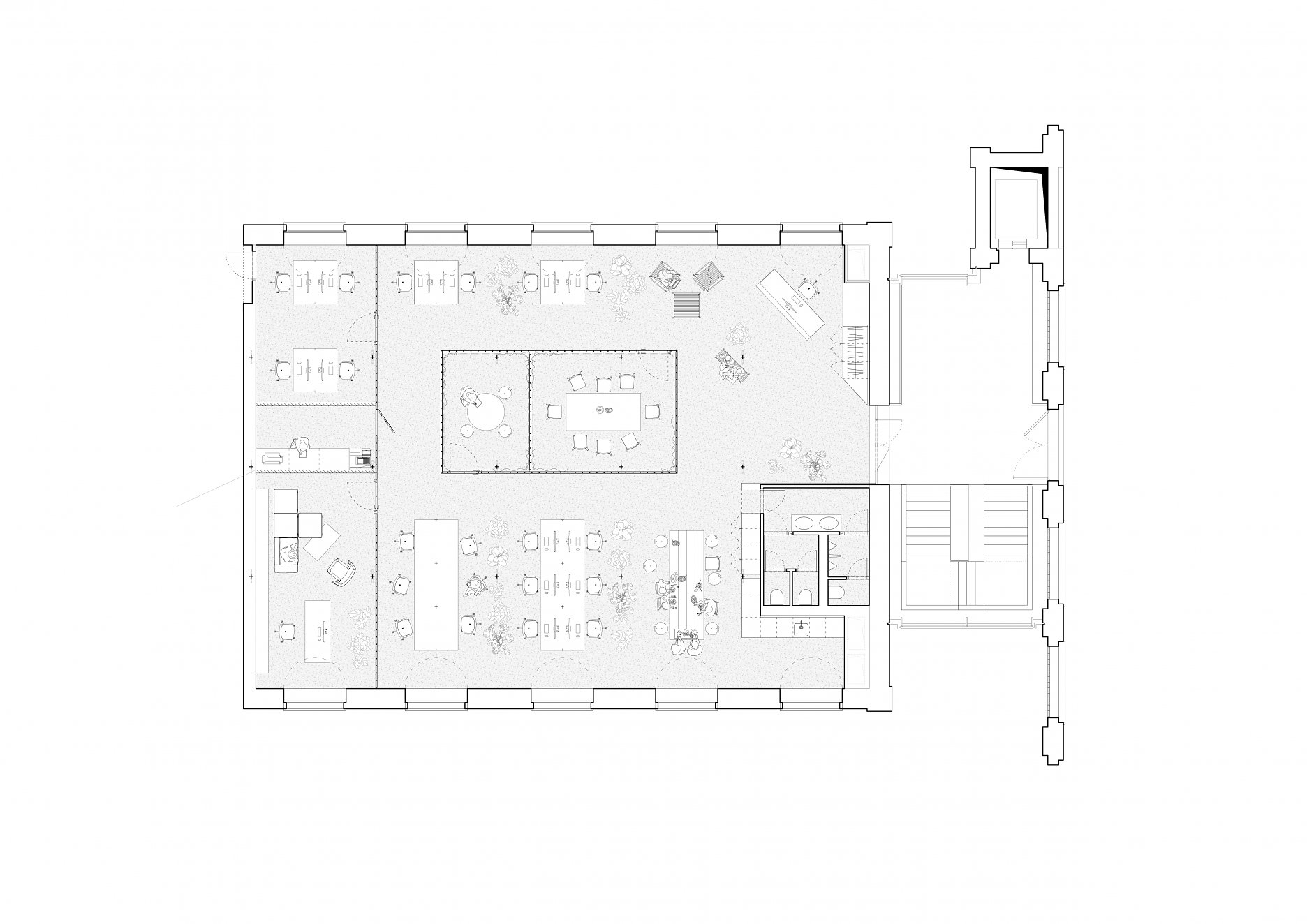
Dispozícia je definovaná ústredným skleneným boxom a priebežnou sklenou stenou. Box so zasadacími miestnosťami delí priestor na intímnejšie pracovné a spoločenské zóny, pričom svojou priehľadnosťou priestor nerozdeľuje. Okolo boxu sa odohráva život v kancelárii. Okrem pracovných stolov je charakteristickým prvkom malé loungové posedenie pri recepcii, či spoločný piknikový stôl s vinotékou a kuchynkou na spoločné stretnutia členov firmy.

Každý materiál bol volený s ohľadom na jeho funkciu v priestore. Sklo tvorí akustickú bariéru no zároveň prepúšťa svetlo, kaučuková podlaha ešte viac zosvetľuje priestor bez toho aby sa komplikovala údržba, nerez a pozinkovaný kov podtrhuje technické zameranie firmy, plexisklo na stolárskych výrobkoch vytvára ďalšiu hĺbku priestoru a drevené stoly sú najpríjemnejšie na dotyk a prácu. 

Výsledný interiér je zdanlivo jednoduchý, avšak s množstvom obhájiteľných interpretácií a presahom do mnohých odvetví mimo architektúry.

Axonometria
Axonometria
Pôdorys - východiskový stav
Pôdorys - východiskový stav
Pôdorys - nový stav
Pôdorys - nový stav
Rez
Rez
Rez
Rez
Foto: Matej Hakár
Foto: Matej Hakár
Foto: Matej Hakár
Foto: Matej Hakár
Foto: Matej Hakár
Foto: Matej Hakár
Foto: Matej Hakár
Foto: Matej Hakár
Foto: Matej Hakár
Foto: Matej Hakár
Foto: Matej Hakár
Foto: Matej Hakár
Foto: Matej Hakár
Foto: Matej Hakár
Foto: Matej Hakár
Foto: Matej Hakár
Foto: Matej Hakár
Foto: Matej Hakár
Foto: Matej Hakár
Foto: Matej Hakár
Foto: Matej Hakár
Foto: Matej Hakár

Poloha diela

Ing. arch. Peter Kuklica
Ing. arch. Martin Smerek
Ing. arch. Mgr. art. Juraj Hubinský

Súvisiace články

Matej HakárSKBratislava
Vložené
8. november 2021
0
2198
Hlavný obsahHlavný obsah
Čakajte prosím