Advertorial

Pozvánka na 2. ročník stavebného veľtrhu BigMarket na Slovensku

Na podujatí sa predstaví až 37 vystavovateľov - popredných dodávateľov stavebných materiálov a inovácií s prezentáciou...

Hotel Hirschen Spa House, Rakúsko

Novotvar v prostredí alpskej obce.

Vytvorte si kúpeľňu snov: dizajnové riešenie od značky hansgrohe

Hansgrohe - prémiová značka kúpeľňových riešení, ponúka nadčasový dizajn, technickú precíznosť a udržateľné inovácie...

Okná Internorm za minuloročné ceny + hliníkový kryt zdarma!

Využite špeciálnu akciu Internorm: okná za minuloročné ceny a hliníkový kryt úplne zadarmo. Ponuka je časovo obmedzená!

Moderné plynové technológie: Efektivita a inovácie pre 21. storočie

Sumarizácia najdôležitejších inovácií, ktoré redefinujúcich využitie tohto energetického zdroja.

Utesňovanie spodných stavieb pomocou hydro-aktívnej fólie AMPHIBIA.

AMPHIBIA 3000 GRIP 1.3 od spoločnosti ATRO predstavuje modernú hydroizolačnú technológiu, ktorá spája vysokú odolnosť,...

Dekarbonizácia individuálneho vykurovania domácností – Green Deal evolučne a nie revolučne

Ambiciózne plány EK narazili na ekonomické možnosti domácností v jednotlivých členských štátoch –...

Minimalistické dvere IDEA – technická precíznosť a čistota prevedenia

IDEA DOOR od spoločnosti JAP prináša do interiéru čistý minimalistický vzhľad vďaka bezrámovému riešeniu a precíznej...

Dom s výhľadom na údolie, Dlouhý Most (ČR)

Kontinuita riešenia od vonkajšieho obkladu až po kovania a kľučky.

Schell Vitus – osvedčené riešenie pre sprchy a umývadlá vo verejnom sektore s viac ako desaťročnou tradíciou

Nástenné nadomietkové armatúry Vitus sú mimoriadne vhodné pre rýchlu a efektívnu...

Kompozitné okná predstavujú súčasnosť a budúcnosť

Okenné profily z kompozitného materiálu RAU-FIPRO X od spoločnosti Rehau sú v porovnaní s tradičnými plastovými profilmi mnohonásobne...

Myotis - stoly 2025

Najnovší sortiment stolov pre zariadenie interiérov...

Priemyselné sklenené priečky Dorsis Digero: svetelné rozhranie pre moderné interiéry

Spojenie moderného dizajnu, funkčnosti a svetla do harmonického architektonického prvku.

Význam prirodzeného svetla pre moderné a flexibilné pracovné prostredie

Kancelárska budova Baumit v slovinskom Trzine prešla premenou na moderné a udržateľné pracovisko. Architekti kládli dôraz...

Konferencia Xella Dialóg predstaví novinky a trendy v stavebníctve

Mottom šiesteho ročníku on-line konferencie odborníkov Xella Dialóg je Efektívny návrh budov 2025+: zmeny a riešenia

Kancelárie Lighting Beetle*, Pradiareň 1900

Práca s nadhľadom.
Diela
Red 310.03.2023
25070+51
Kancelárie Lighting Beetle*, Pradiareň 1900
Autori: Mgr. art. Ing. arch. Ondrej Kurek, Ing. arch. Tomáš Krištek, Ing.arch. Mária ŠebováNávrh: 2021 - 2021Realizácia: 2022 - 2022Adresa: Svätoplukova 2A, Bratislava , SlovenskoPublikované: 10. marec 2023

Aktuálna realizácia ateliéru What Architects. v zrekonštruovanej bratislavskej Pradiarni 1900 využíva nenapodobiteľné kvality industriálneho priestoru. Riešenie pracoviska pre dynamický kolektív vsádza na flexibilitu a snaží sa vyhnúť korporátnym klišé. Estetiku diktovanú surovými povrchmi a odhalenými technickými detailmi zjemňujú architekti funkčnými textilnými prvkami. 

 

Viac slovami autorov:

Realizácii kancelárií pre Lighting Beetle*, firmu venujúcu sa user experience designu, predchádzal dlhoročný proces hľadania vhodných priestorov. Počas neho sme boli svedkom vývoja firmy z  komorného štúdia s približne 10-15 ľuďmi na pomerne veľkú firmu so 70 zamestnancami. V priebehu hľadania sme preto vytvorili viacero návrhov odzrkadľujúcich tento vývoj. Všetky postupne stroskotali na dohodách s prenajímateľmi, prípadne medzičasom nevyhovovali rastúcej firme. Raz sme mali dokonca takmer hotový realizačný projekt, ale potom prišla pandémia a opäť z toho nič nebolo. Toto všetko nám však dalo nadhľad a lepšiu predstavu o fungovaní Lighting Beetle*, ako aj o ich prístupe k práci.

Nakoniec vyhovoval najviac klientovej rozporuplnej podmienke komfortnej kancelárskej budovy s určitým štadardom, ktorá však nepôsobí "korporátne", priestor v Pradiarni bývalej Cvernovky (teraz ZWIRN). Priestor s veľkou otvorenou dispozíciou a vysokým stropom dával predpoklad na jeho flexibilné využívanie, alternatívny vlastný prístup z exteriéru zase umožňuje vyhnúť sa recepcii a kontrolám ako prvému "korporátnemu" dojmu. Práve komfortne dimenzovaný priestor bol receptom na meniace sa potreby firmy. Na jednej strane disponoval dostatočne veľkou plochou pre jej budúci rast, na druhej strane ponúkal flexibilné plochy umožňujúce rôzne spôsoby ich využívania, v súlade s aktuálnym trendom práce z domu - homeoffice.

Hlavným motívom návrhu sa stala flexibilita

Zamestnanci Lighting Beetle* nemajú presný pracovný čas ani fixné pracovné miesto. Presúvajú sa medzi projektami, jednotlivými tímami, môžu robiť z domu, od klienta alebo naopak môže klient prísť pracovať k nim do kancelárie. Naviac, okrem samotnej práce na projektoch je tu aj mnoho času na spoločné akcie, standupy, oslavy, konferencie, a podobne. Priestor je zároveň miestom na konanie rôznych udalostí, ďaleko presahujúcich kapacitu pracovných miest. Veď hneď na prvú otváraciu akciu prišlo viac ako 200 ľudí. Kvôli tomu je takmer všetko na kolieskach, stohovateľné, prípadne ľahko premiestniteľné. 

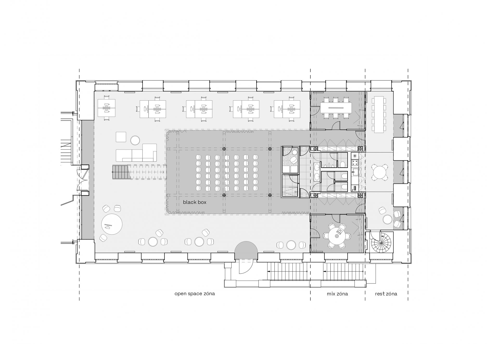
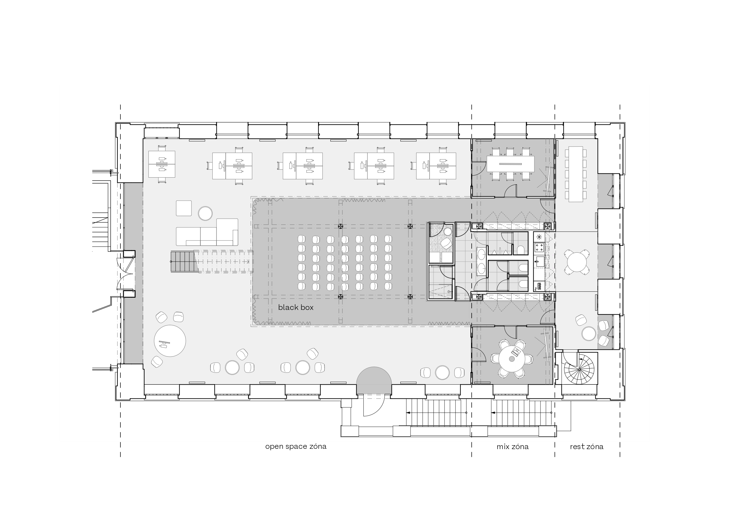
Priestor s už realizovaným hygienickým boxom a konštrukčne zaujímavým zaveseným mezanínom sme nechceli členiť viac, ako bolo nevyhnutné. Horizontálne je rozdelený len na tri zóny. Flexibilná zóna "openspace" slúži na prácu, menšie mítingy,  prípadne aj na väčšie podujatia. Vložený "black box" môže byť uzavretý na prednášku alebo otvorený do tohto priestoru. Druhá časť „mix zóna“ je uzavretý priestor venovaný zasadačkám a zázemiu. Tretia "rest zóna" je určená zamestnancom hlavne na debaty a občerstvenie. Toto delenie sa odzrkadľuje aj na dispozícii mezanínového podlažia.

Namiesto prezentácie vlastnej farebnej a materiálovej kreativity sme sa podriadili black and white farebnosti zachovaných stien a konštrukcíí stĺpov, trámov a okenných otvorov. Dominovať priestoru tak majú len plápolajúcie závesy doplnené o rovnako nariasené perforované plechy.

Foto: Nora a Jakub Čaprnkovci
Pôdorys
PôdorysAutor: What architects.
Pôdorys - zavesený mezanín
Pôdorys - zavesený mezanínAutor: What architects.
Schematický rezopohľad
Schematický rezopohľadAutor: What architects.
Axonometria
AxonometriaAutor: What architects.
Foto: Nora a Jakub Čaprnkovci
Foto: Nora a Jakub Čaprnkovci
Foto: Nora a Jakub Čaprnkovci
Foto: Nora a Jakub Čaprnkovci
Foto: Nora a Jakub Čaprnkovci
Foto: Nora a Jakub Čaprnkovci
Foto: Nora a Jakub Čaprnkovci
Foto: Nora a Jakub Čaprnkovci
Foto: Nora a Jakub Čaprnkovci
Foto: Nora a Jakub Čaprnkovci
Foto: Nora a Jakub Čaprnkovci
Foto: Nora a Jakub Čaprnkovci
Foto: Nora a Jakub Čaprnkovci
Foto: Nora a Jakub Čaprnkovci
Foto: Nora a Jakub Čaprnkovci
170
Youtube
Foto - zľava: Lighting Beetle*; Nora a Jakub Čaprnkovci
Foto - zľava: Lighting Beetle*; Nora a Jakub Čaprnkovci

Fotografia priestoru pred realizáciou interiéru kancelárií:

Foto: What architects.

Poloha diela

Mgr. art. Ing. arch. Ondrej Kurek
Ing. arch. Tomáš Krištek
Ing.arch. Mária Šebová

Súvisiace články

Vložené
3. marec 2023
0
2507
Hlavný obsahHlavný obsah
Čakajte prosím