Advertorial

Vytvorte si kúpeľňu snov: dizajnové riešenie od značky hansgrohe

Hansgrohe - prémiová značka kúpeľňových riešení, ponúka nadčasový dizajn, technickú precíznosť a udržateľné inovácie...

Okná Internorm za minuloročné ceny + hliníkový kryt zdarma!

Využite špeciálnu akciu Internorm: okná za minuloročné ceny a hliníkový kryt úplne zadarmo. Ponuka je časovo obmedzená!

Pozvánka na 2. ročník stavebného veľtrhu BigMarket na Slovensku

Na podujatí sa predstaví až 37 vystavovateľov - popredných dodávateľov stavebných materiálov a inovácií s prezentáciou...

Moderné plynové technológie: Efektivita a inovácie pre 21. storočie

Sumarizácia najdôležitejších inovácií, ktoré redefinujúcich využitie tohto energetického zdroja.

Utesňovanie spodných stavieb pomocou hydro-aktívnej fólie AMPHIBIA.

AMPHIBIA 3000 GRIP 1.3 od spoločnosti ATRO predstavuje modernú hydroizolačnú technológiu, ktorá spája vysokú odolnosť,...

Dekarbonizácia individuálneho vykurovania domácností – Green Deal evolučne a nie revolučne

Ambiciózne plány EK narazili na ekonomické možnosti domácností v jednotlivých členských štátoch –...

Minimalistické dvere IDEA – technická precíznosť a čistota prevedenia

IDEA DOOR od spoločnosti JAP prináša do interiéru čistý minimalistický vzhľad vďaka bezrámovému riešeniu a precíznej...

Dom s výhľadom na údolie, Dlouhý Most (ČR)

Kontinuita riešenia od vonkajšieho obkladu až po kovania a kľučky.

Schell Vitus – osvedčené riešenie pre sprchy a umývadlá vo verejnom sektore s viac ako desaťročnou tradíciou

Nástenné nadomietkové armatúry Vitus sú mimoriadne vhodné pre rýchlu a efektívnu...

Kompozitné okná predstavujú súčasnosť a budúcnosť

Okenné profily z kompozitného materiálu RAU-FIPRO X od spoločnosti Rehau sú v porovnaní s tradičnými plastovými profilmi mnohonásobne...

Myotis - stoly 2025

Najnovší sortiment stolov pre zariadenie interiérov...

Priemyselné sklenené priečky Dorsis Digero: svetelné rozhranie pre moderné interiéry

Spojenie moderného dizajnu, funkčnosti a svetla do harmonického architektonického prvku.

Význam prirodzeného svetla pre moderné a flexibilné pracovné prostredie

Kancelárska budova Baumit v slovinskom Trzine prešla premenou na moderné a udržateľné pracovisko. Architekti kládli dôraz...

Konferencia Xella Dialóg predstaví novinky a trendy v stavebníctve

Mottom šiesteho ročníku on-line konferencie odborníkov Xella Dialóg je Efektívny návrh budov 2025+: zmeny a riešenia

Murovací robot WLTR stavia svoj prvý dom na Slovensku

Robot WLTR predstavuje moderný prístup k murovaným konštrukciám. Vďaka automatizácii dokáže rýchlo, presne a bezpečne realizovať...

Byt Pri Mýte, Bratislava

Presvetlenie hlbokej dispozície prostredníctvom otvorenia obslužného jadra bytu.
Diela
Red 303.06.2020
55520+40
Byt Pri Mýte, Bratislava
Autori: Mgr. art. Ing. arch. Ondrej Kurek, Ing. arch. Tomáš KrištekSpolupráca: Ing. arch. Mária ŠtrbíkováPodlažná plocha: 68,2 m2Návrh: 2016 - 2016Realizácia: 2017 - 2018Adresa: Račianska , Bratislava, SlovenskoPublikované: 3. jún 2020

Úzky, preplávajúci byt sa nachádza v novostavbe, ktorá je súčasťou rezidenčného komplexu Pri Mýte. Urbanistický koncept obytného súboru spočíva v šachovnicovom rozmiestnení sekciových domov okolo centrálnej osi. Hlavné priečelia (a byty) sú orientované na severovýchod a juhozápad. To je aj prípad prezentovaného “trojizbáku” s výmerou 68 m2.

Foto: Nora a Jakub Čaprnkovci

Realizácia v princípe zachováva pôvodnú prevádzkovú schému bytu. Architekti sa však rozhodli pre odstránenie časti deliacich priečok a úpravu dispozície, ktorá po novom napĺňa individuálne požiadavky investorov. Detská izba sa zmenila na priechodnú pracovňu. Otvorenie centrálnej - obslužnej zóny bytu, prinieslo obojstranné presvetlenie hlbokej dispozície. Pevné konštrukcie sčasti nahradili vložené stolárske prvky. “Navrhujeme päť vstavaných nábytkov: skriňu, čistú a špinavú kuchyňu, šatník a organizér, ktoré budú zoradené okolo jadra s kúpeľňou. Spolu tvoria jadro, ktoré je priechodné a v prípade potreby prepúšťa svetlo do kúpeľne z jednej, alebo druhej strany,” vysvetľujú architekti z ateliéru What Architects.   

Foto: Nora a Jakub Čaprnkovci
Priestorová schéma
Priestorová schémaAutor: What Architects.
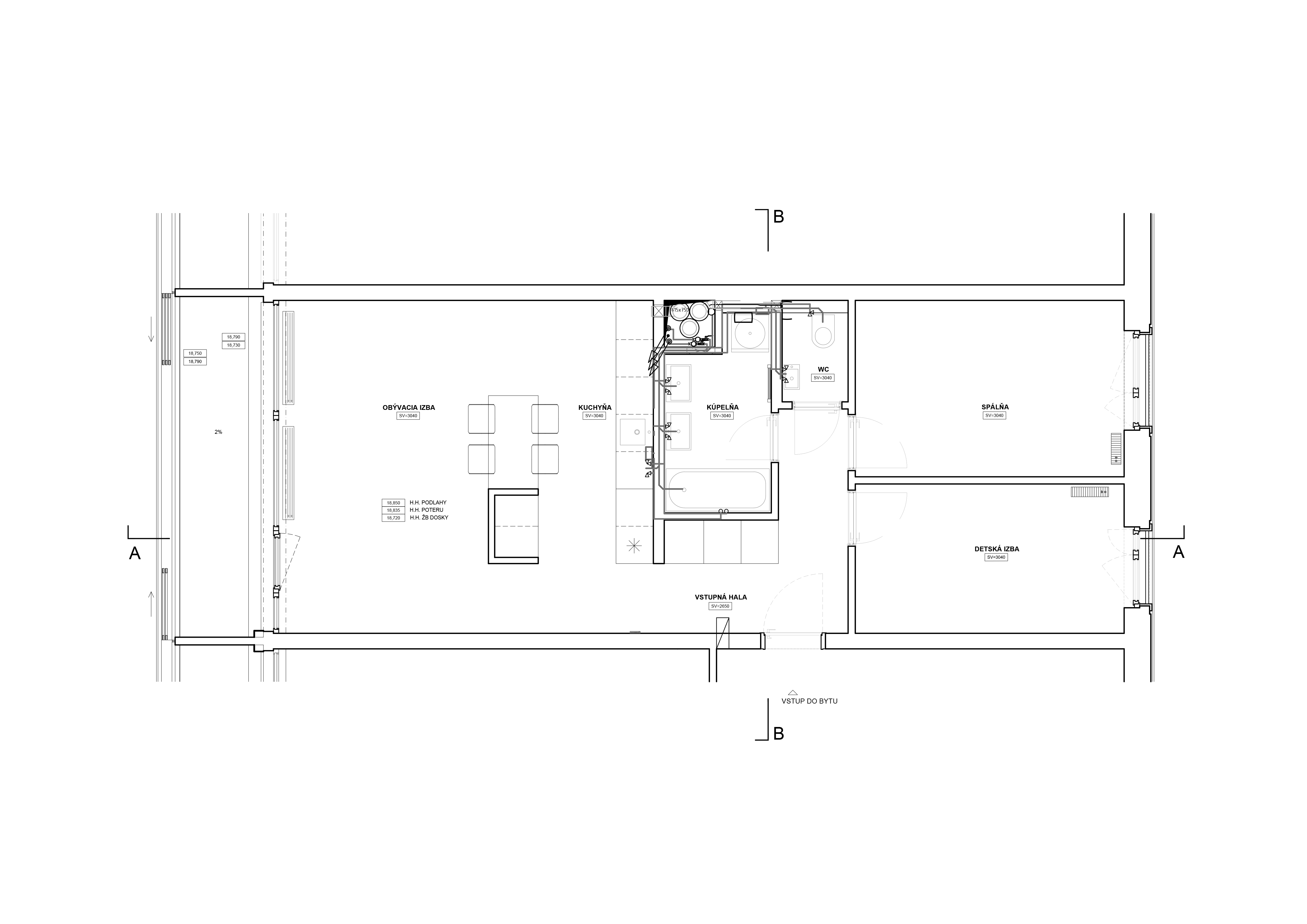
Pôdorys - pôvodný stav
Pôdorys - pôvodný stavAutor: What Architects.
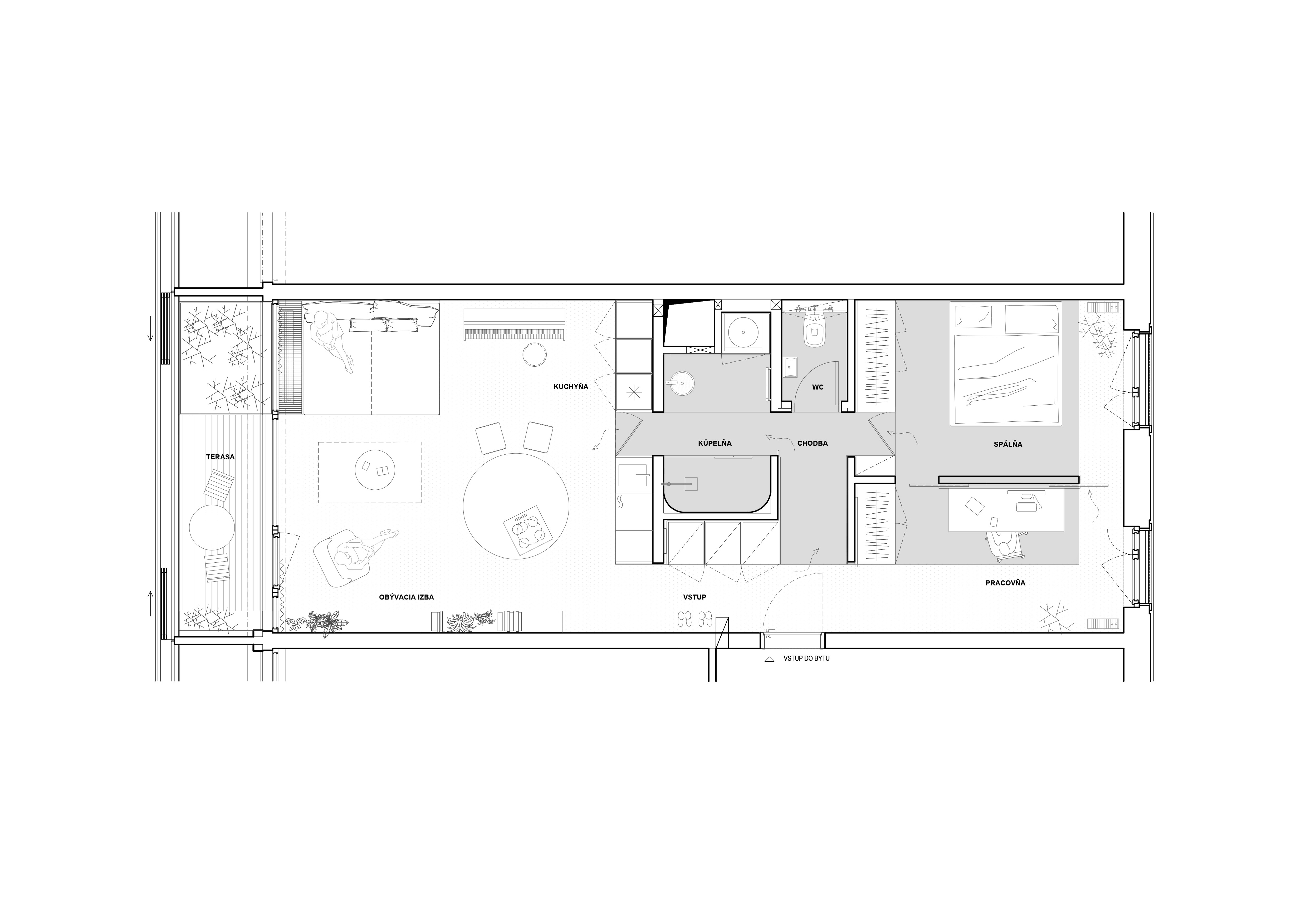
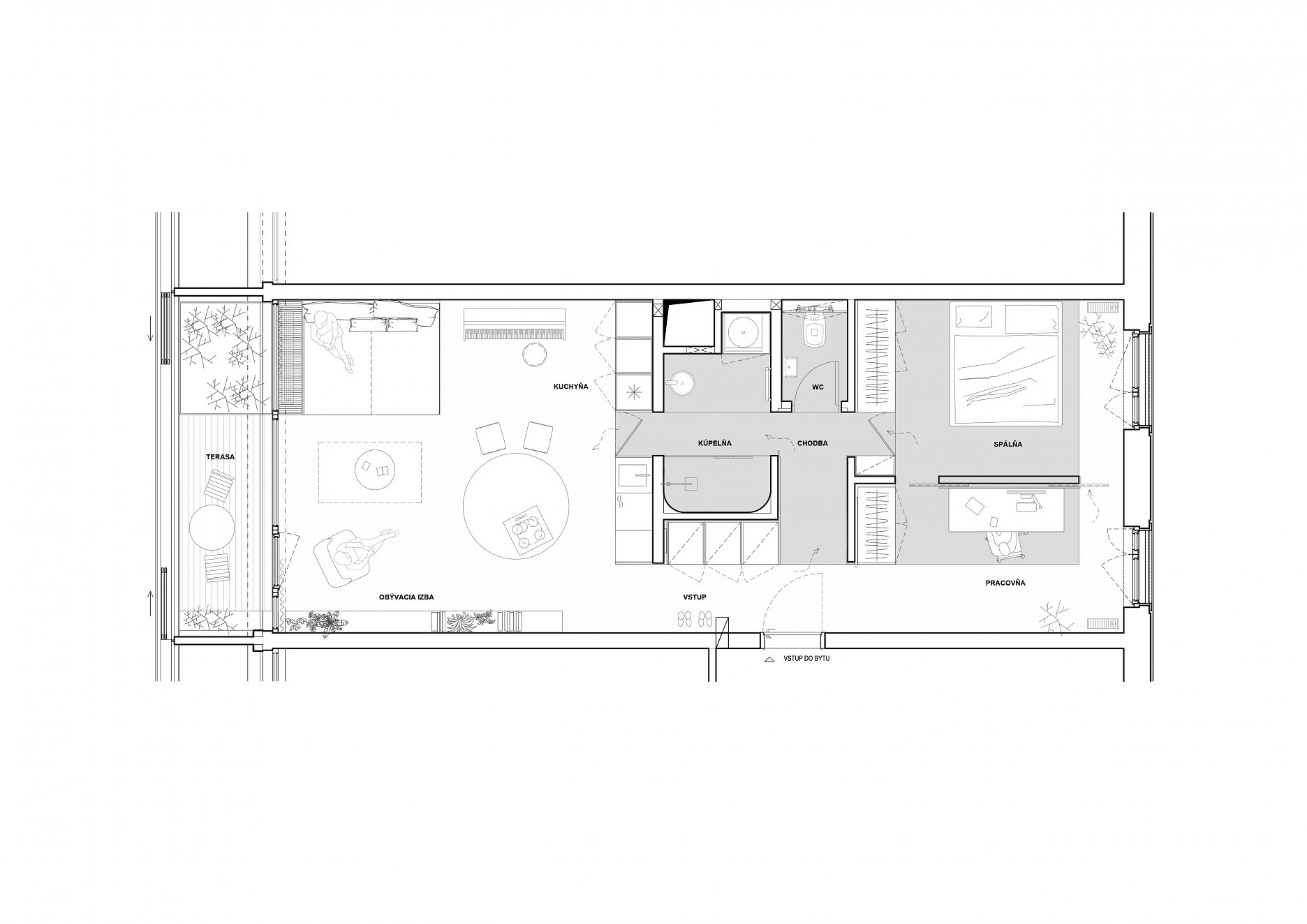
Pôdorys - nový stav
Pôdorys - nový stavAutor: What Architects.

Na farebne neutrálnom pozadí vyniká vertikálna kresba dyhy preglejkového nábytku. Dôležitým detailom sú skryté pánty a puzdrá dverí, prebiehajúcich cez celú výšku interiéru.  Úložné kapacity vo vstavaných nábytkových zostavách dopĺňa modulárny policový systém. Klasické riešenie s oceľovými konzolami nahrádzajú na rozhraní spálne a pracovne dierované predsteny, ktoré umožňujúcimi ľubovolné usporiadanie políc.

Foto: Nora a Jakub Čaprnkovci
Foto: Nora a Jakub Čaprnkovci
Foto: Nora a Jakub Čaprnkovci
Foto: Nora a Jakub Čaprnkovci
Foto: Nora a Jakub Čaprnkovci
Foto: Nora a Jakub Čaprnkovci
Foto: Nora a Jakub Čaprnkovci
Foto: Nora a Jakub Čaprnkovci
Foto: Nora a Jakub Čaprnkovci
Foto: Nora a Jakub Čaprnkovci
Foto: Nora a Jakub Čaprnkovci
Foto: Nora a Jakub Čaprnkovci

Poloha diela

Mgr. art. Ing. arch. Ondrej Kurek
Ing. arch. Tomáš Krištek

Súvisiace články

Vložené
29. máj 2020
0
5552
Hlavný obsahHlavný obsah
Čakajte prosím