Advertorial

Vytvorte si kúpeľňu snov: dizajnové riešenie od značky hansgrohe

Hansgrohe - prémiová značka kúpeľňových riešení, ponúka nadčasový dizajn, technickú precíznosť a udržateľné inovácie...

Okná Internorm za minuloročné ceny + hliníkový kryt zdarma!

Využite špeciálnu akciu Internorm: okná za minuloročné ceny a hliníkový kryt úplne zadarmo. Ponuka je časovo obmedzená!

Pozvánka na 2. ročník stavebného veľtrhu BigMarket na Slovensku

Na podujatí sa predstaví až 37 vystavovateľov - popredných dodávateľov stavebných materiálov a inovácií s prezentáciou...

Moderné plynové technológie: Efektivita a inovácie pre 21. storočie

Sumarizácia najdôležitejších inovácií, ktoré redefinujúcich využitie tohto energetického zdroja.

Utesňovanie spodných stavieb pomocou hydro-aktívnej fólie AMPHIBIA.

AMPHIBIA 3000 GRIP 1.3 od spoločnosti ATRO predstavuje modernú hydroizolačnú technológiu, ktorá spája vysokú odolnosť,...

Dekarbonizácia individuálneho vykurovania domácností – Green Deal evolučne a nie revolučne

Ambiciózne plány EK narazili na ekonomické možnosti domácností v jednotlivých členských štátoch –...

Minimalistické dvere IDEA – technická precíznosť a čistota prevedenia

IDEA DOOR od spoločnosti JAP prináša do interiéru čistý minimalistický vzhľad vďaka bezrámovému riešeniu a precíznej...

Dom s výhľadom na údolie, Dlouhý Most (ČR)

Kontinuita riešenia od vonkajšieho obkladu až po kovania a kľučky.

Schell Vitus – osvedčené riešenie pre sprchy a umývadlá vo verejnom sektore s viac ako desaťročnou tradíciou

Nástenné nadomietkové armatúry Vitus sú mimoriadne vhodné pre rýchlu a efektívnu...

Kompozitné okná predstavujú súčasnosť a budúcnosť

Okenné profily z kompozitného materiálu RAU-FIPRO X od spoločnosti Rehau sú v porovnaní s tradičnými plastovými profilmi mnohonásobne...

Myotis - stoly 2025

Najnovší sortiment stolov pre zariadenie interiérov...

Priemyselné sklenené priečky Dorsis Digero: svetelné rozhranie pre moderné interiéry

Spojenie moderného dizajnu, funkčnosti a svetla do harmonického architektonického prvku.

Význam prirodzeného svetla pre moderné a flexibilné pracovné prostredie

Kancelárska budova Baumit v slovinskom Trzine prešla premenou na moderné a udržateľné pracovisko. Architekti kládli dôraz...

Konferencia Xella Dialóg predstaví novinky a trendy v stavebníctve

Mottom šiesteho ročníku on-line konferencie odborníkov Xella Dialóg je Efektívny návrh budov 2025+: zmeny a riešenia

Murovací robot WLTR stavia svoj prvý dom na Slovensku

Robot WLTR predstavuje moderný prístup k murovaným konštrukciám. Vďaka automatizácii dokáže rýchlo, presne a bezpečne realizovať...

Skyflat, Bratislava

V znamení kriviek.
Diela
Red 304.05.2023
61860+130
Skyflat, Bratislava
Autori: Ing. arch. Tomáš Krištek, Mgr. art. Ing. arch. Ondrej Kurek, Ing. arch. Mária Šebová, Ing. arch. Mária VaňurováPodlažná plocha: 80 m2Návrh: 2020 - 2020Realizácia: 2020 - 2023Adresa: Sky Park , Bratislava – Staré Mesto , SlovenskoPublikované: 4. máj 2023

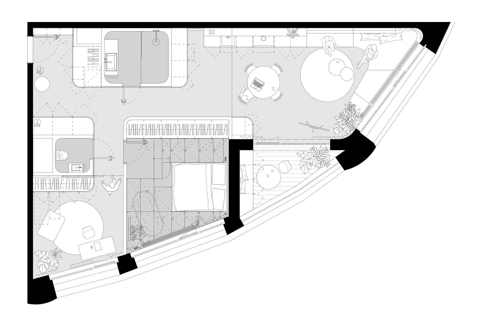
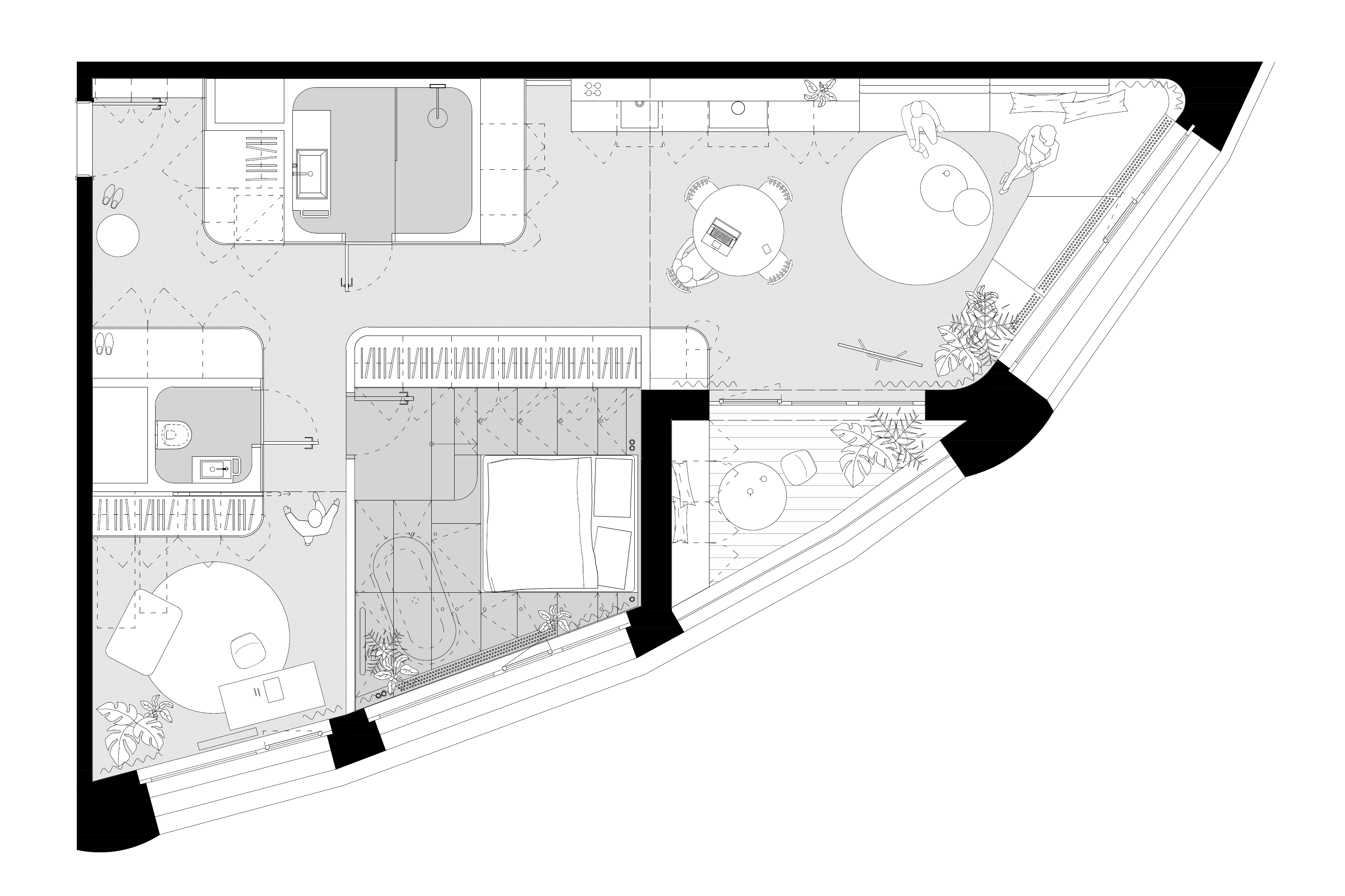
Realizácia ateliéru What Architects. v bratislavskom Sky Parku. Efektívne riešenie priestorov kúpeľne, spálne a kuchyne umožnilo architektom redukovať ich plochu a eliminovať "tunelovú" dispozíciu vstupnej časti. Autorské riešenie vstavaného nábytku zároveň rieši nedostatok úložných priestorov a optimalizuje využitie nepravidelného pôdorysu s ostrými rohmi. "Učesané" architektonické stvárnenie interiéru podčiarkujú premyslené detaily.

Foto: Matej Hakár

Viac slovami autorov:

Komplex Sky Park vytvára dynamickú schému budov s oblými tvarmi, ktorú prenášame aj do samotného interiéru a drobnými stavebnými úpravami vytvárame plynulejší pohyb v obytnom priestore. Dispozíciu členíme tromi samostatnými blokmi: blok so spálňou, s kúpeľňou a s WC. Ich objemy sú ľahko čitateľné v priestore - zvonka sú materiálovo odlíšené a zároveň v dispozícii vytvárajú ďalšie mikrosvety. Priestor medzi jednotlivými blokmi prepájajú zjednotené povrchy podláh, stien a stropov v betónovom vzhľade. Farebné riešenie interiéru zároveň reflektuje okolitú zástavbu širšieho centra Bratislavy, ktorú môžeme sledovať z levitujúcej vstavanej sofy či z betónovej vane, zapustenej v pódiu spálne.

Pôdorys - východiskový stav
Pôdorys - východiskový stavAutor: What architects.
Pôdorys - nový stav
Pôdorys - nový stavAutor: What architects.
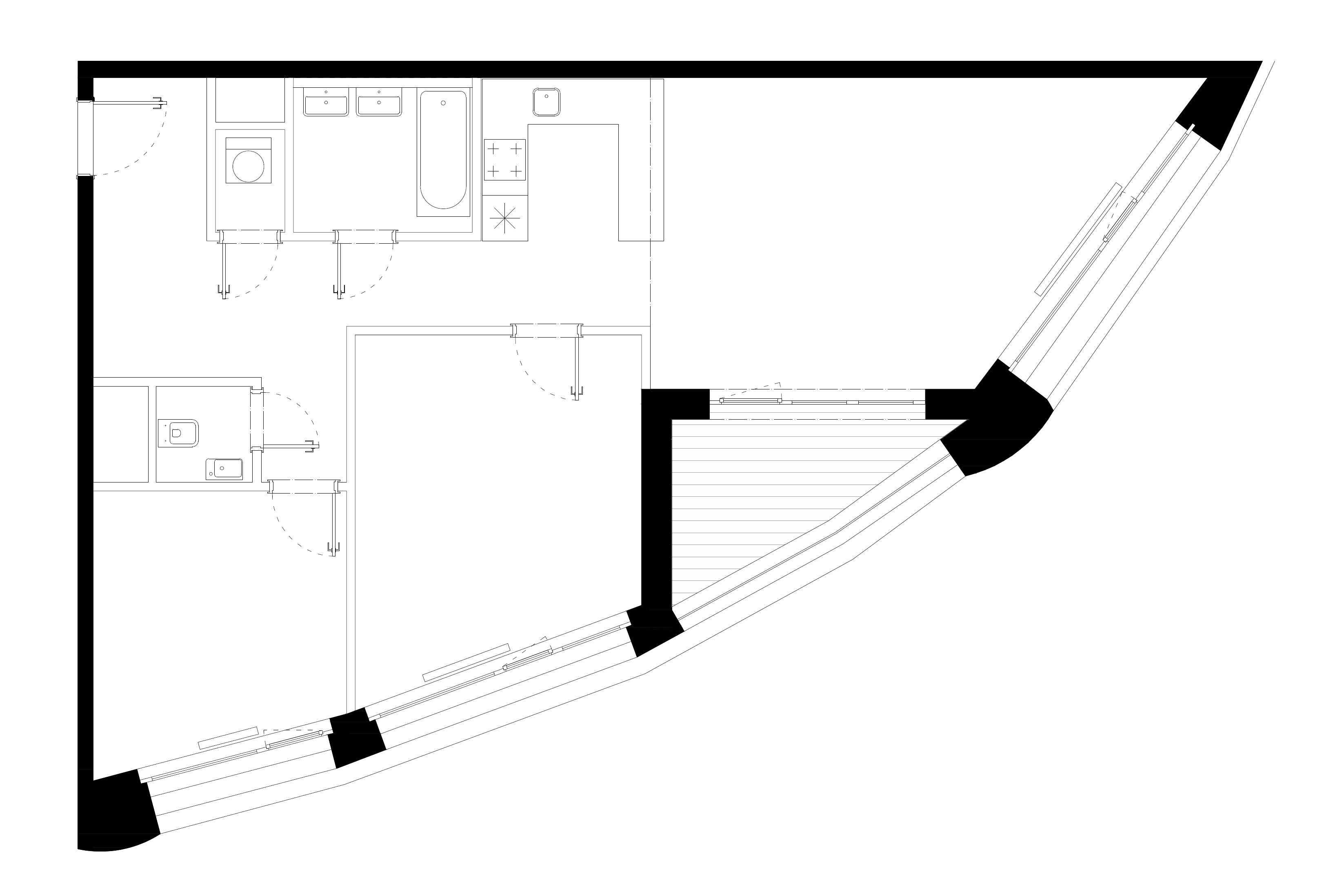
Axonometria - nový stav
Axonometria - nový stavAutor: What architects.
Foto: Matej Hakár
Foto: Matej Hakár
Foto: Matej Hakár
Foto: Matej Hakár
Foto: Matej Hakár
Foto: Matej Hakár
Foto: Matej Hakár
Foto: Matej Hakár
Foto: Matej Hakár
Foto: Matej Hakár
Foto: Matej Hakár
Foto: Matej Hakár
Foto: Matej Hakár
Foto: Matej Hakár
Foto: Matej Hakár
Foto: Matej Hakár
Foto: Matej Hakár
Foto: Matej Hakár
Foto: Matej Hakár
Foto: Matej Hakár
Foto: Matej Hakár

Poloha diela

Ing. arch. Tomáš Krištek
Mgr. art. Ing. arch. Ondrej Kurek
Ing. arch. Mária Šebová
Ing. arch. Mária Vaňurová

Súvisiace články

Matej HakárSKBratislava
Vložené
3. máj 2023
0
6186
Hlavný obsahHlavný obsah
Čakajte prosím