Advertorial

Hotel Hirschen Spa House, Rakúsko

Novotvar v prostredí alpskej obce.

Vytvorte si kúpeľňu snov: dizajnové riešenie od značky hansgrohe

Hansgrohe - prémiová značka kúpeľňových riešení, ponúka nadčasový dizajn, technickú precíznosť a udržateľné inovácie...

Okná Internorm za minuloročné ceny + hliníkový kryt zdarma!

Využite špeciálnu akciu Internorm: okná za minuloročné ceny a hliníkový kryt úplne zadarmo. Ponuka je časovo obmedzená!

Pozvánka na 2. ročník stavebného veľtrhu BigMarket na Slovensku

Na podujatí sa predstaví až 37 vystavovateľov - popredných dodávateľov stavebných materiálov a inovácií s prezentáciou...

Moderné plynové technológie: Efektivita a inovácie pre 21. storočie

Sumarizácia najdôležitejších inovácií, ktoré redefinujúcich využitie tohto energetického zdroja.

Utesňovanie spodných stavieb pomocou hydro-aktívnej fólie AMPHIBIA.

AMPHIBIA 3000 GRIP 1.3 od spoločnosti ATRO predstavuje modernú hydroizolačnú technológiu, ktorá spája vysokú odolnosť,...

Dekarbonizácia individuálneho vykurovania domácností – Green Deal evolučne a nie revolučne

Ambiciózne plány EK narazili na ekonomické možnosti domácností v jednotlivých členských štátoch –...

Minimalistické dvere IDEA – technická precíznosť a čistota prevedenia

IDEA DOOR od spoločnosti JAP prináša do interiéru čistý minimalistický vzhľad vďaka bezrámovému riešeniu a precíznej...

Dom s výhľadom na údolie, Dlouhý Most (ČR)

Kontinuita riešenia od vonkajšieho obkladu až po kovania a kľučky.

Schell Vitus – osvedčené riešenie pre sprchy a umývadlá vo verejnom sektore s viac ako desaťročnou tradíciou

Nástenné nadomietkové armatúry Vitus sú mimoriadne vhodné pre rýchlu a efektívnu...

Kompozitné okná predstavujú súčasnosť a budúcnosť

Okenné profily z kompozitného materiálu RAU-FIPRO X od spoločnosti Rehau sú v porovnaní s tradičnými plastovými profilmi mnohonásobne...

Myotis - stoly 2025

Najnovší sortiment stolov pre zariadenie interiérov...

Priemyselné sklenené priečky Dorsis Digero: svetelné rozhranie pre moderné interiéry

Spojenie moderného dizajnu, funkčnosti a svetla do harmonického architektonického prvku.

Význam prirodzeného svetla pre moderné a flexibilné pracovné prostredie

Kancelárska budova Baumit v slovinskom Trzine prešla premenou na moderné a udržateľné pracovisko. Architekti kládli dôraz...

Konferencia Xella Dialóg predstaví novinky a trendy v stavebníctve

Mottom šiesteho ročníku on-line konferencie odborníkov Xella Dialóg je Efektívny návrh budov 2025+: zmeny a riešenia

Vanguard | VNG 903, Praha

Loft v priestoroch bývalej továrne na letecké súčiastky.
Diela
Red 330.11.2023
12550+43
Vanguard | VNG 903, Praha
Autori: Bet Orten, Matěj HájekSpolupráca: Adéla KřížkováInvestor: PSNPodlažná plocha: 133 m² byt + 48 m² parkingNávrh: 2023 - 2023Realizácia: 2023 - 2023Adresa: Čs. exilu 1888, Praha, Česká republikaPublikované: 30. november 2023

Modřany - historicky významná priemyselná časť Prahy - prechádza v posledných rokoch výrazným prerodom. Jej industriálne genius loci však zostáva zachované. Miesta, kde pred sto rokmi pracovali tisíce robotníkov sa postupne menia na obytné a polyfunkčné zóny.

Výnimkou nie je ani bývalá továreň na letecké súčiastky Microna. V rámci štrnásťpodlažného prefabrikovaného železobetónového skeletu vzniklo 150 loftov v štýle Shell & Core s rozlohou od 40 do 700 m2. Variabilita priestorov poskytuje ideálny priestor pre realizáciu bývania, kancelárie, umeleckej dielne, alebo fotografického ateliéru. Dnes sa pozrieme na jednu z možností, za ktorou stojí pražský ateliér SKULL studio.

 

Realizáciu predstavíme so sprievodným textom autorov:

Světoběžník

Když se rozhodl stát světoběžníkem, otevřel oči a snil. Vzpomínal na vyprávění své milované babičky plné aut s chladičem ve tvaru koňské podkovy.

Světoběžníkova babička byla celoživotní blízkou přítelkyní Elišky Junkové, laskavé a odvážné dámy, ambasadorky Bugatti na Cejlonu. Její příběhy se točily kolem zasloužených vítězství, jízdy s obrovským citem pro auto i pro trať. Řídíš rychle a plynule. Držel se toho celý život, nikdy věci nelámal přes koleno. Věděl, že krása leží mezi dvěma krajnostmi, řádem a složitostí. Znal cenu časem prověřeného designu. Nepopíral, že forma následuje funkci. A se starou černobílou fotografií dvou usmívajících se mladých žen v Bugatti T35, zasypaných květinami, vstoupil do svého nového pražského loftu VNG 903…

Idea

Design loftu VNG 903 - Světoběžník je setkání (post)industriální architektury s duchem modernismu počátku 20. století. Do industriálního skeletu / loftu jsme vestavěli poctu modernismu prvorepublikové éry.

Návrhem interiéru se prolíná duch imaginárního hrdiny. Vizionáře. Cestovatele časem. Světoběžníka, který s přesným zaměřením sleduje spirálu vývoje moderního věku. Neulpívá však pouze v minulosti, má fantazii a prostředky spoluutvářet podobu budoucnosti. Slovo spoluutvářet je klíčem k pochopení rozvržení prostorových funkcí.

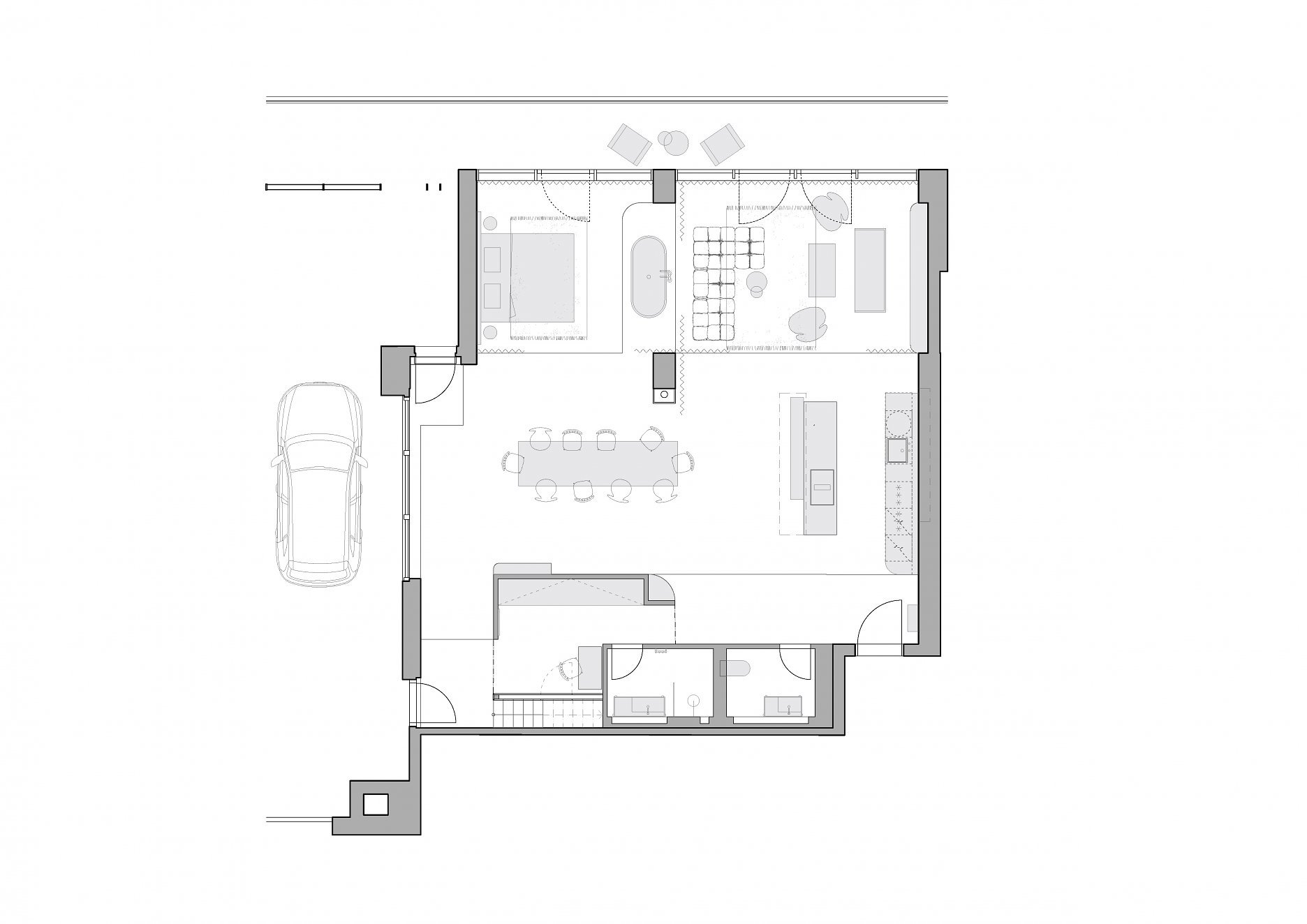
Dispozice

Otevřenému prostoru dominuje centrální obývací část. V jedné ose je situována kuchyňská linka s barovým ostrovem a rozměrný jídelní / konferenční stůl. Zakončením středové osy je výsuvná projekční plocha, která kryje celý formát pásového okna, jež vyhlíží do krytého garážového stání (sběratele automobilů).

Životní náplní našeho imaginárního hrdiny je setkávání se a propojování inspirativních osobností. Vzrušení na hranici formální a neformální akce. Z reprezentativního módu se s posledními paprsky slunce lze snadno přeladit do klubové atmosféry.

Velký otevřený prostor je klíčovou definicí loftu. Pohyblivé stěny a závěsy umožňují variabilně členit obytné zóny, aniž bychom přišli o volnou, vzdušnou a svobodnou dimenzi místa.

Vestavěná část rozšiřuje obytnou plochu a spoluutváří dynamiku prostoru. Patro nese funkci vyvýšené galerie – můstku. Součástí je též lůžko pro hosta. Můstek skrývá průchozí šatnu a oddělené místnosti se sprchou a toaletou.

Atmosféra

Club lounge. Uvolněná atmosféra se sofa, konferenčním stolkem a geometrickou knihovnou. Formálnosti odložte stranou. Velkoformátové okno, prosklené dveře, kdykoli je možné přejít na verandu, prostor se rozšiřuje. Červený neon přidá na uvolněné atmosféře, vzpomínka na noční jízdu neznámým velkoměstem.

Velkorysost otevřeného prostoru akcentuje zasazení lázně / smaltované vany mezi lounge a ložnici. Světoběžník, náš hrdina, je suverénní požitkář a přímo z lázně vychází v županu prosklenými dveřmi na balkon, kde si dopřává sklenici svého oblíbeného Boulevardier.

Interiér je navržen se záměrem proměnného uživatelského programu. Náš hrdina si v loftu užívá svou splendid isolation, věnuje se duševní potravě. Otevřený plán bez pevných příček mu dopřává dostatek prostoru k rozletu myšlenek. V pravidelných intervalech se z duchaplného samotáře stává hostitel salónů. Příležitosti pořádání společenských akcí v klubovém formátu jsou zapsány v DNA prostorové dispozice. Jídelní, konferenční část, bar a lounge fungují jako organický celek. Hosté se v každé části cítí ve středu dění. Pro soukromý rozhovor či chvíli solitaire je zde vyvýšené patro galerie. Můstek, ze kterého téměř nepozorován přehlédnete veškeré dění v patře pod vámi.

Pocta

Osobnost závodnice Elišky Junkové prostupuje návrhem celého loftu. Je to právě průkopnická éra automobilových závodů, jejíž duch ovlivňuje klima loftu. Meziválečné období 20. století, dvě odvážné dekády, kdy člověk plný sebedůvěry hleděl do hvězdné budoucnosti, objevoval nové technologie, neznal limity... Modernismus, futurismus, funkcionalismus spojuje fascinace čistými liniemi, energií v pohybu, aerodynamickými tvary, zaoblenými rohy. Klasické modernitě je podřízena i paleta elementárních materiálů, kov, beton, dřevo, kámen, sklo.

Náš hrdina není snílkem ulpívajícím v minulosti. Recyklace, upcyklace jsou synonymy současné elegance. Světlopropustné panely v podhledu šatny, na toaletách a v ploše dveří jsou modelovým prototypem, recyklované plasty. Demonstrace odvahy ohledávat nová řešení. A odvaha patří k našemu hrdinovi, tak jako na gramofon jazz z vinylové desky.

Foto: BoysPlayNice
Pôdorys
PôdorysAutor: SKULL studio
Foto: BoysPlayNice
Foto: BoysPlayNice
Foto: BoysPlayNice
Foto: BoysPlayNice
Foto: BoysPlayNice
Foto: BoysPlayNice
Foto: BoysPlayNice
Foto: BoysPlayNice
Foto: BoysPlayNice
Foto: BoysPlayNice
Foto: BoysPlayNice
Foto: BoysPlayNice
Foto: BoysPlayNice
Foto: BoysPlayNice
Foto: BoysPlayNice
Foto: BoysPlayNice
Foto: BoysPlayNice
Foto: BoysPlayNice
Foto: BoysPlayNice
Foto: BoysPlayNice
Foto: BoysPlayNice
Foto: BoysPlayNice
Foto: BoysPlayNice
Foto: BoysPlayNice
Foto: BoysPlayNice

Materiály

  • Dyha s intarziami - vstavané skrine
  • Oceľová konštrukcia s nitovaným plechom + dubová dyha -  kuchyňa
  • Dubová dyha - postele
  • Oceľová konštrukcia - polica v obývacej časti

Umelecké diela:

  • The day I found you in a snowstorm - autorská fotografia, Bet Orten, lightbox
  • Amelia Erhart meets JK 2500 - autorská fotografia, Bet Orten, fine-art tisk
  • TO THE EAST II - Matěj Hájek, kombinovaná technika
  • Escape - Matěj Hájek, betón, sklo
  • Jezdec - Tomáš Skála, bronz
  • On v Lese - Josef Achrer, akryl na plátne

Podklady: Linka
Autor: SKULL studio
Fotografie: BoysPlayNice

Poloha diela

Bet Orten
Matěj Hájek
Vložené
30. november 2023
0
1255
Hlavný obsahHlavný obsah
Čakajte prosím