Advertorial

Vytvorte si kúpeľňu snov: dizajnové riešenie od značky hansgrohe

Hansgrohe - prémiová značka kúpeľňových riešení, ponúka nadčasový dizajn, technickú precíznosť a udržateľné inovácie...

Okná Internorm za minuloročné ceny + hliníkový kryt zdarma!

Využite špeciálnu akciu Internorm: okná za minuloročné ceny a hliníkový kryt úplne zadarmo. Ponuka je časovo obmedzená!

Pozvánka na 2. ročník stavebného veľtrhu BigMarket na Slovensku

Na podujatí sa predstaví až 37 vystavovateľov - popredných dodávateľov stavebných materiálov a inovácií s prezentáciou...

Moderné plynové technológie: Efektivita a inovácie pre 21. storočie

Sumarizácia najdôležitejších inovácií, ktoré redefinujúcich využitie tohto energetického zdroja.

Utesňovanie spodných stavieb pomocou hydro-aktívnej fólie AMPHIBIA.

AMPHIBIA 3000 GRIP 1.3 od spoločnosti ATRO predstavuje modernú hydroizolačnú technológiu, ktorá spája vysokú odolnosť,...

Dekarbonizácia individuálneho vykurovania domácností – Green Deal evolučne a nie revolučne

Ambiciózne plány EK narazili na ekonomické možnosti domácností v jednotlivých členských štátoch –...

Minimalistické dvere IDEA – technická precíznosť a čistota prevedenia

IDEA DOOR od spoločnosti JAP prináša do interiéru čistý minimalistický vzhľad vďaka bezrámovému riešeniu a precíznej...

Dom s výhľadom na údolie, Dlouhý Most (ČR)

Kontinuita riešenia od vonkajšieho obkladu až po kovania a kľučky.

Schell Vitus – osvedčené riešenie pre sprchy a umývadlá vo verejnom sektore s viac ako desaťročnou tradíciou

Nástenné nadomietkové armatúry Vitus sú mimoriadne vhodné pre rýchlu a efektívnu...

Kompozitné okná predstavujú súčasnosť a budúcnosť

Okenné profily z kompozitného materiálu RAU-FIPRO X od spoločnosti Rehau sú v porovnaní s tradičnými plastovými profilmi mnohonásobne...

Myotis - stoly 2025

Najnovší sortiment stolov pre zariadenie interiérov...

Priemyselné sklenené priečky Dorsis Digero: svetelné rozhranie pre moderné interiéry

Spojenie moderného dizajnu, funkčnosti a svetla do harmonického architektonického prvku.

Význam prirodzeného svetla pre moderné a flexibilné pracovné prostredie

Kancelárska budova Baumit v slovinskom Trzine prešla premenou na moderné a udržateľné pracovisko. Architekti kládli dôraz...

Konferencia Xella Dialóg predstaví novinky a trendy v stavebníctve

Mottom šiesteho ročníku on-line konferencie odborníkov Xella Dialóg je Efektívny návrh budov 2025+: zmeny a riešenia

Murovací robot WLTR stavia svoj prvý dom na Slovensku

Robot WLTR predstavuje moderný prístup k murovaným konštrukciám. Vďaka automatizácii dokáže rýchlo, presne a bezpečne realizovať...

Byt výtvarníčky a architekta, Praha - Nusle

Štruktúry,patina,farba,detaily...
Diela
Red 405.07.2023
16040+31
Byt výtvarníčky a architekta, Praha - Nusle
Autori: MgA. Ondřej JankůPodlažná plocha: 62 m2Návrh: 2020 - 2021Realizácia: 2021 - 2022Adresa: Praha 4 - Nusle, Česká republikaPublikované: 5. júl 2023

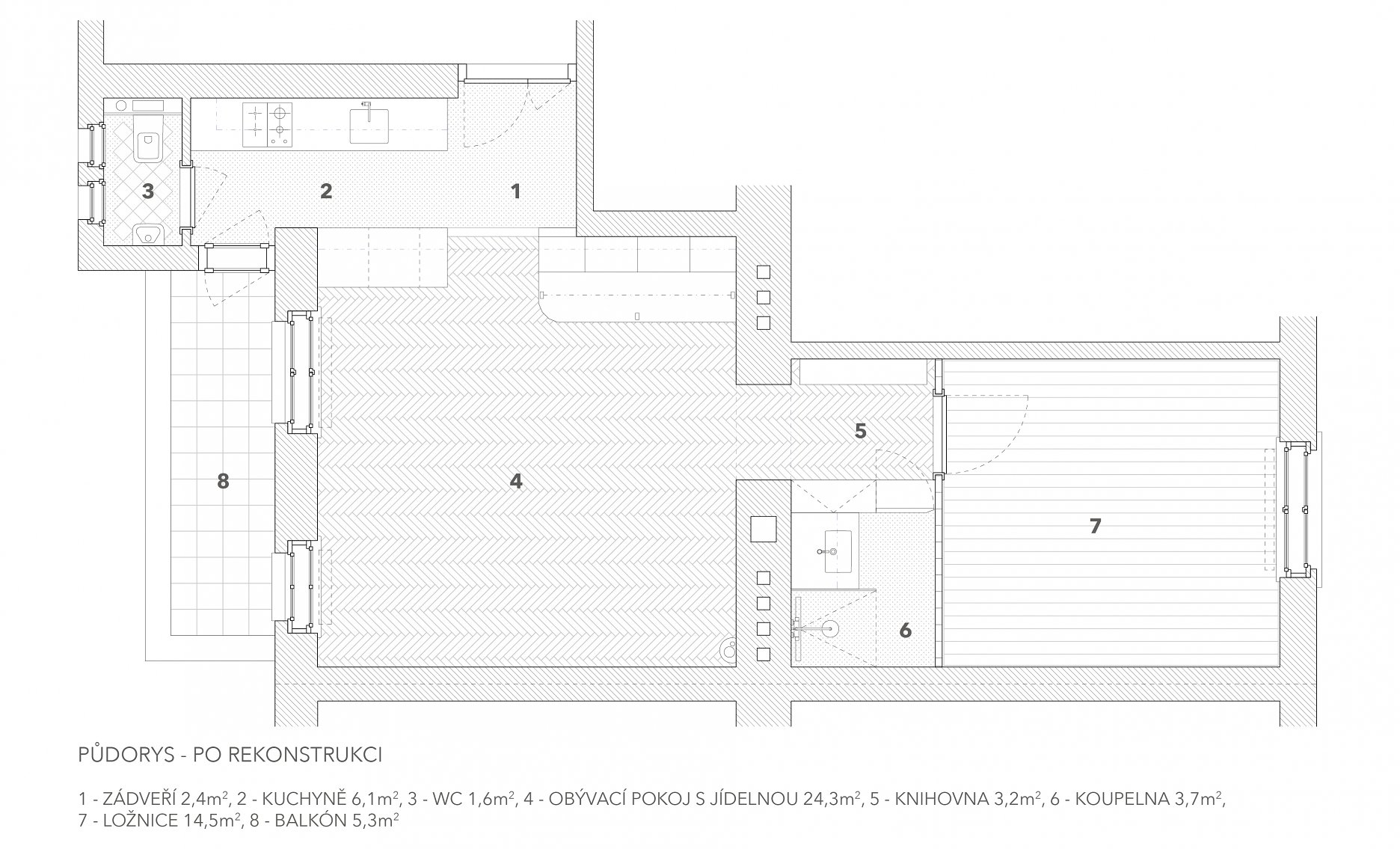
Kompletná rekonštrukcia bytu v historickej zástavbe pražskej časti Nusle znamenala predovšetkým zmenu pôvodnej dispozície, zodpovedajúcej štýlu bývania z prvej polovice 20. storočia. Pôvodné stiesnené miestnosti, smerujúce do pokojného dvora, zjednotili architekti do otvoreného priestoru obývacej izby. Do pôvodne nevyužitej časti zádveria situovali kuchyňu, pričom kuchynský ostrov nahradil priečku.  

Nová stena medzi spálňou, knižnicou a kúpeľňou je celá vymurovaná zo sklenených tvárnic. Kúpeľňa je vďaka tomu presvetlená denným svetlom aj napriek tomu, že sa nachádza vo vnútri dispozície bytu a bez vlastných okien. Cez chodbu s knižnicou prestupuje svetlo zo spálne ďalej do stredu dispozície. “Skleněné tvárnice nejsou čiré, ale pískované. Zajišťují jak dostatek světla, tak i soukromí v koupelně. Siluety nahých postav jsou znatelné, ale rozmlžené, cenzurované,” vysvetľujú autori z pražského ateliéru COLLARCH.

Výrazným prvkom obývacej izby je meter hlboká šatníková skriňa, s dverami z galvanicky pozinkovaného plechu. Efekt olejovej škvrny sa mení počas dňa a s množstvom svetla v miestnosti. “Zdálo by se, že po čase tato paráda omrzí a bude působit spíše rušivým dojmem. Opak je ale pravdou. Pohled na plechovou stěnu je velmi uklidňující. Barevně ladí s dřevěnou podlahou a odrazivost plechů prosvětluje jinak tmavý roh bytu,” hovoria architekti. Hrubosť povrchu plechov, nepresnosti a škrabance z výroby vo fabrike vnášajú do interiéru zaujímavú patinu. 

Roh šatníkovej skrine je pri pohľade z kuchyne obložený tónovaným zrkadlom. “Částečně tak plní funkci klasického zrcadla u vstupu do bytu. Zrcadlo jsme volili tmavě zabarvené, nikoli čiré. Je součástí hmoty skříně a barevně dobře sedí ke galvanizovaným plechům. Čiré zrcadlo by působilo rušivě,” približujú svoje uvažovanie autori.

Originálne kazetové drevené dvere sa v byte bohužiaľ nezachovali. Architektom sa však podarilo získať obdobné dvere aj s obložkami z jednej “búračky” v Brne. Osadili ich priamo do sklenenej priečky medzi knižnicou a spálňou a ďalej aj na WC.

Steny bytu sú len lokálne vyspravené a natreté jednou vrstvou farby v lomenom odtieni bielej. V spálni nájdeme repasovanú pôvodnú doskovú podlahu. Do chodby a obývacej izby navrhli architekti nové dubové parkety. Špecifické požiadavky na odolný povrch v predsieni a kuchyni napĺňa veľkoformátová dlažba so špecifickou textúrou liateho betónu. Podlahu WC tvoria zvyšky pôvodnej dlažby, doplnené betónovou stierkou.

Neštandardne vysoké kuchynské skrinky slúžia v hornej časti ako sezónny úložný priestor pre celý byt. Rovnaké využitie má tiež priestor nad WC, prístupný tiež priamo z kuchyne. 

Vodovodné a odpadové potrubie v miestach pôvodnej kúpeľne sa po zmene dispozície ocitlo exponované v rohu obývacej izby. “Rozhodli jsme se jej nezazdít do šachty, ale zakrýt na míru ušitou a turnýrou, která zabírá méně místa v obýváku než klasicky vyzděná nebo sádrokartonová šachta,” vysvetľujú architekti. Záclony v spálni nezakrývajú iba okno, ale prebiehajú pozdĺž celej steny, čím podľa slov autorov vytvárajú jednotnú kulisu medzi interiérom a ulicou. Medzi zaujímavé detaily patrí polohovateľná stropná lampa alebo betónové závesné svietidlo.

Foto: Karolína Matušková
Foto: Karolína Matušková
Foto: Karolína Matušková
Pôdorys - stav pred rekonštrukciou
Pôdorys - stav pred rekonštrukciouAutor: COLLARCH
Pôdorys - stav po rekonštrukcii
Pôdorys - stav po rekonštrukciiAutor: COLLARCH
Foto: Karolína Matušková
Foto: Karolína Matušková
Foto: Karolína Matušková
Foto: Karolína Matušková
Foto: Karolína Matušková
Foto: Karolína Matušková
Foto: Karolína Matušková
Foto: Karolína Matušková
Foto: Karolína Matušková
Foto: Karolína Matušková
Foto: Karolína Matušková
Foto: Karolína Matušková
Foto: Karolína Matušková
Foto: Karolína Matušková
Foto: Karolína Matušková
Foto: Karolína Matušková
Foto: Karolína Matušková
Foto: Karolína Matušková
Foto: Karolína Matušková
Foto: Karolína Matušková
Foto: Karolína Matušková
Foto: Karolína Matušková
Foto: COLLARCH
Foto: Karolína Matušková
Foto: COLLARCH
Foto: COLLARCH
Foto: COLLARCH
Foto: Michal Janků
Foto: Michal Janků

Fotografie z realizácie:

Foto: COLLARCH
Foto: COLLARCH

Podklady: COLLARCH
Fotogrefie: Karolína Matušková, COLLARCH, Michal Janků

Poloha diela

MgA. Ondřej Janků
Vložené
3. marec 2023
0
1604
Hlavný obsahHlavný obsah
Čakajte prosím