Advertorial

Okná Internorm za minuloročné ceny + hliníkový kryt zdarma!

Využite špeciálnu akciu Internorm: okná za minuloročné ceny a hliníkový kryt úplne zadarmo. Ponuka je časovo obmedzená!

Pozvánka na 2. ročník stavebného veľtrhu BigMarket na Slovensku

Na podujatí sa predstaví až 37 vystavovateľov - popredných dodávateľov stavebných materiálov a inovácií s prezentáciou...

Moderné plynové technológie: Efektivita a inovácie pre 21. storočie

Sumarizácia najdôležitejších inovácií, ktoré redefinujúcich využitie tohto energetického zdroja.

Utesňovanie spodných stavieb pomocou hydro-aktívnej fólie AMPHIBIA.

AMPHIBIA 3000 GRIP 1.3 od spoločnosti ATRO predstavuje modernú hydroizolačnú technológiu, ktorá spája vysokú odolnosť,...

Dekarbonizácia individuálneho vykurovania domácností – Green Deal evolučne a nie revolučne

Ambiciózne plány EK narazili na ekonomické možnosti domácností v jednotlivých členských štátoch –...

Minimalistické dvere IDEA – technická precíznosť a čistota prevedenia

IDEA DOOR od spoločnosti JAP prináša do interiéru čistý minimalistický vzhľad vďaka bezrámovému riešeniu a precíznej...

Dom s výhľadom na údolie, Dlouhý Most (ČR)

Kontinuita riešenia od vonkajšieho obkladu až po kovania a kľučky.

Schell Vitus – osvedčené riešenie pre sprchy a umývadlá vo verejnom sektore s viac ako desaťročnou tradíciou

Nástenné nadomietkové armatúry Vitus sú mimoriadne vhodné pre rýchlu a efektívnu...

Kompozitné okná predstavujú súčasnosť a budúcnosť

Okenné profily z kompozitného materiálu RAU-FIPRO X od spoločnosti Rehau sú v porovnaní s tradičnými plastovými profilmi mnohonásobne...

Myotis - stoly 2025

Najnovší sortiment stolov pre zariadenie interiérov...

Priemyselné sklenené priečky Dorsis Digero: svetelné rozhranie pre moderné interiéry

Spojenie moderného dizajnu, funkčnosti a svetla do harmonického architektonického prvku.

Význam prirodzeného svetla pre moderné a flexibilné pracovné prostredie

Kancelárska budova Baumit v slovinskom Trzine prešla premenou na moderné a udržateľné pracovisko. Architekti kládli dôraz...

Konferencia Xella Dialóg predstaví novinky a trendy v stavebníctve

Mottom šiesteho ročníku on-line konferencie odborníkov Xella Dialóg je Efektívny návrh budov 2025+: zmeny a riešenia

Murovací robot WLTR stavia svoj prvý dom na Slovensku

Robot WLTR predstavuje moderný prístup k murovaným konštrukciám. Vďaka automatizácii dokáže rýchlo, presne a bezpečne realizovať...

Nová éra bezpečnosti s I-tec Secure od Internorm

Okrem bezpečnosti majú okná aj elegantný vzhľad, pretože nie sú viditeľné žiadne uzamykacie časti kovania.

Interiér malého bytu, Praha 7

Byt s rozlohou 36 m2. Keď sa zíde architekt a investor, ktorí si vzájomne sedia, je to predpoklad pre vznik kvalitnej realizáie. Klient má bývanie, ktoré mu vo všetkých smeroch vyhovuje, architekt má realizáciu, za ktorou si stojí a nebojí sa ju prezentovať.
Diela
Red 415.04.2018
17850+11
Interiér malého bytu, Praha 7
Autori: Ing. arch. Miroslav Stach, Ing. arch. Jana StachováPodlažná plocha: 36 m2Návrh: 2015 - 2015Realizácia: 2017 - 2017Adresa: Praha 7, Česká republikaPublikované: 15. apríl 2018

Ako to všetko začalo

“Klient nás kontaktoval doslova za pět minut dvanáct - den před odletem na 4 měsíční pracovní cestu do zahraničí. Zadání znělo jasně - chlapský byt bez zbytečných kudrlinek, přírodní materiály, barevnost neutrální s akcentem k šedé,” priližijú genézu projektu architekti. Medzi požiadavky patrilo oddelenie obývačky od spálne, riešenie funkčnej kuchyne s jedálenskou časťou, a miesto pre odstavenie bicykla. To všetko na ploche 36 m2. Klient prišiel so základnou predstavou o usporiadaní priestoru, autori sa jej však príliš nedržali.

“Představení návrhu probíhalo přes skype přes oceán. Klientovu představu o rozmístění dispozice jsme převrátili naruby, a on byl přes počáteční překvapení z řešení velmi nadšený,” dodávajú.

Foto: MgA. Tomáš Dittrich

Interiér - 36m2

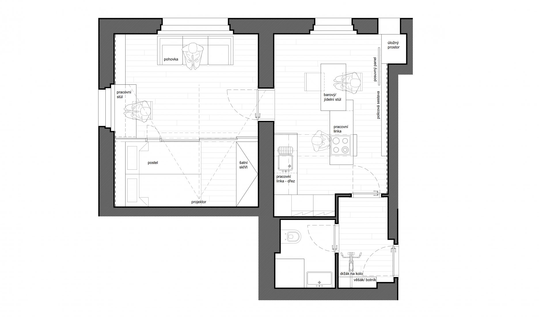
Pôvodná dispozícia rozdeľovala byt na dve oddelené priechodné miestnosti. Vzhľadom k tomu, že bol nedávno rekonštruovaný sa architekti  spoločne s investorom rozhodli, že nemá zmysel púšťať sa do zásadných dispozičných zmien spočívajúcich v búraní deliacej steny. Pracovali teda na podklade pôvodného dispozičného riešenia.

Pôdorys
Pôdorys Boq architekti

Vo vstupnej časti je navrhnutý jednoduchý botník, nad ktorým je inštalovaný držiak na bicykel, a vešiaky na oblečenie.

Foto: MgA. Tomáš Dittrich

Vstupuje sa do kuchyne s jedálňou, kde si architekti aj napriek malým rozmerom dovolili navrhnúť ostrovček. Funguje ako ústredný prvok celej miestnosti. Pult vytvára dostatočný priestor pre varenie, v jednej úrovni nadväzuje na jedálenský stôl. Pri varení je človek otočený smerom do miestnosti, má výhľad z okna von a nemusí sa k hosťom otáčať chrbtom.

Foto: MgA. Tomáš Dittrich

Na stene je zavesený podsvietený policový systém, ktorým umocňuje "barový" dojem celej kuchyne.

Foto: MgA. Tomáš Dittrich

V rohu tejto miestnosti je malý kút s okrúhlym oknom, ktorý slúži ako komora a odkladací priestor. Tento kútik je od zvyšku miestnosti oddelený posuvným panelom.

Foto: MgA. Tomáš Dittrich
Foto: MgA. Tomáš Dittrich

V druhej miestnosti sa nachádza obývacia izba so spálňou. Vzhľadom na to, že klient má nepravidelný pracovný režim, rozhodli sa architekti miestnosť predeliť posuvnými panelmi a miesto na spanie tak v prípade potreby úplne oddeliť od obývacej časti a tým zaistiť pokoj na odpočinok aj počas dňa, bez toho, aby to malo zásadný vplyv na režim jeho partnerky. Táto deliaca stena je v jednej časti presklená, aby sa, ak si klient želá, mohlo do spálne dostať ranné slnko. Pre opačný prípad sú okná vybavené roletami.

Foto: MgA. Tomáš Dittrich

V spálni je umiestnená šatníková skriňa, za posteľou je úložný priestor pre umiestnenie lôžkovín.

Foto: MgA. Tomáš Dittrich

Pracovné miesto je navrhnuté pri okne. Jednoduchá zostava stola s nízkou zásuvkou, "je položený" na skrinke.

Foto: MgA. Tomáš Dittrich

Súčasťou zariadenia obývacej izby je sivá pohovka a konferenčný stolík. V úrovni deliacej priečky je uvažované s inštaláciou projekčného plátna so spätnou projekciou, ktorá zabezpečí možnosť sledovania filmov z obývačky aj spálne.

Foto: MgA. Tomáš Dittrich

V interiéri nájdeme kombináciu povrchov z bieleho termoplastu, olejovaného dubového dreva a sivých Fundermaxových dosiek s hliníkovou vložkou, ktorá vytvára zaujímavý detail na hranách nábytku. “Obvodové stěny jsou obloženy bílým lícovým zdivem. Původně jsme chtěli sundat omítky a dostat se tak na cihlu, ale vzhledem k tomu, že byt byl čerstvě po rekonstrukci, klient upřednostňoval čistší řešení a stěny se nechaly obložit lícovým zdivem, které je potom natřeno na bílo,” upresňujú autori.

Foto: MgA. Tomáš Dittrich
Foto: MgA. Tomáš Dittrich

Doplnky rešpektujú zvolenú materiálovú a farebnú kompozíciu.

Foto: MgA. Tomáš Dittrich
Foto: MgA. Tomáš Dittrich

Podklady: Boq architekti

Ing. arch. Miroslav Stach
Ing. arch. Jana Stachová
Vložené
5. marec 2018
0
1785
Hlavný obsahHlavný obsah
Čakajte prosím