Advertorial

Pozvánka na 2. ročník stavebného veľtrhu BigMarket na Slovensku

Na podujatí sa predstaví až 37 vystavovateľov - popredných dodávateľov stavebných materiálov a inovácií s prezentáciou...

Hotel Hirschen Spa House, Rakúsko

Novotvar v prostredí alpskej obce.

Vytvorte si kúpeľňu snov: dizajnové riešenie od značky hansgrohe

Hansgrohe - prémiová značka kúpeľňových riešení, ponúka nadčasový dizajn, technickú precíznosť a udržateľné inovácie...

Okná Internorm za minuloročné ceny + hliníkový kryt zdarma!

Využite špeciálnu akciu Internorm: okná za minuloročné ceny a hliníkový kryt úplne zadarmo. Ponuka je časovo obmedzená!

Moderné plynové technológie: Efektivita a inovácie pre 21. storočie

Sumarizácia najdôležitejších inovácií, ktoré redefinujúcich využitie tohto energetického zdroja.

Utesňovanie spodných stavieb pomocou hydro-aktívnej fólie AMPHIBIA.

AMPHIBIA 3000 GRIP 1.3 od spoločnosti ATRO predstavuje modernú hydroizolačnú technológiu, ktorá spája vysokú odolnosť,...

Dekarbonizácia individuálneho vykurovania domácností – Green Deal evolučne a nie revolučne

Ambiciózne plány EK narazili na ekonomické možnosti domácností v jednotlivých členských štátoch –...

Minimalistické dvere IDEA – technická precíznosť a čistota prevedenia

IDEA DOOR od spoločnosti JAP prináša do interiéru čistý minimalistický vzhľad vďaka bezrámovému riešeniu a precíznej...

Dom s výhľadom na údolie, Dlouhý Most (ČR)

Kontinuita riešenia od vonkajšieho obkladu až po kovania a kľučky.

Schell Vitus – osvedčené riešenie pre sprchy a umývadlá vo verejnom sektore s viac ako desaťročnou tradíciou

Nástenné nadomietkové armatúry Vitus sú mimoriadne vhodné pre rýchlu a efektívnu...

Kompozitné okná predstavujú súčasnosť a budúcnosť

Okenné profily z kompozitného materiálu RAU-FIPRO X od spoločnosti Rehau sú v porovnaní s tradičnými plastovými profilmi mnohonásobne...

Myotis - stoly 2025

Najnovší sortiment stolov pre zariadenie interiérov...

Priemyselné sklenené priečky Dorsis Digero: svetelné rozhranie pre moderné interiéry

Spojenie moderného dizajnu, funkčnosti a svetla do harmonického architektonického prvku.

Význam prirodzeného svetla pre moderné a flexibilné pracovné prostredie

Kancelárska budova Baumit v slovinskom Trzine prešla premenou na moderné a udržateľné pracovisko. Architekti kládli dôraz...

Konferencia Xella Dialóg predstaví novinky a trendy v stavebníctve

Mottom šiesteho ročníku on-line konferencie odborníkov Xella Dialóg je Efektívny návrh budov 2025+: zmeny a riešenia

Rodinné domy Dobříš (ČR)

Trojica domov ako súčasť prvej etapy developerského projektu na severnom okraji sídla.
Diela
Red 423.09.2019
23580+19
Rodinné domy Dobříš (ČR)
Autori: Ing. arch. Miroslav Stach, Ing. arch. Jana StachováRealizácia: 2018 - 2019Adresa: Za Větrníkem , Dobříš, Česká republikaPublikované: 23. september 2019

Koncept

Developerský projekt v malom meste Dobříš, 30 kilometrov južne od Prahy. Jednoduché objemy doplnené predsadenou drevenou konštrukciou. Zomknutá, účelná dispozícia využívajúca výhľady do krajiny. 

Tri dvojdomy, vznikli ako prvá etapa projektu "Za Větrníkem". Šesť bytových jednotiek vytvára základ rozvíjajúcej sa časti mesta Dobříš.

Foto: Alexandra Timpau
Foto: Alexandra Timpau

Dispozícia

Vstupná časť, na ktorú nadväzuje šatňa, toaleta a pracovňa/hosťovská izba, vedie do obytného priestoru s kuchyňou a jedálňou. Na poschodí sa nachádzajú dve izby s kúpeľňou a samostatné rodičovské krídlo so spálňou, šatňou a vlastnou hygienou. 

Axonometria,
Axonometria,autor: Boq architekti s.r.o.
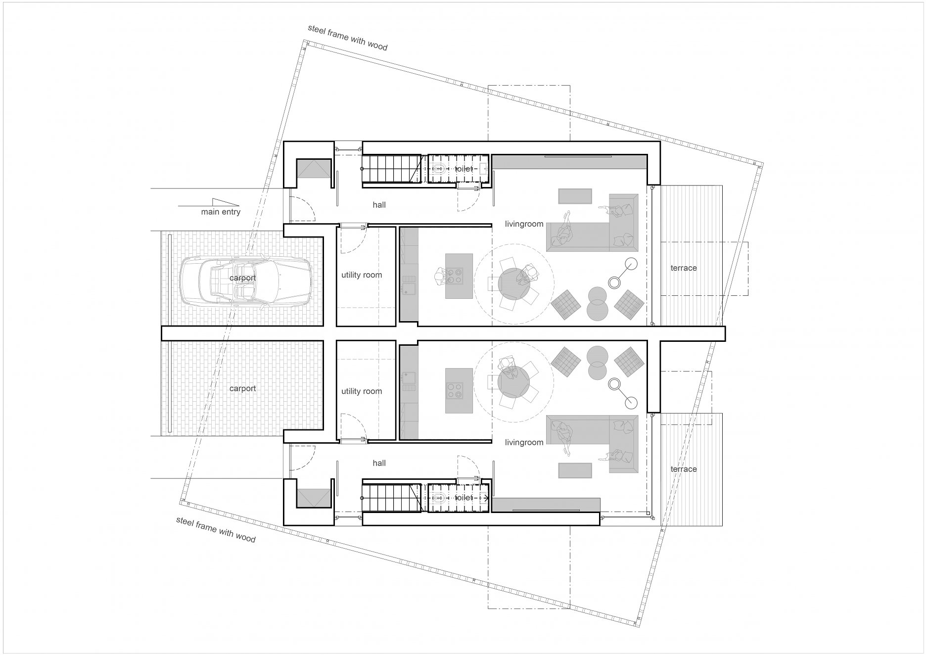
Pôdorys prízemia,
Pôdorys prízemia,autor: Boq architekti s.r.o.
Pôdorys poschodia,
Pôdorys poschodia,autor: Boq architekti s.r.o.
Rez,
Rez,autor: Boq architekti s.r.o.

Architekti dôsledne pracovali so vzťahom interiér/exteriér. Takmer každá miestnosť v dome má výstup na terasu či balkón.

Foto: Alexandra Timpau
Foto: Alexandra Timpau
Foto: Alexandra Timpau
Foto: Alexandra Timpau

Kocka v kocke

Ako zabezpečiť súkromie obyvateľom dvojdomov, ktoré sú súčasťou rozvíjajúcej sa lokality?

Výrazným prvkom projektu je predsadená oceľová konštrukcia s drevenou výplňou. Vonkajší plášť je voči hlavnej "obytnej kocke" pootočený. Vytvára pohľadovú bariéru, ktorá zabezpečuje majiteľom dodatočné súkromie. Zároveň slúži ako efektívne tienenie a vytvára dodatočné skladové priestory.

Foto: Alexandra Timpau
Foto: Alexandra Timpau
Foto: Alexandra Timpau
Foto: Alexandra Timpau
Foto: Alexandra Timpau
Foto: Alexandra Timpau
Foto: Alexandra Timpau
Foto: Alexandra Timpau
Foto: Alexandra Timpau
Foto: Alexandra Timpau
Foto: Alexandra Timpau
Foto: Alexandra Timpau
Foto: Alexandra Timpau
Foto: Alexandra Timpau
Foto: Alexandra Timpau
Foto: Alexandra Timpau
Foto: Alexandra Timpau
Foto: Alexandra Timpau

Poloha diela

Ing. arch. Miroslav Stach
Ing. arch. Jana Stachová
Vložené
19. september 2019
0
2358
Hlavný obsahHlavný obsah
Čakajte prosím