Okenné profily z kompozitného materiálu RAU-FIPRO X od spoločnosti Rehau sú v porovnaní s tradičnými plastovými profilmi mnohonásobne...
Najnovší sortiment stolov pre zariadenie interiérov...
Spojenie moderného dizajnu, funkčnosti a svetla do harmonického architektonického prvku.
Kancelárska budova Baumit v slovinskom Trzine prešla premenou na moderné a udržateľné pracovisko. Architekti kládli dôraz...
Mottom šiesteho ročníku on-line konferencie odborníkov Xella Dialóg je Efektívny návrh budov 2025+: zmeny a riešenia
Robot WLTR predstavuje moderný prístup k murovaným konštrukciám. Vďaka automatizácii dokáže rýchlo, presne a bezpečne realizovať...
Okrem bezpečnosti majú okná aj elegantný vzhľad, pretože nie sú viditeľné žiadne uzamykacie časti kovania.
Dvere MASTER v skrytej zárubni AKTIVE je možné vyrobiť až do výšky 3 700 mm
Internorm stavia na energetickú efektívnosť a inteligentné tieniace riešenia.
Pohľad na moderné prístupy k výrobe s dôrazom na udržateľnosť.
Slovensko vo výbere zastupuje šesť realizácií.
Spoločnosť Internorm odteraz stavia na novej variante tepelnoizolačného skla od AGC, ktorá v produkcii ročne ušetrí 10...
Jubilejný 20. ročník prestížnej medzinárodnej súťaže pre študentov architektúry priniesol...
Otočné a posuvné dvere MASTER od podlahy až po strop, ponúkajú mimoriadnu variabilitu výšky, materiálu a zladenia so skrytými...
Predstavené produkty, spájajú premyslený dizajn, funkčnosť a udržateľnosť. Nábytok Materia vzniká s cieľom podporiť inšpiratívne stretnutia...

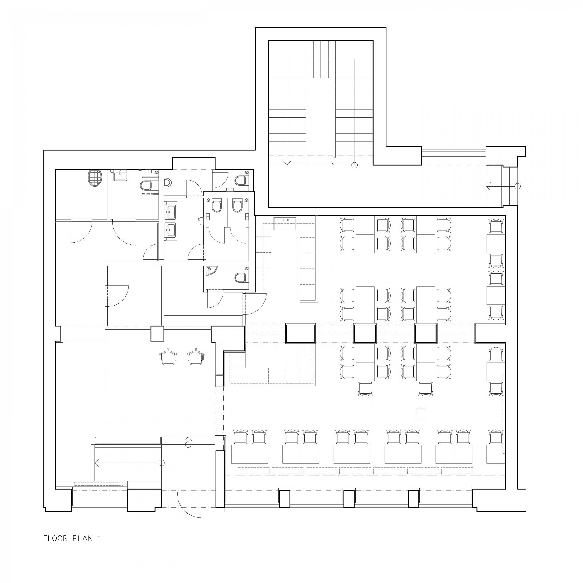
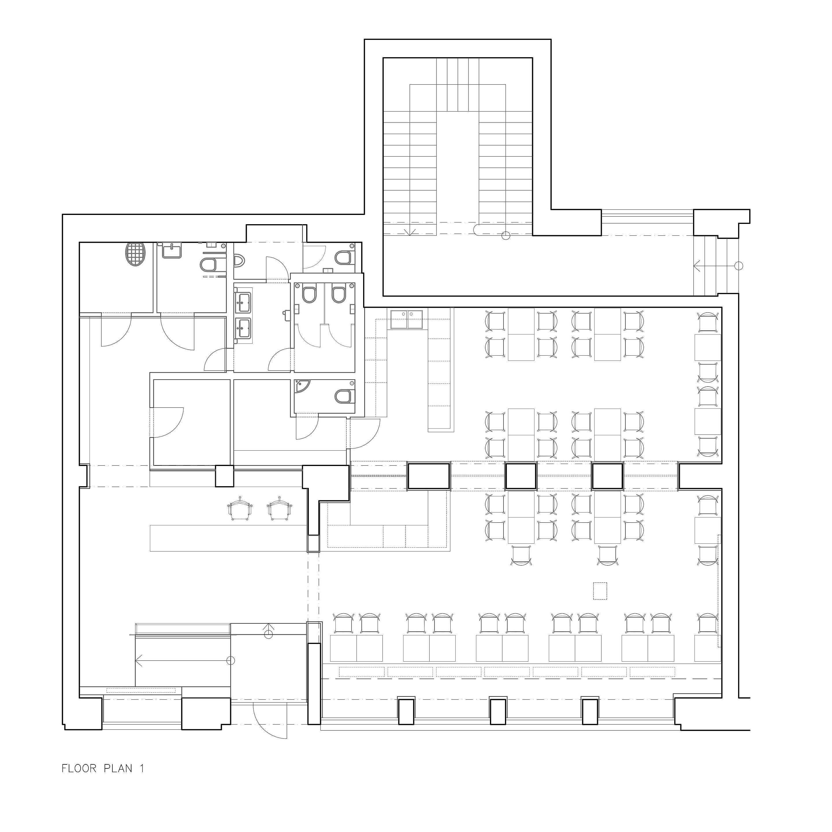
Interiér informačného centra a klubu funguje ako multifunkčný priestor, kde môžu študenti tráviť čas mimo vyučovania. Klub sa vo večerných hodinách mení na auditórium, kino, koncertné miesto…
Dôležitou súčasťou rekonštrukcie bolo vytvorenie bezbariérového vstupu na toaletu v kontexte pamiatkovo chráneného objektu. Vchod, znížený do úrovne ulice, prepája s klubom krátka rampa a dva schodiskové stupne.
Priestor klubu je rozdelený na dve pozdĺžne miestnosti. V prvej sa konajú všetky sprievodné akcie, zatiaľ čo druhá je koncipovaná ako cateringový priestor.
Hlavný akcent pri vstupe tvorí transparentná mreža, ktorá nahrádza zábradlie a predeľovací múrik. V pôvodnom stave bola zadná miestnosť klubu iba tmavým kútom bez denného svetla. Zmenu znamenalo vytvorenie troch nových otvorov v miestach nefunkčných komínov. Vznikol tak charakteristický interiérový prvok – moderná arkáda, ktorá prepája obe funkčné celky.
Motív mreže sa opätovne objavuje aj v otvoroch novej arkády. Tehlovú stenu, odhalenú počas výstavy, sa rozhodli architekti zachovať ako pohľadovú. Podlaha z liateho terazza opticky zjednocuje priestor. Trvácny materiál má potenciál dlhodobo “prežiť”.