Advertorial

Hotel Hirschen Spa House, Rakúsko

Novotvar v prostredí alpskej obce.

Vytvorte si kúpeľňu snov: dizajnové riešenie od značky hansgrohe

Hansgrohe - prémiová značka kúpeľňových riešení, ponúka nadčasový dizajn, technickú precíznosť a udržateľné inovácie...

Okná Internorm za minuloročné ceny + hliníkový kryt zdarma!

Využite špeciálnu akciu Internorm: okná za minuloročné ceny a hliníkový kryt úplne zadarmo. Ponuka je časovo obmedzená!

Pozvánka na 2. ročník stavebného veľtrhu BigMarket na Slovensku

Na podujatí sa predstaví až 37 vystavovateľov - popredných dodávateľov stavebných materiálov a inovácií s prezentáciou...

Moderné plynové technológie: Efektivita a inovácie pre 21. storočie

Sumarizácia najdôležitejších inovácií, ktoré redefinujúcich využitie tohto energetického zdroja.

Utesňovanie spodných stavieb pomocou hydro-aktívnej fólie AMPHIBIA.

AMPHIBIA 3000 GRIP 1.3 od spoločnosti ATRO predstavuje modernú hydroizolačnú technológiu, ktorá spája vysokú odolnosť,...

Dekarbonizácia individuálneho vykurovania domácností – Green Deal evolučne a nie revolučne

Ambiciózne plány EK narazili na ekonomické možnosti domácností v jednotlivých členských štátoch –...

Minimalistické dvere IDEA – technická precíznosť a čistota prevedenia

IDEA DOOR od spoločnosti JAP prináša do interiéru čistý minimalistický vzhľad vďaka bezrámovému riešeniu a precíznej...

Dom s výhľadom na údolie, Dlouhý Most (ČR)

Kontinuita riešenia od vonkajšieho obkladu až po kovania a kľučky.

Schell Vitus – osvedčené riešenie pre sprchy a umývadlá vo verejnom sektore s viac ako desaťročnou tradíciou

Nástenné nadomietkové armatúry Vitus sú mimoriadne vhodné pre rýchlu a efektívnu...

Kompozitné okná predstavujú súčasnosť a budúcnosť

Okenné profily z kompozitného materiálu RAU-FIPRO X od spoločnosti Rehau sú v porovnaní s tradičnými plastovými profilmi mnohonásobne...

Myotis - stoly 2025

Najnovší sortiment stolov pre zariadenie interiérov...

Priemyselné sklenené priečky Dorsis Digero: svetelné rozhranie pre moderné interiéry

Spojenie moderného dizajnu, funkčnosti a svetla do harmonického architektonického prvku.

Význam prirodzeného svetla pre moderné a flexibilné pracovné prostredie

Kancelárska budova Baumit v slovinskom Trzine prešla premenou na moderné a udržateľné pracovisko. Architekti kládli dôraz...

Konferencia Xella Dialóg predstaví novinky a trendy v stavebníctve

Mottom šiesteho ročníku on-line konferencie odborníkov Xella Dialóg je Efektívny návrh budov 2025+: zmeny a riešenia

Zadunajský mezonet, Bratislava

Precízny interiér, efektívne využitie priestoru.
Diela
Red 324.05.2021
30160+61
Zadunajský mezonet, Bratislava
Autori: Ing. arch. René Baranyai, Ing. arch. Peter GašparPodlažná plocha: 125 m2Návrh: 2018 - 2018Realizácia: 2019 - 2020Adresa: Bratislava, SlovenskoPublikované: 24. máj 2021

Mezonetový byt s výmnerou 125 m2, netradičným asymetrickým pôdorysom a rozsiahlou terasou s výhľadom na Bratislavský hrad. Návrh ateliéru RB ARCHITECTS sa nesie v duchu efektívneho využitia priestoru, s dôrazom na dostatok úložných kapacít. Kompletná infraštruktúra bytu je integrovaná do zjednotených nábytkových celkov. Precízne detaily vyzdvihujú čistotu riešenia a materiálovú kompozíciu.

Foto: Matej Hakár

Do Bytu sa vstupuje na nižšom podlaží, kde sú situované spálne s kúpeľňami. Dvojramenné schodisko vedie do dennej zóny bytu s hosťovskou izbou. Všetky miestnosti na poschodí sú priamo prepojené s rozsiahlou terasou s výhľadom na hrad. 

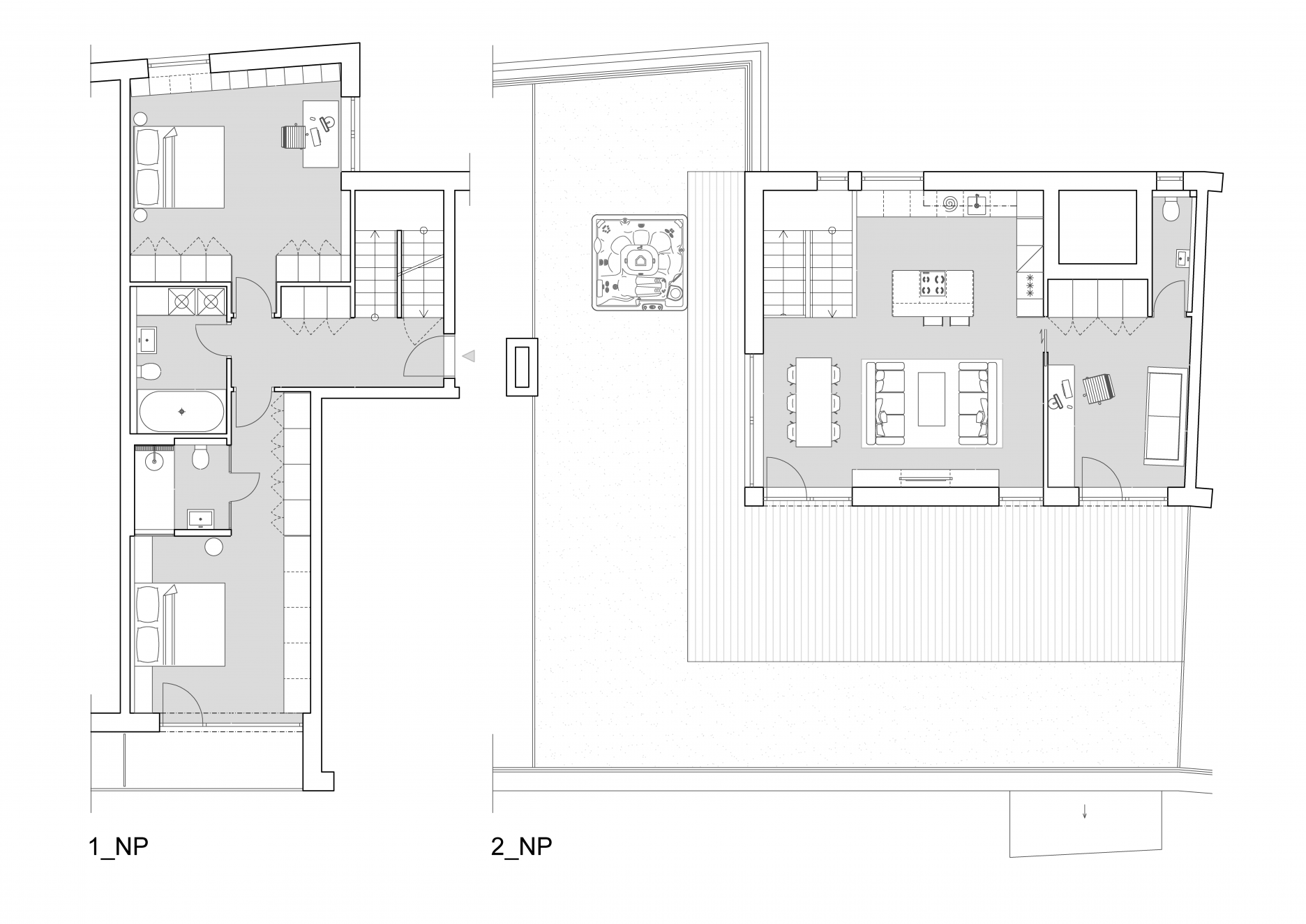
Pôdorysy
PôdorysyAutor: RB Architects

Interiér mezonetu pre trojčlennú domácnosť bol navrhnutý s tým, že sa v ňom budú pohybovať aj dva psy, čomu boli prispôsobené podlahy a steny.

Foto: Matej Hakár

Základnú farebnú schému tvoria svetlosivé a čierne povrchy, kombinované s prírodnou kresbou dubového dreva. Ostatné farby majú zastúpenie len v drobných akcentoch. 

Foto: Matej Hakár
Foto: Matej Hakár

Podlahy s mikro-cementovými stierkami dopĺňajú cementové stierky na stenách. Väčšina mobiliáru je robená na mieru, prírodnú dyhu dopĺňa čierna striekaná MDF doska.

Foto: Matej Hakár
Foto: Matej Hakár
Foto: Matej Hakár

Medzi atypické detaily patria bezfalcové hliníkové dvere, so skrytými rámami a zladená povrchová úprava krídel (z jednej strany striekané a z druhej strany omietnuté stierkou, alebo dyhované a striekané z opačnej), ktoré sa stávajú súčasťou jednoliatych plôch v interiéri. Kľučky umožňujú zamykanie priamo na madle - bez rozety.

Foto: Matej Hakár
Foto: Matej Hakár
Foto: Matej Hakár

Sklenené priečky Dorsis DIGERO aj napriek subtílnemu profilu plnia akustickú funkciu pri oddelení dennej a nočnej zóny

Foto: Matej Hakár
Foto: Matej Hakár

Jedálenský stôl je vyrobený na mieru s doskou Lapitec, ktorá našla uplatnenie aj na kuchynskej linke.

Foto: Matej Hakár
Foto: Matej Hakár

Pri vstupe, v detskej kúpeľni a hosťovskom WC použili architekti napnuté svietiace stropy.

Foto: Matej Hakár
Foto: Matej Hakár

Podklady: RB ARCHITECTS
Foto: Matej Hakár
Použité materiály a riešenia:
Deliace sklenené priečky Dorsis DIGERO,
Realizácia interiéru WOOD & INTERIERS., MDF striekaná v matnom prevedení alebo lesklom Dubová dýha, pracovná doska LAPITEC

Poloha diela

Ing. arch. René Baranyai
Ing. arch. Peter Gašpar
Vložené
22. marec 2021
0
3016
Hlavný obsahHlavný obsah
Čakajte prosím