Na podujatí sa predstaví až 37 vystavovateľov - popredných dodávateľov stavebných materiálov a inovácií s prezentáciou...
Novotvar v prostredí alpskej obce.
Hansgrohe - prémiová značka kúpeľňových riešení, ponúka nadčasový dizajn, technickú precíznosť a udržateľné inovácie...
Využite špeciálnu akciu Internorm: okná za minuloročné ceny a hliníkový kryt úplne zadarmo. Ponuka je časovo obmedzená!
Sumarizácia najdôležitejších inovácií, ktoré redefinujúcich využitie tohto energetického zdroja.
AMPHIBIA 3000 GRIP 1.3 od spoločnosti ATRO predstavuje modernú hydroizolačnú technológiu, ktorá spája vysokú odolnosť,...
Ambiciózne plány EK narazili na ekonomické možnosti domácností v jednotlivých členských štátoch –...
IDEA DOOR od spoločnosti JAP prináša do interiéru čistý minimalistický vzhľad vďaka bezrámovému riešeniu a precíznej...
Kontinuita riešenia od vonkajšieho obkladu až po kovania a kľučky.
Nástenné nadomietkové armatúry Vitus sú mimoriadne vhodné pre rýchlu a efektívnu...
Okenné profily z kompozitného materiálu RAU-FIPRO X od spoločnosti Rehau sú v porovnaní s tradičnými plastovými profilmi mnohonásobne...
Najnovší sortiment stolov pre zariadenie interiérov...
Spojenie moderného dizajnu, funkčnosti a svetla do harmonického architektonického prvku.
Kancelárska budova Baumit v slovinskom Trzine prešla premenou na moderné a udržateľné pracovisko. Architekti kládli dôraz...
Mottom šiesteho ročníku on-line konferencie odborníkov Xella Dialóg je Efektívny návrh budov 2025+: zmeny a riešenia

Zážitkové ubytovanie v jelšavskom kaštieli Coburgovcov je oficiálne otvorené.
Iniciatíva združenia Čierne diery, ktorú do realizácie pretavil ateliér 2021 architekti v spolupráci s Dielňou Haus, už od začiatku vzbudzovala značnú pozornosť a diskusiu. V našich končinách ojedinelý koncept záchrany kultúrneho dedičsta prostredníctvom dočasnej zážitkovej intervencie odmenila porota CE ZA AR 2022 hlavnou cenou v kategórii "Fenomény architektúry". O rok neskôr sa dielo ocitlo aj v slovenských nomináciách na Ceny Európskej únie za súčasnú architektúru EU Mies Award.
V pozadí projektu stála otázka, ktorá je často existenčná pre mnohé subjekty v dlhodobo podvýživenej oblasti obnovy pamiatkovej starostlivosti:
Ako pristupovať s obmedzenými prostriedkami, ktoré neumožňujú komplexnú rekonštrukciu k záchrane historického a kultúrneho dedičstva?
Odpoveďou iniciátorov projektu je vtiahnutie návštevníkov do deja. Vytvorenie dočasnej - reverzibilnej platformy, ktorá umožní sledovať proces obnovy a vnímať neporušené dobové vrstvy "z prvého radu". Nové vložené konštrukcie, minimálne zasahujúce do pôvodných stavebných konštrukcií, tvoria komfortné zázemie pre takmer "urbexový" zážitok.
Realizáciu podrobnejšie predstavujeme so sprievodným textom ateliéru 2021 architekti:
Na Slovensku chátrajú desiatky kaštieľov a na obnovu mnohých sa nikdy nenájdu potrebné milióny eur. To však neznamená, že sa s nimi nedá pracovať inými spôsobmi. Združenie Čierne diery vytvorilo v spolupráci s nami v Jelšave koncept zážitkovej expozície. Prenajali si schátranú časť kaštieľa Coburgovcov, pre ktorú nebol žiadny projektový zámer, a dovnútra umiestnili presklené bunky. Zničené časti sprístupnili lávkami zo surového kovu. Mestu dokonca zasponzorovali aj bleskozvod. Návštevníci si tak môžu rezervovať noc v kaštieli a zažiť všetky jeho vrstvy v autentickej podobe od výzdoby z 18. storočia až po surové zásahy socializmu.
Jelšava sa nachádza v historickom regióne Gemera, ktorý bol železorudným centrom bývalej monarchie. Medzi podnikateľov v priemysle patrila aj šľachtická rodina Coburgovcov, ktorá si v kaštieli zo 17. storočia zriadila sídlo lesnej správy. S úpadkom ťažby a dejinnými zvratmi sa však Gemer stal jedným z menej rozvinutých regiónov s vysokou nezamestnanosťou. Veľké množstvo historických budov sa tu zachovalo nie vďaka pamiatkovej ochrane, ale najmä preto, že neboli financie na ich (necitlivú) prestavbu alebo zbúranie.
Coburgovský kaštieľ je výsledkom mnohých etáp prestavieb a deštrukcií od 17. storočia až po socializmus. Po zoštátnení sa z administratívno-hospodárskeho sídla šľachty stalo poľnohospodárske učilište. V tom čase boli urobené vhodné aj nevhodné stavebné zásahy. Miestnosti s klenbovými stropmi boli predelené na drobné izby s priečkami, miestami bol osadený sklobetón, niektoré podlahy boli zaliate betónom. Kaštieľ bol postupne „vybývaný“ a od 70. rokov 20. storočia začal chátrať. Bez náplne zostal aj po tom, ako mu koncom 80. rokov kompletne obnovili krov a osadili medenú strešnú krytinu. Práve z tohto obdobia sú na najvyšších podlažiach kaštieľa stropy z oceľových nosníkov a trapézového plechu, ako aj ruby klenieb zaliate betónom a spevnené železobetónovými rebrami. Bez využitia sa kaštieľ stal terčom vandalov, ktorí rozkradli medenú krytinu. Dovnútra začalo zatekať a niektoré klenby sa prepadli.
Proces degradácie sa podarilo zastaviť až v roku 2015, keď sa mesto zapojilo do štátneho programu obnovy nehnuteľných pamiatok s pomocou dlhodobo nezamestnaných, najmä miestnych Rómov. Obnovili strešnú krytinu, vyčistili priestory a urobili drobné murárske zásahy. Pod vedením koordinátorky Viery Kozárovej už od začiatku chápali, že kaštieľ je potrebné prezentovať verejnosti a usporadúvať v ňom podujatia. Nový koncept zážitkového ubytovania tieto aktivity ešte rozvinie - návštevníci sa stanú svedkami alebo dokonca priamymi účastníkmi premeny kaštieľa. Bunky sú otvorené pre kohokoľvek za dobrovoľný príspevok na ďalšiu údržbu a rekonštrukciu kaštieľa.
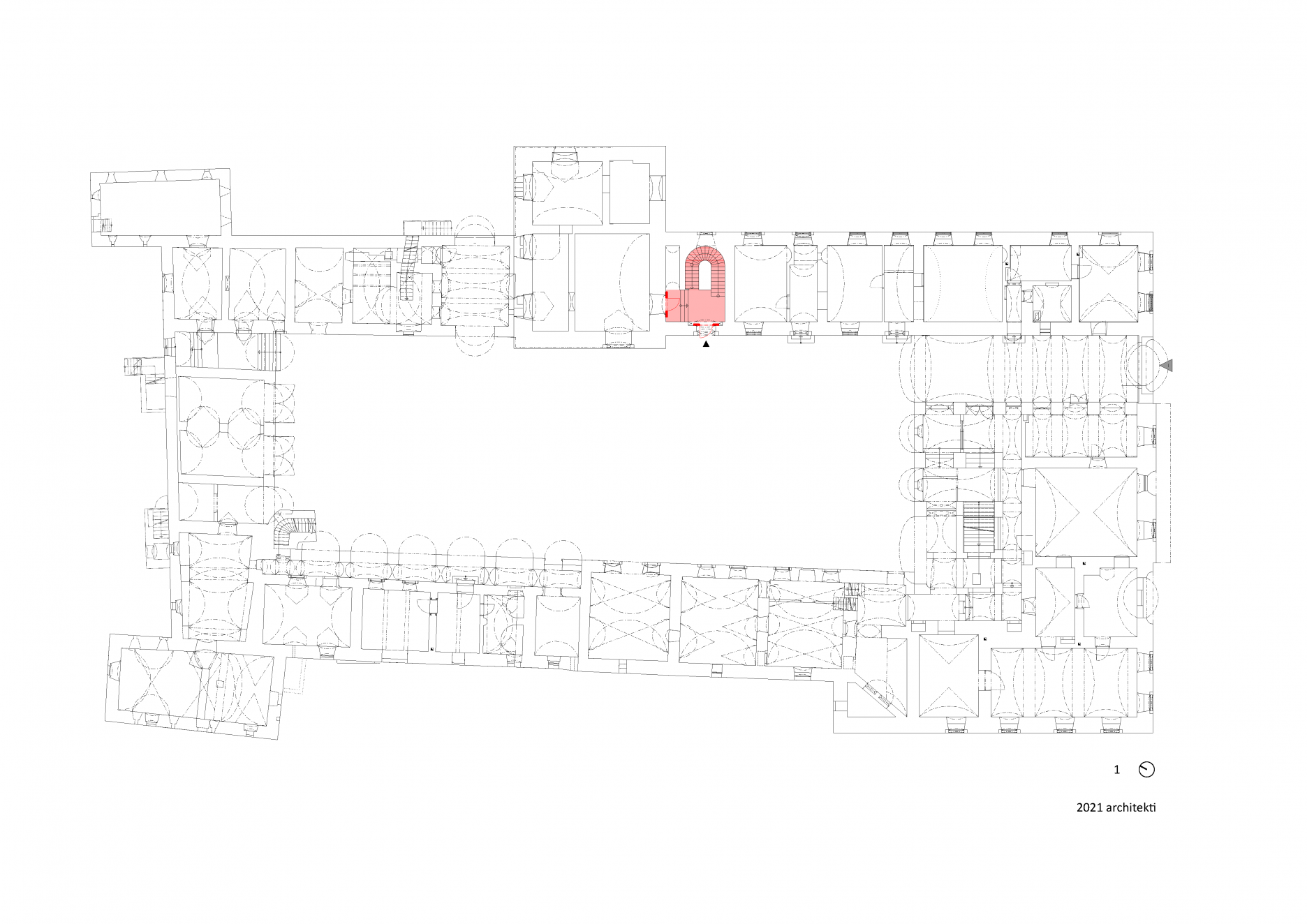
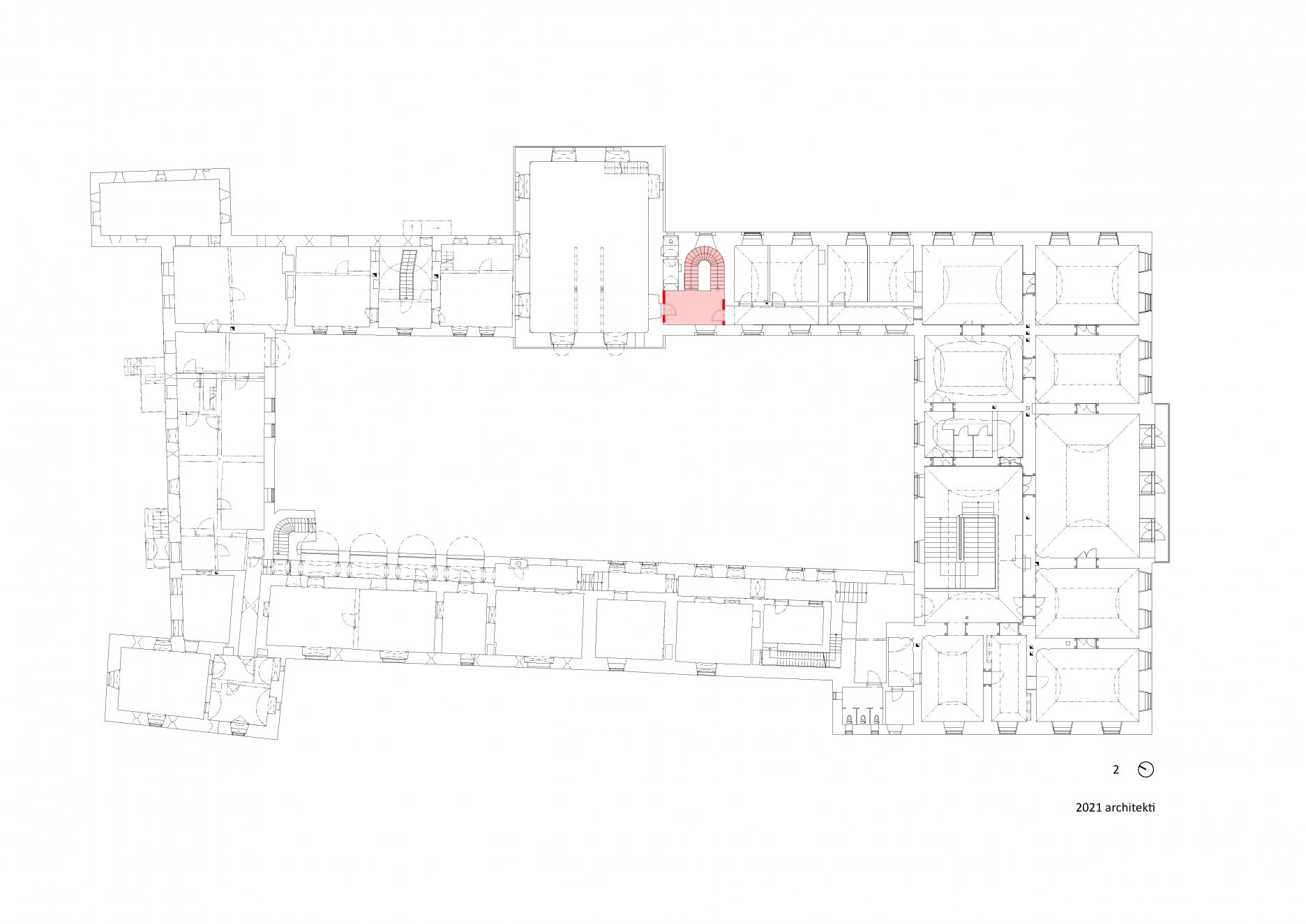
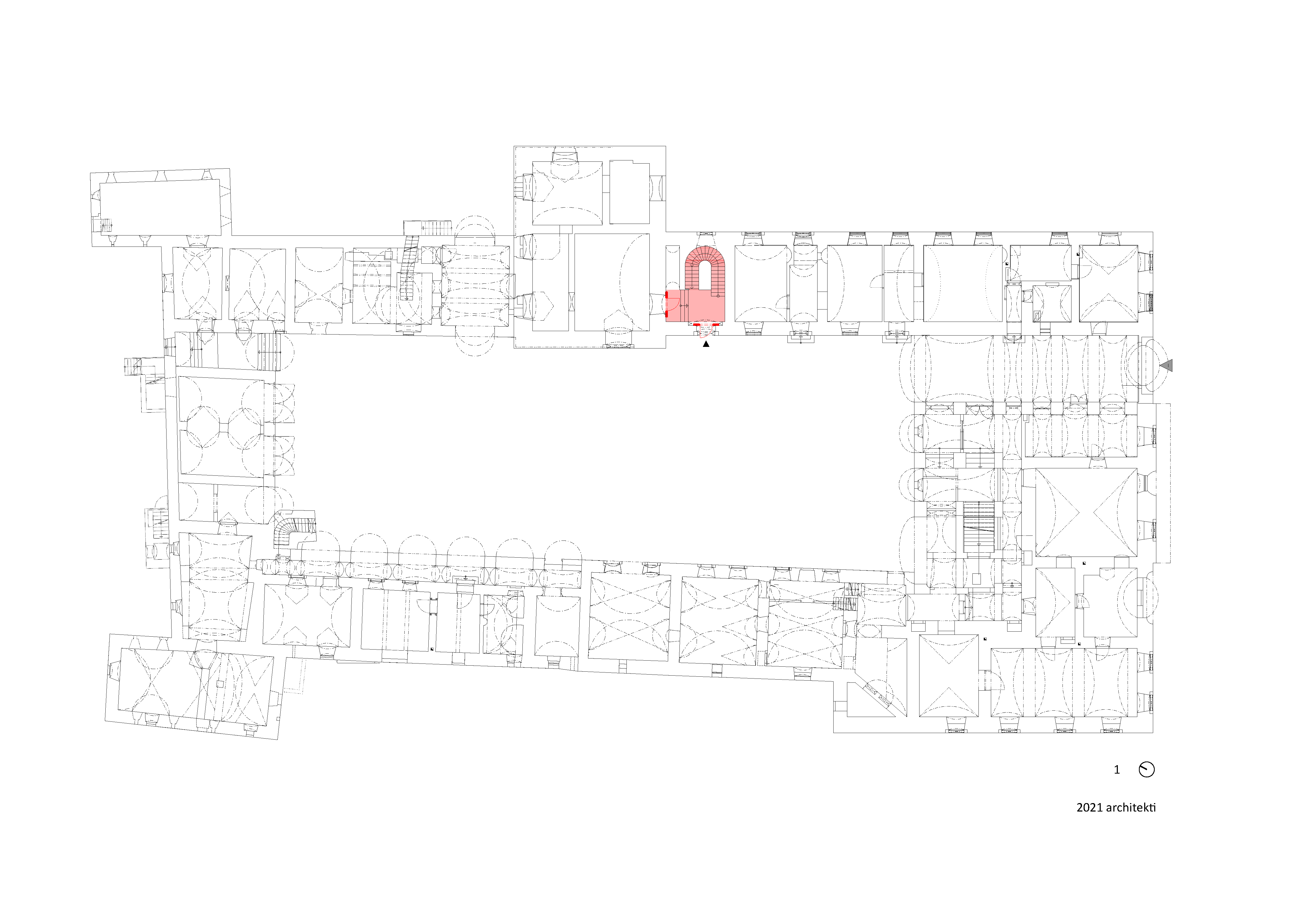
Občianske združenie Čierne diery sa od roku 2014 venuje popularizácii a záchrane architektonických pamiatok vydávaním grafík a kníh. Tisíce zberateliek a zberateľov im umožňujú angažovať sa aj finančne, čo im umožnilo podporiť aktivity v kaštieli Coburgovcov. Našou úlohou bolo najprv určiť časť kaštieľa vhodnú na prenájom od Mesta Jelšava. Ako logické sa nám zdalo vybrať krídlo, v ktorom sme vnímali priestor a vrstvenie stavebných etáp ako najzaujímavejšie, v ktorom nebola pripravovaná pamiatková obnova a ktoré bežní návštevníci nemali možnosť vidieť.
Navrhli sme koncept, v ktorom návštevník vidí národnú kultúrnu pamiatku v surovom stave bez príkras. Prichádza po obitom kamennom schodisku, po chodbe bez zasklení okenných otvorov, ponad prepadnuté klenby až do veže, z ktorej vidno na všetky svetové strany. Bunky poskytujú základný komfort v štandarde turistickej útulne, ale s luxusom, ako je sprcha s teplou vodou a kuchynka. Celkovo je vnútri miesto pre šesť ľudí.
Súčasťou zážitku je aj umelecké dielo Martina Piačeka s názvom Abakus. Návštevníci v rámci skúmania kaštieľa objavia najprv štyri prázdne miestnosti prepojené tromi kruhovými otvormi. A keď sa dostanú k jame, ktorá vznikla v minulosti pri chátraní kaštieľa zrútením dvoch podlaží, uvidia na jej dne bielu plochu elipsovitého tvaru. Na tejto ploche sa s oneskorením premieta záznam ich samotných, ako sa pohybovali po miestnostiach kaštieľa, ako ozvenu predošlej chvíle.
Naše vstupy do budovy boli realizované citlivo a reverzibilne. Bunky a mosty (takmer) nezasahujú do stavebných konštrukcií budovy a umožňujú priebežnú obnovu kaštieľa v budúcnosti.
O projekte:
Návrh: 2019 - 2022
Realizácia: 2020 - 2022
Miesto: Jelšava, kaštieľ Coburgovcov
Investori: Čierne diery (Martin Lipták, Lívia Gažová)
Architekti: 2021 (Peter Lényi, Ondrej Marko, Marián Lucký, Lenka Borecká)
Spoluautori dizajnu buniek a stolárske práce: Dielňa Haus (Matúš Šestina, Miroslav Šestina)
Svetelný dizajn: LightLab (Laura Murguía Sánchez, Lenka Balážová), Michal Kačmár
Statika: František Hladký
Zámočnícke práce: Mapeka
Umelecké dielo: Martin Piaček
Spolupráca: Mesto Jelšava, Oblastná organizácia cestovného ruchu Gemer, Rozvojová agentúra Banskobystrického samosprávneho kraja
Partneri: Aukčná spoločnosť SOGA, Jaf Holz Slovakia, Coburgovská železná cesta, rodina Sabolová
Fotografie: Matej Hakár a Diana Dobrescu