Využite špeciálnu akciu Internorm: okná za minuloročné ceny a hliníkový kryt úplne zadarmo. Ponuka je časovo obmedzená!
Na podujatí sa predstaví až 37 vystavovateľov - popredných dodávateľov stavebných materiálov a inovácií s prezentáciou...
Sumarizácia najdôležitejších inovácií, ktoré redefinujúcich využitie tohto energetického zdroja.
AMPHIBIA 3000 GRIP 1.3 od spoločnosti ATRO predstavuje modernú hydroizolačnú technológiu, ktorá spája vysokú odolnosť,...
Ambiciózne plány EK narazili na ekonomické možnosti domácností v jednotlivých členských štátoch –...
IDEA DOOR od spoločnosti JAP prináša do interiéru čistý minimalistický vzhľad vďaka bezrámovému riešeniu a precíznej...
Kontinuita riešenia od vonkajšieho obkladu až po kovania a kľučky.
Nástenné nadomietkové armatúry Vitus sú mimoriadne vhodné pre rýchlu a efektívnu...
Okenné profily z kompozitného materiálu RAU-FIPRO X od spoločnosti Rehau sú v porovnaní s tradičnými plastovými profilmi mnohonásobne...
Najnovší sortiment stolov pre zariadenie interiérov...
Spojenie moderného dizajnu, funkčnosti a svetla do harmonického architektonického prvku.
Kancelárska budova Baumit v slovinskom Trzine prešla premenou na moderné a udržateľné pracovisko. Architekti kládli dôraz...
Mottom šiesteho ročníku on-line konferencie odborníkov Xella Dialóg je Efektívny návrh budov 2025+: zmeny a riešenia
Robot WLTR predstavuje moderný prístup k murovaným konštrukciám. Vďaka automatizácii dokáže rýchlo, presne a bezpečne realizovať...
Okrem bezpečnosti majú okná aj elegantný vzhľad, pretože nie sú viditeľné žiadne uzamykacie časti kovania.

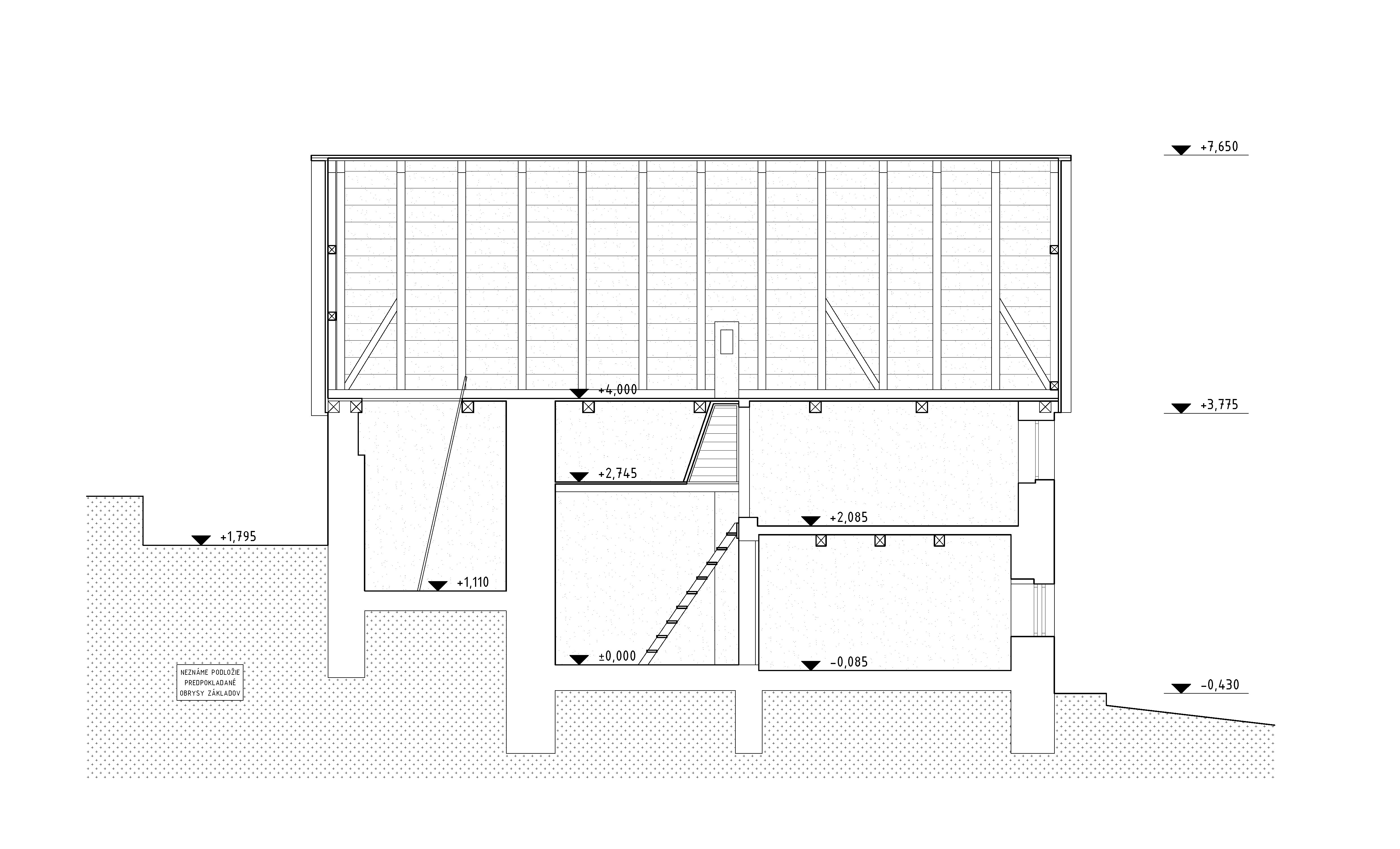
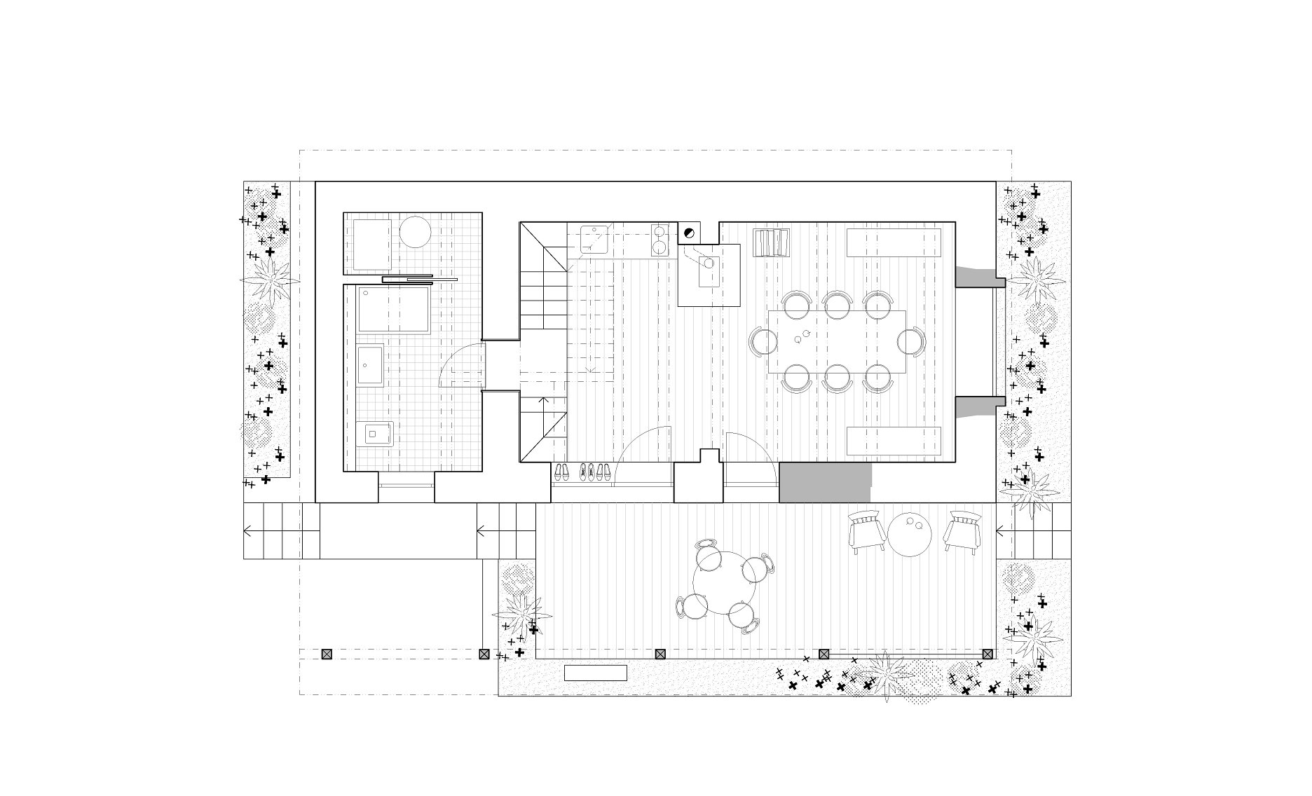
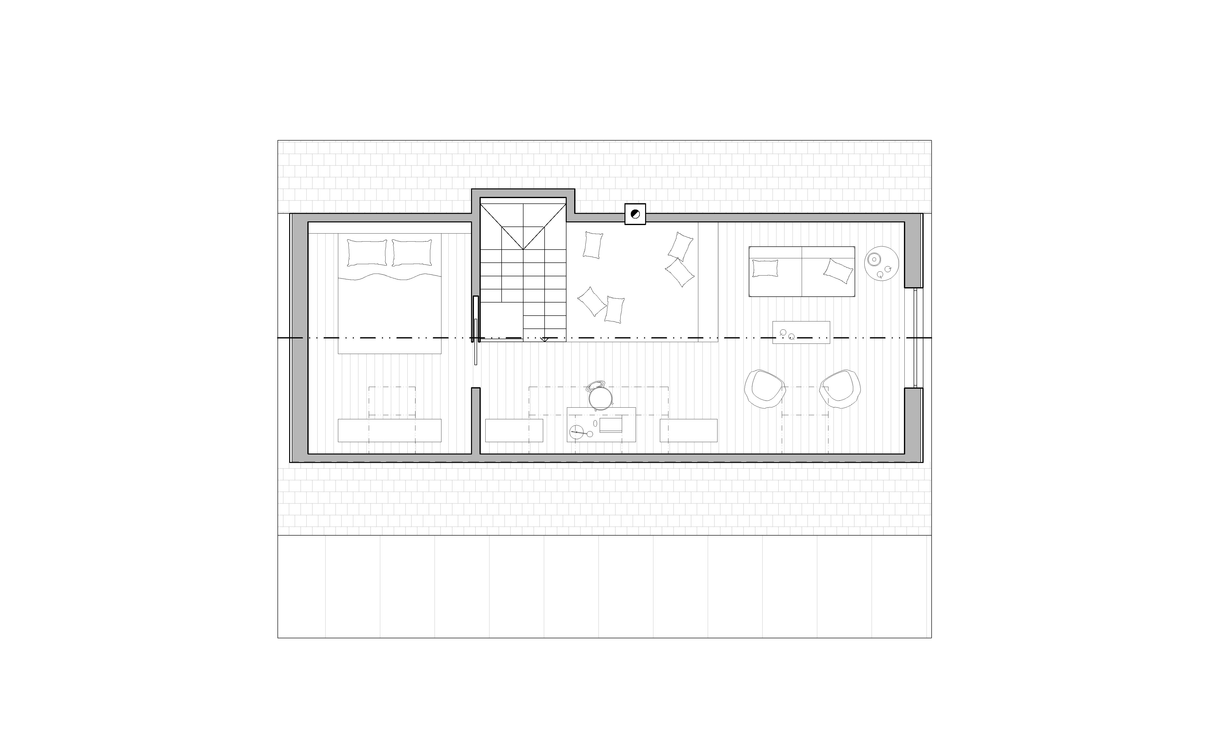
Aktuálna realizácia Ateliéru HAUS citlivo pristupuje k zdedeným východiskám a na solídnom základe rozvíja koncept súdobého rekreačného bývania. Realizáciu okrem nového praktického priestorového usporiadania charakterizuje cit autorov pre remeselné riešenie detailov na mieru. Aj pri výraznom otvorení pôvodného priestoru a jeho prepojení s prírodným prostredím sa autorom podarilo zachovať esenciu pôvodnej stavebnej štruktúry.
Realizáciu bližšie predstavia autori:
Projekt rekonštrukcie starého vidieckeho domu na chalupu je v slovenskom kontexte častým zadaním. Domy zdedené po predkoch v dedinách sa transformujú z tradičnej vidieckej architektúry s hospodárstvom alebo ovocným sadom na víkendové sídla potomkov sťahujúcich sa za prácou do mestských sídiel.
Mnohé objekty sú v zlom technickom stave ale s výrazným charakterom dedičstva vidieckej architektúry a atmosférou objektov, kedy architektúra bola racionálna a jednoduchá. Slúžila obyvateľom pre základné potreby a starostlivosť o záhradu a statok. V našom návrhu sa snažíme priniesť náš názor na citlivú rekonštrukciu tradičnej vidieckej stavby, ktorá harmonicky prepája historický charakter so súčasnými architektonickými prvkami.
Obec Červený Kameň, v ktorej sa nachádza objekt je typickou údolnou obcou vinúcou sa dolinou popri hlavnej ulici. Okolitá krajina je formovaná prírodou Bielych Karpát, ktoré dotvárajú pokojný ráz vidieckeho prostredia. Chalupa slúži ako rekreačné bývanie pre rodinu a ich priateľov, najmä počas víkendov a letnej sezóny.
Prioritou zadania a architektonického návrhu bolo zachovať čo s najväčšou mierou charakter miesta a pôvodného domu.
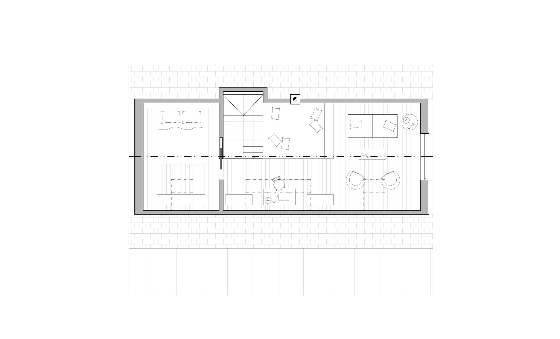
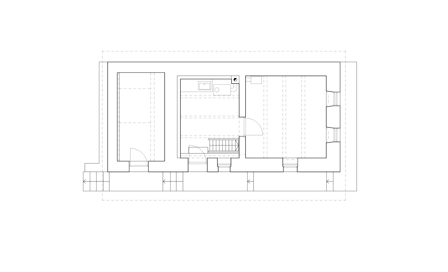
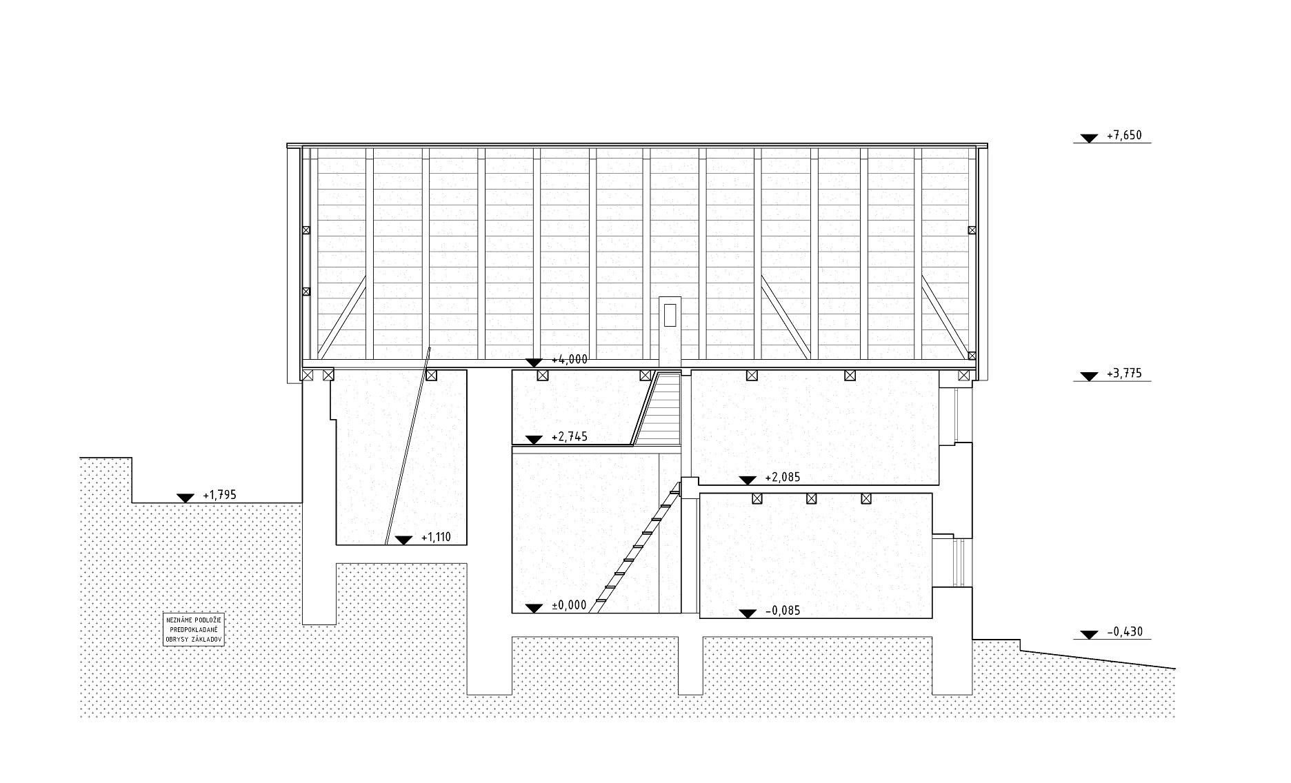
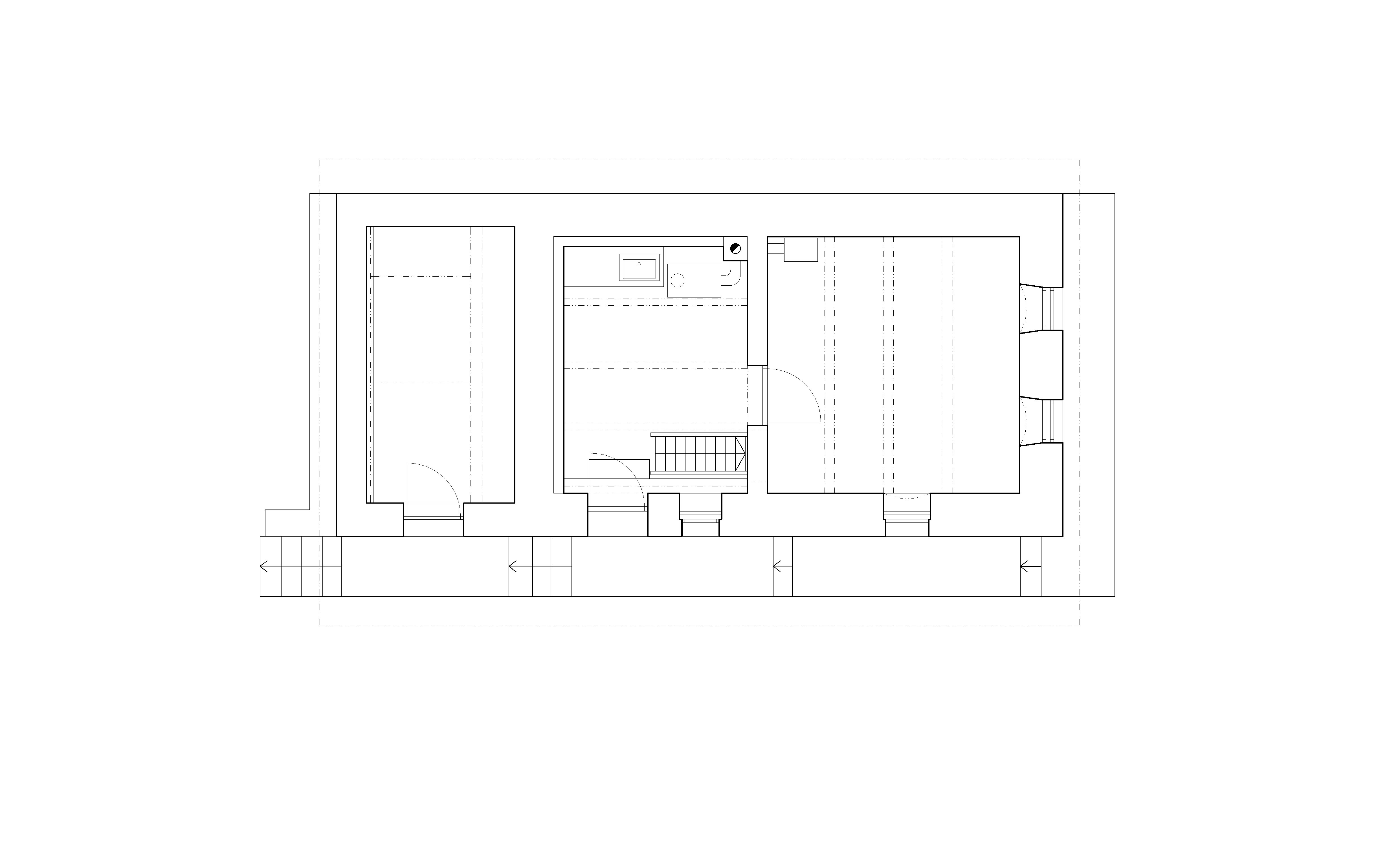
Hlavným východiskom bolo ponechať pôvodnú figúru stavby, pričom úpravy mali byť navrhnuté tak, aby reflektovali potreby súčasného komfortného bývania. Výzvou bolo prepojenie jednotlivých interiérových priestorov s rôznou úrovňou podlahy. Navrhnuté bolo schodisko s medzipodestou pre vstup do kúpelne a následne oceľovým zavesených ramenom prechádzajúcim do nového podkrovia.
Nové priestorové členenie interiéru odkazuje na pôvodný vstavok rímsou po obvode miestnosti. Jedným z hlavných cieľov bolo zároveň viac otvoriť dom záhrade – prostredníctvom nových otvorov, ktoré prepájajú interiér s gánkom a záhradou. Južná fasáda bola navrhnutá tak, aby ponúkala výhľady do okolitej krajiny a na kamenný masív Babky. Z exteriéru ostáva materiálové a výtvarné riešenie chalupy do veľkej miery pôvodné, čím sa rešpektuje jej historická a kultúrna hodnota. Využívajú sa tradičné postupy a materiály.
Odstraňujeme nánosy a vkladáme nový program - víkendové útočisko. Rešpektujeme kontext, vkladáme nové formy, odhaľujeme podstatu a naznačujeme históriu, otvárame dom do záhrady, sprístupňujeme výhľady. Miesto pre pohár dobrého vína s priateľmi a hrudu slovenského parmezánu z neďalekej farmy.
Fotografie pôvodného stavu
Fotografia z procesu rekonštrukcie.
Požité materiály a riešenia:
Pálená Škridla tradičného tvaru - Tondach Steinbrück od spoločnosti Wienerberger
Strešné okná od spoločnosti Velux
Podklady: Ateliér HAUS
Fotografie: Tomáš Ružiak