Sumarizácia najdôležitejších inovácií, ktoré redefinujúcich využitie tohto energetického zdroja.
AMPHIBIA 3000 GRIP 1.3 od spoločnosti ATRO predstavuje modernú hydroizolačnú technológiu, ktorá spája vysokú odolnosť,...
Ambiciózne plány EK narazili na ekonomické možnosti domácností v jednotlivých členských štátoch –...
IDEA DOOR od spoločnosti JAP prináša do interiéru čistý minimalistický vzhľad vďaka bezrámovému riešeniu a precíznej...
Nástenné nadomietkové armatúry Vitus sú mimoriadne vhodné pre rýchlu a efektívnu...
Okenné profily z kompozitného materiálu RAU-FIPRO X od spoločnosti Rehau sú v porovnaní s tradičnými plastovými profilmi mnohonásobne...
Najnovší sortiment stolov pre zariadenie interiérov...
Spojenie moderného dizajnu, funkčnosti a svetla do harmonického architektonického prvku.
Kancelárska budova Baumit v slovinskom Trzine prešla premenou na moderné a udržateľné pracovisko. Architekti kládli dôraz...
Mottom šiesteho ročníku on-line konferencie odborníkov Xella Dialóg je Efektívny návrh budov 2025+: zmeny a riešenia
Robot WLTR predstavuje moderný prístup k murovaným konštrukciám. Vďaka automatizácii dokáže rýchlo, presne a bezpečne realizovať...
Okrem bezpečnosti majú okná aj elegantný vzhľad, pretože nie sú viditeľné žiadne uzamykacie časti kovania.
Dvere MASTER v skrytej zárubni AKTIVE je možné vyrobiť až do výšky 3 700 mm
Internorm stavia na energetickú efektívnosť a inteligentné tieniace riešenia.
Slovensko vo výbere zastupuje šesť realizácií.

Realizáciu predstavíme so sprievodným textom Jakuba Moravčíka, ktorý pôvodne vyšiel v časopise PROJEKT 02/2023:
Areál bývalých Závodov ťažkého strojárstva ZŤS Martin sa po rokoch chátrania opäť postupne prebúdza k životu. Tentokrát nie ako centrum štátom riadenej výroby tankov, lokomotív či traktorov, ale ako priestor pre súkromné podnikanie. Investor na základoch pôvodných liniek postupne stavia nové halové objekty, medzi ktoré patrí aj hala T42, do ktorej nedávno presťahovalo svoju centrálu kníhkupectvo Martinus. Presun o pár sto metrov z priestorov bývalého Kina Mladosť v mestskej časti Podháj výrazne zlepšil dopravné napojenie a logistické možnosti. Vo výrobnom a skladovom areáli zároveň pribudol nájomca, ktorý priniesol "trochu iné" pracovné prostredie, rozšírené o kultúrnu nadstavbu.
Sťahovanie z dvojpodlažného kina do modernej haly
Pôvodná prevádzka v Podháji fungovala na dvoch úrovniach, čo znamenalo fyzické odčlenenie skladu na prízemí od manažmentu a kancelárií na poschodí. Vedenie Martinusu malo jasno v tom, že takejto segregácii sa chce v nových priestoroch vyhnúť. Presklené kancelárie a ďalšie neformálne priestory sú preto priamo prepojené s distribučným skladom. Každý na každého vidí. Manažéri majú prehľad o dianí v sklade. Ľudia zo skladu majú bezprostredný kontakt s manažmentom. Ako môže takéto prostredie fungovať? Priznám sa, že som si to nevedel celkom predstaviť. Realita však ukázala, že Martinus nie je Amazon. Nekonečné rady regálov s pol miliónom kníh totiž neobsluhujú autonómne vozidlá alebo iná mechanizácia. Prepracovaný systém multipozičného skladu umožnil kníhkupectvu spoľahnúť sa výhradne na peší pohyb zamestnancov. Knihy sú uskladňované na viacerých miestach bez striktnej indexácie, len s digitálne zaznamenanou polohou v rámci skladu. Takzvaní "pickeri" následne využívajú aplikáciu, ktorá optimalizuje ich pohyb pri vybavovaní objednávky. Výsledkom je pracovné prostredie s minimom hluku a rušivých vplyvov. Nikto tu nepracuje v montérkach a reflexných vestách. Hala namiesto logistického centra pripomína skôr prerastenú knižnicu.
Kde je priestor pre architektúru?
Úlohou architekta Mareka Rudohradského bolo navrhnúť interiér, dodať realizačný projekt a zastrešiť celú realizáciu. Všetko spomínané sa odohralo v priebehu iba niečo vyše roka. Východisko bolo jasne dané – štandardná priemyselná hala opláštená rastrom sendvičových panelov. Už pri pohľade z exteriéru však cítiť drobné náznaky, že vo vnútri nás môže čakať prekvapenie. Pútač s logom firmy z monolitického betónu a jemné línie treláže určenej pre popínavé rastliny vedú zamestnancov a návštevníkov k hlavnému vstupu. Ten je neprehliadnuteľný. Do otvorenej haly vedie dvojkrídlový portál na celú výšku priestoru. Výrazný akcent vo firemnej farbe pôsobí ako metaforická brána do sveta kníh. Motoricky ovládané krídlo zabezpečuje jednoduchý priechod. Už od vstupu sa zamestnancom a návštevníkom otvára priehľad celým priestorom. Architekt sa rozhodol pôvodné oceľové piliere z čias ZŤS-ky, ktoré tvoria aj základ novej haly, odlíšiť zeleným náterom. Podobne sú v interiéri prezentované aj pôvodné prácne repasované industriálne svietidlá. Nový priestor sa nehanbí za svoju minulosť. Naopak, dáva jasne najavo svoju pôvodnú funkciu.
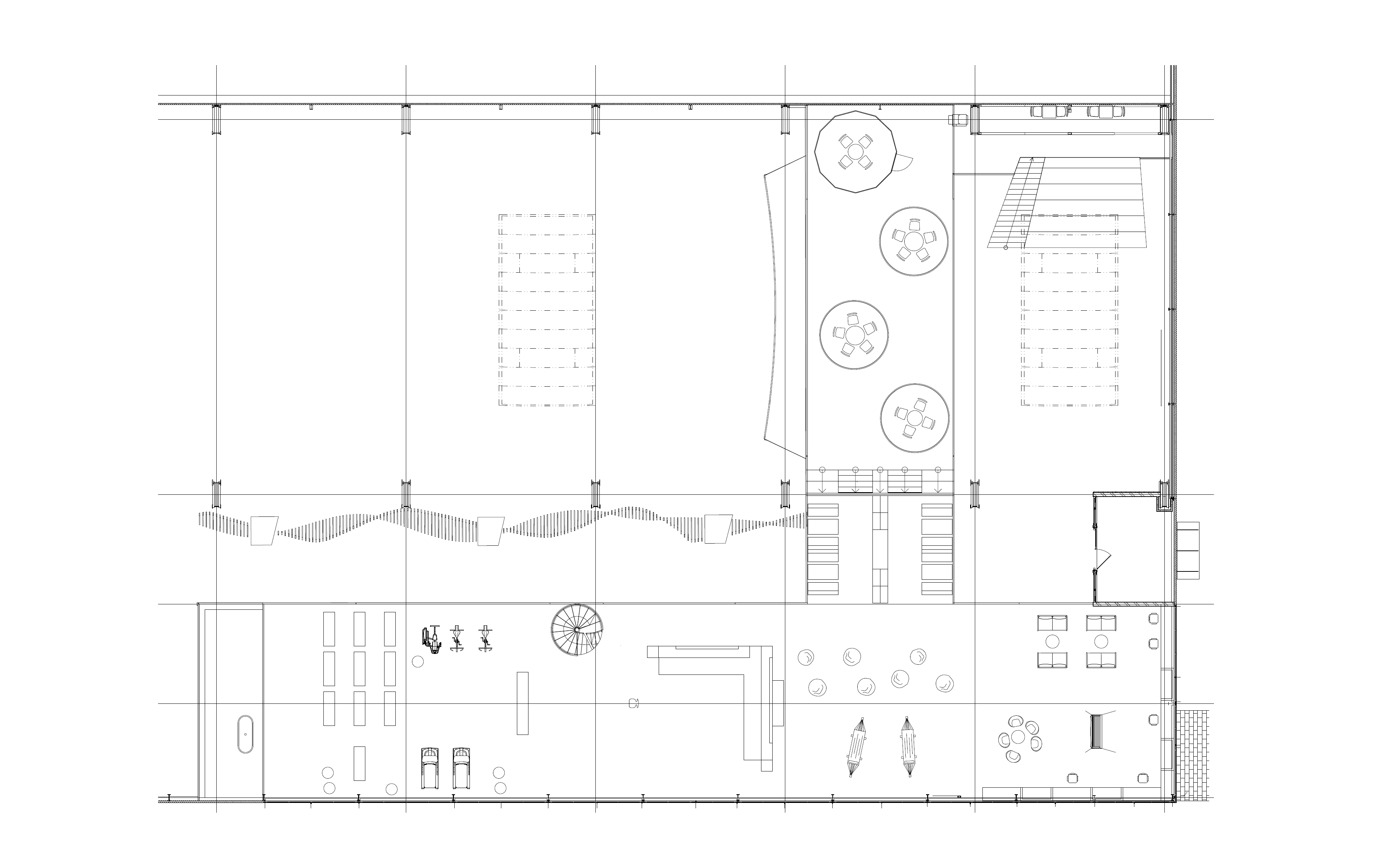
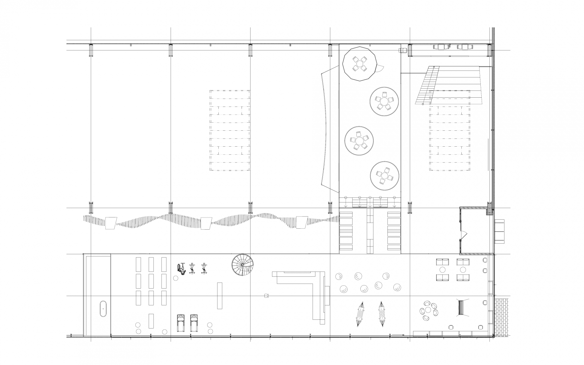
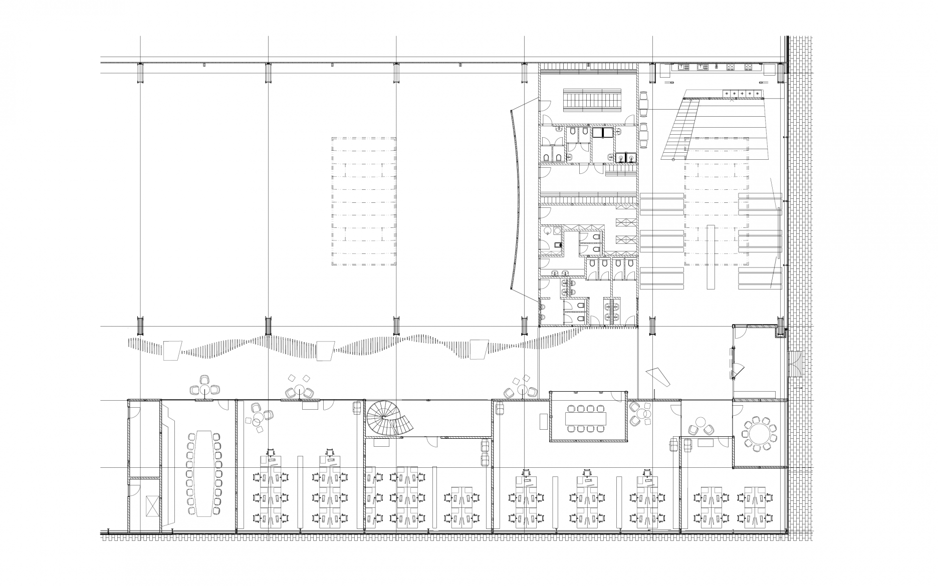
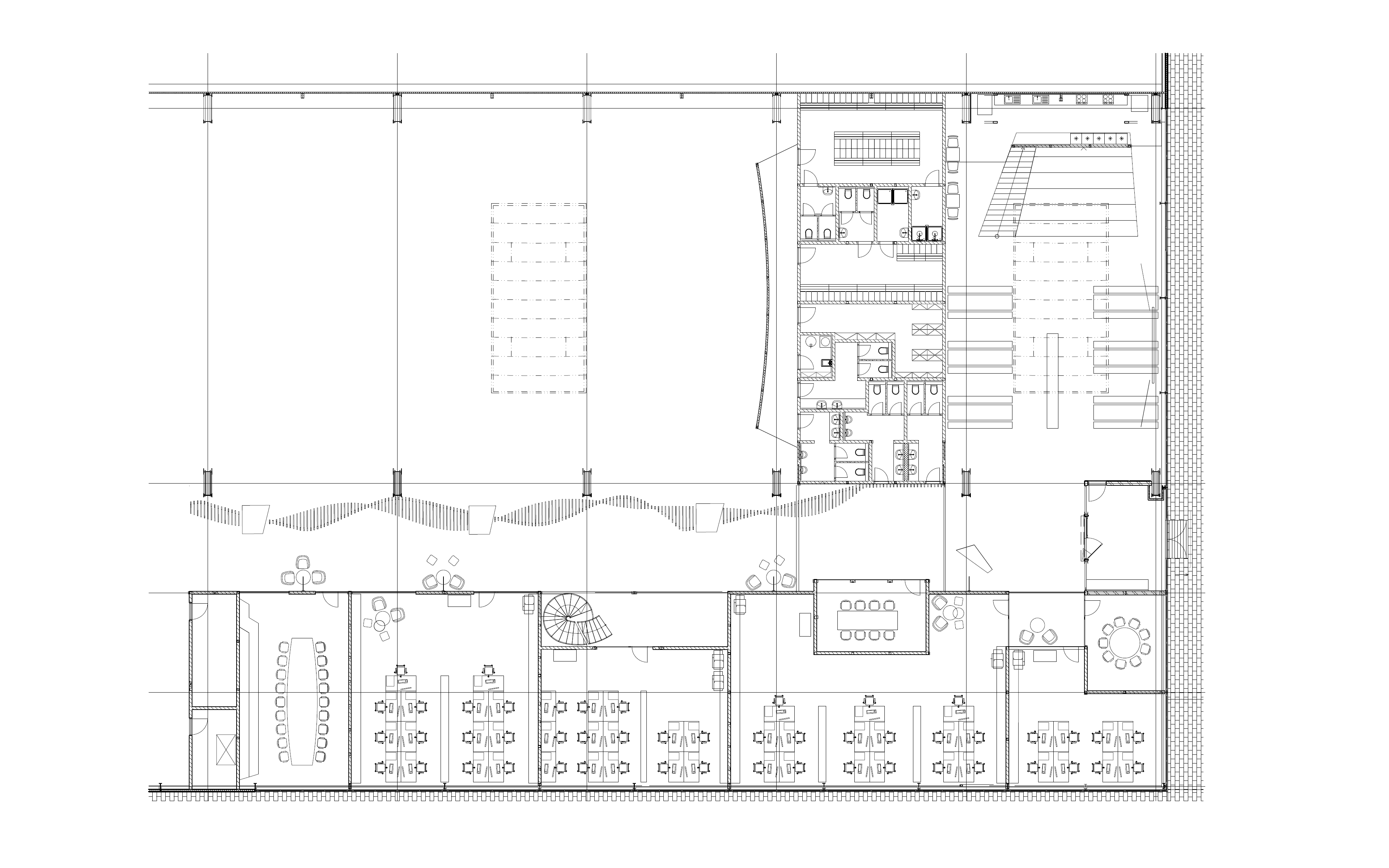
Priestorové usporiadanie centrály Martinusu možno usporiadať do troch prevádzkových zón: 1. vstupné priestory a kancelárie; 2. skladové priestory s regálmi a zakladačovým systémom; 3. balenie a distribúcia so základným zázemím. Riešenie interiéru sa týka primárne prvej spomínanej časti.
Hravo a zdravo
Podstatou architektonického riešenia je vostavba kancelárskeho a obslužného bloku do západnej časti haly. Priestory sú riešené na dvoch úrovniach. Zasadačky a kancelárie sú usporiadané v tvare L pozdĺž severnej a západnej fasády. Pasáž v ose vstupu ich oddeľuje od obslužného bloku s technickým a hygienickým zázemím. Zázemie je odsadené od fasád objektu a je možné okolo neho voľne prechádzať. Od skladových priestorov ho architekt opticky oddeľuje konvexnou predsadenou stenou. Zaoblenie konštrukcie spolu s reflexným povrchom obkladu (kompozitné dosky) eliminuje tunelový efekt a vytvára príjemný kontrast k všadeprítomnému ortogonálnemu rastru.. Tretí kľúčový celok na úrovni vstupu tvorí rozptylový priestor s amfiteátrovým sedením, ktorý je možné ľubovoľne preusporiadať počas konaní firemných akcií a čítaní. Schodisko na ľavej strane amfiteátra zároveň slúži ako prístup na „terasu“ pracoviska. Ako rýchlu cestu smerom dolu možno použiť antikorovú šmýkačku. Tu možno mať výhrady k absencii bezbariérového prístupu na poschodie. Spomínané schodisko vedie na priestrannú „terasu“. Určujúcimi faktormi na tejto úrovni je priehľad do skladovej časti, ktorú má pozorovateľ ako na dlani. Architekt sa nesnaží otvorený priestor deliť štandardnými priečkami, ale pracuje s konceptom farebne akcentovaných kójí. Či už ide o bunky oddelené akustickými stenami, pevnými lamelami alebo iba jednoduchým závesom. Po prekonaní niekoľkých stupňov, ktoré opäť slúžia aj ako sedenie, sa dostávame nad stropy kancelárií a zasadačiek. Tu dominuje knižnica pre zamestnancov s centrálnym motívom oblúkového portálu. Architekt opäť pracuje s voľne plynúcim usporiadaním s menšími kójami a sedením pozdĺž okien. Súčasťou komunitného fungovania pracoviska je malá kaviareň, domáce kino, alebo fitko. Dolu ku kanceláriám a knihám sa opäť dostávame prostredníctvom vretenového schodiska. Jeho oceľový tubus, ktorý zároveň slúži ako zábradlie, zviera masívne drevené stupne.
Príjemný eklektizmus
Marek Rudohradský pracoval pre klienta, ktorý sa netají svojím kreatívnym nastavením. Vzájomný dialóg preto realizáciu posúva od technicistického rukopisu (viď projekt Binarium v Mlynskej doline) k hravému stvárneniu priestorov s odkazom na knižné príbehy. Neutrálny stavebný základ umožnil v priestore rozmiestniť množstvo neformálnych prvkov, ktoré oživujú priznanú účelnú identitu industriálneho priestoru. Repasované solitéry zo starého Martinusu neskončili v koši, ale napríklad v nových zasadačkách. Ich priestory sú zariadené „zrecyklovanými“ stolmi a stoličkami s patinou, steny zdobia farebné tapety. S nadhľadom ich možno vnímať ako únik od každodennej reality a účelne zariadených kancelárií. Rovnako je na tom aj neformálny priestor na poschodí, kde je cítiť, že okrem definovania základných priestorových prvkov architekt prenecháva klientovi voľnú ruku. Pre každodenný život na pracovisku je to takto dobré.
Je škoda, že návštevník sa do centrály Martinusu nedostane počas bežných dní. Hala v priemyselnom areáli pripomína skôr prerastenú knižnicu ako distribučné a logistické centrum. Montérky a hluk nahrádza kultivované prostredie, kde je okrem práce dôležitá aj sociálna interakcia. Je evidentné, že tu pracujú kreatívni ľudia s množstvom nápadov. V niektorých prípadoch je ich až priveľa, čo je však pri celkovom vyznení prostredia ťažké vyčítať.
Podklady: Rudohradský
Fotografie: Tomáš Manina