Objavte riešenia Dorsis, ktoré spájajú minimalistický vzhľad s vysokou variabilitou, funkčnosťou a spracovaním na mieru.
Súčasné bývanie v prostredí budapeštianskej vilovej štvrte.
Moderné strešné okná ponúkajú pohodlné ovládanie aj lepšiu ochranu domácnosti počas celého roka.
Rad interiérových dverí DIVA DOOR od spoločnosti J.A.P. ponúka čistý dizajn a variabilné riešenia pre súčasné interiéry.
REHAU Window Solutions na veľtrhu Fensterbau Frontale 2026
Sortiment Slim Line zahŕňa pestrý výber dekorov a textúr.
Európska značka okien oslavuje jubileum: za 95 rokov sa vyvinula na najväčšiu medzinárodne pôsobiacu okennú značku a inovačného...
Na podujatí sa predstaví až 37 vystavovateľov - popredných dodávateľov stavebných materiálov a inovácií s prezentáciou...
Novotvar v prostredí alpskej obce.
Hansgrohe - prémiová značka kúpeľňových riešení, ponúka nadčasový dizajn, technickú precíznosť a udržateľné inovácie...
Využite špeciálnu akciu Internorm: okná za minuloročné ceny a hliníkový kryt úplne zadarmo. Ponuka je časovo obmedzená!
Sumarizácia najdôležitejších inovácií, ktoré redefinujúcich využitie tohto energetického zdroja.
AMPHIBIA 3000 GRIP 1.3 od spoločnosti ATRO predstavuje modernú hydroizolačnú technológiu, ktorá spája vysokú odolnosť,...
Ambiciózne plány EK narazili na ekonomické možnosti domácností v jednotlivých členských štátoch –...
IDEA DOOR od spoločnosti JAP prináša do interiéru čistý minimalistický vzhľad vďaka bezrámovému riešeniu a precíznej...

Realizáciu predstavujeme so sprievodným textom Štefana Moravčíka, ktorý vyšiel v aktuálnom čísle časopisu PROJEKT 1/2023:
Rekonštrukcie a adaptácie objektov, ich prispôsobovanie na nové, neustále meniace podmienky sa stávajú čoraz viac témou dňa.
Aj v Banskej Bystrici vzniklo dielo, ktoré je príkladom zrodenia niečoho nového na hmotnom základe pôvodnej stavebnej štruktúry.
Architekti organicky nadviazali na východiskové štrukturálne hodnoty prostredia. Fyzicky obnovili staré. Pridali niečo naviac. Jednotlivé časti (pôvodné i nové) spojili navzájom do funkčného celku. Využili potenciál miesta. Nielen prinavrátili zmysel východiskovému urbanistickému zámeru, ale kvalitu prostredia posunuli na požadované štandardy dnešnej doby.
Pôvodná budova bola súčasťou rozsiahlejšieho, veľkorysého urbanistického konceptu zo začiatku 70. rokov. V tesnej náväznosti na jedno z najkvalitnejších mestských štruktúr v Banskej Bystrici - sídlisko Pred stanicou (“Prednádražie”, od autorov Martina Kusého (najstaršieho) a Pavla Ružeka), začal vyrastať v 70. rokoch minulého storočia nový komplex administratívnych budov. Výšková vertikála dnešnej Slovenskej pošty je severným vyvrcholením ulice 29. augusta majúcej charakter mestskej triedy. Je akýmsi pomyselným kĺbom, od ktorého sa smerom na západ, mal smerom k centru mesta, popri Partizánskej ceste, rozvíjať pás novej zástavby až k najbližšej križovatke. Veľkorysý zámer sa nepodarilo nikdy dokončiť, aj keď sa fyzicky postavila značná časť predpokladaného stavebného objemu. Pôvodný koncept zástavby bol spracovaný v Stavoprojekte pod vedením architekta Jána Hanzela. Po 89. roku budovy prešli privatizáciou. Hľadala sa pre ne nová náplň i využitie.
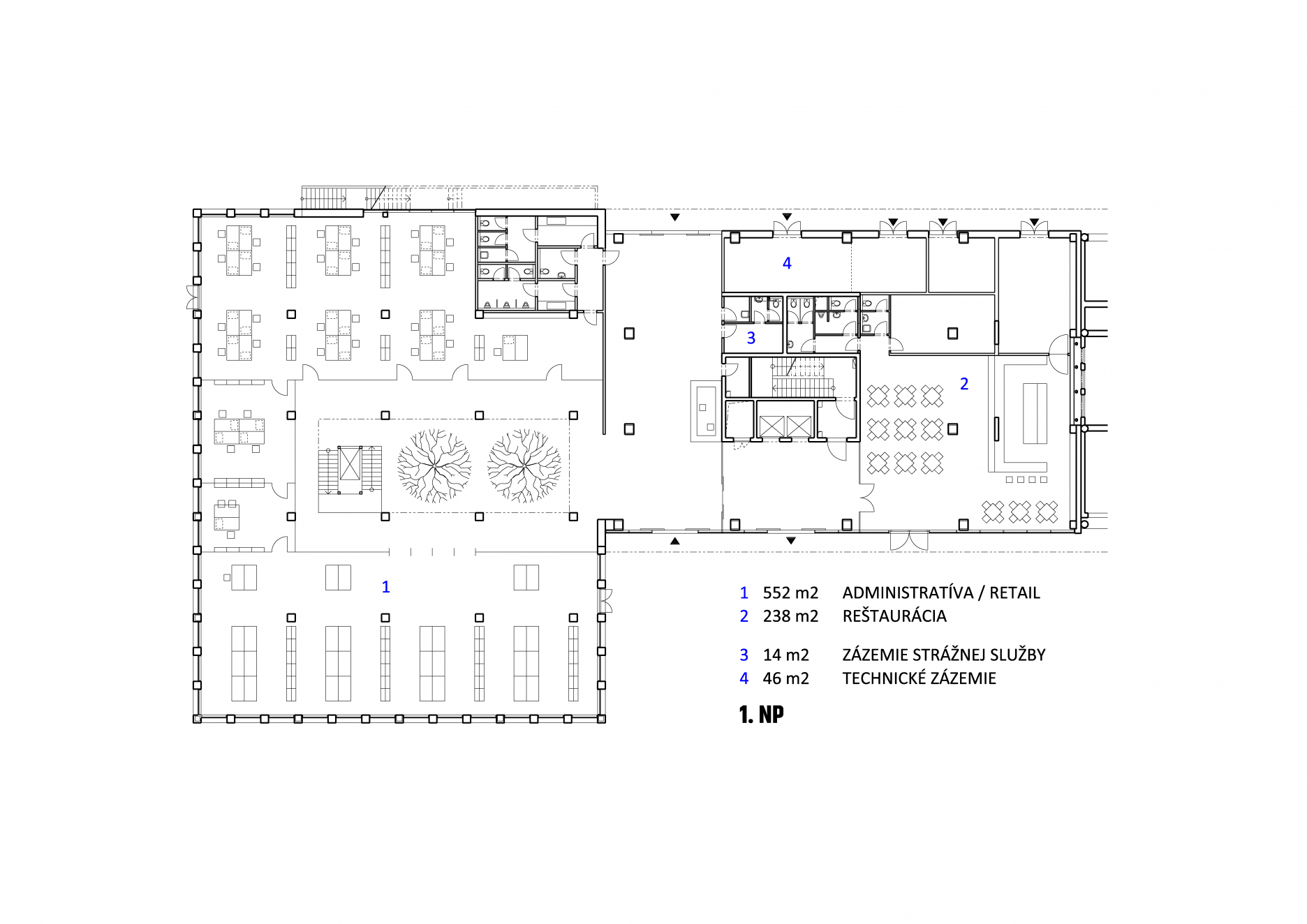
Výšková budova slúži dnes Slovenskej pošte. Lineárny trakt administratívnych budov zas Stredoslovenskej vodárenskej spoločnosti. Prezentovaný súbor objektov uzatvára kompozične i funkčne západnú stranu torza komplexu, ktorého ďalší rozvoj týmto smerom zablokovala budova Okresnej prokuratúry postavená v 90.rokoch. Objet pred prestavbou bol tiež administratívnou budovou s prenajímateľnými prevádzkami.
Horizontálna, trojpodlažná, jednotiaca lineárna urbanistická figúra podnože prechádzajúcej pod celým komplexom bola na jeho západnom okraji ukončená akýmsi ďalším, skromnejším, koncovým vertikálnym akcentom v podobe administratívnej veže (ako protiváha štíhlej vertikále Slovenskej pošty). Západná fasáda tejto administratívnej budovy bola slepá, bez okien. Provizórne zamurovaná plynosilikátovými tvárnicami.
V roku 2016 sa majiteľ rozhodol adaptovať v tom čase už svojmu účelu nevyhovujúcu budovu pre nové potreby. Architekti z ateliéru PHA v svojom návrhu nezostali pri jednoduchých úpravách jestvujúcich objektov. Navrhli transformáciu celého areálu, ktorý bol k dispozícii. Úpravy išli značne do hĺbky.
Oceľobetónový skelet pôvodných budov bol podobne, ako v Müllerovej pesničke - očistený “na dreň a dočista”… Až potom, na takto vyčistenú stavebnú podstatu, pribudli nové vrstvy konštrukcií a technickej infraštruktúry, ktorých cieľom bolo vytvoriť zdravý, dlhodobo fungujúci fyzický základ pre budúce kontinuálne využívanie, s čo najmenšími nárokmi na údržbu a opravy.
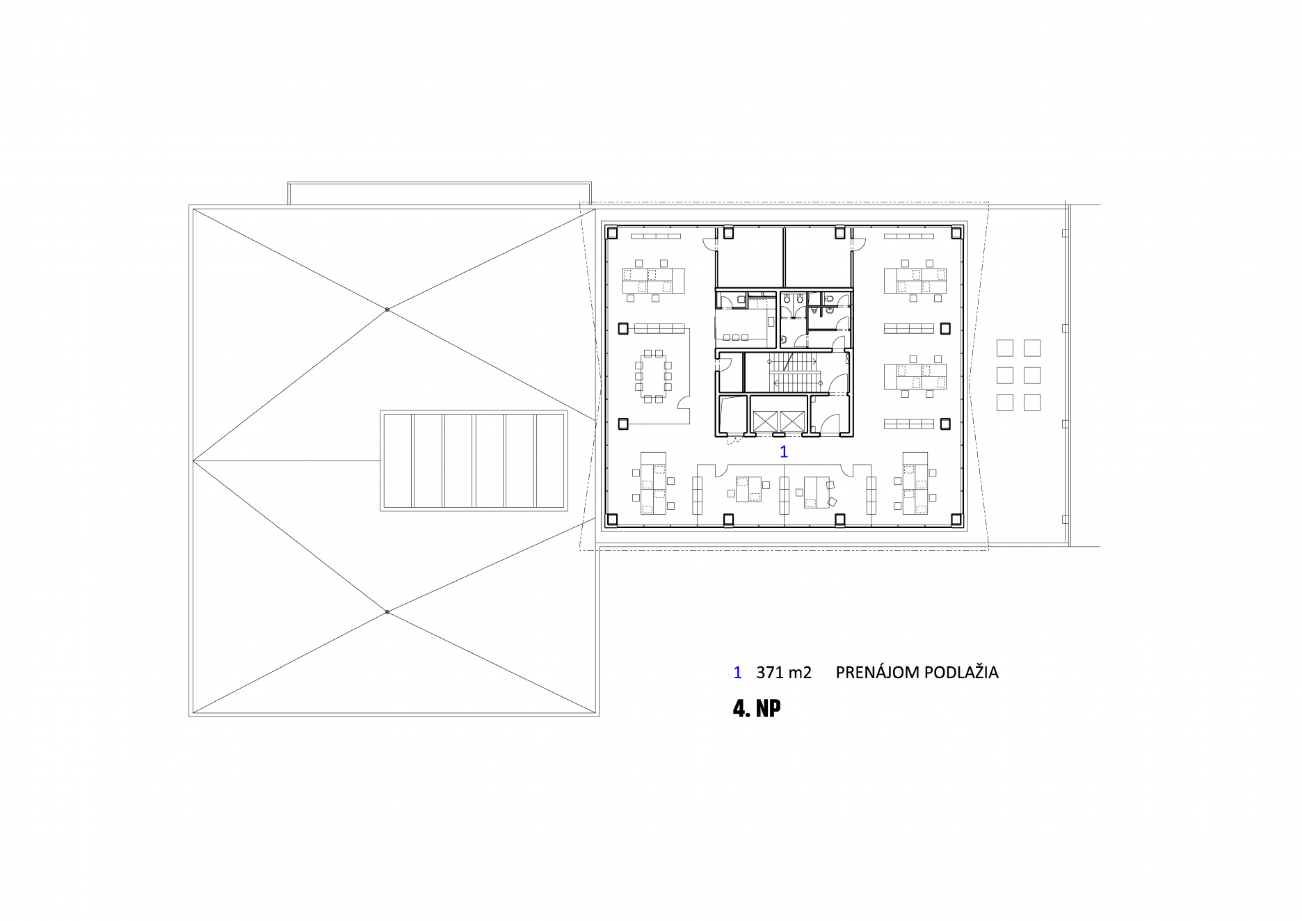
Najväčšie množstvo adaptačných zásahov vyžadovala veža dvanásťpodlažnej administratívnej budovy. Má klasické priestorové usporiadanie stavieb tohto typu. Vertikálne komunikačné jadro s chráneným schodiskom a výťahmi v strede pôdorysu. Po obvode je voľná, variabilne využiteľná dispozícia. Umožňuje to oceľobetónový nosný skelet.
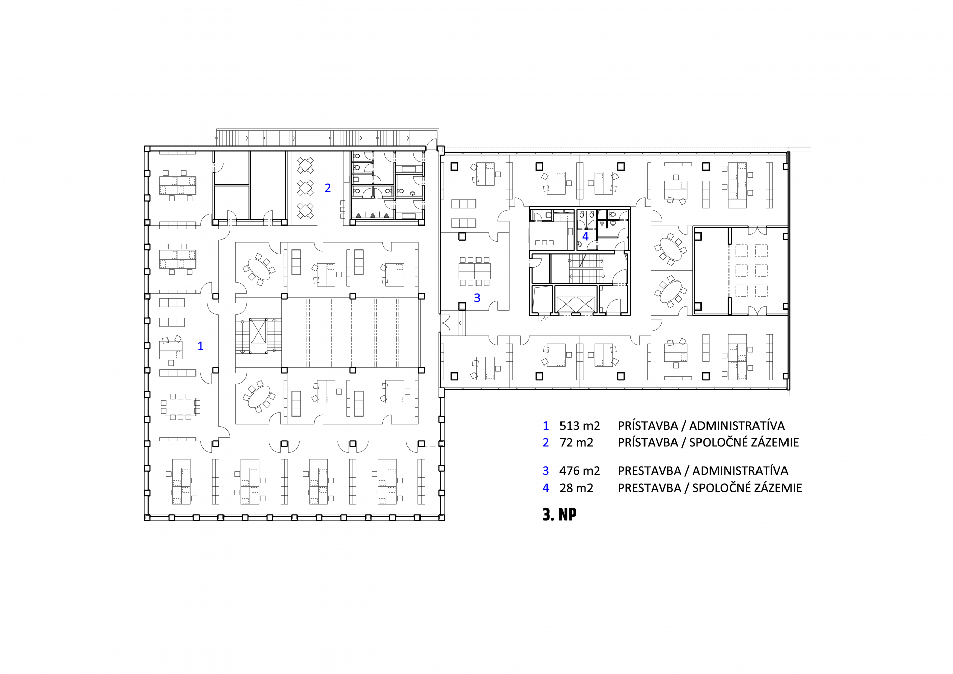
Nezostalo iba pri jestvujúcich budovách. Trojpodlažná podnož sa rozšírila formou prístavby v juhozápadnom rohu areálu. Využila priestorové rezervy prázdneho susedného pozemku. Zároveň v tomto smere ukončuje architektonickú kompozíciu nového celku. Jej strohý, elementárny, ortogonálny rámový raster s transparentnými výplňami, rozsiahlym vnútorným presvetľujúcim átriom otvoreným cez všetky podlažia - je novým atraktorom priestoru. Dôstojným ukončením bloku. Bodkou na záver. Akoby s odstupom času architekti dopovedali možnosti pôvodného urbanistického zámeru, ktorý vychádzal z neskoromoderných tradícií tvorby druhej polovice minulého storočia.
Požiadavky na statickú dopravu a potreba ďalších parkovacích miest si vynútili výstavbu nového parkovacieho domu za budovou. Strohá technická stavba s priznanými monolitickými betónovými a doplnkovými oceľovými konštrukciami prevádzkovo logicky a štrukturálne harmonicky dopĺňa stereotómiu hmôt celého komplexu.
Potešujúce je, že aj tu, na strednom Slovensku, ďalej od ekonomicky aktívnych centier, sa podarila adaptácia administratívneho komplexu “normálnym” spôsobom. (Čítaj - urobená normálne - tak ako “ako sa to má” robiť. Šetriť každé euro, ale na druhej nešetriť za každú cenu).
Podstatné je šetriť prevádzkové náklady. Tie sú oproti starej starej budove rádovo menšie. Nová stavebná obálka a ucelený energetický koncept zabezpečili zaradenie nových priestorov do energetickej triedy A0.
Interpolis má šancu prežiť. Budova v takejto vyčistenej, univerzálne využiteľnej podobe vytvára predpoklady, aby bola schopná priebežne sa prispôsobovať meniacim podmienkam v čase.
Voľné, otvorené dispozície, s možnosťou vzájomného prepájania sa (alebo naopak pružného delenia na menšie samostatné jednotky) budú pravdepodobne dobre vedieť reagovať na dynamiku života. Veď inakšie to v “dome” určenom pre 700 ľudí ani nie je možné.
Ak sa podarí naplniť budovu zaujímavým mixom funkcií, obsadiť parter atraktívnymi funkciami, slúžiacimi nielen pre nájomníkov, aj pre okoloidúcich, v teplejších mesiacoch vytiahnuť život aj do priľahlého exteriéru - potom vytvorený nový architektonický rámec má všetky predpoklady pre to, aby sa revitalizovaný komplex stal živou súčasťou mesta.
Výsledok pôsobí čisto a primerane. Architektonicky gramotne. Zadanie bolo zvládnuté s espritom. V dialógu s pôvodnou stavebnou štruktúrou i mestským prostredím.
Konečne sme sa po päťdesiatich rokoch dočkali dôstojného dopovedania pôvodného urbanistického konceptu aj s pridanou hodnotou na úrovni dnešnej doby :-) Viac o kvalitnej práci architektov z ateliéru PHA povedia priložené výkresy i fotky Mateja Hakára, ktoré sú názornejšie ako množstvo ďalších slov.
Vizualizácie:
Fotografie z výstavby:
Podklady: Paulíny Hovorka Architekti
Foto: Matej Hakár
Použité materiály a riešenia:
Presklené časti fasád sú vytvorené z fasádneho systému Schuco : Stĺpik-priečnikova fasáda FWS 50.SI+
Koncepcia vykurovania a chladenia budovy je postavená na tepelných čerpadlách Daikin a modernom trojúrkovom VRV systéme.
Optimalizáciu prevádzkových nákladov a energetickej spotreby objektu zabezpečuje spoločnosť Techno box services s.r.o..