Na podujatí sa predstaví až 37 vystavovateľov - popredných dodávateľov stavebných materiálov a inovácií s prezentáciou...
Novotvar v prostredí alpskej obce.
Hansgrohe - prémiová značka kúpeľňových riešení, ponúka nadčasový dizajn, technickú precíznosť a udržateľné inovácie...
Využite špeciálnu akciu Internorm: okná za minuloročné ceny a hliníkový kryt úplne zadarmo. Ponuka je časovo obmedzená!
Sumarizácia najdôležitejších inovácií, ktoré redefinujúcich využitie tohto energetického zdroja.
AMPHIBIA 3000 GRIP 1.3 od spoločnosti ATRO predstavuje modernú hydroizolačnú technológiu, ktorá spája vysokú odolnosť,...
Ambiciózne plány EK narazili na ekonomické možnosti domácností v jednotlivých členských štátoch –...
IDEA DOOR od spoločnosti JAP prináša do interiéru čistý minimalistický vzhľad vďaka bezrámovému riešeniu a precíznej...
Kontinuita riešenia od vonkajšieho obkladu až po kovania a kľučky.
Nástenné nadomietkové armatúry Vitus sú mimoriadne vhodné pre rýchlu a efektívnu...
Okenné profily z kompozitného materiálu RAU-FIPRO X od spoločnosti Rehau sú v porovnaní s tradičnými plastovými profilmi mnohonásobne...
Najnovší sortiment stolov pre zariadenie interiérov...
Spojenie moderného dizajnu, funkčnosti a svetla do harmonického architektonického prvku.
Kancelárska budova Baumit v slovinskom Trzine prešla premenou na moderné a udržateľné pracovisko. Architekti kládli dôraz...
Mottom šiesteho ročníku on-line konferencie odborníkov Xella Dialóg je Efektívny návrh budov 2025+: zmeny a riešenia

Takmer 70-metrový solitérny objekt vnáša do heterogénneho prostredia s viacerými novými dominantami jasne čitateľnú a artikulovanú urbanistickú štruktúru. Pravidelná mriežka fasády so zošikmenými elementmi vytvára na bledom povrchu zaujímavú hru svetla a tieňa, ktorá podporuje plasticitu motívu. Jednoliaty matematický raster pri bližšom pohľade člení hra s materiálmi a povrchmi, ktorá definuje drobnokresbu v ľudskej mierke.
Realizáciu bližšie predstaví sprievodný text autorov z ateliéru DKLN:
Historický kontext
Územie, dnes známe pod názvom Mlynské nivy, bolo v 18. a 19. storočí inundačným ostrovom medzi ramenami a hlavným tokom Dunaja. Od polovice 19. storočia sa lokalita pokrytá lužnými porastami, lúkami a záhradami bulharských pestovateľov zeleniny, mení na priemyselnú zónu s napojením na železnicu. Koncom 19. storočia sa Mlynské nivy stávajú dynamickou štvrťou s intenzívne sa rozvíjajúcim priemyslom, pri jednom z najväčších európskych riečnych prístavov. Plynárenská ulica sa začala formovať ako prístupová komunikácia do parného mlyna, ktorý stál do 30. rokov minulého storočia na hranici intravilánu osamotene s povrazárňou Helte.
V rozmedzí rokov 1925 až 1930 sa začala realizovať základná urbanistická os priemyselnej zóny - veľkorysý bulvár - dnešná ulica Mlynské nivy. Urbanistická koncepcia sa realizovala podľa návrhu Antala Palóczyho z roku 1917. Parný mlyn získal na novovybudovanej ulici polohu na križovatke. Protiľahlú stranu bulváru tvorila zástavba objektov mestskej plynárne (1935). Druhú stranu Plynárenskej ulice zaujal areál strojárskej výroby firmy Dunkl.
Parný mlyn bol v 40. rokoch prebudovaný pre potreby farmaceutickej firmy Medichemia. Po znárodnení v roku 1948 areál slúžil ako laboratóriá SAV. Po asanácii objektu v roku 2008 sa stopa staršej urbanistickej etapy prejavuje už len ako ojedinelý pôdorysný presah parcely do širokého uličného profilu.
Situácia a širšie vzťahy
Budova THE MILL je novým administratívnym projektom v rozvíjajúcom sa širšom centre Bratislavy v tzv. “City Business District-e“. Riešený pozemok sa nachádza vo vnútornom meste, v mestskej časti Ružinov, v zástavbe občianskej vybavenosti celomestského a nadmestského významu.
Plynárenská ulica je definovaná v rámci obrazu mesta ako hlavná kompozičná os, kolmá na osi Prievozskej a Prístavnej ulice. Súčasnú podobu jej zabezpečila najmä nová výstavba realizovaná po roku 2000, s ktorou bola spojená rozsiahla asanácia bývalých priemyselných a skladových areálov. Najviac zastúpené stavby v riešenom území sú v súčasnosti business centrá. Okrem nich je v území na východ od Plynárenskej ulice situovaných viacero obytných budov (Discovery residence, Citypark Ružinov, Jarabinky…), z ktorých najmä Citypark Ružinov a Discovery residence svojou výškou a rozsahom spolu s biznis centrami BBC V a BBC 1+ určujú mierku a povahu tohto územia.
Koncept budovy THE MILL rešpektuje charakteristické princípy, ktoré reprezentujú existujúcu zástavbu. Snaží sa do nej nevnášať neprijateľný kontrast, respektíve neúmerné zaťaženie pozemku, nakoľko svojimi pôdorysnými rozmermi, výškou, proporciami a kompozíciou priamo nadväzuje na okolitú zástavbu, najmä na objekt Discovery residence. Stavba svojim hmotovým a výškovým členením reaguje na komplikovanosť lokality, ktorá je daná solitérnymi stavbami a nejasnou uličnou čiarou Mlynských nív. Inšpiruje sa z prvoplánovo negatívne vnímanej komplikovanosti svojho okolia a snaží sa o súlad s prostredím.
Exteriér a vstupy do budovy
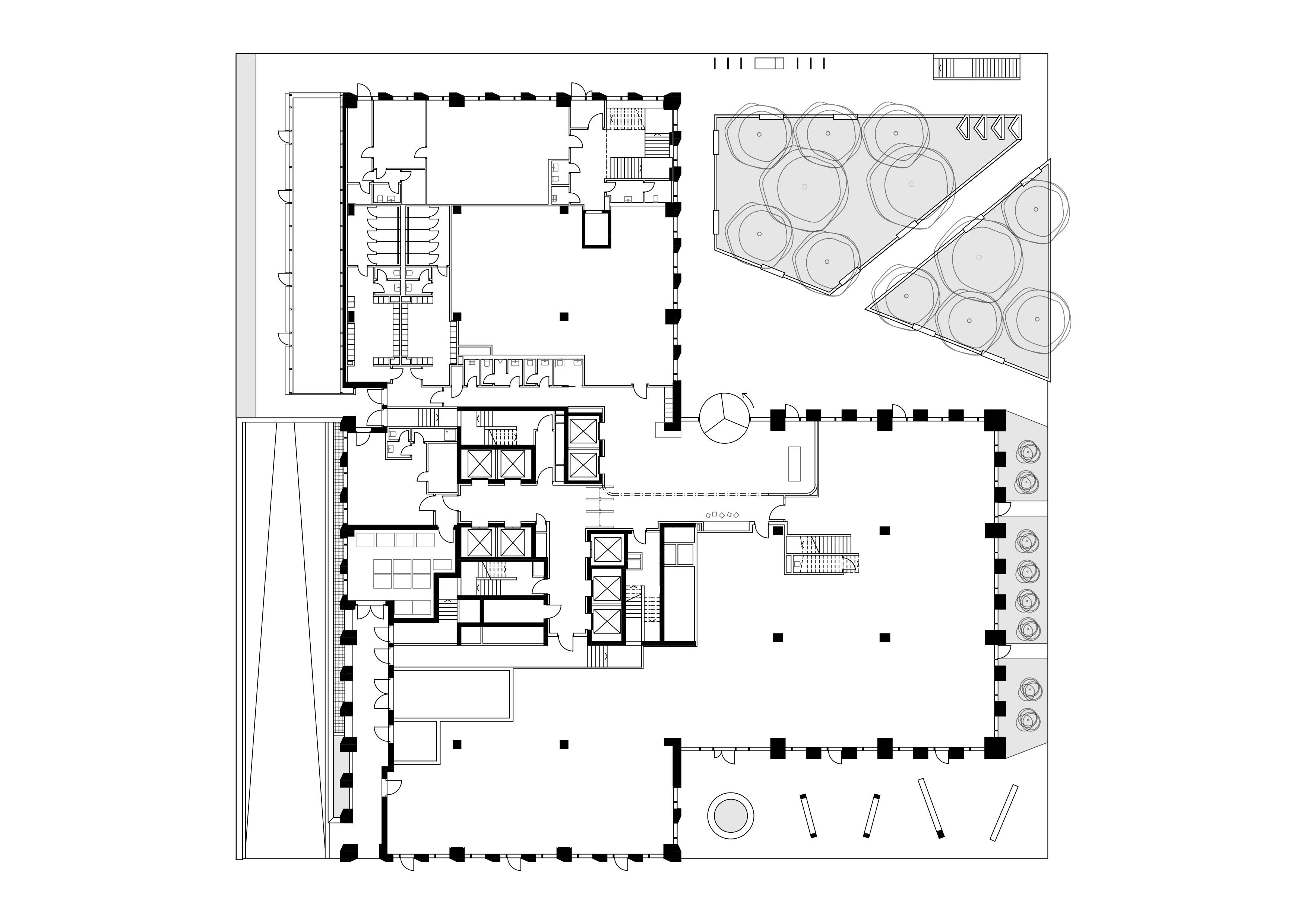
Novostavba je situovaná na nároží križovatky ulíc Mlynské nivy a Plynárenskej. Peší nástup do objektu je situovaný zo severnej strany. Vedú k nemu chodník pozdĺž Plynárenskej ulice, smerujúce od zastávok MHD na Prievozskej ulici. Nové námestie pred hlavným vstupom do budovy zabezpečuje komfortné prostredie pre oddych zamestnancov, najmä počas obedných prestávok. Súčasne má za cieľ prispieť k výraznému skvalitneniu verejného priestoru v tomto území. Dizajnový mobiliár, sadové úpravy a odľahčenie severného pozemku od zástavby posilňujú tento zámer.
Stavba je pripravená aj na situáciu, keď z jej južnej strany začne premávať električka a zatiaľ ospalá ulica Mlynské nivy sa premení na významný mestský bulvár. Budova má akcentovaný vstup aj tejto strany. Priestor momentálne funguje ako nájomná jednotka, avšak v budúcnosti je pripravený na zmenu účelu, kedy sa stane hlavným vstupom do budovy. Na túto situáciu reaguje aj pozícia umeleckého diela Filipa Šicka, ktorá je zámerne umiestnená práve v južnom predpolí objektu.
Zo severnej časti budovy je zabezpečený samostatný vstup do priestorov škôlky s prevádzkou na dvoch podlažiach. Zadný vstup zo západnej strany slúži prevažne pre cyklistov. Ostatné výstupy na terén slúžia ako požiarne únikové cesty.
Neoddeliteľnú súčasť celkového riešenia budovy tvoria zelené plochy, riešené aj v rámci samotného objektu. Na úrovni 13. nadzemného podlažia sa nachádza strešná záhrada s oddychovými zónami pre zamestnancov a návštevníkov objektu. Množstvo intenzívnej zelene (kríky a stromy zasadené do substrátu s hrúbkou 1,2 m) a lokálnych rastlín (vysokých tráv, bylín, trvaliek a rozchodníkov) reprezentuje lokálnu flóru.
Ideová koncepcia budovy a fasády
Z hľadiska ideového konceptu má fasáda budovy za cieľ zhmotňovať nasledujúce základné atribúty: jednoduchosť, solídnosť, monumentalita, trvácnosť, opakovanie, rytmus a raster. Materiálovo a farebne je postavená na kontraste. Biela farebnosť fasády kontrastuje s tmavými rámami a tabuľami zasklenia. Drsný GRC panel silne kontrastuje s hladkým alucobondovým obkladom. Organická hmota markízy nad severným hlavným vstupom, spolu s vlnitou štruktúrou svietidla vo vstupnej lobby tvoria protiklad k ortogonálnej geometrii fasády.
Fasáda svojim rytmom a členením vyhovuje čo možno najflexibilnejšiemu budúcemu dispozičnému riešeniu kancelárií. Segment parteru, ktorý prislúcha k “high-rise” časti je odľahčený ustúpením hmoty cez dve podlažia. Exteriérové stĺpy, zvýrazňujú rytmiku členenia objektu. Ich vynechanie na konci (narušenie rastru) zas zvýrazňuje hlavné vstupy do budovy. Monumentálnosť dvojpodlažných partrových stĺpov obložených GRC panelmi kontrastuje s ľahkým opláštením z alucobondu. Vrchné časti fasády sú tvorené radením opakujúcich sa prvkov s plnými a presklenými segmentmi. Ich celkový podiel je v pomere 55% ku 45% (najpriaznivejšie číslo z hľadiska prehrievania a solárnych ziskov). Zošikmený tvar plných častí spôsobuje v priebehu dňa na fasáde rôzne tieniace efekty, čitateľné vďaka bledej farbe fasády. Radenie plných prvkov nad sebou zvýrazňuje výšku budovy, rovnako aj zakončenie fasády atikou cez dve podlažia. Toto zakončenie pôsobí tiež ako “vyváženie“ dvojpodlažného parteru.
Interiér
Vstupné reprezentačné a komunikačné priestory z architektonického hľadiska nadväzujú na spomínanú koncepciu budovy, ktorej základnými atribútmi sú: jednoduchosť, solídnosť, monumentalita, trvácnosť, opakovanie rytmu a raster. Tieto atribúty sa premietajú aj do návrhu interiéru v podobe veľkoformátového obkladu výťahových lobby, alebo dreveného lamelového obkladu vstupnej lobby. Všetky materiály použité v týchto priestoroch boli vyberané s ohľadom na ich trvácnosť a bezchybnú pohľadovú formu. Za umeleckými dielami, umiestnenými vo vstupných priestoroch stojí Ašot Haas.
Základné údaje o stavbe
Podklady: DKLN
Fotografie: Matej Hakár