Rad interiérových dverí DIVA DOOR od spoločnosti J.A.P. ponúka čistý dizajn a variabilné riešenia pre súčasné interiéry.
REHAU Window Solutions na veľtrhu Fensterbau Frontale 2026
Sortiment Slim Line zahŕňa pestrý výber dekorov a textúr.
Európska značka okien oslavuje jubileum: za 95 rokov sa vyvinula na najväčšiu medzinárodne pôsobiacu okennú značku a inovačného...
Na podujatí sa predstaví až 37 vystavovateľov - popredných dodávateľov stavebných materiálov a inovácií s prezentáciou...
Novotvar v prostredí alpskej obce.
Hansgrohe - prémiová značka kúpeľňových riešení, ponúka nadčasový dizajn, technickú precíznosť a udržateľné inovácie...
Využite špeciálnu akciu Internorm: okná za minuloročné ceny a hliníkový kryt úplne zadarmo. Ponuka je časovo obmedzená!
Sumarizácia najdôležitejších inovácií, ktoré redefinujúcich využitie tohto energetického zdroja.
AMPHIBIA 3000 GRIP 1.3 od spoločnosti ATRO predstavuje modernú hydroizolačnú technológiu, ktorá spája vysokú odolnosť,...
Ambiciózne plány EK narazili na ekonomické možnosti domácností v jednotlivých členských štátoch –...
IDEA DOOR od spoločnosti JAP prináša do interiéru čistý minimalistický vzhľad vďaka bezrámovému riešeniu a precíznej...
Kontinuita riešenia od vonkajšieho obkladu až po kovania a kľučky.
Nástenné nadomietkové armatúry Vitus sú mimoriadne vhodné pre rýchlu a efektívnu...
Okenné profily z kompozitného materiálu RAU-FIPRO X od spoločnosti Rehau sú v porovnaní s tradičnými plastovými profilmi mnohonásobne...

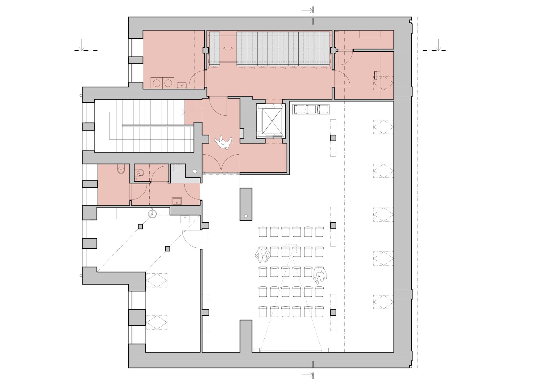
V roku 2022 mesto Červený Kostelec oslovilo pražský ateliér PAPUNDEKL ARCHITEKTI so zadaním úpravy interiéru Knižnice Břetislava Kafku, ktorej zariadenie už bolo na konci svojej životnosti. Počas projektovania sa však ukázalo, že technický stav objektu si vyžaduje výraznejší zásah. Budova preto prešla kompletnou rekonštrukciou vrátane zateplenia.
Knižnica sídli v historickom objekte bývalého hostinca, ktorého dispozícia do značnej miery obmedzuje prevádzkové možnosti. Architekti sa rozhodli vedome pracovať s pôvodnou architektúrou, vyhli sa náročným stavebným úpravám a navrhli interiér „ušitý na mieru“ súčasným potrebám knižnice. Tento prístup sa premietol aj do celkovej koncepcie interiéru, ktorej cieľom bolo priestor sprehľadniť, presvetliť a vizuálne kultivovať, bez toho, aby sa vytratila domácka atmosféra typická pre miestnu knižnicu.
Osobitnú pozornosť venovali vstupnej časti. Už pri pohľade z ulice malo byť jasné, že budova zastrešuje významnú mestskú inštitúciu. Dôležité bolo tiež lepšie sprístupnenie záhrady vo dvore.
Hlavný vstup vedie cez prejazd, do ktorého architekti osadili novú atypickú bránu. Do ulice smerujú plechové skladacie krídla, ktoré zároveň fungujú aj ako výrazný vizuálny pútač. Priesvitné delenie zo strany záhrady presvetľuje pasáž aj v prípade zatvorenej brány. Veľkoformátové zasklenie bezprostredne za vstupom z ulice otvára návštevníkom priamy priehľad do interiéru knižnice. Prejazd architekti vyčistili, odhalili pôvodné pilastre a medzi ne vložili nástenky slúžiace ako malý výstavný priestor. Z pôvodne nevzhľadného miesta sa tak stala reprezentatívna vstupná pasáž.
Súčasťou návrhu je aj komplexná koncepcia nábytku. Pozdĺž stien je situovaný vstavaný utilitárny mobiliár v neutrálnej sivej farbe. Stred miestností patrí výraznému červenému nábytku. Ten je mobilný a multifunkčný. Okrem úložných priestorov vytvára miesta na sedenie a integruje prvky osvetlenia. Vďaka kolieskam sa dá ľahko presúvať k stenám, čím sa uvoľní priestor na verejné podujatia.
V prízemnom oddelení pre dospelých je nábytok usporiadaný do pravidelných radov, zatiaľ čo v detskom oddelení na poschodí majú regály hravejšie tvary a rôzne výšky, prispôsobené jednotlivým vekovým skupinám. Strop detského oddelenia dopĺňa textilný baldachýn od výtvarníčky Lindy Retterovej, ktorý vznikol v rámci workshopu s miestnymi deťmi. Baldachýn zlepšuje akustické vlastnosti priestoru a prepúšťa mäkko rozptýlené svetlo.
Interiér pracuje s výraznou farebnosťou povrchov, ktorá zjednocuje nové zásahy do priestoru knižnice. Odtiene ružovej a červenej sa objavujú vo vstupnej pasáži, na podlahách aj na nábytku. Farby podporujú prívetivú atmosféru knižnice a zároveň odkazujú na názov mesta a jeho červený kostol. V kontraste k mäkkému čalúnenému nábytku sú použité prvky z nehrdzavejúcej ocele.
Komentár mestského architekta Červeného Kostelca arch. Lukáša Ehla:
“Knihovna Břetislava Kafky hraje v Červeném Kostelci významnou společenskou roli více jak sto let. Ve chvíli, kdy bylo potřeba obnovit zastaralé vybavení, rozhodla se knihovna pro velkorysou přestavbu svých prostor s ambicí vytvořit zde živé kulturní a kreativní centrum. Po pečlivém výběru knihovna oslovila architekty ze studia Papundekl, kteří invenčním způsobem otevřeli a propojili prostory knihovny do jednoho kompaktního celku. Tomu odpovídá materiálové řešení prostor a jejich vybavení. Knihovna se tak stává živým organismem, schopným reagovat na měnící se požadavky svých uživatelů a zároveň reprezentuje otevřený přístup města Červený Kostelec.”
Ateliér: PAPUNDEKL ARCHITEKTI
Fotografie: Alex Shoots Buildings