Hansgrohe - prémiová značka kúpeľňových riešení, ponúka nadčasový dizajn, technickú precíznosť a udržateľné inovácie...
Využite špeciálnu akciu Internorm: okná za minuloročné ceny a hliníkový kryt úplne zadarmo. Ponuka je časovo obmedzená!
Na podujatí sa predstaví až 37 vystavovateľov - popredných dodávateľov stavebných materiálov a inovácií s prezentáciou...
Sumarizácia najdôležitejších inovácií, ktoré redefinujúcich využitie tohto energetického zdroja.
AMPHIBIA 3000 GRIP 1.3 od spoločnosti ATRO predstavuje modernú hydroizolačnú technológiu, ktorá spája vysokú odolnosť,...
Ambiciózne plány EK narazili na ekonomické možnosti domácností v jednotlivých členských štátoch –...
IDEA DOOR od spoločnosti JAP prináša do interiéru čistý minimalistický vzhľad vďaka bezrámovému riešeniu a precíznej...
Kontinuita riešenia od vonkajšieho obkladu až po kovania a kľučky.
Nástenné nadomietkové armatúry Vitus sú mimoriadne vhodné pre rýchlu a efektívnu...
Okenné profily z kompozitného materiálu RAU-FIPRO X od spoločnosti Rehau sú v porovnaní s tradičnými plastovými profilmi mnohonásobne...
Najnovší sortiment stolov pre zariadenie interiérov...
Spojenie moderného dizajnu, funkčnosti a svetla do harmonického architektonického prvku.
Kancelárska budova Baumit v slovinskom Trzine prešla premenou na moderné a udržateľné pracovisko. Architekti kládli dôraz...
Mottom šiesteho ročníku on-line konferencie odborníkov Xella Dialóg je Efektívny návrh budov 2025+: zmeny a riešenia
Robot WLTR predstavuje moderný prístup k murovaným konštrukciám. Vďaka automatizácii dokáže rýchlo, presne a bezpečne realizovať...

Nové sídlo spoločnosti Magna Energia vzniklo prestavbou bývalého areálu Heliand v Piešťanoch, kde sa vyrábali vianočné svetielka. Návrh vzišiel z verejnej architektonickej súťaže, do ktorej sa zapojilo 42 autorských kolektívov. Víťazný kolektív mladých autorov z Ateliéru GARAD (Rypák, Rypák Vaňo, Volf, Humajová) spracoval architektonickú štúdiu a projekt interiéru. Generálnym projektantom bol ateliér Stavikon Piešťany na čele s Jaroslavom Konečným. Oba ateliéry sa podieľali na realizácii diela, ktoré sa podarilo dotiahnuť do kvalitného výsledku.
Projekt zachováva pôvodnú výrobnú halu s priznanými konštrukciami, replikuje historickú mestskú vilu orientovanú do ulice a dopĺňa areál o prístavbu z recyklovaných tehál a drevených CLT panelov.
Architektúra rešpektuje pôvodnú urbanistickú štruktúru a vytvára komorné nádvorie, ktoré spája staré s novým. Budovu charakterizujú voľné priehľady, pobytové terasy a prijemné zákutia. V interiéri siahli architekti po solídnej materialite, ktorá kombinuje pohľadový betón, tehlu a drevo.
Dielo bližšie predstaví sprievodný text autorov:
Areál sa nachádza medzi Bratislavskou a Urbánkovou ulicou, v zástavbe rodinných domov a polyfunkčných objektov. Na pozemku pôvodne stála trojpodlažná vila z počiatku 20. storočia, ku ktorej v 70. rokoch pribudla dvojpodlažná výrobná dielňa v strednej časti a jednopodlažné sklady pozdĺž Urbánkovej ulice. Dielňa bola zachovaná a začlenená do nového riešenia, zatiaľ čo ostatné objekty boli odstránené pre nevyhovujúci technický stav. Napokon bola asanovaná aj samotná vila, ktorá sa pôvodne mala zachovať - jej stav však neumožňoval bezpečné začlenenie do novej stavby. Časť materiálu a sutín z asanácie bola znovu použitá pri výstavbe, čím sa zachoval odkaz na minulosť areálu.
Zo strany Bratislavskej ulice je budova reprezentovaná replikou pôvodnej vily s charakteristickými kvetinovými atikami. Vila je prepojená s dielňou vertikálnym komunikačným jadrom zo štokovaného betónu, ktorý vznikol ako reakcia na komplikácie vzniknuté počas výstavby. Zachovaná dielňa bola zrekonštruovaná a doplnená o dvojpodlažnú prístavbu. Na jej streche vzniklo ustúpené podlažie postavené z CLT panelov. Areál uzatvára jednopodlažná prístavba jedálne zo strany Urbánkovej ulice.
Spojením jednotlivých objektov do tvaru písmena U vzniklo centrálne nádvorie - srdce celého areálu. Tento priestor je navrhnutý ako priepustný, prepájajúci okolité ulice a umožňujúci priechod pre peších i cyklistov. Je prístupný aj verejnosti. Ustúpením tretieho podlažia sa dosiahlo citlivé hmotové odstupňovanie, ktoré rešpektuje výškovú úroveň okolitej zástavby a prirodzene ju prepája s novou architektúrou.
Nádvorie je výškovo zjednotené s prvým podlažím, čím je zabezpečený bezbariérový prístup do všetkých častí budovy. Vyvýšené je pomocou násypu z materiálov z asanovaných objektov a obklopené zeleňou, ktorá zlepšuje mikroklímu a poskytuje tieň. Exteriér dopĺňajú chodníky a parkovacie plochy z andezitových dlažobných kociek, ktoré boli zachované z pôvodného areálu. Na strechách všetkých budov sa nachádza extenzívna vegetácia a tri pobytové strešné terasy.
Interiér budovy je členený v súlade s aditívnou štruktúrou stavby. Dispozícia i materiálové riešenie odkazujú na historický vývoj areálu. Vila pôsobí uhladene a svetlo – dominujú biele povrchy a čisté línie. Dielňa a nové prístavby si zachovávajú industriálny charakter s tehlovými stenami, priznaným betónom a odkrytými technickými inštaláciami. Celkový priestor zjednocuje použitie dreva a rozsiahla zbierka výtvarných diel, ktoré dotvárajú atmosféru. Prítomné sú aj ďalšie odkazy na minulosť - použitie dlažby z taveného čadiča, výber svietidiel či vzory na podlahe.
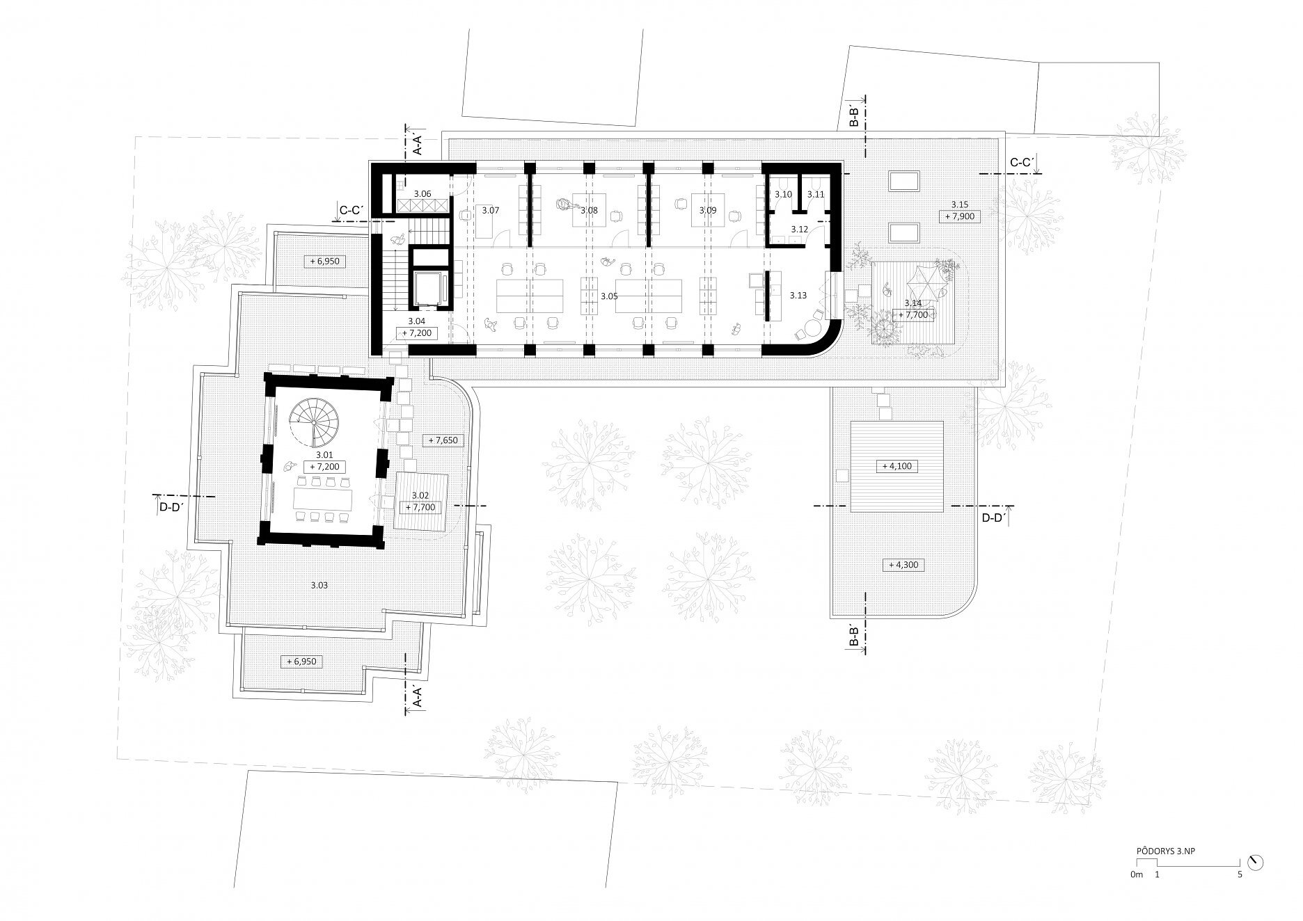
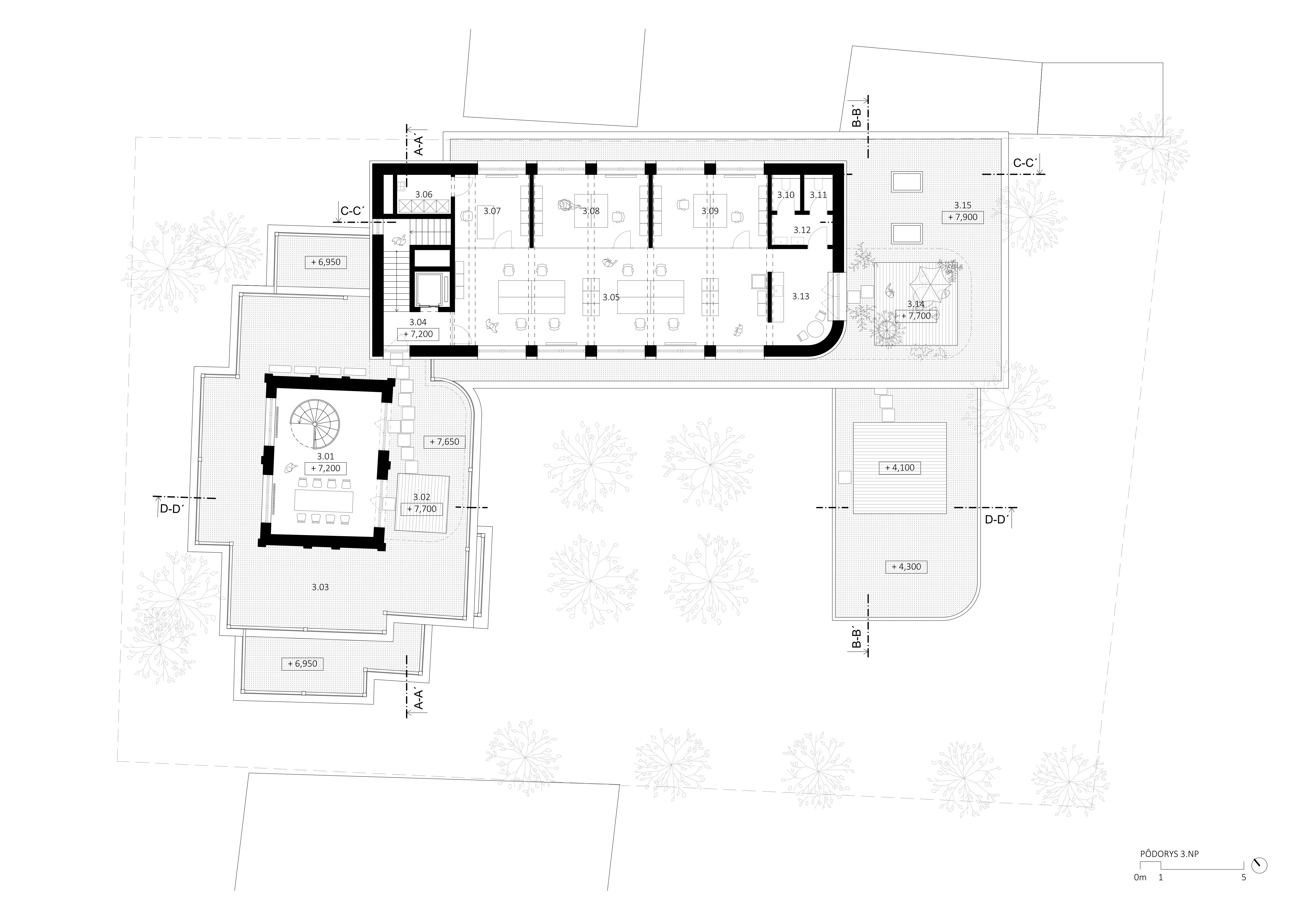
Hlavný vstup do budovy vedie z centrálneho nádvoria cez objekt dielne, v strednej časti dispozície. Vertikálne prepojenie medzi podlažiami zabezpečujú dve komunikačné jadrá – schodisko s výťahom na severnej strane a obslužné schodisko na východe. Recepcia, situovaná pri hlavnom vstupe, slúži ako rozcestník do všetkých pracovných priestorov. Vo vile sa nachádzajú kancelárie, hygienické zázemie a sklad na bicykle s prístupom z exteriéru. Pozdĺž fasády orientovanej do nádvoria vedie pobytová chodba a školiaca miestnosť prepojená s jedálňou a výdajňou stravy, ktoré sa dajú otvoriť do exteriéru.
Na druhom podlaží sa koncentruje väčšina kancelárií. Vo vile sú menšie priestory pre 1-2 osoby, zatiaľ čo v dielni sa nachádza otvorená kancelária a veľká zasadacia miestnosť s výstupom na terasu.
Tretie podlažie vily aj dielne sú ustúpené. Strešný pavilón vo vile slúži ako neformálny spoločenský priestor - tzv. rumový salónik. V nadstavbe haly sa nachádzajú kancelárie s prístupom na strešnú terasu. Zvyšná časť strechy je využitá na inštaláciu fotovoltických panelov, ktoré zabezpečujú časť energetickej potreby budovy.
Technické zariadenia, sklady, šatne a sprchy pre zamestnancov sú umiestnené v suteréne objektu.
Fotografie z procesu realizácie:
Požité materiály a riešenia:
Podklady: Ateliér GARAD
Fotografie: Alex Shoots Buildings, Adam Lukačovič (pôvodný stav)