Na podujatí sa predstaví až 37 vystavovateľov - popredných dodávateľov stavebných materiálov a inovácií s prezentáciou...
Novotvar v prostredí alpskej obce.
Hansgrohe - prémiová značka kúpeľňových riešení, ponúka nadčasový dizajn, technickú precíznosť a udržateľné inovácie...
Využite špeciálnu akciu Internorm: okná za minuloročné ceny a hliníkový kryt úplne zadarmo. Ponuka je časovo obmedzená!
Sumarizácia najdôležitejších inovácií, ktoré redefinujúcich využitie tohto energetického zdroja.
AMPHIBIA 3000 GRIP 1.3 od spoločnosti ATRO predstavuje modernú hydroizolačnú technológiu, ktorá spája vysokú odolnosť,...
Ambiciózne plány EK narazili na ekonomické možnosti domácností v jednotlivých členských štátoch –...
IDEA DOOR od spoločnosti JAP prináša do interiéru čistý minimalistický vzhľad vďaka bezrámovému riešeniu a precíznej...
Kontinuita riešenia od vonkajšieho obkladu až po kovania a kľučky.
Nástenné nadomietkové armatúry Vitus sú mimoriadne vhodné pre rýchlu a efektívnu...
Okenné profily z kompozitného materiálu RAU-FIPRO X od spoločnosti Rehau sú v porovnaní s tradičnými plastovými profilmi mnohonásobne...
Najnovší sortiment stolov pre zariadenie interiérov...
Spojenie moderného dizajnu, funkčnosti a svetla do harmonického architektonického prvku.
Kancelárska budova Baumit v slovinskom Trzine prešla premenou na moderné a udržateľné pracovisko. Architekti kládli dôraz...
Mottom šiesteho ročníku on-line konferencie odborníkov Xella Dialóg je Efektívny návrh budov 2025+: zmeny a riešenia

Súčasťou fóra PRAHA bola okrem obnovenej prístavby aj nadväzujúca plocha vnútrobloku.
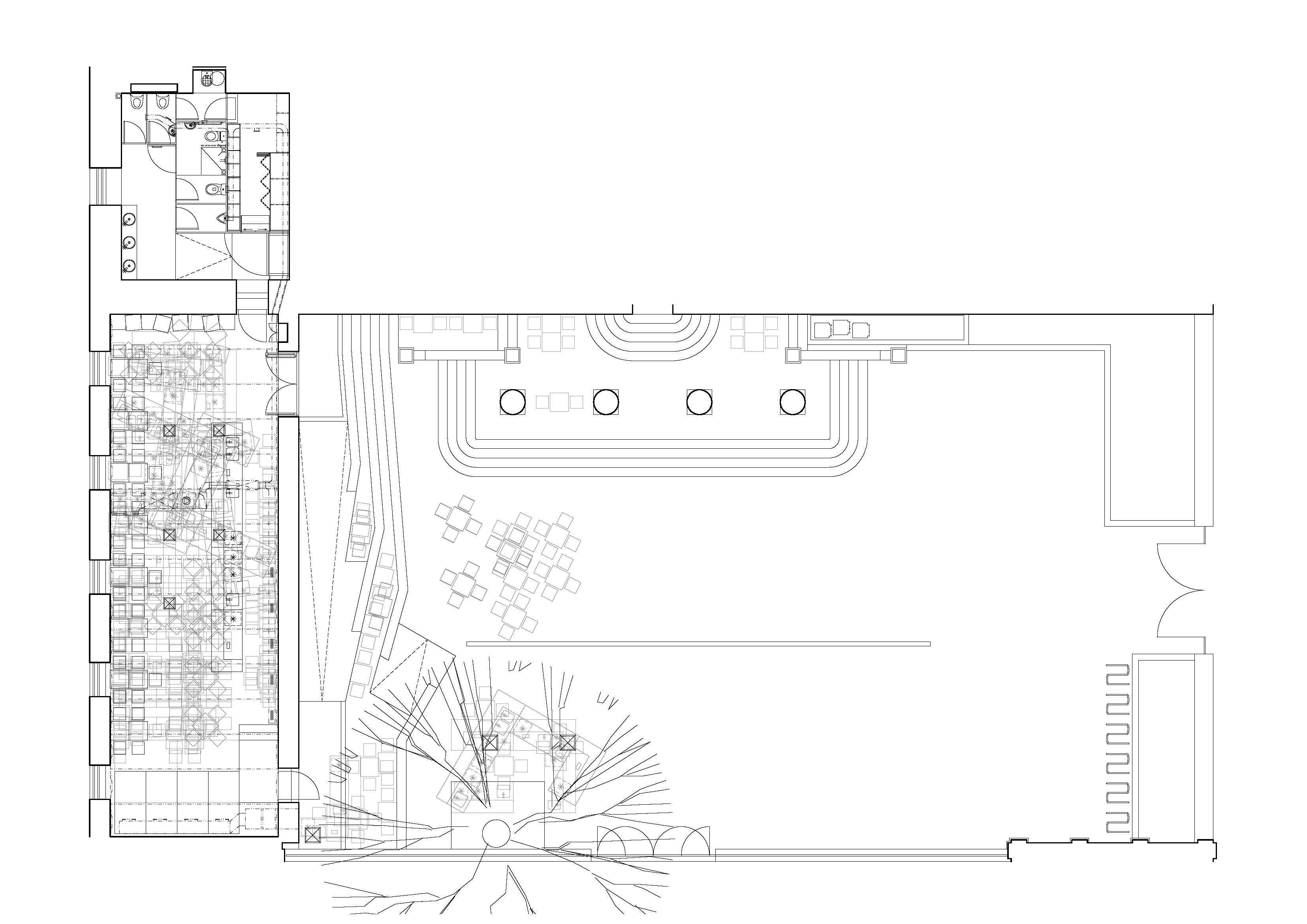
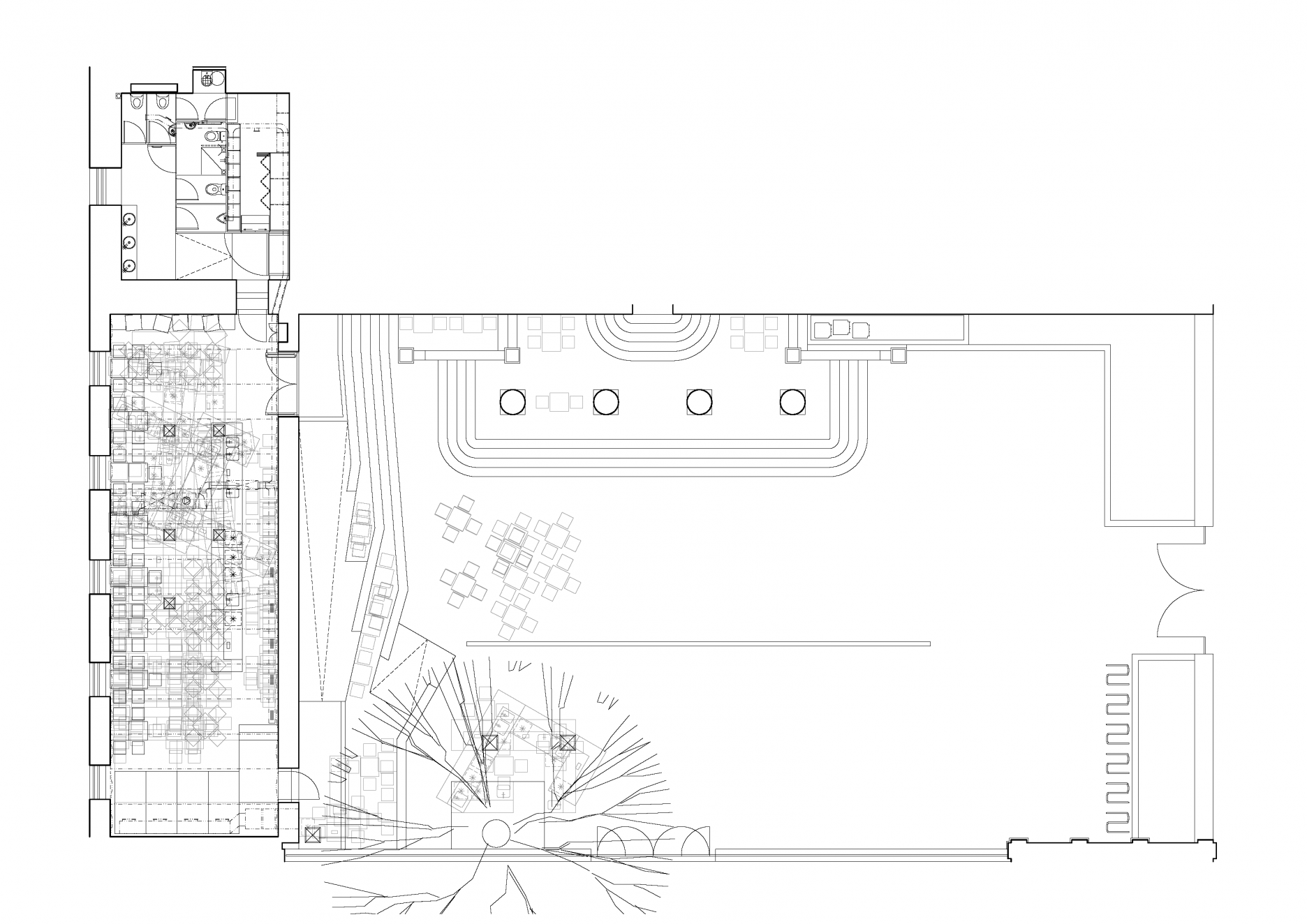
Na okružnej triede, vymedzujúcej historické jadro Brna, sa nachádza nádvorie neorenesančného súboru Pražákovho paláca (sídlo Moravskej galérie) a Besedního domu (Brněnská filharmonie). Projekt adaptoval ich spojovací krčok umiestnený na terénnej hrane niekdajšieho hradobného valu.
Zadanie spočívalo v konverzii reštaurátorských dielní galérie na bezbariérový kultúrny priestor pre prednášky, workshopy, koncerty, výstavné a performatívne projekty, či videoprojekcie. Súčasťou nového využitia bola tiež kaviareň a bar.
“Neexistuje žádná permanentní náplň (funkce), je definován pouze prostor stávající stavby a nový prostor událostí. Existující prostor je i po odstranění všech nenosných příček těsný, nově iniciovaný prostor je proto situační, podle okamžitých potřeb expandující na venkovní nádvoří nebo se smršťující v komorní kavárnu. Interiér města (nádvoří) a adaptovaného objektu splývají v nových gradientech společné podlahy. Hranice navržené architektury jsou definovány multiplicitou jejího kulturního programu,” vysvetlili pôvodný koncept architekti.
Zásahy do bývalých dielní zahŕňali najmä obnovenú infraštruktúru (bezbariérové úpravy, výplne stavebných otvorov, sanita, inštalačné šachty, siete…). Mobiliár bol v pôvodnom slova zmysle mobilný, používaný bez rozlíšenia interiéru a exteriéru (barové segmenty, pódiové podesty použiteľné ako pracovné stoly, výškovo nastaviteľné stolíky, stohovateľné a skladacie stoličky). Ambivalenciu meniaceho sa priestoru rozšírili stopy pôvodnej dielne (žiarivkové osvetlenie, skoršie dispozície, textúra betónové podlahy, rozdielna zrnitosť omietok v mieste asanovaných priečok...) a použitie recyklovaných prvkov (polykarbonátové panely z výstavy Obrazy mysle, reinštalácia knižnice z literárneho veľtrhu alebo stoličky z Aukra ...).
Podklady: Jakub Kopec