Advertorial

Pozvánka na 2. ročník stavebného veľtrhu BigMarket na Slovensku

Na podujatí sa predstaví až 37 vystavovateľov - popredných dodávateľov stavebných materiálov a inovácií s prezentáciou...

Hotel Hirschen Spa House, Rakúsko

Novotvar v prostredí alpskej obce.

Vytvorte si kúpeľňu snov: dizajnové riešenie od značky hansgrohe

Hansgrohe - prémiová značka kúpeľňových riešení, ponúka nadčasový dizajn, technickú precíznosť a udržateľné inovácie...

Okná Internorm za minuloročné ceny + hliníkový kryt zdarma!

Využite špeciálnu akciu Internorm: okná za minuloročné ceny a hliníkový kryt úplne zadarmo. Ponuka je časovo obmedzená!

Moderné plynové technológie: Efektivita a inovácie pre 21. storočie

Sumarizácia najdôležitejších inovácií, ktoré redefinujúcich využitie tohto energetického zdroja.

Utesňovanie spodných stavieb pomocou hydro-aktívnej fólie AMPHIBIA.

AMPHIBIA 3000 GRIP 1.3 od spoločnosti ATRO predstavuje modernú hydroizolačnú technológiu, ktorá spája vysokú odolnosť,...

Dekarbonizácia individuálneho vykurovania domácností – Green Deal evolučne a nie revolučne

Ambiciózne plány EK narazili na ekonomické možnosti domácností v jednotlivých členských štátoch –...

Minimalistické dvere IDEA – technická precíznosť a čistota prevedenia

IDEA DOOR od spoločnosti JAP prináša do interiéru čistý minimalistický vzhľad vďaka bezrámovému riešeniu a precíznej...

Dom s výhľadom na údolie, Dlouhý Most (ČR)

Kontinuita riešenia od vonkajšieho obkladu až po kovania a kľučky.

Schell Vitus – osvedčené riešenie pre sprchy a umývadlá vo verejnom sektore s viac ako desaťročnou tradíciou

Nástenné nadomietkové armatúry Vitus sú mimoriadne vhodné pre rýchlu a efektívnu...

Kompozitné okná predstavujú súčasnosť a budúcnosť

Okenné profily z kompozitného materiálu RAU-FIPRO X od spoločnosti Rehau sú v porovnaní s tradičnými plastovými profilmi mnohonásobne...

Myotis - stoly 2025

Najnovší sortiment stolov pre zariadenie interiérov...

Priemyselné sklenené priečky Dorsis Digero: svetelné rozhranie pre moderné interiéry

Spojenie moderného dizajnu, funkčnosti a svetla do harmonického architektonického prvku.

Význam prirodzeného svetla pre moderné a flexibilné pracovné prostredie

Kancelárska budova Baumit v slovinskom Trzine prešla premenou na moderné a udržateľné pracovisko. Architekti kládli dôraz...

Konferencia Xella Dialóg predstaví novinky a trendy v stavebníctve

Mottom šiesteho ročníku on-line konferencie odborníkov Xella Dialóg je Efektívny návrh budov 2025+: zmeny a riešenia

Spoločenská sála pivovaru Kocour, Varnsdorf (ČR)

Vydarená konverzia varnsdorfskej továrne na keramiku. Autori nechávajú eleganciu železobetónovej konštrukcie haly z roku 1912.
Diela
Red 318.08.2020
10000+15
Spoločenská sála pivovaru Kocour, Varnsdorf (ČR)
Autori: doc. Ing. arch. Petr Šikola, Ph.D., doc. Ing. arch. Václav Dvořák, CSc., Ing. arch. Jan Černoch, Ing. arch. Kristýna BednářováSpolupráca: Ing. Čestmír Dobeš (statika), Ing. arch. Adam Bohatý, Jiří Mezera (grafika a orientačný systém)Návrh: 2017 - 2018Realizácia: 2018 - 2019Adresa: Rumburská 1920, Varnsdorf, SlovenskoPublikované: 18. august 2020

V roku 1912 dokončil mestský staviteľ Anton Möller továreň na kameninové a šamotové výrobky, ako pobočku firmy bratov Böttcherovcov. Budova mala progresívnu železobetónovú konštrukciu, bola elektrifikovaná a napojená na železničnú vlečku. Od roku 2007 sa v bývalej keramičke začalo variť pivo s logom Kocúra. 

Pražský ateliér stál pred neľahkou úlohou konverzie výrobnej haly na spoločenskú sálu pivovaru. Ako prioritu si určil rehabilitáciu technickej pamiatky - železobetónovej konštrukcie z roku 1912 a jej predstavenie s novou funkciou. 

Hlavná sála s vloženými galériami
Hlavná sála s vloženými galériamiFoto: Jaroslav Kvíz

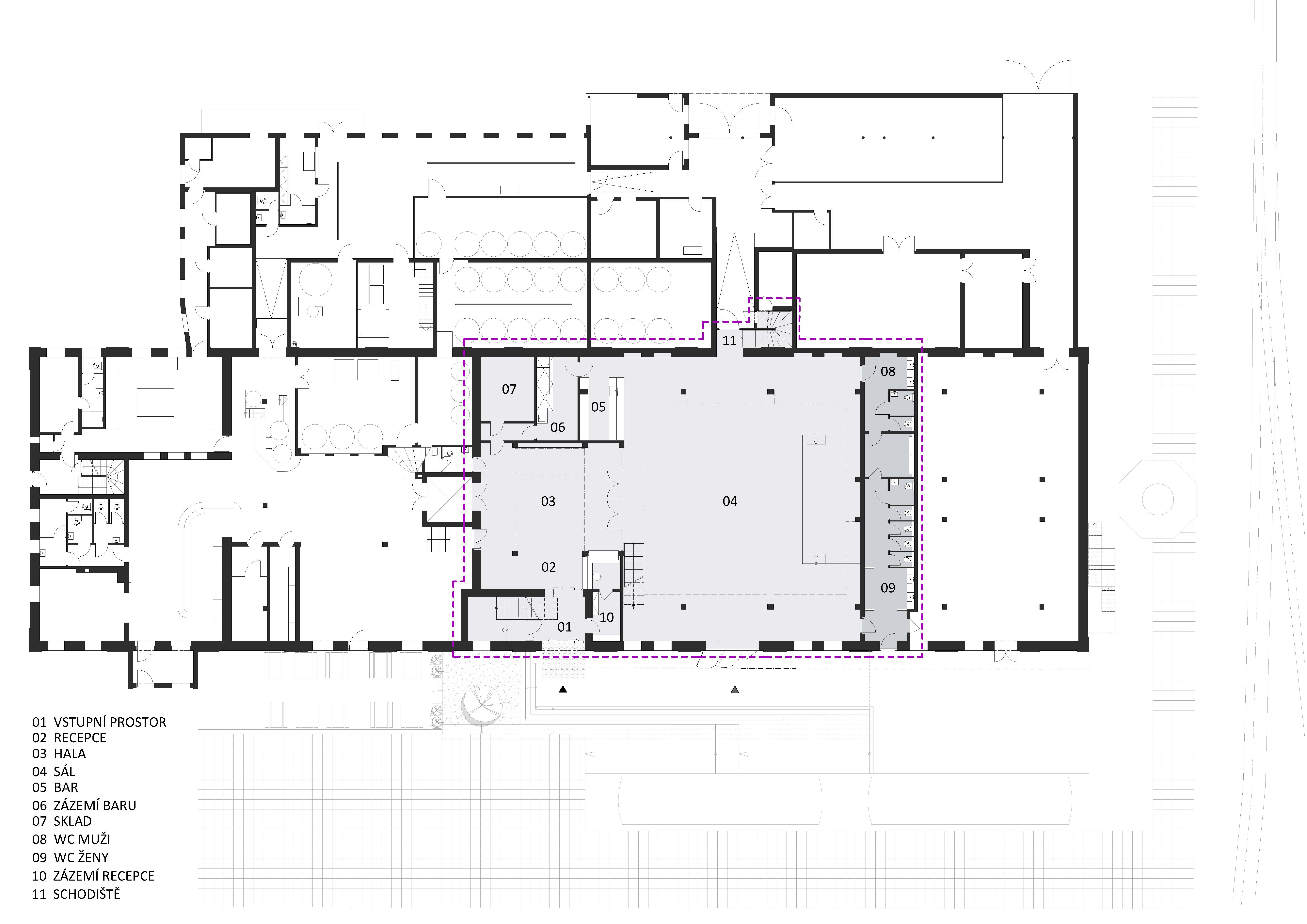
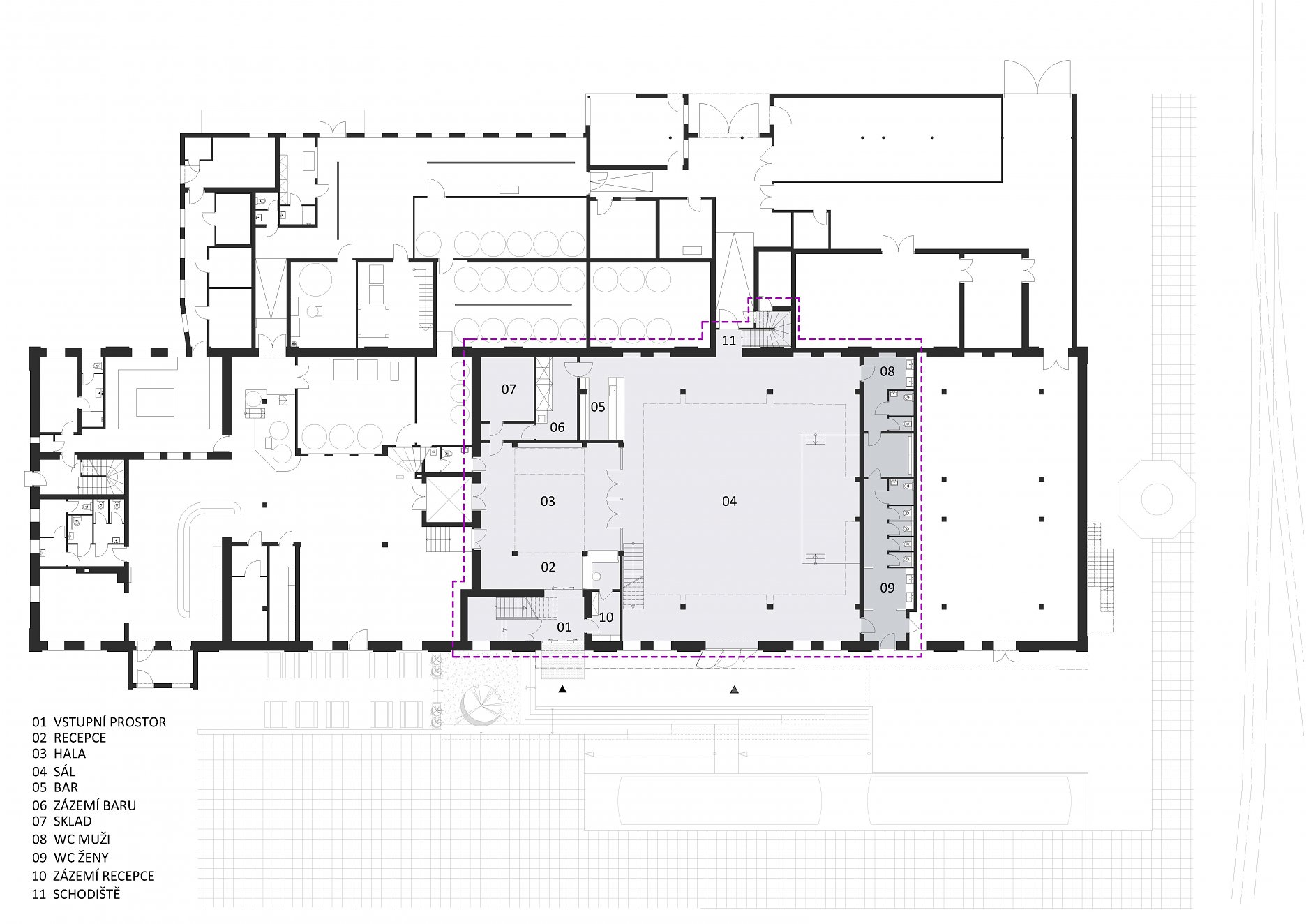
V pôvodnom priestore výrobne keramiky sa nachádzala dvojica poškodených "H" stĺpov, ktorá bola nahradená vynesením tiahlami - vznikol tak voľný priestor pre sálu s kapacitou 250 osôb.

Hlavný priestor s tanečným parketom
Hlavný priestor s tanečným parketomFoto: Jaroslav Kvíz

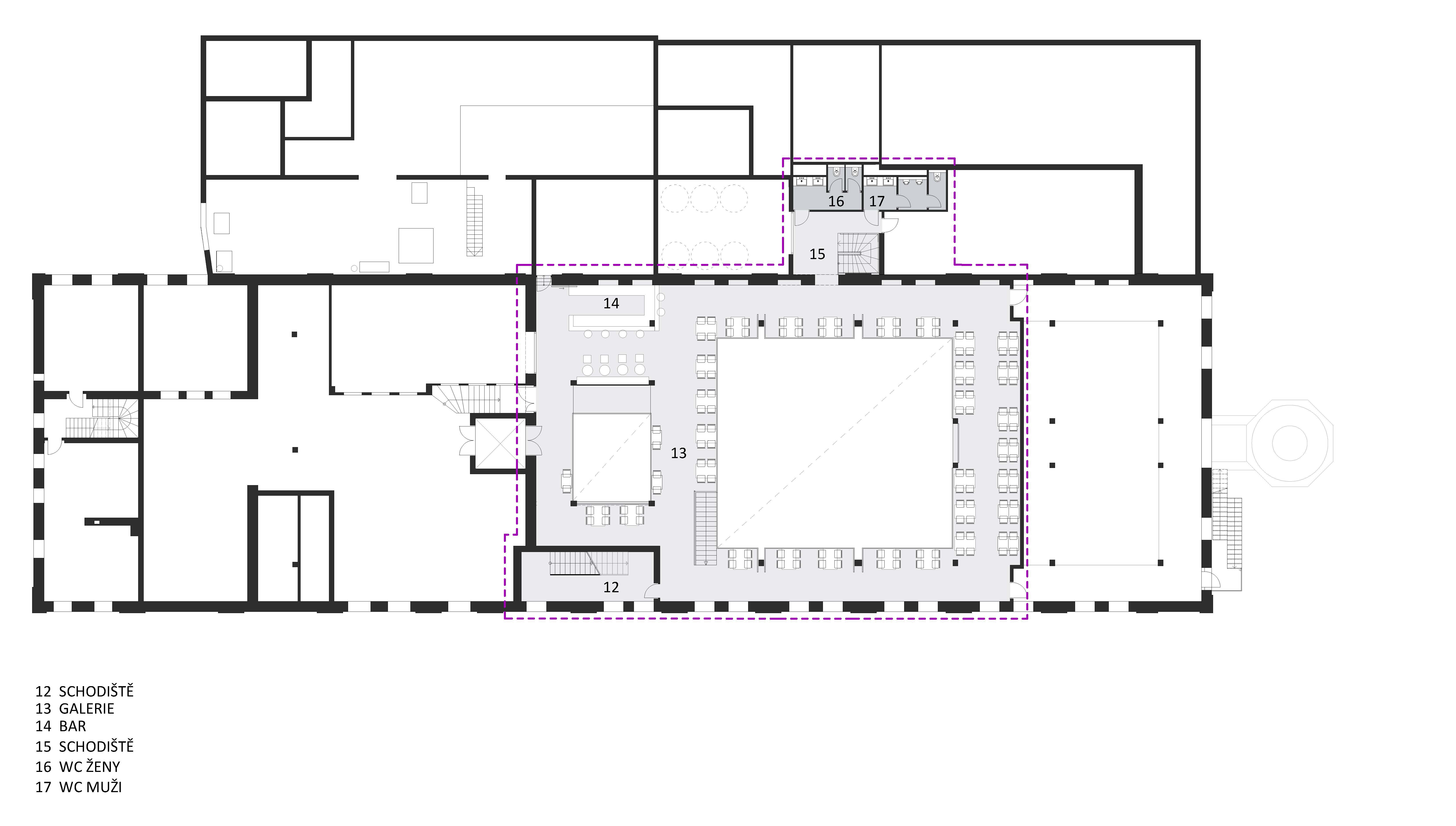
Dvojpodlažná sála, s vloženou galériou, zahŕňa priestor pre spoločenské hygienické a technické zázemie malého pivovaru. 

Vložená galéria
Vložená galériaFoto: Jaroslav Kvíz
Galéria so zábradlím z drôtených sietí
Galéria so zábradlím z drôtených sietíFoto: Jaroslav Kvíz

Sála je prístupná cez cez vstupnú halu, ktorou na poschodí prechádza oceľová lávka, s podlahou vyplnenou sklobetonovými tvárnicami. Zavesená svetelná rampa osvetľuje stenu z fliaš s logom Kocúra, vítajúcu návštevníkov. Vstupná hala je prevádzkovo prepojená s pivovarskou reštauráciu. Odhalené betónové konštrukcie dopĺňa čierny plech galérií, zábradlie z drôtených sietí, alebo schodisko s perforovanou siluetou Kocúra. Podlahu tvorí škárorez zo šamotových tehál, hladený betón a dubové parkety, na  galériách slzičkový plech. 

Priehľad do hlavného priestoru s tanečným parketom
Priehľad do hlavného priestoru s tanečným parketomFoto: Jaroslav Kvíz
Pohľad na bar a na stenu z fliaš s logom Kocúra
Pohľad na bar a na stenu z fliaš s logom KocúraFoto: Jaroslav Kvíz

V priestore je umiestnená dvojica barov s rozdielnou atmosférou - výčap je akcentovaný "nekonečným poľom jačmeňa", horný bar je digitálnym displejom z pivných fliaš, s výhľadom do pivovarskej Spilky. Podhľady barov tvoria zavesené tácky miestneho piva. Priestor sály je osvetlený fabrickými oknami a továrenskými svietidlami. Grafika orientačného systému vychádza z motívu industriálnej žlto-čiernej šrafy.

Výčap s nekonečným poľom jačmeňa
Výčap s nekonečným poľom jačmeňaFoto: Jaroslav Kvíz
Galéria - pohľad na schodisko
Galéria - pohľad na schodiskoFoto: Jaroslav Kvíz
Oceľová lávka so sklobetónovými tvárnicami
Oceľová lávka so sklobetónovými tvárnicamiFoto: Jaroslav Kvíz
Schodisko s perforovaným logom Kocúra
Schodisko s perforovaným logom KocúraFoto: Jaroslav Kvíz
Orientačný systém sály
Orientačný systém sályFoto: Jaroslav Kvíz
Situácia
SituáciaAutor: DOMYJINAK architekti
Pôdorys prízemia
Pôdorys prízemiaAutor: DOMYJINAK architekti
Pôdorys poschodia
Pôdorys poschodiaAutor: DOMYJINAK architekti
Pozdĺžny rez
Pozdĺžny rezAutor: DOMYJINAK architekti
Priečny rez
Priečny rezAutor: DOMYJINAK architektiAutor: DOMYJINAK architekti
Južný pohľad
Južný pohľadAutor: DOMYJINAK architekti
Pôvodný stav - exteriér a interiér pivovaru Kocúr
Pôvodný stav - exteriér a interiér pivovaru Kocúr

Poloha diela

doc. Ing. arch. Petr Šikola, Ph.D.
doc. Ing. arch. Václav Dvořák, CSc.
Ing. arch. Jan Černoch
Ing. arch. Kristýna Bednářová
Vložené
11. august 2020
0
1000
Hlavný obsahHlavný obsah
Čakajte prosím