Na podujatí sa predstaví až 37 vystavovateľov - popredných dodávateľov stavebných materiálov a inovácií s prezentáciou...
Novotvar v prostredí alpskej obce.
Hansgrohe - prémiová značka kúpeľňových riešení, ponúka nadčasový dizajn, technickú precíznosť a udržateľné inovácie...
Využite špeciálnu akciu Internorm: okná za minuloročné ceny a hliníkový kryt úplne zadarmo. Ponuka je časovo obmedzená!
Sumarizácia najdôležitejších inovácií, ktoré redefinujúcich využitie tohto energetického zdroja.
AMPHIBIA 3000 GRIP 1.3 od spoločnosti ATRO predstavuje modernú hydroizolačnú technológiu, ktorá spája vysokú odolnosť,...
Ambiciózne plány EK narazili na ekonomické možnosti domácností v jednotlivých členských štátoch –...
IDEA DOOR od spoločnosti JAP prináša do interiéru čistý minimalistický vzhľad vďaka bezrámovému riešeniu a precíznej...
Kontinuita riešenia od vonkajšieho obkladu až po kovania a kľučky.
Nástenné nadomietkové armatúry Vitus sú mimoriadne vhodné pre rýchlu a efektívnu...
Okenné profily z kompozitného materiálu RAU-FIPRO X od spoločnosti Rehau sú v porovnaní s tradičnými plastovými profilmi mnohonásobne...
Najnovší sortiment stolov pre zariadenie interiérov...
Spojenie moderného dizajnu, funkčnosti a svetla do harmonického architektonického prvku.
Kancelárska budova Baumit v slovinskom Trzine prešla premenou na moderné a udržateľné pracovisko. Architekti kládli dôraz...
Mottom šiesteho ročníku on-line konferencie odborníkov Xella Dialóg je Efektívny návrh budov 2025+: zmeny a riešenia

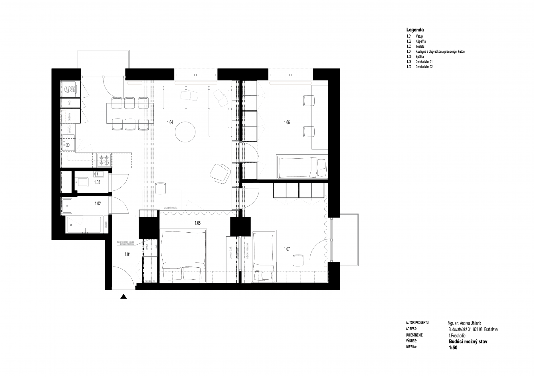
Priestor pre rozrastajúcu sa rodinu v centre mesta. Snaha o udržateľnosť dispozičných a materiálových zmien a dôraz na možné budúce scenáre fungovania bytu. Centrom sa stala otvorená spoločenská, kde rodina trávi väčšinu času. Zároveň vznikla "bonusová izba" za presklenou priečkou, ktorej funkcia sa dokáže prispôsobiť rôznym režimom fungovania bytu. Neutrálna kulisa necháva vyniknúť pôvodné solitéry, knihy a novú dubovú podlahu...
Realizáciu bližšie predstaví sprievodný text autorky interiéru Andrey Uhliarik.
Úvod
Rekonštrukcia bytu na sídlisku 500 bytov sa začínala obdobím hlbokej reflexie a uvažovania o mieste, o potrebách rozrastajúcej sa rodiny v strede veľkomesta a hľadania cesty ako zachovať to dobré a hodnotné z pôvodného rázu bytu a dať mu vyniknúť v novom.
Dostala som príležitosť pretvoriť pôvodný byt v najstaršej sídliskovej časti v Bratislave, ktorý od svojho vzniku v povojnových 50. rokoch 20. storočia neprešiel takmer žiadnou zmenou a ukrýval v sebe niekoľko pôvodných solitérov a štedrú dávku nostalgie.
Práca na tomto projekte bola pre mňa osobne neopakovateľnou skúsenosťou. Projekt totiž postupne napredoval počas môjho prvého tehotenstva. K celému procesu som nepristupovala už len ako dizajnér, ale postupne aj ako čerstvá mama. Skúsenosť materstva mi pomohla lepšie pochopiť potreby a nové výzvy bývania pre mladú rodinu.
Z pôvodného tak vznikol priestor pre nový život s výhľadom na budúce možné scenáre fungovania
bytu.
Reflexia
Pri každom projekte pokladám za kľúčový moment obdobie reflexie, ktorý predznamenáva úspešnosť finálneho výsledku. Za kľúčové pokladám hlavne dva body:
A / Spoznanie a pochopenie požiadaviek, problémov a skutočností
B / Hľadanie “dokonalej” finálnej dispozície
A / Požiadavky, problémy a skutočnosti
B / Pôvodná a nová (finálna) dispozícia
Základné údaje
Materiály
Obmedzenia
Rozpočet mladej rodiny
Limity priestoru
Bezpečnosť priestoru pre malé dieťa
Prínos rekonštrukcie
Celkový prínos a význam rekonštrukcie som rozdelila do piatich základných bodov, ku ktorým celý proces smeroval.
1) Funkčnosť
Optimalizácia úložných priestorov
Hľadala som možnosti, ako v byte vytvoriť viac skrytých úložných priestorov, ktorými sa zbytočne nezmenší úžitková plocha a nenaruší sa vzdušnosť priestoru.
● Knižnica:
● Kúpelňa
● Toaleta:
Chladenie
V lokalite je chladenie dôležitejšou témou ako kúrenie. Byt je orientovaný na juhozápad. V doobedných hodinách je byt pod náporom silného svetla, čo je v lete menej žiaduce. Inštalácia single split klimatizačnej jednotky v spoločnom priestore bytu bola preto nutnosťou. S víziou budúceho využívania bytu a pravdepodobného zvyšovania horúčav v meste, bola do steny medzi detskou izbou a spálňou inštalovaná kompletná príprava na zapojenie multisplit jednotky na chladenie oboch miestností. Na udržiavaní optimálnej teploty v interiéri sa do veľkej miery podieľajú aj exteriérové žalúzie.
Akustika
Väčšina súčasných rodín má zvýšené nároky a komplikované potreby na akustiku a optimalizáciu hluku v interiéri - uspávanie a spánok detí, hlučná hra, home office jedného alebo oboch rodičov. Kvôli limitom v rozpočte sa neinvestovalo priamo do akustických materiálov. Hľadali sa ale možnosti zlepšenia podmienok:
Vetranie
Inštalácia rekuperácie by v danom byte bola finančne a najmä technicky náročná. Aj keď jej funkcia nie je inak nahraditeľná, hľadala som možnosti, aby boli všetky priestory dobre vetrateľné. Tento aspekt výrazne zlepšilo otvorenie dispozície, kde vzniklo prepojenie kuchynského balkóna s hlavným priestorom a jeho diagonálne smerovanie k spálňovému balkónu. Najdôležitejšie bolo vyriešiť vetranie bonusovej izby /pracovne/ - miestnosti bez vlastného okna. Medzi spálňou a pracovňou sa inštalovalo interiérové výklopné okno. Dodáva priestoru viac svetla a pri otvorení balkóna v spálni, nastáva aj v pracovni príjemný pohyb vzduchu.
2, Otvorenosť priestoru a presvetlenie
Byt sa po rekonštrukcii oproti pôvodnému stavu značne otvoril, prevzdušnil a získal aj štedrú dávku denného svetla. Vďaka statickému systému betónových “téčok” a stĺpov bolo možné odstrániť nenosné priečky. Z pôvodnej kuchyne, obývačky a tmavej uzavretej chodby so šatníkom vznikol jeden otvorený presvetlený priestor. Oddelila sa len novovzniknutá pracovňa, ktorá však zostáva vďaka sklenenej priečke vizuálne prepojená so zvyškom bytu.
Kuchynský balkón konečne získal svoj potenciál a namiesto presvetlenia malej kuchyne, presvetlil celý spoločný priestor až po stôl v pracovni. Betónový prievlak medzi kuchyňou a obývačkou sme vyčistili a ponechali v pôvodnom stave ako odkaz na oporný systém a um pôvodných staviteľov. Zároveň tento prvok pekne označuje centrum a hlavnú líniu bytu. Vizuálne oddeluje a priestorovo vyhraňuje kuchyňu a obývačku. Stropy sa nanovo omietali, nechceli sme ich nechať odhalené kvôli dostatku svetla, čo bolo prioritou pred súčasnými trendmi priznávania stavebných materiálov.
3, Zachovanie pôvodného
Zachovanie funkčných zón
Dispozícia sa skôr otvorila, ako menila. Pôvodné funkčné zóny bytu sa zachovali. Dôvody boli nasledovné:
Prievlaky prirodzene predelujú celý byt na 3 hlavné funkčné zóny:
Nové miesto pre pôvodné aj súčasné knihy
Pôvodný interiér miestami pripomínal menšiu knižnicu. Poličky s knihami boli rôzne rozmiestnené po priestore. Do bytu som navrhla jednu kompaktnú celostenovú knižnicu na uskladnenie a zároveň vystavenie pôvodných aj nových kníh. Knihy zároveň zlepšujú akustiku novo otvoreného priestoru a prirodzene dodávajú celú farebnú paletu priestoru. Police plynule pokračujú ponad dvere. Zámerom bolo dvere do izieb vsadiť do knižnice, aby sa človek sediaci na sedačke necítil ako na chodbe plnej dverí. Knižnica tak nepôsobí ako kus nábytku, ale ako súčasť architektúry.
Využitie starých solitérov
Vybrala som niekoľko solitérov ako spomienku na pôvodný ráz bytu tak, aby sa dopĺňali a vzájomne obohacovali s novými hmotami. Niektoré z nich vyžadovali aj repasovanie. V novom šate prekvapili hlavne kuchynské stoličky. Po prebrúsení boli namorené tak, aby sa lepšie prispôsobili pôvodnému kuchynskému stolu. Pôvodnú pieskovú farbu textílie sme nahradili antracitom.
V novom interiéri boli ponechané aj pôvodné radiátory.
4, Udržateľnosť
Udržateľnosť pre mňa ako autorku interiéru, znamená cítenie, že keď sa rozhodneme kompletne zrekonštruovať byt, ktorý tu stál takmer bez zmeny 70 rokov, je našou zodpovednosťou neprihliadať len na potreby súčasnej mladej rodiny v horizonte piatich rokov, ale dovidieť aj do budúcna. Málokto dnes bývanie v byte vníma ako na konečnú stanicu svojho života. Majitelia bytu môžu za pár rokov hľadať nájomcov, prípadne byt predať. Udržateľnosť v tomto prípade nie je ani tak o ekologických materiáloch, ale skôr o ich trvácnosti a kvalite.
Predovšetkým je to ale o variabilite dispozície a nadčasovosti jej využitia. Interiér bytu by preto z môjho pohľadu nemal príliš podliehať trendom a len potrebám aktuálnych obyvateľov, ale prihliadať aj na budúce vízie.
Z tohto hľadiska som sa snažila o funkčnú aj formálnu nadčasovosť nového interiéru bytu.
5, Vznik bonusovej izby
Snaha o nadčasovosť a udržateľnú dispozíciu bytu reflektuje hlavne vytvorenie bonusovej štvrtej izby, ktorej využitie sa dokáže prispôsobiť rôznych scenárom. Počas dňa je v izbe dostatok svetla vďaka presklenej priečke, led osvetlenie zase vytvára príjemnú večernú atmosféru a osvetľuje grafiky. Vetranie zabezpečuje výklopné okno do spálne. Závesy pridávajú priestoru intimitu a zlepšujú jeho akustiku.
Scenár 01
Scenár 02
Scenár 03
Scenár 04
Fotografie:
Podklady: Andrea Uhliarik
Fotografie: Zuzana Smolková