Advertorial

Pozvánka na 2. ročník stavebného veľtrhu BigMarket na Slovensku

Na podujatí sa predstaví až 37 vystavovateľov - popredných dodávateľov stavebných materiálov a inovácií s prezentáciou...

Hotel Hirschen Spa House, Rakúsko

Novotvar v prostredí alpskej obce.

Vytvorte si kúpeľňu snov: dizajnové riešenie od značky hansgrohe

Hansgrohe - prémiová značka kúpeľňových riešení, ponúka nadčasový dizajn, technickú precíznosť a udržateľné inovácie...

Okná Internorm za minuloročné ceny + hliníkový kryt zdarma!

Využite špeciálnu akciu Internorm: okná za minuloročné ceny a hliníkový kryt úplne zadarmo. Ponuka je časovo obmedzená!

Moderné plynové technológie: Efektivita a inovácie pre 21. storočie

Sumarizácia najdôležitejších inovácií, ktoré redefinujúcich využitie tohto energetického zdroja.

Utesňovanie spodných stavieb pomocou hydro-aktívnej fólie AMPHIBIA.

AMPHIBIA 3000 GRIP 1.3 od spoločnosti ATRO predstavuje modernú hydroizolačnú technológiu, ktorá spája vysokú odolnosť,...

Dekarbonizácia individuálneho vykurovania domácností – Green Deal evolučne a nie revolučne

Ambiciózne plány EK narazili na ekonomické možnosti domácností v jednotlivých členských štátoch –...

Minimalistické dvere IDEA – technická precíznosť a čistota prevedenia

IDEA DOOR od spoločnosti JAP prináša do interiéru čistý minimalistický vzhľad vďaka bezrámovému riešeniu a precíznej...

Dom s výhľadom na údolie, Dlouhý Most (ČR)

Kontinuita riešenia od vonkajšieho obkladu až po kovania a kľučky.

Schell Vitus – osvedčené riešenie pre sprchy a umývadlá vo verejnom sektore s viac ako desaťročnou tradíciou

Nástenné nadomietkové armatúry Vitus sú mimoriadne vhodné pre rýchlu a efektívnu...

Kompozitné okná predstavujú súčasnosť a budúcnosť

Okenné profily z kompozitného materiálu RAU-FIPRO X od spoločnosti Rehau sú v porovnaní s tradičnými plastovými profilmi mnohonásobne...

Myotis - stoly 2025

Najnovší sortiment stolov pre zariadenie interiérov...

Priemyselné sklenené priečky Dorsis Digero: svetelné rozhranie pre moderné interiéry

Spojenie moderného dizajnu, funkčnosti a svetla do harmonického architektonického prvku.

Význam prirodzeného svetla pre moderné a flexibilné pracovné prostredie

Kancelárska budova Baumit v slovinskom Trzine prešla premenou na moderné a udržateľné pracovisko. Architekti kládli dôraz...

Konferencia Xella Dialóg predstaví novinky a trendy v stavebníctve

Mottom šiesteho ročníku on-line konferencie odborníkov Xella Dialóg je Efektívny návrh budov 2025+: zmeny a riešenia

Priestory Slovenskej komory architektov, Námestie SNP 18, Bratislava

Keď sa architekti sťahujú (k Tvarožkovi).
Diela
Red 414.02.2019
23920+28
Priestory Slovenskej komory architektov, Námestie SNP 18, Bratislava
Autori: Ing. arch. Kornel KobákInvestor: Slovenská komora architektovPodlažná plocha: 340 m2 Návrh: 2018 - 2018Realizácia: 2018 - 2018Adresa: Námestie SNP 18, Bratislava, SlovenskoPublikované: 14. február 2019

Od augusta minulého roka sídli Slovenská komora architektov v nových priestoroch. Z neskorobarokového Balašovho paláca sa po 26 rokoch presťahovala do jednej z najcennejších funkcionalistických budov na Slovensku - Mestskej sporiteľne na Námestí SNP v Bratislave.

Ťažkého zadania a hľadania novej podoby sídla Komory sa ujal Kornel Kobák. “Bola to pekná polročná práca, ktorá vyžadovala pevné nervy a trocha skúseností k tomu. Nešlo pritom o sebaprezentáciu, skôr o pozbieranie a usmernenie energie, ktorá sa v Komore nahromadila,” vysvetľuje. Z pohľadu štandardnej práce architekta malé zadanie si vyžiadalo osobný prístup a nasadenie. Kornel bol architektom, manažérom, dozorom a občas aj realizátorom.

Po rekonštrukcii najhodnotnejších spoločných priestorov budovy o ktorých sme písali tu, prišla na rad aj adaptácia prenajímateľných priestorov na vyšších podlažiach. Úrad Komory našiel svoje miesto na druhom poschodí, kde sa pôvodne nachádzali kancelárie sporiteľne.

Foto: Tomáš Manina
Foto: Tomáš Manina
Foto: Tomáš Manina

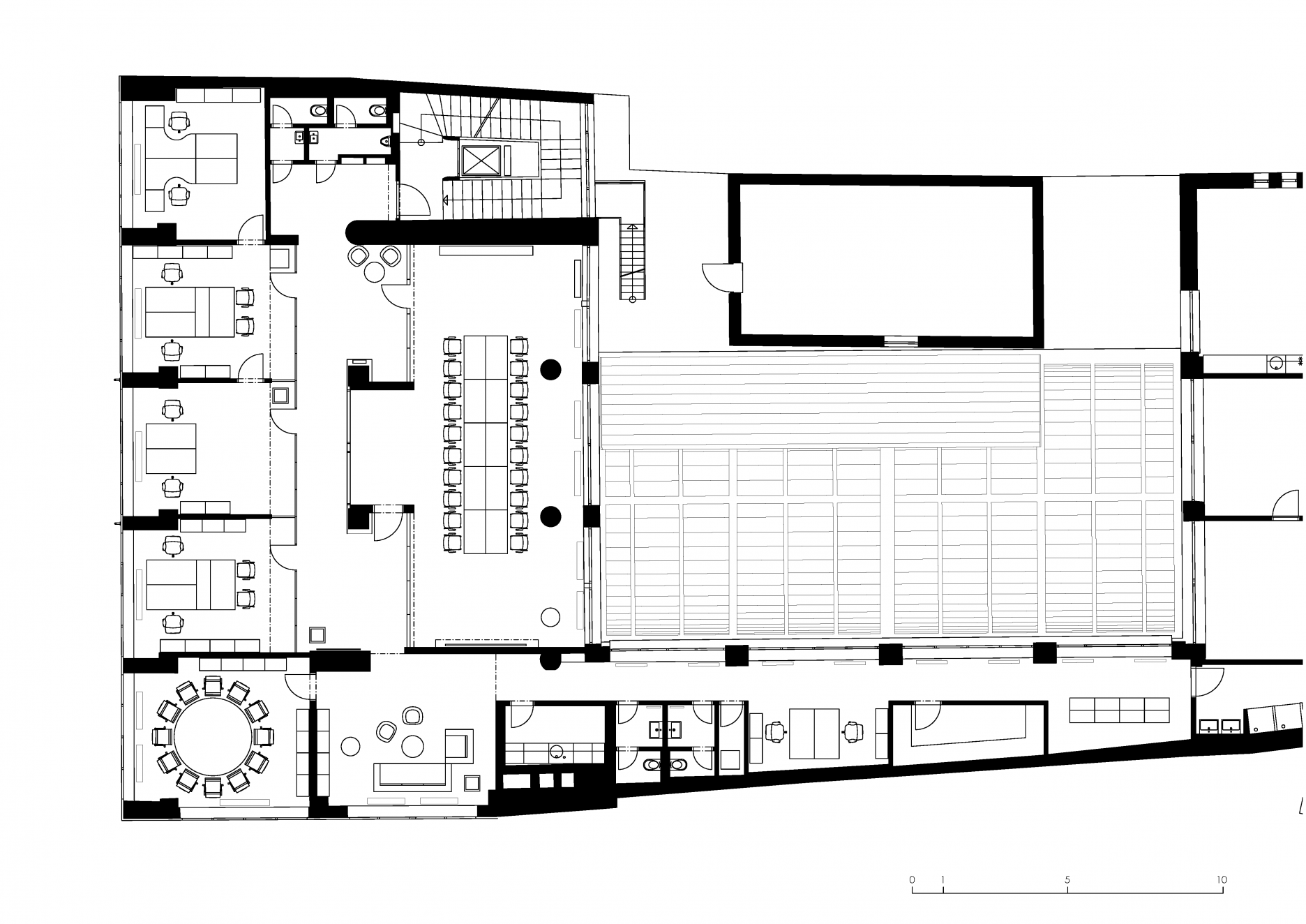
Nové usporiadanie priestorov do značnej miery rešpektuje pôvodný Tvarožkov koncept. Hlavná, viacúčelová zasadačka je orientovaná do átria, zatiaľ čo “transparentné” kancelárie prebiehajú pozdĺž fasády orientovanej do Námestia SNP. Každodenne fungujúce pracoviská využívajú výhľad na živé mesto. Reprezentatívny priestor, ktorý je možné oddeliť mobilnými akustickými priečkami, naopak ťaží z pokojného prostredia átria. Najzásadnejším stavebným zásahom bolo znovuotvorenie zóny pred nárožnou rokovacou miestnosťou, kde vznikol komorný nástupný a konferenčný priestor.

Pôdorys
PôdorysAutor: Kornel Kobák

V interiéri ostali pôvodné liatinové radiátory a zabudované trezory, ktoré spadali pod pamiatkovú ochranu. Z pôvodného zariadenia priestorov sa nedochovalo nič. Návrh však zachováva a zdôrazňuje subtílne kvality Tvarožkovej priestorotvorby. Oku skúseného pozorovateľa tak neunikne kontext a hierarchia priestoru v rámci nadčasového architektonického diela. Aj v prípade, že nepoznáme príbeh objektu, sprostredkúva súčasný tvorivý prístup architekta a jeho chápanie priestoru v nových súvislostiach primeranú estetickú kvalitu.

S osadenstvom sa do nových priestorov sťahoval aj pôvodný mobiliár a svietidlá, ktoré sa podarilo do návrhu šikovne zakomponovať. Hodnota realizácie nie je vo výpravnosti, technologickej náročnosti, či v dokonale vypointovaných detailoch. Koncept ide svojou striedmosťou a nenápadnosťou proti módnym trendom pracovného prostredia. Prvoradá je funkcia.

Monochromatický interiér, ktorý dôstojne reprezentuje inštitúciu, dopĺňa drevená dyha a občasný farebný akcent. Dôležitý je primeraný detail. Členenie interiérových obkladov a zasklenia odkazuje na prvú zavesenú transparentnú fasádu na našom území, použitú práve na budove Mestskej sporiteľne. Nebol by to Kornel, keby sme v jeho tvorbe nenašli zdravý nadhľad a miernu dávku intelektuálneho vtipu. Pri vstupe do nových priestorov nás víta stena s vešiakmi, ktoré sú podložené štandardnými reznými kotúčmi. Milým detailom je tiež označenie toaliet symbolmi “XY” a “XX”, ktoré v praxi (niekedy aj akútne) preveria, ako ste dávali pozor na hodinách biológie :-).

Foto: Tomáš Manina
Foto: Tomáš Manina
Foto: Tomáš Manina
Foto: Tomáš Manina
Foto: Tomáš Manina
Foto: Tomáš Manina
Foto: Tomáš Manina
Foto: Tomáš Manina
Foto: Tomáš Manina
Foto: Tomáš Manina
Foto: Tomáš Manina
Foto: Tomáš Manina
Foto: Tomáš Manina
Foto: Tomáš Manina
Foto: Tomáš Manina
Foto: Tomáš Manina
Foto: Tomáš Manina
Foto: Tomáš Manina

Nové sídlo Slovenskej komory architektov je podľa nášho názoru podareným dielom. Nielenže sa nová funkcia bez problémov integrovala do stavebnej podstaty jednej z napozoruhodnejších budov modernej medzivojnovej architektúry na Slovensku, ale ju aj zdarne rozvinula smerom k súčasnosti.

Dielo umocnilo pôvodné priestorové danosti objektu. Preukázalo, že dobrá stavba je schopná adaptovať sa na nové podmienky, i zmeny, ktoré čas neúprosne a pravidelne prináša. Dobre navrhnutý objekt dokáže držať krok s dobou. Ak sa naviac nájde dobrý architekt, schopný citlivo nadviazať na odkaz svojho hviezdneho predchodcu, potom výsledkom môže byť interiér podobný tomu, ktorý sme dnes predstavili.

Jedným z kľúčových aspektov návrhu a realizácie bola aj ich primeranosť. Adaptácia nesmela byť ani drahá, veď je z našich peňazí, ani lacná, lebo reprezentuje architektonický stav i kvalitu našej práce.

Samozrejme meradlom úspechu bude iba čas. Najmä to, či nové priestory dokážu dlhodobo plniť svoj účel. Zdá sa, že štart bol dobrý. Návrh je racionálny, flexibilný a vývojaschopný. Jeho kvalitu a účelnosť však budeme najbezprostrednejšie hodnotiť my, autorizovaní architekti. Na tejto adrese máme svoje profesionálne ústredie. Naša spokojnosť bola východiskom zadania a bude i konečným arbitrom úspechu diela.

Foto: Tomáš Manina

Podklady: Kornel Kobák

Na zariadení interiéru sa podieľala spoločnosť Techo.

Poloha diela

Ing. arch. Kornel Kobák
Vložené
7. február 2019
0
2392
Hlavný obsahHlavný obsah
Čakajte prosím