Advertorial

Hotel Hirschen Spa House, Rakúsko

Novotvar v prostredí alpskej obce.

Vytvorte si kúpeľňu snov: dizajnové riešenie od značky hansgrohe

Hansgrohe - prémiová značka kúpeľňových riešení, ponúka nadčasový dizajn, technickú precíznosť a udržateľné inovácie...

Okná Internorm za minuloročné ceny + hliníkový kryt zdarma!

Využite špeciálnu akciu Internorm: okná za minuloročné ceny a hliníkový kryt úplne zadarmo. Ponuka je časovo obmedzená!

Pozvánka na 2. ročník stavebného veľtrhu BigMarket na Slovensku

Na podujatí sa predstaví až 37 vystavovateľov - popredných dodávateľov stavebných materiálov a inovácií s prezentáciou...

Moderné plynové technológie: Efektivita a inovácie pre 21. storočie

Sumarizácia najdôležitejších inovácií, ktoré redefinujúcich využitie tohto energetického zdroja.

Utesňovanie spodných stavieb pomocou hydro-aktívnej fólie AMPHIBIA.

AMPHIBIA 3000 GRIP 1.3 od spoločnosti ATRO predstavuje modernú hydroizolačnú technológiu, ktorá spája vysokú odolnosť,...

Dekarbonizácia individuálneho vykurovania domácností – Green Deal evolučne a nie revolučne

Ambiciózne plány EK narazili na ekonomické možnosti domácností v jednotlivých členských štátoch –...

Minimalistické dvere IDEA – technická precíznosť a čistota prevedenia

IDEA DOOR od spoločnosti JAP prináša do interiéru čistý minimalistický vzhľad vďaka bezrámovému riešeniu a precíznej...

Dom s výhľadom na údolie, Dlouhý Most (ČR)

Kontinuita riešenia od vonkajšieho obkladu až po kovania a kľučky.

Schell Vitus – osvedčené riešenie pre sprchy a umývadlá vo verejnom sektore s viac ako desaťročnou tradíciou

Nástenné nadomietkové armatúry Vitus sú mimoriadne vhodné pre rýchlu a efektívnu...

Kompozitné okná predstavujú súčasnosť a budúcnosť

Okenné profily z kompozitného materiálu RAU-FIPRO X od spoločnosti Rehau sú v porovnaní s tradičnými plastovými profilmi mnohonásobne...

Myotis - stoly 2025

Najnovší sortiment stolov pre zariadenie interiérov...

Priemyselné sklenené priečky Dorsis Digero: svetelné rozhranie pre moderné interiéry

Spojenie moderného dizajnu, funkčnosti a svetla do harmonického architektonického prvku.

Význam prirodzeného svetla pre moderné a flexibilné pracovné prostredie

Kancelárska budova Baumit v slovinskom Trzine prešla premenou na moderné a udržateľné pracovisko. Architekti kládli dôraz...

Konferencia Xella Dialóg predstaví novinky a trendy v stavebníctve

Mottom šiesteho ročníku on-line konferencie odborníkov Xella Dialóg je Efektívny návrh budov 2025+: zmeny a riešenia

Prístavná 1, Bratislava

Životaschopný mix funkcií na Mlynských nivách.
Diela
Red 316.06.2025
10010+23
Prístavná 1, Bratislava
Autori: Ing. arch. Kornel Kobák, Ing. arch. Peter VitkoInvestor: RV Development 2 s.r.o.Plocha pozemku: 10 173 m2Podlažná plocha: 28 655 m2Návrh: 2016 - 2022Realizácia: 2022 - 2024Adresa: Prístavná 1, Bratislava, SlovenskoPublikované: 16. jún 2025

Projekt ateliéru AVK ARCHITECTS si prešiel od návrhu po realizáciu kľukatou cestou. Napriek tomu si výsledná architektúra zachováva jasne čitateľnú a artikulovanú štruktúru, ktorú vnáša do rýchlo sa meniacej lokality. Stvárnenie fasáy navonok reflektuje skladbu funkcií v rámci objektu. Dynamiku do výslednej kompozície vnáša skosený blok najvyšších ustúpených podlaží a premenná v podobe pohyblivých prvkov tienenia.

Zmena (z pôvodne administratívnej budovy s doplnkovými funkciami) na pestrejší mix funkcií posilnila "mestskosť" a životaschopnosť objektu v dynamickej dobe, kde sa nedá všetko predvídať. Potvrdila tézu, že dobre navrhnutý dom je schopný priebežne sa prispôsobovať neustálym zmenám vonkajších podmienok, ktoré prináša čas...

 

Viac slovami autorov:

Architektúra je pomalá aj rýchla. Keď sme v roku 2016 zvíťazili vo vyzvanej súťaži na novostavbu na križovaní Prístavnej a Plynárenskej ulice, svet bol zásadne iný ako na jeseň roku 2024, keď sme výsledok osemročného príbehu skolaudovali. V spätnom zrkadle sa developerský hlad po nových kancelárskych budovách v predošlom desaťročí javí ako dávno zabudnutá minulosť. Realitný trh sa len pomaly prebúdza zo šoku prázdnych kancelárií a nedostatok bytov stále straší v celej Európe. V tomto neistom kontexte sa uskutočnil aj náš projekt Office Prístavná 1, ktorý bol pôvodne navrhnutý a povolený ako kancelárska budova.

Zmenená doba donútila developera hľadať pre budovu alternatívny program. A tak nastúpila postupná transformácia projektu “zabetónovaného“ v územnom pláne ako kód 201 – občianska vybavenosť. Výsledkom tejto postupnej transformácie „za pochodu“ je na prvý pohľad kompromisný, ale v skutočnosti životaschopný mix rôznych typológií, naskladaný do objemu presne vymedzeného pôvodným povolením kancelárskej budovy. Zmena zo stĺpového nosného systému na systém stenový, navyše v čase vykopanej základovej jamy, bola len jednou z mnohých výziev pri navrhovaní...

Foto: Matej Hakár
Foto: Matej Hakár

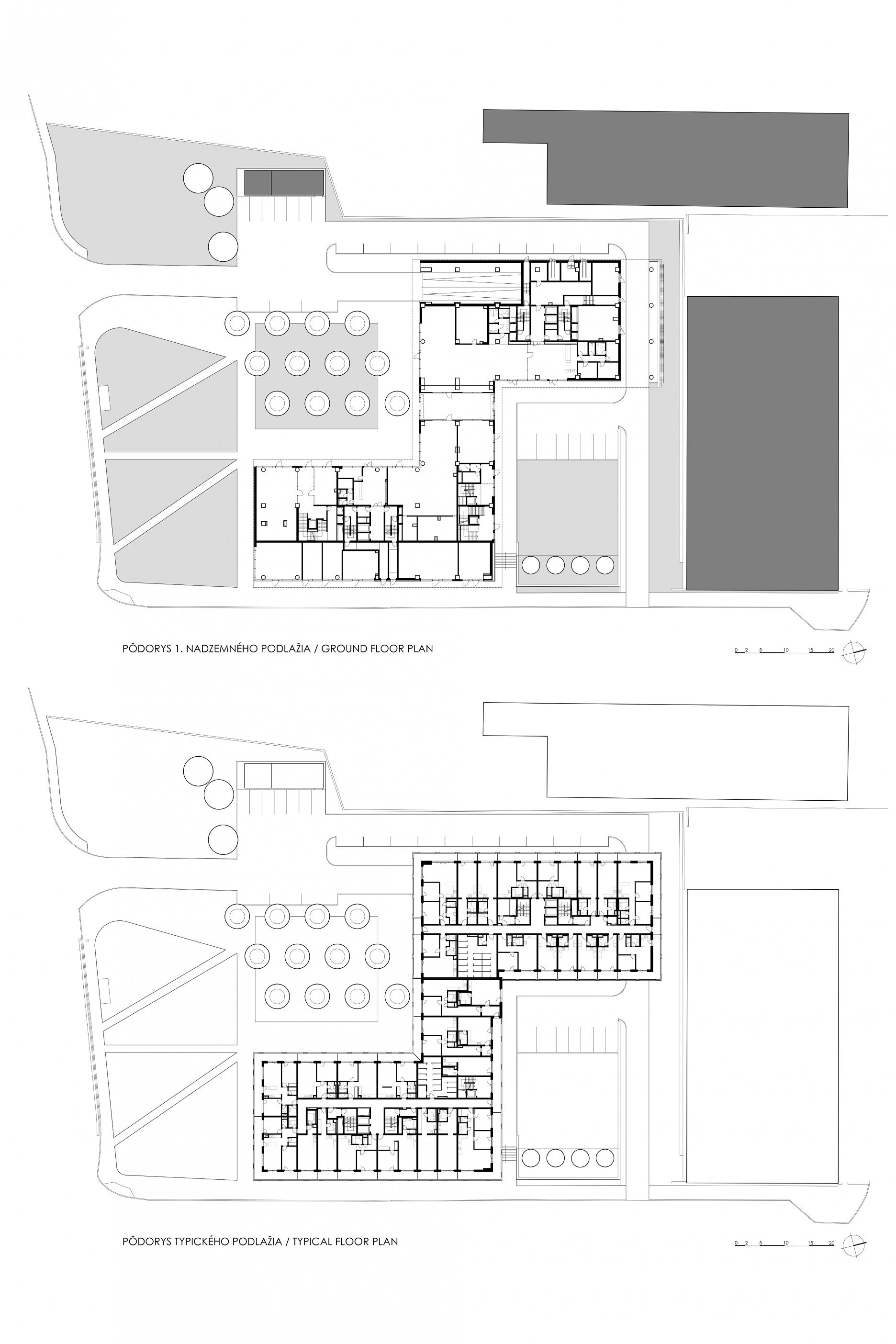
Stavba pozostáva z dvoch podzemných a deviatich nadzemných podlaží usporiadaných pôdorysne do zalomeného tvaru. Objemovo je tvorená dvomi vyššími hmotami a spojovacou nižšou časťou, cez ktorú vedie pasáž spájajúca dva verejné priestory vykrojené tvarom budovy z pozemku. Limitom na osadenie budovy bolo vysokotlaké vedenie plynu súbežne s Prístavnou ulicou, s bezpečnostným pásmom širokým 18 metrov, ktoré predurčilo osadenie stavby a jej voľné predpolie pozdĺž Prístavnej ulice.

Foto: Matej Hakár
Foto: Matej Hakár

Zónovanie funkcií v objekte je štandardné, s garážami v podzemí, obchodnými vstupnými a technickými priestormi na prízemí a čiastočne na 1. poschodí a bytmi, ateliérmi a ubytovacími bunkami na poschodiach. Stavba si zachovala rozmery podľa parametrov z územného rozhodnutia. Z pôvodnej kancelárskej dispozície je odvodená chodbová schéma s vnútornými centrálnymi schodiskami. Do hĺbky traktu je po celom obvode poschodí vložený priebežný balkón.

Pôdorys 1. NP a typického podlažia (6. NP)
Pôdorys 1. NP a typického podlažia (6. NP)Autor: AVK ARCHITECTS
Pohľad a rez
Pohľad a rezAutor: AVK ARCHITECTS

Fasáda budovy artikuluje funkčný mix priestorov ale popri tom si zachováva jednoduchosť bežného mestského domu. Kombinácia bielej, čiernosivej a pieskovej farby, použitej na starostlivo navrhnuté proporcie stavebných elementov, dodáva stavbe potrebnú striedmosť a eleganciu.

Napriek exponovanej polohe v transformujúcej sa časti mesta si stavba rýchlo našla záujemcov o kúpu a postupne sa realizujú aj fit-outy obchodných priestorov. Dom postupne ožíva.

Foto: Matej Hakár
Foto: Matej Hakár
Foto: Matej Hakár
Foto: Matej Hakár
Foto: Matej Hakár
Foto: Matej Hakár
Foto: Matej Hakár

Základné údaje o stavbe:

  • Pozemok: 10 173 m²
  • Byty: 4 851 m²
  • Ateliéry: 3 467 m²
  • Ubytovacie bunky: 6 017 m²
  • Obchodné priestory: 2 179 m²
  • Sklady: 697 m²
  • Spoločné priestory: 3 841 m²
  • Garáže: 7 603 m²

  • Celková plocha: 28 655 m²

  • Zastavaná plocha (nadzemná časť): 2 873 m²
  • Zastavaná plocha (podzemná časť): 4 699 m²
  • Orientačný obostavaný priestor: 132 905 m³

  • Počet parkovacích miest: 286

 

 

Podklady: AVK ARCHITECTS
Fotografie: Matej Hakár

Poloha diela

Ing. arch. Kornel Kobák
Ing. arch. Peter Vitko
Vložené
26. máj 2025
0
1001
Hlavný obsahHlavný obsah
Čakajte prosím