Európska značka okien oslavuje jubileum: za 95 rokov sa vyvinula na najväčšiu medzinárodne pôsobiacu okennú značku a inovačného...
Na podujatí sa predstaví až 37 vystavovateľov - popredných dodávateľov stavebných materiálov a inovácií s prezentáciou...
Novotvar v prostredí alpskej obce.
Hansgrohe - prémiová značka kúpeľňových riešení, ponúka nadčasový dizajn, technickú precíznosť a udržateľné inovácie...
Využite špeciálnu akciu Internorm: okná za minuloročné ceny a hliníkový kryt úplne zadarmo. Ponuka je časovo obmedzená!
Sumarizácia najdôležitejších inovácií, ktoré redefinujúcich využitie tohto energetického zdroja.
AMPHIBIA 3000 GRIP 1.3 od spoločnosti ATRO predstavuje modernú hydroizolačnú technológiu, ktorá spája vysokú odolnosť,...
Ambiciózne plány EK narazili na ekonomické možnosti domácností v jednotlivých členských štátoch –...
IDEA DOOR od spoločnosti JAP prináša do interiéru čistý minimalistický vzhľad vďaka bezrámovému riešeniu a precíznej...
Kontinuita riešenia od vonkajšieho obkladu až po kovania a kľučky.
Nástenné nadomietkové armatúry Vitus sú mimoriadne vhodné pre rýchlu a efektívnu...
Okenné profily z kompozitného materiálu RAU-FIPRO X od spoločnosti Rehau sú v porovnaní s tradičnými plastovými profilmi mnohonásobne...
Najnovší sortiment stolov pre zariadenie interiérov...
Spojenie moderného dizajnu, funkčnosti a svetla do harmonického architektonického prvku.
Kancelárska budova Baumit v slovinskom Trzine prešla premenou na moderné a udržateľné pracovisko. Architekti kládli dôraz...

Keď český vydavateľ spoločenských hier hľadal priestory pre svoje prvé vlastné sídlo, nečakane narazil na rozostavaný supermarket v pražskej časti Hloubětín. Skelet, pôvodne určený pre retailovú prevádzku nakoniec poslúžil inému účelu: stal sa základom pre hravé pracovné prostredie. Autormi prestavby sú ateliéry Horalík Ateliér a Kaplan Architekti, ktoré dokázali veľkopriestorový rámec premeniť na miesto pre zomknutú komunitu a tvorivú prácu.
Objekt vznikal ako typizovaný supermarket. Pravidelný raster nosných betónových konštrukcií určoval mierku aj limity budúcej prestavby, rovnako ako platné územné rozhodnutie, ktoré neumožňovalo meniť celkový objem. Architekt Tomáš Horalík opisuje východiská nasledovne:„Kapacitně jsme se do poměrně velké budovy vcházeli bez problémů… Dokonce jsme si mohli dovolit části dvou fasád zapustit dovnitř a proměnit tak původní banální kostku supermarketu a k tomu vytvořit i kryté vstupy do budovy.“
Prostredie podľa zadania investora nemalo pripomínať anonymnú kanceláriu: „Nechtěli jsme obyčejné kanceláře. Potřebovali jsme místo, kde budeme hry nejen vyvíjet, ale také hrát a testovat – a kde se lidé budou cítit dobře.“
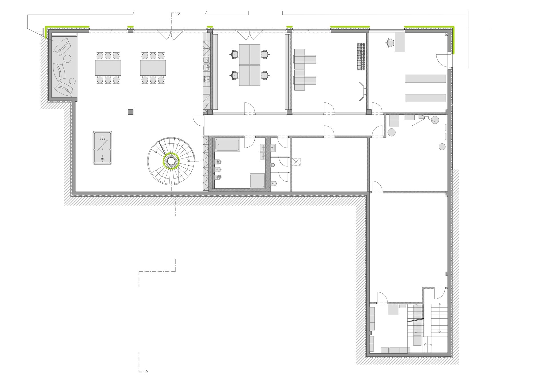
Ťažisko stavby tvorí centrálna hala otvorená cez dve podlažia. Kruhová zasadacia miestnosť, ktorá tvorí súčasť spomínaného vnútorného "námestia" prirodzene zónuje priestor. Celkovú atmosféru dotvára oceľové točité schodisko so stromom uprostred. Átrium dnes funguje ako herňa, spoločenský priestor aj miesto komunitných akcií.
Z pôvodnej stavby architekti zachovali len nosný skelet – všetko ostatné vzniklo nanovo. V prízemí sú kancelárie, rozľahlé herne, sklad aj spomínaná kruhová zasadacia miestnosť. Suterén je plnohodnotným zázemím. Tvorí ho kuchyňa s jedálňou, firemná škôlka, posilňovňa, dielňa a technické miestnosti. Na hornom podlaží sú izby na prespanie, ktoré slúžia počas večerných herných testovaní či návštevám zo zahraničia. Interiér dopĺňa pobytová záhrada, ktorá prepája interiér s vonkajším svetom..
Architekti pracovali s hravými momentmi na pozadí strohého rámca. Bezrámové okná a dvere, zapustené obklady či skrytá technika vytvárajú neutrálny základ. Naproti tomu stoja výrazné kruhové motívy, nepravidelné priestory či esteticky priznané konštrukcie. Dôležitú úlohu zohrávajú prírodné materiály – drevo, korok a všadeprítomná zeleň. Objekt využíva ako zdroj tepla pre tepelné čerpadlá geotermálne vrty, pričom v lete ukladá prebytočné teplo späť do zeme. Na streche sú solárne panely orientované na tri svetové strany, ktoré pokrývajú veľkú časť spotreby energie.
Autori: Horalík Ateliér a Kaplan architekti
Fotografie: Tomáš Dittrich