Advertorial

Pozvánka na 2. ročník stavebného veľtrhu BigMarket na Slovensku

Na podujatí sa predstaví až 37 vystavovateľov - popredných dodávateľov stavebných materiálov a inovácií s prezentáciou...

Hotel Hirschen Spa House, Rakúsko

Novotvar v prostredí alpskej obce.

Vytvorte si kúpeľňu snov: dizajnové riešenie od značky hansgrohe

Hansgrohe - prémiová značka kúpeľňových riešení, ponúka nadčasový dizajn, technickú precíznosť a udržateľné inovácie...

Okná Internorm za minuloročné ceny + hliníkový kryt zdarma!

Využite špeciálnu akciu Internorm: okná za minuloročné ceny a hliníkový kryt úplne zadarmo. Ponuka je časovo obmedzená!

Moderné plynové technológie: Efektivita a inovácie pre 21. storočie

Sumarizácia najdôležitejších inovácií, ktoré redefinujúcich využitie tohto energetického zdroja.

Utesňovanie spodných stavieb pomocou hydro-aktívnej fólie AMPHIBIA.

AMPHIBIA 3000 GRIP 1.3 od spoločnosti ATRO predstavuje modernú hydroizolačnú technológiu, ktorá spája vysokú odolnosť,...

Dekarbonizácia individuálneho vykurovania domácností – Green Deal evolučne a nie revolučne

Ambiciózne plány EK narazili na ekonomické možnosti domácností v jednotlivých členských štátoch –...

Minimalistické dvere IDEA – technická precíznosť a čistota prevedenia

IDEA DOOR od spoločnosti JAP prináša do interiéru čistý minimalistický vzhľad vďaka bezrámovému riešeniu a precíznej...

Dom s výhľadom na údolie, Dlouhý Most (ČR)

Kontinuita riešenia od vonkajšieho obkladu až po kovania a kľučky.

Schell Vitus – osvedčené riešenie pre sprchy a umývadlá vo verejnom sektore s viac ako desaťročnou tradíciou

Nástenné nadomietkové armatúry Vitus sú mimoriadne vhodné pre rýchlu a efektívnu...

Kompozitné okná predstavujú súčasnosť a budúcnosť

Okenné profily z kompozitného materiálu RAU-FIPRO X od spoločnosti Rehau sú v porovnaní s tradičnými plastovými profilmi mnohonásobne...

Myotis - stoly 2025

Najnovší sortiment stolov pre zariadenie interiérov...

Priemyselné sklenené priečky Dorsis Digero: svetelné rozhranie pre moderné interiéry

Spojenie moderného dizajnu, funkčnosti a svetla do harmonického architektonického prvku.

Význam prirodzeného svetla pre moderné a flexibilné pracovné prostredie

Kancelárska budova Baumit v slovinskom Trzine prešla premenou na moderné a udržateľné pracovisko. Architekti kládli dôraz...

Konferencia Xella Dialóg predstaví novinky a trendy v stavebníctve

Mottom šiesteho ročníku on-line konferencie odborníkov Xella Dialóg je Efektívny návrh budov 2025+: zmeny a riešenia

Rodinný dom - 2x2 oči

Rodinný dom v Bratislave na Kolibe v pomerne hustej zástavbe na malom pozemku.
Diela
Red 119.06.2015
16310+6
Rodinný dom - 2x2 oči
Ateliér: Architekti Šebo LichýAutori: Ing. arch. Tomáš ŠeboInvestor: súkromná osobaPlocha pozemku: 475 m2Zastavaná plocha: 120 m2Návrh: 2009 - 2010Realizácia: 2010 - 2012Adresa: Bratislava, SlovenskoPublikované: 19. jún 2015

Rodinný dom je rafinovane osadený vo svahu tak, aby v prostredí nepôsobil mohutne. Vďaka veľkým zaskleniam na oboch stranách dennej časti sa záhrada na neveľkom pozemku stáva akoby súčasťou domu.

foto: Tomáš Manina

Okrem tienenej severozápadnej terasy pred obývačkou (využívanej hlavne v letných horúčavách a za teplých večerov) a slnečnej juhozápadnej terasy pred jedálňou (slúži hlavne pre raňajkovanie a jarne a jesenne vyhrievanie sa na slnku) má dom aj strešnú terasu na streche posledného podlažia, z ktorej si obyvatelia i návštevníci môžu vychutnať panoramatický výhľad na mesto.

foto: Tomáš Manina
foto: Tomáš Manina

Tvarovanie domu vznikalo úplne intuitívne. S klientom sme si úplne na začiatku sadli v záhrade na najpríjemnejšom mieste a povedali sme si že tu sa bude odohrávať každodenný život s krbom v strede, s výhľadom na kľudnú severovýchodnú dvorovú stranu ako aj na uličnú juhozápadnú slnečnú stranu. Následne sme sa virtuálne presunuli na miesto budúcich terás pred obývačkou resp jedálňou na oboch stranách a predstavovali sme si že na nich sedíme chránení pred dažďom pod presahmi horného podlažia a pozeráme sa na kvitnúce jablone.... Od tejto predstavy sa odvíjal najskôr priestorový koncept ktorý bol následne obalený „architektúrou“.

foto: Tomáš Manina
foto: Tomáš Manina

Dom je vlastne prienikom tejto priestorovej predstavy, stavebného zákona (pozemok ma šírku 12m), mierky okolia (nachádzame sa v kompletne zastavanej časti mesta) a svetlotechniky (oslnenie a presvetlenie vlastných priestorov ako aj susedov).

foto: Tomáš Manina

Výškový rozdiel (ulica s prístupom na pozemok je 3 metre pod úrovňou pozemku) je využitý pre vstup a prístrešok pre autá krytý intenzívnou zelenou strechou. Vzniká tak súvislý preplávajúci priestor v jednej rovine, plynúci z jedného konca pozemku cez veľké zasklenia na oboch stranách nerušene až na opačný koniec záhrady.

foto: Tomáš Manina

Celým domom sa vinie schodisko, s nábytkovými kubusmi namiesto zábradlia – cieľom bol čo najobytnejší pocit. Je navrhnuté s dôrazom na maximum optických kontaktov, pri pohybe po ňom dostávame kompletný priestorový vnem zo všetkých priestorov domu.

foto: Tomáš Manina
foto: Tomáš Manina

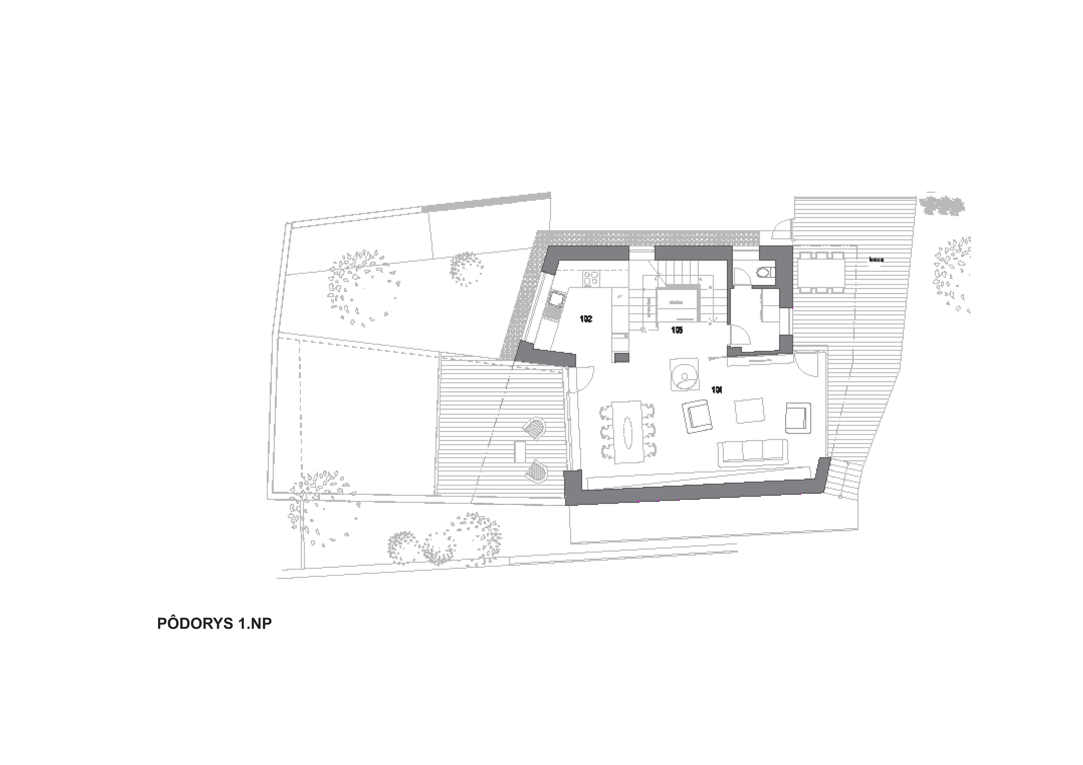
1.poschodie obsahuje jeden preplávavý priestor obývačky, kuchyne, jedálne. Obývačka je od schodiska v prípade potreby oddeliteľná posuvnými stenami. Posuvne resp. otočné steny su použité aj v exteriéri – v lete v otvorenom tvare tvoria drevene plochy závetrie pre zadnú terasu, na zimu sa otočením zložia pod presah nad terasou a vytvoria tak krytý priestor pre zimne uskladnenie terasového nábytku, krbu atd.

foto: Tomáš Manina
foto: Tomáš Manina

Obývačka je od schodiska v prípade potreby oddeliteľná posuvnými stenami.

foto: Tomáš Manina

2. poschodie je vďaka presahom nad terasami väčšie, obsahuje tri spálne a kúpeľňu Posledná úroveň vedie okolo malej pracovne na terasu s výhľadom na mesto. Únik do úplného súkromia, využívaný pár krát za rok. Ale stoji za to žiť s pocitom že je tu takáto možnosť...

foto: Tomáš Manina
foto: Tomáš Manina
foto: Tomáš Manina
foto: Tomáš Manina

Na záver pripájame ešte ukážku dispozičného riešenia a výškového usporiadania objektu.

1 PP
1 PP
1 NP
1 NP
Rez
Rez

Poloha diela

Ing. arch. Tomáš Šebo
Vložené
19. jún 2015
0
1631
Hlavný obsahHlavný obsah
Čakajte prosím