Advertorial

Hotel Hirschen Spa House, Rakúsko

Novotvar v prostredí alpskej obce.

Vytvorte si kúpeľňu snov: dizajnové riešenie od značky hansgrohe

Hansgrohe - prémiová značka kúpeľňových riešení, ponúka nadčasový dizajn, technickú precíznosť a udržateľné inovácie...

Okná Internorm za minuloročné ceny + hliníkový kryt zdarma!

Využite špeciálnu akciu Internorm: okná za minuloročné ceny a hliníkový kryt úplne zadarmo. Ponuka je časovo obmedzená!

Pozvánka na 2. ročník stavebného veľtrhu BigMarket na Slovensku

Na podujatí sa predstaví až 37 vystavovateľov - popredných dodávateľov stavebných materiálov a inovácií s prezentáciou...

Moderné plynové technológie: Efektivita a inovácie pre 21. storočie

Sumarizácia najdôležitejších inovácií, ktoré redefinujúcich využitie tohto energetického zdroja.

Utesňovanie spodných stavieb pomocou hydro-aktívnej fólie AMPHIBIA.

AMPHIBIA 3000 GRIP 1.3 od spoločnosti ATRO predstavuje modernú hydroizolačnú technológiu, ktorá spája vysokú odolnosť,...

Dekarbonizácia individuálneho vykurovania domácností – Green Deal evolučne a nie revolučne

Ambiciózne plány EK narazili na ekonomické možnosti domácností v jednotlivých členských štátoch –...

Minimalistické dvere IDEA – technická precíznosť a čistota prevedenia

IDEA DOOR od spoločnosti JAP prináša do interiéru čistý minimalistický vzhľad vďaka bezrámovému riešeniu a precíznej...

Dom s výhľadom na údolie, Dlouhý Most (ČR)

Kontinuita riešenia od vonkajšieho obkladu až po kovania a kľučky.

Schell Vitus – osvedčené riešenie pre sprchy a umývadlá vo verejnom sektore s viac ako desaťročnou tradíciou

Nástenné nadomietkové armatúry Vitus sú mimoriadne vhodné pre rýchlu a efektívnu...

Kompozitné okná predstavujú súčasnosť a budúcnosť

Okenné profily z kompozitného materiálu RAU-FIPRO X od spoločnosti Rehau sú v porovnaní s tradičnými plastovými profilmi mnohonásobne...

Myotis - stoly 2025

Najnovší sortiment stolov pre zariadenie interiérov...

Priemyselné sklenené priečky Dorsis Digero: svetelné rozhranie pre moderné interiéry

Spojenie moderného dizajnu, funkčnosti a svetla do harmonického architektonického prvku.

Význam prirodzeného svetla pre moderné a flexibilné pracovné prostredie

Kancelárska budova Baumit v slovinskom Trzine prešla premenou na moderné a udržateľné pracovisko. Architekti kládli dôraz...

Konferencia Xella Dialóg predstaví novinky a trendy v stavebníctve

Mottom šiesteho ročníku on-line konferencie odborníkov Xella Dialóg je Efektívny návrh budov 2025+: zmeny a riešenia

CoffeeShopa, Limbach

Novostavba kaviarne s viacúčelovou sálou v centre Limbachu - architektúra za normálne peniaze.
Diela
Red 402.05.2020
29070+21
CoffeeShopa, Limbach
Ateliér: Architekti Šebo LichýAutori: Ing. arch. Tomáš Šebo, Mgr. arch. Igor Lichý, Ing. arch. Juraj Murín, Ing. arch. Emanuel Zatlukaj, Ing. arch. Aleš Hradecký, PhD., Prof. akad. arch. Imrich VaškoSpolupráca: Ing. Jakub Vydra, Ing. arch. Martina Ďurčeková, Ing. arch. Adam JurgaInvestor: Pacamara, s. r. o.Návrh: 2016 - 2018Realizácia: 2018 - 2019Adresa: SNP 570 , Limbach, SlovenskoPublikované: 2. máj 2020

Autorom z ateliéru Architekti Šebo Lichý sa podarilo transformovať zadanie do architektonicky jednoduchej a ekonomicky efektívnej podoby. Návrh vychádza z prevádzkovej a konštrukčnej logiky stavby. Transparentné nárožie a parter prebiehajúci pozdĺž hlavnej cesty, terasa odtienená od rušnej ulice... Pred farebne potlačenú štandardnú omietku a tmavé rámy zasklenia vystupuje priestorový raster z cédrového dreva, ktorý zjednocuje objem a integruje prvky fasády. Okrem čiastočne ukrytých dažďových zvodov využíva geometriu rastra aj terasa (zástena pôsobí ako vysunutá časť fasády) a reklamné pútače. Vo výsledku tak aj úsporná forma, bez použitia drahších materiálov a náročnejších technických prvkov, je vhodným riešením.   

Foto: Martin Žilka
Foto: Martin Žilka
Foto: Martin Žilka
Foto: Martin Žilka
Foto: Martin Žilka

Viac povedia autori:

Objekt lokálnej kaviarne sa nachádza v priamom srdci obce Limbach pri Pezinku. Vznikol výraznou prestavbou pôvodného malého objektu lokálnej predajne ovocia a zeleniny, ktorá už dlhší čas neslúžila svojmu účelu. Architektonický koncept tvarovo jednoduchého dvojpodlažného objektu spočíva vo vytvorení jednotného funkčného celku v urbanizme obce s niekoľkými úrovňami vizuálno-funkčných väzieb interiéru a exteriéru.

Na jednej strane sú to vizuálne väzby nárožia objektu - na prízemí víta barové zázemie návštevníkov na príjazdovej komunikácií, zatiaľ čo vrchné podlažie otvára interiér pohľadom na centrum obce a Malé Karpaty s typickými vinicami na ich úpätí.

Druhú rovinu tvorí vizuálna os - ulica - kaviarenská časť - súkromná terasa - zeleň v pozadí. Striedajú sa tu rôzne úrovne súkromia verejných priestorov.

Poslednú úroveň vizuálnej väzby tvorí predsadený drevený fasádny raster, ktorý je inšpirovaný  tradíciou lokálnych viníc. Ten tvorí charakteristický vizuálny filter medzi vnútorným a vonkajším priestorom.

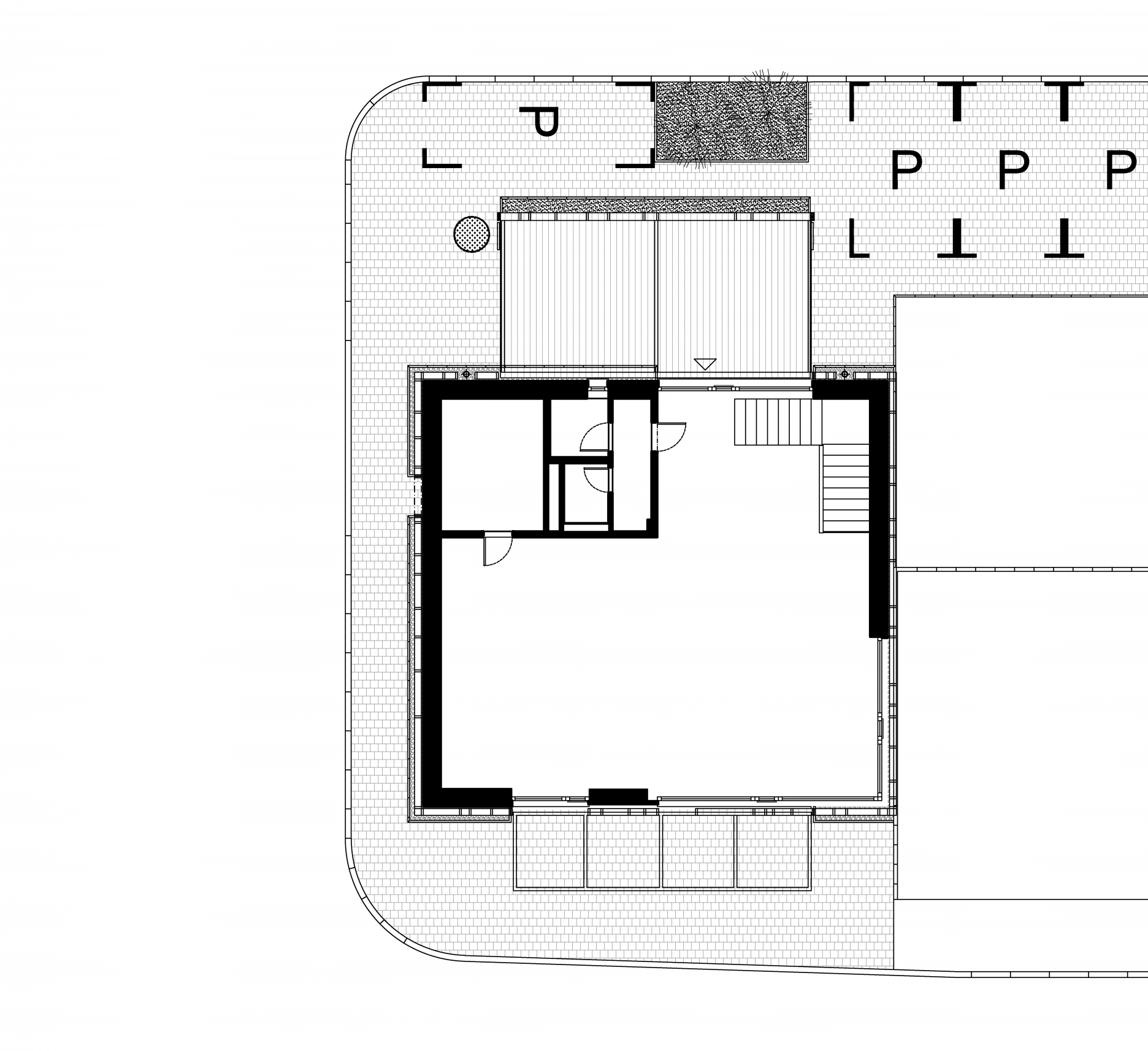
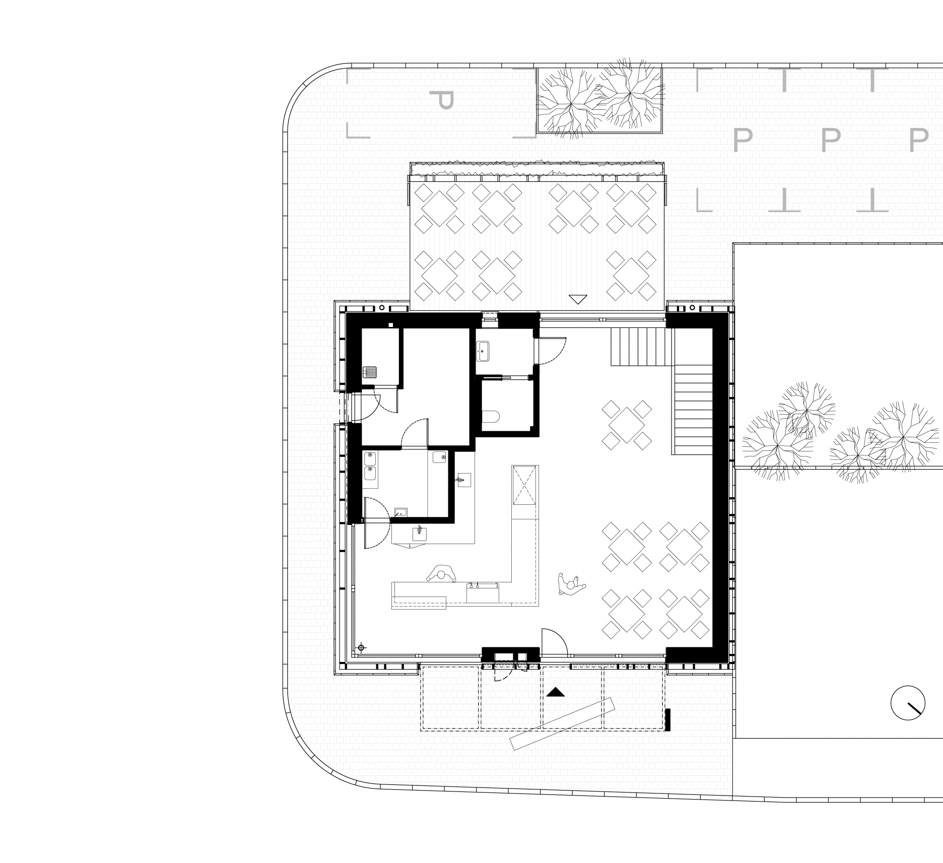
Dispozícia je priamočiara - prízemie tvorí z polovice zázemie a bar a z polovice je otvorenou kaviarňou s prístupom z parteru. Poschodie ponúka variabilný priestor s možnosťou spájania a rozdeľovania podľa aktuálne prebiehajúcich aktivít.

Pôdorys 1. NP
Pôdorys 1. NPAutor: Architekti Šebo Lichý
Pôdorys 2. NP
Pôdorys 2. NPAutor: Architekti Šebo Lichý
Juhovýchodný pohľad
Juhovýchodný pohľadAutor: Architekti Šebo Lichý

Autorkami riešenia interiéru sú Ing. Eva Horváthová a Zuzana Haláková (Ateliér v podkroví):

Foto: Martin Žilka
Foto: Martin Žilka
Foto: Martin Žilka

Poloha diela

Ing. arch. Tomáš Šebo
Mgr. arch. Igor Lichý
Ing. arch. Juraj Murín
Ing. arch. Emanuel Zatlukaj
Ing. arch. Aleš Hradecký, PhD.
Prof. akad. arch. Imrich Vaško

Súvisiace články

Vložené
27. apríl 2020
0
2907
Hlavný obsahHlavný obsah
Čakajte prosím