Advertorial

Hotel Hirschen Spa House, Rakúsko

Novotvar v prostredí alpskej obce.

Vytvorte si kúpeľňu snov: dizajnové riešenie od značky hansgrohe

Hansgrohe - prémiová značka kúpeľňových riešení, ponúka nadčasový dizajn, technickú precíznosť a udržateľné inovácie...

Okná Internorm za minuloročné ceny + hliníkový kryt zdarma!

Využite špeciálnu akciu Internorm: okná za minuloročné ceny a hliníkový kryt úplne zadarmo. Ponuka je časovo obmedzená!

Pozvánka na 2. ročník stavebného veľtrhu BigMarket na Slovensku

Na podujatí sa predstaví až 37 vystavovateľov - popredných dodávateľov stavebných materiálov a inovácií s prezentáciou...

Moderné plynové technológie: Efektivita a inovácie pre 21. storočie

Sumarizácia najdôležitejších inovácií, ktoré redefinujúcich využitie tohto energetického zdroja.

Utesňovanie spodných stavieb pomocou hydro-aktívnej fólie AMPHIBIA.

AMPHIBIA 3000 GRIP 1.3 od spoločnosti ATRO predstavuje modernú hydroizolačnú technológiu, ktorá spája vysokú odolnosť,...

Dekarbonizácia individuálneho vykurovania domácností – Green Deal evolučne a nie revolučne

Ambiciózne plány EK narazili na ekonomické možnosti domácností v jednotlivých členských štátoch –...

Minimalistické dvere IDEA – technická precíznosť a čistota prevedenia

IDEA DOOR od spoločnosti JAP prináša do interiéru čistý minimalistický vzhľad vďaka bezrámovému riešeniu a precíznej...

Dom s výhľadom na údolie, Dlouhý Most (ČR)

Kontinuita riešenia od vonkajšieho obkladu až po kovania a kľučky.

Schell Vitus – osvedčené riešenie pre sprchy a umývadlá vo verejnom sektore s viac ako desaťročnou tradíciou

Nástenné nadomietkové armatúry Vitus sú mimoriadne vhodné pre rýchlu a efektívnu...

Kompozitné okná predstavujú súčasnosť a budúcnosť

Okenné profily z kompozitného materiálu RAU-FIPRO X od spoločnosti Rehau sú v porovnaní s tradičnými plastovými profilmi mnohonásobne...

Myotis - stoly 2025

Najnovší sortiment stolov pre zariadenie interiérov...

Priemyselné sklenené priečky Dorsis Digero: svetelné rozhranie pre moderné interiéry

Spojenie moderného dizajnu, funkčnosti a svetla do harmonického architektonického prvku.

Význam prirodzeného svetla pre moderné a flexibilné pracovné prostredie

Kancelárska budova Baumit v slovinskom Trzine prešla premenou na moderné a udržateľné pracovisko. Architekti kládli dôraz...

Konferencia Xella Dialóg predstaví novinky a trendy v stavebníctve

Mottom šiesteho ročníku on-line konferencie odborníkov Xella Dialóg je Efektívny návrh budov 2025+: zmeny a riešenia

Predajňa potravín a vína v centre Devína

Lákavý pohľad priamo z ulice.
Diela
Red 331.03.2022
26940+63
Predajňa potravín a vína v centre Devína
Autori: Ing.arch. Boris Schultz, Dipl. Arch. Richard Baláži, (ARB), Ing. arch. Štefan VrabecInvestor: Od našich (NAŠI s.r.o.) Podlažná plocha: 1200 m2Investičný náklad: 4,5 mil.Návrh: 2019 - 2019Realizácia: 2020 - 2021Adresa: Hradná 1002/1, Bratislava-Devín, SlovenskoPublikované: 31. marec 2022

Architektúra lokálnych predajní potravín môže byť na vyššej úrovni, než s akou sa stretávame pri bežných typových projektoch obchodných reťazcov. Aj väčšie stavby dokážu kultivovane zapadnúť do centrálnych zón miest a obcí a doplniť tak nevyhnutnú infraštruktúru. 

Realizácia z dielne ateliéru A.M. Architects nahradila nefungujúcu prevádzku v centrálnej zóne Devína. Súkromný investičný zámer vznikol s cieľom ponúknuť obyvateľom a návštevníkom široké spektrum produktov, ale tiež kaviarenské sedenie, pekáreň, či rozsiahlu vinotéku.

Architekti v reakcii na zadanie rozdelili objekt na dva funkčné a kompozičné celky. Prevýšený priestor so sedlovou strechou zastrešuje predajnú plochu, zatiaľ čo nižší, materiálovo odlíšený trakt integruje potrebné obslužné zóny a zázemie. Prevádzkové riešenie navonok reflektuje dualita kompozície. Architektonický zámer a výslednú formu necháva vyznieť materiálové riešenie (priznané textúry a povrchy) a drobnokresba (skryté žľaby, detaily obkladov..).

 

Realizáciu predstavíme so sprievodným textom autorov:

Budova je situovaná v centre Devína na mieste starej budovy bývalých potravín.  

Foto: Tomáš Manina

Architektonické riešenie hmotovo aj materiálovo reaguje na historické prostredie devínskeho podhradia a rezidenčnej štvrte.

Foto: Tomáš Manina
Foto: Tomáš Manina

Budova je členená na dve časti: vyšší trakt so sedlovou strechou, nadväzujúci na vidiecku zástavbu a nižšiu hmotu so zelenou strechou, ktorá vytvára priestor pre technológie. 

Foto: Tomáš Manina
Foto: Tomáš Manina
Staré potraviny v roku 2012 (vľavo) vs. nové potraviny v roku 2022 (vpravo)
Staré potraviny v roku 2012 (vľavo) vs. nové potraviny v roku 2022 (vpravo)

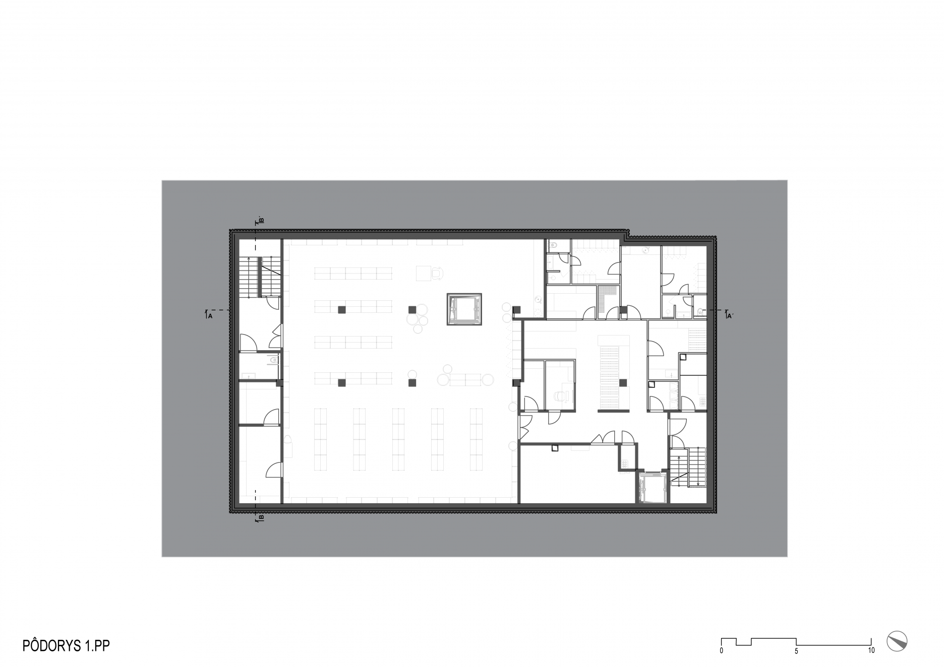
V suteréne sa nachádza predajný sklad vína so všetkými potrebnými náležitosťami.

Vstupné podlažie zastrešuje predajný priestor s kaviarenským sedením, pekáreň, aj prípravovňu čerstvých potravín.

Interiér tvoria materiály v ich surovej podstate. Pohľadová drevená konštrukcia strechy, oceľové tiahlá, betónové steny...

Foto: Tomáš Manina
Foto: Tomáš Manina

Použité materiály a riešenia:
Konštrukcia: Monolitické steny a stĺpy, monolitické stropné dosky a drevené prvky krovu
Konštrukcia strechy je tvorená z CLT panelov
Drevený obklad: termálne upravená Borovica
Sivá strecha: šablóny Cembrit Rhombus Betternit
Sivý obklad: Lapitec

Podklady: A.M. Architects
Foto: Tomáš Manina

Poloha diela

Ing.arch. Boris Schultz
Dipl. Arch. Richard Baláži, (ARB)
Ing. arch. Štefan Vrabec
Vložené
29. marec 2022
0
2694
Hlavný obsahHlavný obsah
Čakajte prosím