Advertorial

Pozvánka na 2. ročník stavebného veľtrhu BigMarket na Slovensku

Na podujatí sa predstaví až 37 vystavovateľov - popredných dodávateľov stavebných materiálov a inovácií s prezentáciou...

Hotel Hirschen Spa House, Rakúsko

Novotvar v prostredí alpskej obce.

Vytvorte si kúpeľňu snov: dizajnové riešenie od značky hansgrohe

Hansgrohe - prémiová značka kúpeľňových riešení, ponúka nadčasový dizajn, technickú precíznosť a udržateľné inovácie...

Okná Internorm za minuloročné ceny + hliníkový kryt zdarma!

Využite špeciálnu akciu Internorm: okná za minuloročné ceny a hliníkový kryt úplne zadarmo. Ponuka je časovo obmedzená!

Moderné plynové technológie: Efektivita a inovácie pre 21. storočie

Sumarizácia najdôležitejších inovácií, ktoré redefinujúcich využitie tohto energetického zdroja.

Utesňovanie spodných stavieb pomocou hydro-aktívnej fólie AMPHIBIA.

AMPHIBIA 3000 GRIP 1.3 od spoločnosti ATRO predstavuje modernú hydroizolačnú technológiu, ktorá spája vysokú odolnosť,...

Dekarbonizácia individuálneho vykurovania domácností – Green Deal evolučne a nie revolučne

Ambiciózne plány EK narazili na ekonomické možnosti domácností v jednotlivých členských štátoch –...

Minimalistické dvere IDEA – technická precíznosť a čistota prevedenia

IDEA DOOR od spoločnosti JAP prináša do interiéru čistý minimalistický vzhľad vďaka bezrámovému riešeniu a precíznej...

Dom s výhľadom na údolie, Dlouhý Most (ČR)

Kontinuita riešenia od vonkajšieho obkladu až po kovania a kľučky.

Schell Vitus – osvedčené riešenie pre sprchy a umývadlá vo verejnom sektore s viac ako desaťročnou tradíciou

Nástenné nadomietkové armatúry Vitus sú mimoriadne vhodné pre rýchlu a efektívnu...

Kompozitné okná predstavujú súčasnosť a budúcnosť

Okenné profily z kompozitného materiálu RAU-FIPRO X od spoločnosti Rehau sú v porovnaní s tradičnými plastovými profilmi mnohonásobne...

Myotis - stoly 2025

Najnovší sortiment stolov pre zariadenie interiérov...

Priemyselné sklenené priečky Dorsis Digero: svetelné rozhranie pre moderné interiéry

Spojenie moderného dizajnu, funkčnosti a svetla do harmonického architektonického prvku.

Význam prirodzeného svetla pre moderné a flexibilné pracovné prostredie

Kancelárska budova Baumit v slovinskom Trzine prešla premenou na moderné a udržateľné pracovisko. Architekti kládli dôraz...

Konferencia Xella Dialóg predstaví novinky a trendy v stavebníctve

Mottom šiesteho ročníku on-line konferencie odborníkov Xella Dialóg je Efektívny návrh budov 2025+: zmeny a riešenia

Rodinný dom Břeclav

Domy Jána Studeného vždy zaujmú. Predstavujeme pasívny drevený prefabrikovaný rodinný dom s expozíciou železničného múzea, neďaleko za hranicami na Morave.
Diela
Red 318.10.2015
17590+10
Rodinný dom Břeclav
Autori: Ing. Akad. Arch. Ján Studený, Ing. arch. Maroš BátoraSpolupráca: Ladislav BartkoInvestor: Manželia NiklovciZastavaná plocha: 149.00 m2Podlažná plocha: 267.00 m2Obostavaný objem: 970.00 m3Investičný náklad: cca 6 mil. KčNávrh: 2009 - 2012Realizácia: 2010 - 2012Adresa: Břeclav, Česká republikaPublikované: 18. október 2015

Akcelerátorom domu v Břeclavi boli tri činitele:
1. zadanie v programe definovanom investorom, 2. pozemok, ktorý predstavoval vzťah k okoliu a 3. súvislosti s nadstavením energetickej úspornosti obálky. Každý z nich sa na projekte podieľal svojím dielom a stavba bola podmienená ich vzájomným previazaním.

foto: Olja Triaška Štefanovič

A) program domu je nekonvenčný – vznikol na objednávku investora, železničiara z viacgeneračnou rodinnou tradíciou. Zadanie definoval ako museion – múzeum železníc, ku ktorému nakombinoval vlastné rodinné bývanie. Spojenie tak odlišných programov generovalo vo vývoji projektu neštandardné postupy a riešenia. Prestupmi dvoch sfér vznikli medzipriestory a 'iné' formy priestorov v rodinnom dome.

Priestorová schéma
Priestorová schéma

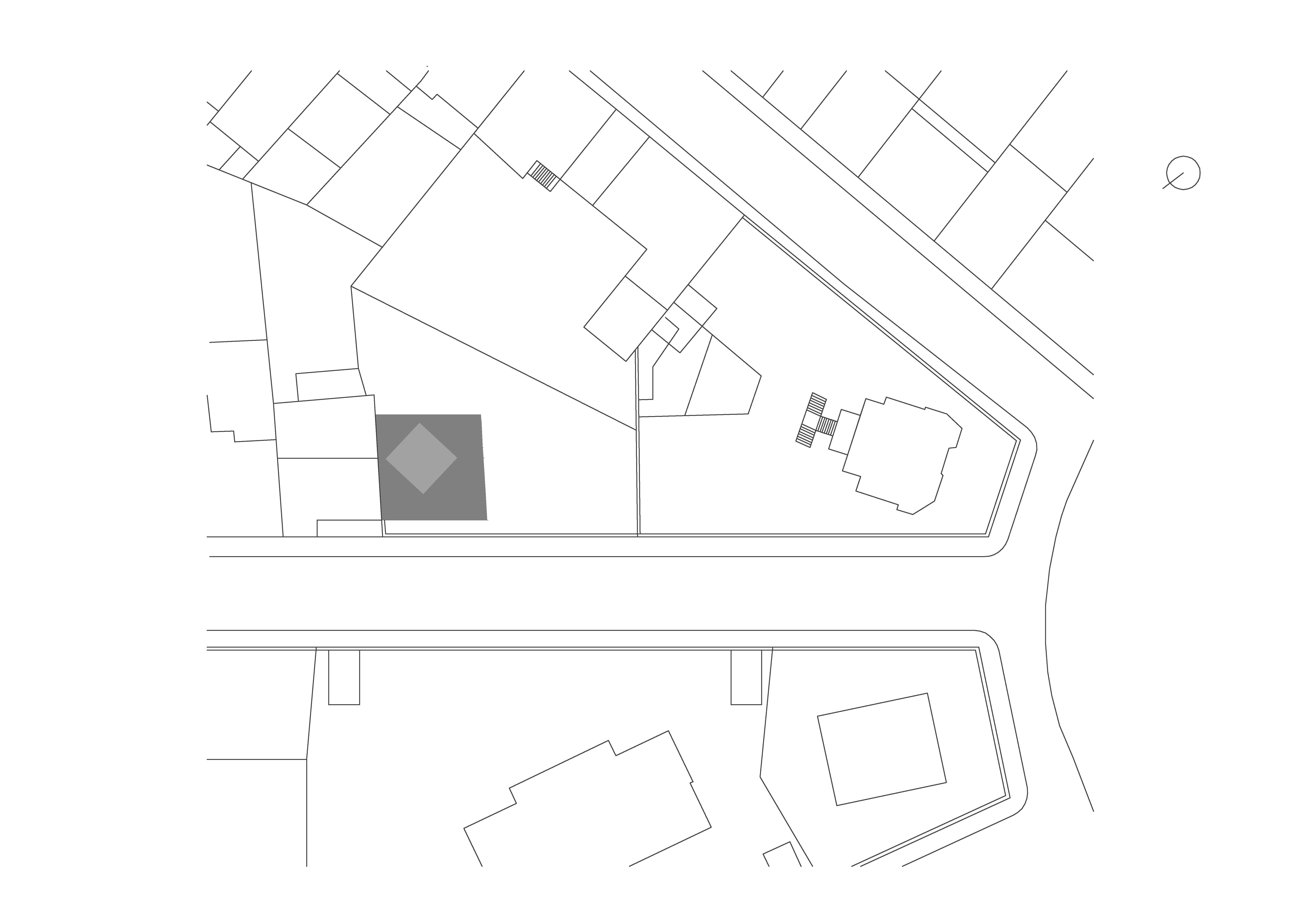
B) pozemok – dom je osadený v zadnej časti rodičovskej usadlosti pani. Tvorí mu protipól na opačnej strane pozemku a medzi nimi je záhrada. Pôvodný dom je umiestnený v uličnej zástavbe, v štvrti rodinných domov z predvojnového obdobia, blízko brehu rieky. Zo záhrady sme vyčlenili lichobežníkový pôdorys a stavbu sme umiestnili pozdĺž cesty, opretú o štít susedného domu. Dom je posledný v uličnej rade a svojou orientáciou sa prihovára k susednej samostatne stojacej vile na opačnej strane.

Situácia
Situácia

C) záujem o energetickú náročnosť stavby je prirodzeným prejavom súčasnej situácie. V istom štádiu zasiahol aj vývoj nášho projektu a postupne sa preklopil k radikálnej polohe pasívneho štandardu. Dôsledkom bolo, že časom nám ostal len malý priestor k obhajobe iných, než užívateľských kritérií domu, či technických postupov stavby.

foto: Olja Triaška Štefanovič

Ďalším z činiteľov, ktorý bol prítomný a ovplyvnil stavbu bol schvaľovací proces projektu. Prvý projekt s konkávnym oknom do átria nebol akceptovaný úradmi pre nesplnenie podmienok lokálnej vyhlášky (dvojpodlažný dom s červenou sedlovou strechou). K reštartu sme preto využili zjednodušenú formu ohlásenia stavby, pri dodržaní max. zastavanej plochy 150 m2. To nás donútilo dodržať kompaktný objem a jasnejšie artikulovať vnútorné členenie.

foto: Olja Triaška Štefanovič

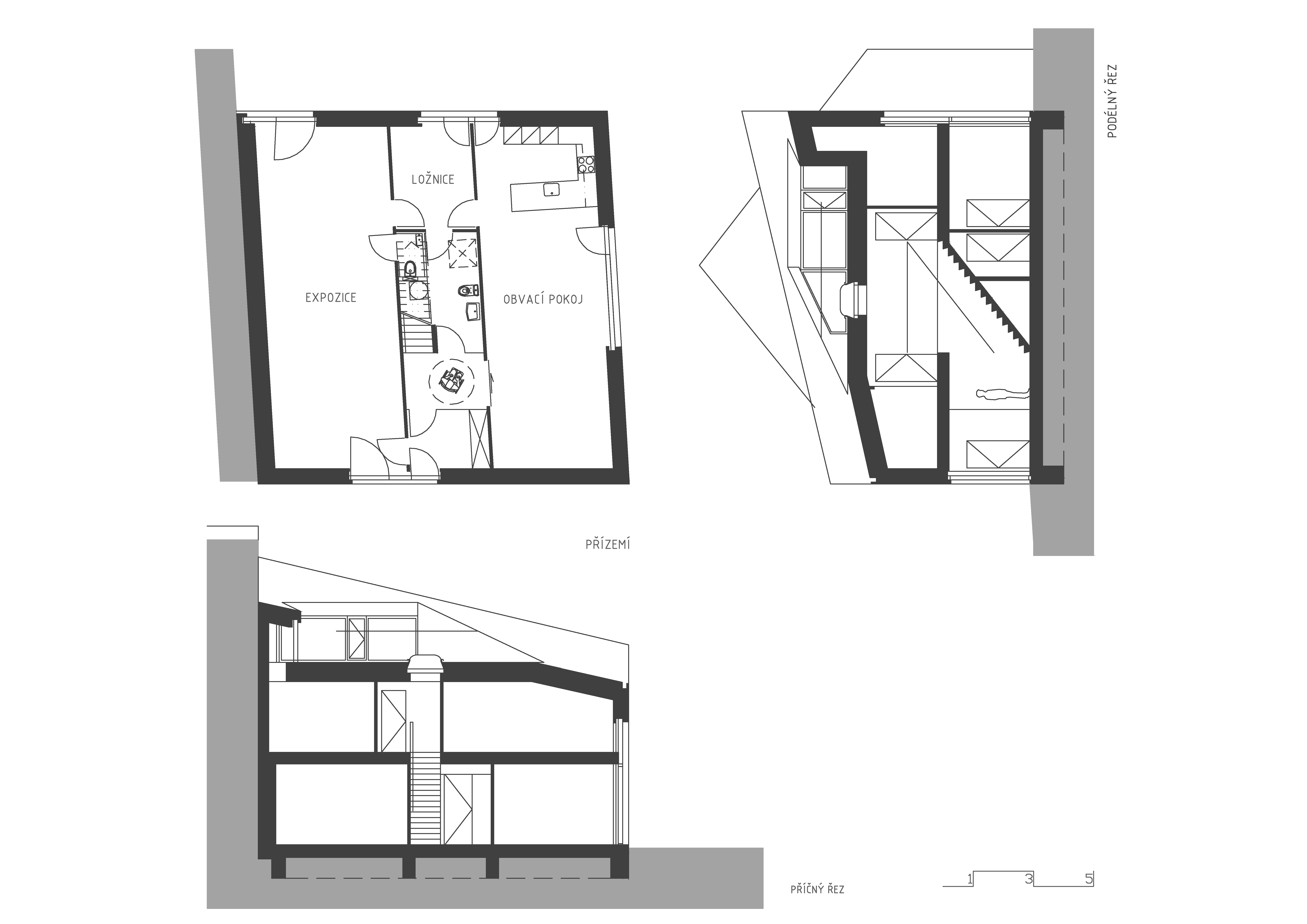
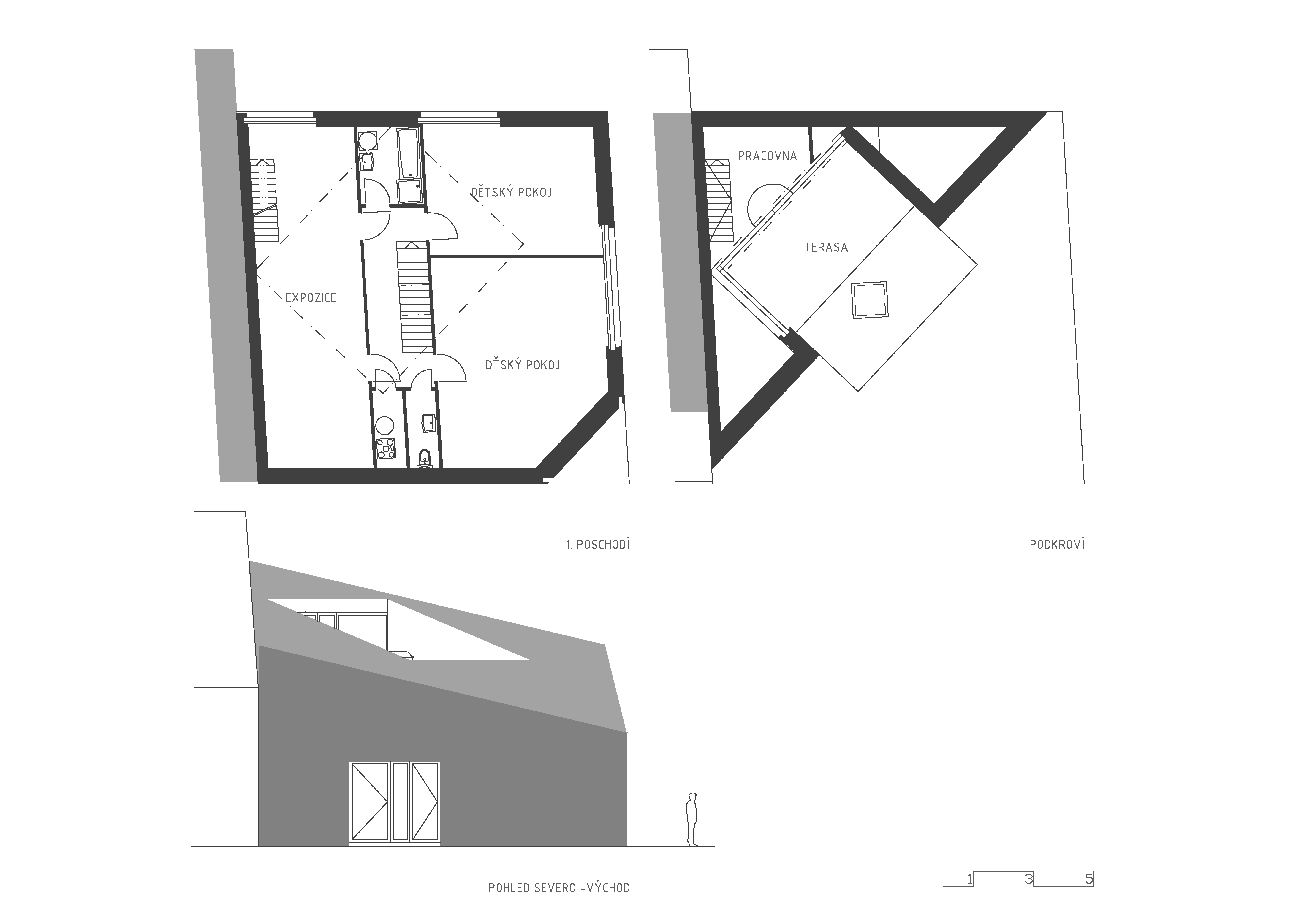
Pre stavbu sme použili montovanú panelovú konštrukciu z dreveného masívu – prejavuje štruktúru domu svojou prítomnosťou v interiéri – ostáva pohľadová. K nej sú osadzované výplne otvorov a obklady hygienického príslušenstva. Steny delia pôdorys na priečne sekcie – byt do záhrady, zmiešaný stredný trakt so schodiskom a hygienickým zázemím a výstavné priestory s pracovňou k štítovej stene. Strešná terasa je kľúčovým momentom domu – popisuje geometrické súvislosti a orientuje výhľad smerom k rieke.

Pôdorysy a pohľad
Pôdorysy a pohľad
Pôdorys a rezy
Pôdorys a rezy
Pohľady
Pohľady
foto: Olja Triaška Štefanovič
foto: Olja Triaška Štefanovič
foto: Olja Triaška Štefanovič
foto: Olja Triaška Štefanovič
foto: Ján Studený
foto: Ján Studený
foto: Ján Studený

Technické parametre:

Vonkajšia stena: U = 0,127 W/m2.K
Podlaha na teréne: U = 0,151 W/m2.K
Strop v podkroví: U = 0,081 W/m2.K
Vetranie: Riadené s rekuperáciou a chladením
Vykurovanie: Teplovzdušné
Príprava TUV: Solárne panely
Okná: Drevohliníkové Uw = 0,7 W/m2.K
Vstupné dvere: Drevohliníkové Ud = 0,7 W/m2.K
Tienenie: Vonkajšie žalúzie
Prievzdušnosť obálky: n50 = 0,14 h-1
Spotreba tepla na vykurovanie: 22 kWh/m2.a (PHPP) (PHPP)
Spotreba tepla na vykurovanie: 12 kWh/m2.a (TNI 73 0329) (TNI 730329)

podklady: Ján Studený

Poloha diela

Ing. Akad. Arch. Ján Studený
Ing. arch. Maroš Bátora
Vložené
18. október 2015
0
1759
Hlavný obsahHlavný obsah
Čakajte prosím